Дизайн и ремонт однокомнатной квартиры в Москве. Перепланировка типовой однушки
Всем привет! Меня зовут Карен Карапетян, я основатель и главный дизайнер компании Alexander Tischler. Мы делаем дизайн и ремонт квартир от А до Я с фиксированным бюджетом.
В конце 2022 года мы завершили ремонт в однокомнатной квартире, которая взорвала все мои соцсети: в инсте видео с этим интерьером посмотрели 10 млн раз, в Ютубе 20-ти минутный обзор набрал 1,4 млн просмотров.
Я понимаю, однушки — это самое массовое жилье в России, поэтому публикации про них набирают много просмотров. Но наша работа над планировкой и интерьером оказалась такой нестандартной, что у людей разорвались шаблоны.
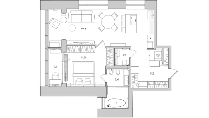
Планировка однокомнатной квартиры
Этот интерьер мы спроектировали для взрослой пары, их дети уже живут отдельно, и будут приходить в гости. В небольшой квартире хозяева хотели сделать обособленную спальню, найти место для рабочего стола и расположить хозблок со стиральной и сушильной машинами не в ванной.
Мы начали работать с классической планировкой однушки площадью 38 квадратных метров: кухня находится в меньшем помещении, а жилая комната — в большем. Такая планировка неудобна для жизни вдвоем, в ней не получится выделить приватную зону спальни — кровать неизбежно будет стоять в гостиной. А если отдать большую комнату полностью под спальню, то место для встреч и отдыха останется только на кухне. То есть в квартире не останется «третьего места» для досуга.
Какие ограничения повлияли на наши планировочные решения:
Запрещено менять местами кухню и жилую комнату в квартирах, под которыми находятся жилые помещения, а мы хотели все сделать законно;
Запрещено присоединять балконы и лоджии к квартирам;
Запрещено сдвигать перегородку между кухней и комнатой, если снизу живут соседи. Нельзя заезжать кухней на жилую комнату соседей. А также нельзя свою жилую комнату размещать под кухней соседей сверху.
Перепланировка однокомнатной квартиры
Изначально:
Кухня находится в меньшем помещении, а жилая комната — в большем;
Крохотная кладовка сложной формы слева от входа;
В небольшой прихожей целых 4 двери, напоминает “салон дверей”;
Неплохая по площади и геометрии ванная комната;
Лоджия отделена от кухни стандартным г-образным подоконным блоком.
Что мы сделали:
Сократили перегородку между кухней и комнатой, по действующему законодательству, передвигать ее нельзя, а сократить можно.
Поставили полноценный кухонный гарнитур, так как хозяева любят готовить, и хотели сделать полноценную кухню со всей необходимой техникой, про кухню подробнее расскажу дальше.
На месте бывшей «большой» комнаты выделили зону гостиной, полноценной комнатной ее назвать сложно, но составляющие гостиной есть: диван длиной 2,2 метра, телевизор и ниша, заменяющая журнальный столик.
У окна выделили обособленную спальню, сделали в нее два входа через раздвижные перегородки из матового стекла. Подробнее про организацию спальни расскажу дальше.
Заменили оконный блок на распашные стеклянные двери, так на кухне стало больше света. Вместе с этим лоджию теперь можно "присоединить" к кухне, если открыть двери. То есть юридически лоджия обособлена, но в реальности стала полноценной частью квартиры, на ней мы расположили рабочий стол и сделали "теплый пол".
Радиатор, который был прикреплен к подоконному блоку, мы заменили на вертикальный трубчатый и покрасили его в цвет стен.
В спальне объединили шкафы с прикроватными тумбами.
Увеличили кладовую за счет прихожей, это не запрещено, теперь здесь есть место для мини-гардеробной и хозблока со стиральной и сушильной машинами.
Увеличили ванную за счет небольшого коридора.
Убрали перегородки, которые отделяли прихожую, теперь пространство квартиры открывается сразу со входа и свет от окон доходит до входной двери.
Обратите внимание:
Справа от окна в спальне от застройщика нам достался несущий пилон, который неровно выступал из плоскости стены.
Мы не стали из-за него выравнивать всю стену, потому что не хотели терять ни сантиметра. Мы выровняли только пилон и отделали его таким же керамогранитом, как на кухонном фартуке
Шкаф, который разделяет кухню и гостиную, не простой, у него двойная глубина и сам он двухсторонний. За фасадами со стороны кухни у него ящики, полки и штанги для одежды. За штангами есть еще полки для хранения коробок или других вещей, которые не нужны каждый день. А со стороны гостиной мы сделали в нем нишу, она заменяет журнальный столик. В самой нише мы установили розетки и сделали подсветку, которая включается от взмаха.
Дизайн интерьера однокомнатной квартиры
В маленькой квартире главное не перегрузить пространство и не создать ощущение тесной кладовки. Как мы поработали с дизайном квартиры:
Все стены покрасили в один цвет, чтобы не дробить квартиру на блоки разных оттенков. Так создается ощущение, что это единое большое пространство
Так как надо было организовать много мест для хранения, большинство предметов мебели и двери сливаются со стенами и не давят своим объемом. Сливаются не только благодаря оттенку, но и форме: мебель доходит до потолка, а шкаф в гостиной и двери не выступают из плоскости стен.
Добавили “воздуха” и света с помощью распашных дверей на лоджии и раздвижных перегородок в спальне.
Для отделки выбрали легкие текстуры и спокойные оттенки, цвет добавили только в ванной комнате.
Угловая кухня в маленькой квартире
На кухне мы поставили полноценный угловой гарнитур: в пеналы встроили технику, а контрастную черную столешницу сделали прямой. Пеналы и верхние модули доходят до потолка, над плитой установили встроенную вытяжку, она скрыта за фасадом.
Хозяева также любят пить кофе, и для кофемашины мы сделали специальную выдвижную полку, она скрыта за фасадом слева от мойки, внутри предусмотрели розетки. Так кофемашина будет в легком доступе, но при этом не будет занимать место на столешнице. Весь угловой пенал также спроектирован под хранение: доступ к верхним и нижним полкам — через фасады слева.
Дизайн интерьера маленькой спальни
Хозяевам было важно сделать не просто обособленную спальню, но и поставить в ней кровать с полноценным матрасом — не меньше 180 см в ширину. Если бы матрас был меньше, мы могли бы поставить кровать изголовьем к одной из стен, и остались бы нормальные проходы по бокам кровати. С нужным габаритом матраса кровать хорошо вставала только изголовьем или изножьем к окну. Но так как хозяева хотели повесить в спальне телевизор, кровать мы поставили изголовьем к окну. Мы организовали равноправные проходы к кровати через раздвижные двери, потому что перелезать через партнера, когда ложишься спать — такая себе тема.
Несмотря на то, что хозяева будут спать головой к окну, они не замерзнут. Окна открывать не придется, потому что мы установили приточные клапаны за изголовьем: с улицы поступает чистый воздух, который нагревается от радиатора и поднимается через решетки. Само изголовье от радиатора не греется, мы проверяли.
Так как одной из основных задач при проектировании этого интерьера было организовать как можно больше мест для хранения, мы нашли неочевидное решение для шкафов с одеждой хозяев. Они висят прямо над прикроватными тумбами, внутри есть штанга для развески одежды, полки и ящики.
Дизайн ванной комнаты в однокомнатной квартире
Ванную комнату мы немного увеличили за счет прихожей. Так как ванная узкая, мы поставили неглубокую тумбу, а на нее — накладную раковину. Место над инсталляцией мы использовали для хранения и доступа к коммуникациям, там же установили проточный водонагреватель. Цвет мебельных фасадов подобрали под вкрапления на плитке.
Мы долго работали над этой планировкой, консультировались со специалистами по согласованию и сверяли наше видение пространства с заказчиками, в итоге смогли реализовать интерьер с учетом всех пожеланий хозяев на небольшой площади типовой планировки.
Эта однокомнатная квартира заняла третье место в международном конкурсе, так что оценили ее не только юзеры из России.
Как вам интерьер? Жили бы в такой однушке?








































































































