Имхо, честно, когда что-то откровенно воняет дышит нейронкой, крайне не хочется поощрять это покупкой. Красиво - может быть. Можно сгенерить и прилично, чтобы в глаза не так явно бросалось, в остальном - поощрять халтуру мне неприятно.
А как считаете Вы?
Покупать ли бытовые вещи в которых основная часть сделана с помощью ИИ?
P.S. Предположу, что кота на единороге вручную кастоимзировали фотошопом, поэтому я бы купил шторку из комментов оригинального поста.
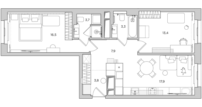
66 м² для современной семьи с ребенком и котом это реально совсем не много. Но при хорошем проектировании и без несущих стен в квартире можно сделать весьма удобную перепланировку. С нее и начну рассказывать, а дальше покажу фотографии готового интерьера.
Этот интерьер мы сделали для молодой семьи с котом, пара в будущем планирует завести ребенка, поэтому мы уже сейчас подготовили детскую комнату.
На видео я рассказываю о перепланировке, вы можете посмотреть его без звука, я добавил титры. Также ниже прикрепляю планы «после» и «до».
Планировка двухкомнатной квартиры площадью 66 м² с кухней-гостиной, детской, двумя ванными
Кухня-гостиная здесь узкая и вытянутая, еще и совсем небольшой площади — 17,9 м², обычно на такой площади невозможно комфортно расположить гарнитур, стол и диван, но у нас получилось. Нижние модули кухонного гарнитура мы продолжили до окна, теперь столешница длиной около 5 метров, а у кухни появилась дополнительная функция — ТВ-тумба с домиком для кота.
1/3
Дизайн интерьера небольшой кухни-гостиной
На фартуке нет выключателей и розеток — это пожелание заказчицы. Подсветка под верхними модулями включается от взмаха, а розетки спрятаны в столешнице.
1/5
Кухонный гарнитур из ЛДСП и МДФ на заказ
В детской комод с пеленальным столиком и кроватку мы выбрали отдельно стоящие, так их будет легко заменить, когда малыш подрастет. А вот другую мебель в комнате сделали сразу «взрослой»: шкаф, стол, стеллаж и тумба. Мебель для своих проектов мы тоже проектируем и производим сами, это очень удобно, так как мы знаем все детали проекта и несем за него ответственность.
1/4
Дизайн интерьере детской комнаты для малыша
При детской мы сделали ванную комнату: здесь сочетали яркую плитку на полу со спокойной на стенах. На ванны мы никогда не ставим стеклянные перегородки, здесь будет штора. В шкафу над инсталляцией мы сделали коллекторный узел, который распределяет воду по всей квартире. Показываю его на видео.
Дизайн интерьера небольшой ванной комнаты с ванной и раковиной
В спальне родителей мы специально оставили много свободного места со стороны будущей матери — здесь будет стоять кроватка малыша. Когда ребенок подрастет, здесь же можно будет организовать рабочий стол. Спальня небольшая, место для гардеробной нет, поэтому вместо нее мы поставили большой платяной шкаф до потолка.
1/5
Интерьер светлой небольшой спальни
К этой спальне мы присоединили небольшой санузел, в котором разместили душевую, унитаз, раковину с тумбой и хозяйственный шкаф со стиральной и сушильной машинами, подробнее смотрите на видео.
В прихожей зеркало мы повесили не на полотно двери, а слева на стену, чтобы небольшое пространство расширилось, а не удлинилось.
1/2
Дизайн интерьера прихожей с пуфом и зеркалом
Между кухней и прихожей мы спроектировали и сделали кошачий комплекс с полкой под самым потолком, там будущий первенец точно не дотянется до пушистого.
Я с детства не любил чистить зубы, но любил гаджеты. Поэтому, наивно надеялся, что если купить прикольные гаджеты для нелюбимого процесса, то и зубы чистить будет весело.
Уточка отвернулась, чтобы не видеть тот стыд, что я пишу
Конечно же, недолго думая, я выбрал Xiaomi. Для "ванной комнаты" они выпускают товары под суббрендом с благозвучным для русского уха названием Soocas.
Зубная щётка
Кто знает, как включить на ней поворотники?
Выбрал модель X5. Это звуковая щётка чистит зубы выметающими движениями, а не возвратно-вращательными, как щётки с круглой головкой, но при этом в теории, в отличии от убер мощных ультразвуковых не вредит пломбам и коронкам.
Так, как такие щётки воздействую на зубы сильнее, чем ручные, паста для них нужна особенная, с минимальным абразивным эффектом. Я остановился на President Sensitive - у каждой пасты есть показатель абразивности (RDA) и у PS он показался для мне оптимальным.
(Если что, я не стоматолог, а простой обыватель, который перечитал кучу статей ещё до заполнения интернета нейросетевой водой.)
Поставлялась щётка с бохатым комплектом: 3 насадки разной жёсткости, кружка, чехол, беспроводная док-станция (зарядка от USB).
Минусом для меня стало то, что щётка подключается не к MiHome / MiFit / Zepp, а требует своё отдельное приложение Soocas. Первые дни я с ещё ним поигрался, радуясь своей прогрессии, а потом благополучно забил.
В повседневной жизни щётка меня тоже круто подставила... Хотя в комплекте и есть стакан для щётки, но разве вам не хочется просто стильно поставить её на плоское дно?
Я не самый осторожный человек и часто могу махать руками, а любой толчок стильно роняет зубную щётку на условно грязный пол или в условно грязную раковину... Конечно, можно снимать наконечник с щетиной, но тогда пропадает стиль. Да и вы сами то не офигеете его туда-сюда дёргать?
Хотя сменные головы для щётки штука дешёвая. С этими постоянными падениями есть нюанс: с щёткой идут три щетины: мягкая (для привыкания), средняя и жёсткая. И если средние/жёсткие свободно продаются на али, то вот мягкую там найти не очень легко... По какой-то причине не чистили долго зубки и они отвыкли от щётки? Придётся начать сразу с хардкора или кипятить старую.
Но конечно, главную свою функцию щётка выполняет отлично: хорошо чистит зубы. В ней есть встроенный таймер, который сигнализирует, что пора переключаться на другую четверть челюсти. (~30 секунд на четверть, 2 минуты на полную чистку)
Через приложение можно активировать опцию защиты от разбрызгивания пасты, чтобы щётка плавно набирала обороты, а не сразу врубалась на максимум.
Разве, что я чуть больше ожидал от режима "массажа языка / дёсен" - думал, что этой какой-то особенный кайф, который будет вознаграждением после чистки зубов, но так и не понял как оно должно работать.
Что и привело меня к печальному итогу: как бы ни крута была машина щётка проблема остаётся в прокладке между сиденьем и рулём раковиной и зеркалом. Даже геймификация процесса не смогла меня приучить регулярно чистить зубы.
Soocas X3S, который видимо отличается от X3U только расцветкой и отсутствием массажирования лица. (~4900р)
(У этих щёток указаны просто 4 режима работы без выбора интенсивности.)
(Хотя сам по себе X5 был улучшенной версией X3.)
Ещё есть другие буквы и линейки! Sonic, V1, D2... В этой азиатской логике нейминга без стопки ополаскивателя рта не разобраться. Я бы выбирая себе щётку сейчас со своей дотошностью к деталям, поехал бы крышей. (У меня был выбор между тремя вариантами.)
Если рискнёте в это погрузиться, то на мой взгляд, выбирать надо по этим признакам:
- Звуковая
- Частота пульсации (Думаю, что после какого-то предела уже нет разницы)
- Способ зарядки (Беспроводная станция уменьшает шанс на залитие)
- Наличие в продаже запасных головок (У X5 - X3 полная совместимость)
- Интенсивность режимов (Если у вас чувствительные зубы)
Из VIP опций это:
- Подключение к приложению (Если думаете, что более подвержены игрофикации чем я)
- Включение во рту
Но помните, что любая обычная щётка во рту, уделает самую крутую на раковине.
Недавно ещё вышел Soocas Neos - щётка со встроенным ирригатором. Кстати, об этом...
Ирригатор
Меня с детства пугало, как родственники орудовали во рту зубочистками. А постфактум, когда немного подтянул зубную теорию благодаря лучшему автомобильно-стоматологическому видеоблогеру, ужаснулся ещё сильнее...
Впрочем, зубная нить меня больше не прельщала - повезло и межзубные промежутки у меня были минимальными и еда там не застревала. (Даром, что сами зубы кривые...) Что-то туда с усилием протискивать... Нить напрягалась так сильно, что я боялся порезать ею нёбо. Бр...
И так бы я и жил, пока однажды из-за некорректной формы пломбы, у меня не оказалась крупная щель, куда начали забивать волокна еды, травмируя десну. С щелью я конечно разобрался, но воспоминания остались. Потом я увидел ирригатор в гостях у друзей... Потом мне его посоветовали на чистке зубов... Так у меня и появился Soocas W3 Pro (~3570р).
На самом деле, не знаю что можно о нём рассказать. Работает штука очень прикольно: стреляет водой под высоким давлением, чтобы максимально безболезненно выталкивать грязь из щелей между зубов.
Ирригатор максимально "тупой" и "простой" - никаких приложений. Зарядка через Type-C (Скрыт заглушкой.) Управление - через две кнопки: питание и выбор режима огня (воды?) в выключенном состоянии / скорость работы во включённом.
В комплекте есть несколько насадок для разных целей, но я пользуюсь только узкой. Всё моё взаимодействие с остальными ограничивается тем, что я роняю, фирменную подставку, она раскрывается и я иду обеззараживать выпавшие насадки кипятком.
Если вы используете ирригатор, то
Я не могу сказать, что приобретя эти гаджеты стал чаще чистить зубы, но однозначно процесс стал веселее, а качество на затрачиваемые усилия выросло.
Однажды, в одном «глянцевом» журнале (не спрашивайте, как он попал ко мне у руки и на кой хрен я в него уткнулся, я сам не помню) прочитал интервью «Примадонны» отечественной эстрады, имя её, по понятным, я думаю всем причинам называть не буду. Так вот, в одном из вопросов, журналист бравший интервью ,спросил у «Примадонны», что такое по её мнению «Звёздная болезнь». Так вот ответ её мне запомнился. Цитирую по памяти:
Представьте себе некую квартиру говорит, «Примадонна», а в этой квартире ванная комната, а в этой ванной комнате соответственно ванная, в которой лежу я. Так вот, в квартире никого нет, она заперта изнутри так, что с наружи открыть её не возможно, ванная тоже заперта мной изнутри. В ванную я полезла исключительно с целью помыться. Тем не менее, лежу я в этой ванной в такой позе, что если кто то из журналистов, папарацци или просто зевак в эту ванну ворвётся и внезапно и меня сфотографирует, я на фото была бы в красивой позе, хотя прекрасно понимаю что такое НЕ возможно в данный момент так как и квартира и ванная закрыты. И вместо того, что просто помыть голову и другие части тела, как изначально и планировалось, я корячусь в красивых и неудобных позах, как «айсберг в океане». Вот такая вот любопытная характеристика «Звёздной болезни»
Так вот вопрос дорогие мои знатоки, что такое по вашему мнению «Звёздная болезнь»?