Ответы к посту
Итог года
694

Ответ на пост «Итог года»

И я хочу похвастаться) Мы в этом году с мужем тоже мечту исполнили, дом купили) Не строились, просто нашли готовый вариант в который влюбились и купили! 10 лет мечтали сбежать из душного города и вот оно! Искали дом в 100-120 квадратов, а в итоге почти 300(!!!) квадратов, сами до сих пор немного в шоке, но это воплощение всех наших хотелок! Для меня чудесный уютный балкон и настоящая русская печь, а для мужа собственная мастерская для хобби и огромный пятикомнатный подвал😅 Я когда в подвал спустилась-офигела! Дом пока полупустой, много что хотим доделать/переделать, но мы в восторге и предвкушении)

Показать полностью 2
123

Ответ на пост «Итог года»

Я пережила все волны молча, но эта мини-волна мимо меня не пройдет.


В этом году мы с мужем начали длинный путь к своей крыше над головой.
Участок 22 сотки купили в 2021 году, он выходит в лес. Стройку начали в августе, до текущей стадии дошли за 2,5 месяца. Пока закончились деньги и ждем окна)

Проект:

Гладко было на бумаге, да забыли про овраги)

Гладко было на бумаге, да забыли про овраги)

Текущая стадия.

Текущая стадия.

За стройкой наблюдали в прямом эфире, чтобы не мучить прораба вопросами " а че сегодня?"

красивая опалубка) нравится.

красивая опалубка) нравится.

Рендер отличается от финальной версии дома, это связано с косячным первым проектом.

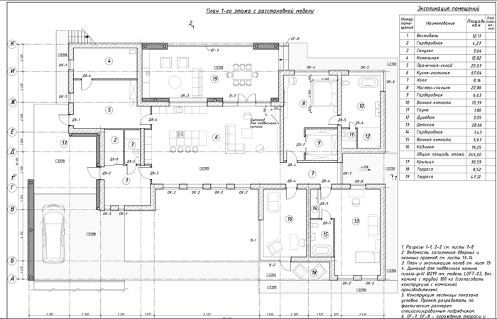
Планировка. Теплый контур 245м2. Вы заметите, что много углов. Похоже, у архитектора был KPI на углы и он его перевыполнил

Планировка. Теплый контур 245м2. Вы заметите, что много углов. Похоже, у архитектора был KPI на углы и он его перевыполнил

Проектировался индивидуально под нас и под нашим чутким непрофессиональным контролем.

С проектной организацией сейчас судимся.
Коротко: После согласования визуала на нас забили хер, работа с конструктором шла из рук вон плохо, задержали проект на полгода. Когда я предфинальный вариант показала строителям, они мне ответили - эту хуйню мы строить не будем.

Проектная организация косяков не признала. Справедливо в целом, ибо я косяки с чужих слов передавала. Потом сделала экспертизу, результат - 49 критических недостатков. Сейчас мы судимся и ждем результаты уже судебной экспертизы. В проекте нет даже крыши.

Как только я решила для себя что этот проект утратил доверие, экстренно заказала перепроектировать конструктив под почти тот же визуал, чтобы успеть к строительному сезону. В итоге построено уже по второму проекту.

Но все равно я в бешенстве и в суде, а муж рад что мы не построили многомилионный памятник бетону и арматуре. Сужусь, чтобы вернули деньги за первый проект.

О доме:
Фундамент- лента, Стены- газобетон, крыша - монолитная жб плита

Инженерку спроектирует муж. Дизайн тоже делает муж в Планоплане.
Небольшой коллаж- примерка:

Входная группа

Входная группа

Гостинная + кухня

Гостинная + кухня

офис

офис

ванна

ванна

Хочу отметить важность личного контроля. Я не обладаю спец знаниями, чтобы указывать профессионалам что правильно, а что нет, но достаточно немного здравого смысла и молдавской крови, чтобы на голову не налезло, то что проектировщики старались туда натянуть. Они профессионалы, они знают лучше зачем во дворе закапывать трехметровые сваи. А крышу нам спроектирует тот, кто будет ее строить. А дымоход да забыли, щас кружочек нарисуем. А окна спроектированы без зазоров, так окна после готовых проемов же заказывают. И многое, многое, многое другое.

Ну больная эта тема че уж, я ж не по братски заказала проект, и даже не на фрилансе за 50 к, а у проектно-строительной фирмы которая несет теперь юридическую ответственность за все свои черкаши, которые оставили на бумаге.

В общем до окончания стройки еще очень далеко, но мне приносит большое удовольствием шаг за шагом реализовывать свою большую мечту)

Показать полностью 9 1
7209

Ответ на пост «Итог года»

Продали квартиру в городе, съехали в съёмку, с 2мя собаками, 3мя кошками. Спасибо знакомой. Сыновья, школьник и студент. В ложились в стройку. Рискнул всеми деньгами. На отделку не хватало, поэтому из двойного бруса. Внутри просто покраска стен. Оплатили все сразу, до начала стройки. И через месяц все стройматериалы просто взлетели в цене. Фирма не обманула, ни копейки больше не взяла. Через 5 мес после заключения договора въехали. Хейтерам пишу сразу "плюшки". Центральный газ, магистральн. вода и канализация. Электричество 15 квт.

Показать полностью 3
22

Ответ на пост «Итог года»

А накидайте мне и хорошего и плохого) Очень много в комментариях бывает полезного, а я как раз на этапе, когда многие решения еще в процессе формирования, может что полезного извлеку.

Итак, Ленобласть (Кирилловское).

Фундамент плита 10х10

Сам нифига в строительстве не понимаю, но есть технадзорщик, бдящий за проектом.

Теплоизоляция:

Базальтовая плита Rockwool Лайт баттс Скандик

Внешний контур стен всего дома – 200 мм (150 мм + 50 мм); + сухой строганый брусок 45Х45 мм, с шагом не более 600мм, для перекрестного внешнего утепления;

Пароизоляция 200 мкм "СИЖ" - монтируется изнутри по всем утепленным поверхностям, с проклейкой всех швов DELTA-INSIDE-BAND M 60 (ДЕЛЬТА ИНСАЙТБАНД М60).

Отопление электричеством, 15кВт заведено, вроде должно хватать с избытком. (первый этаж теплые полы, второй - радиаторы).

Цена вопроса - 14М за черновую отделку со всей инженеркой. (Спасибо семейной ипотеке, без нее не потянули бы никак!) Кто скажет дорого - поинтересуйтесь актуальными ценами, особенно с использованием эскроу.

Планировка

Показать полностью 8
34

Ответ на пост «Итог года»

Шо тут у нас? Перепись хвастунишек?
Таки держите и мой итог.

12.5*13м. Пенобетон внутри, силикатный кирпич снаружи. Водяной тёплый пол и подоконники (уговорили на него другие люди, не строители). Автономная канализация, газовые котёл и плита.

Домик в деревне

Домик в деревне

Терраса и крыльцо.

Терраса и крыльцо.

План дома с "предполагаемой" расстановкой мебели. Планировку рисовал сам из соотношения хотелок и бюджета.

Планировка

Планировка

К весне закончится чистовой ремонт, вместе с деньгами 🙄

Что я собственно могу сказать...

  1. Если не бить палкой строителей каждый день, то можно получить перекрытия дорблю. Потом половину сезона тратят на переделку.

Обрешётка дорблю

Обрешётка дорблю

2. Котельной 1.8 на 3м слишком мало под всё, что потребно (котлы, бойлер, большой бак, стабилизаторы напряжения, ибп на котёл, система водоподготовки, етц).

Тесно

Тесно

3. Тёплые подоконники это прикольно, и даже может потянуть обогрев всего дома при условных -5, но сам каменный подоконник стоит как крыло от боинга, пластик не подойдёт. Выложить кафельной плиткой дешевле, но такая отделка может вызвать ЧМТ от счастливой жены..

4. Полиэтиленовые трубы от столба нужны не только на ввод электричества, но и для оптики от провайдера. У меня такая была закопана до дома, но не была введена в сам дом, пришлось повозиться.

5. Спросите у соседей, страдают ли они от конденсата в газовой магистрали, если требуется понижающий ГРПШ (см. фото начала декабря ниже). А то можно научиться демонтажу ГРПШ с закрытыми глазами к середине зимы. Просто, чтобы отогреть и продуть.

Лучи ненависти к газовщикам.

Лучи ненависти к газовщикам.

ЗЫ: Коробка со всеми разводками воды/тепла/проводов, штукатуркой и черновой шпатлёвкой около 9млн.

Показать полностью 6
5267

Ответ на пост «Итог года»

1-я страница Пикабу: экономика в труху, кормим Абхазию, зарплаты не хватает на хлеб, запретили ютуб

2-я страница Пикабу: а я тут дом построил! ответ на пост: о, и я, и я, и я, и я...

Отличная работа, все прочитано!

Темы

Политика

Теги

Популярные авторы

Сообщества

18+

Теги

Популярные авторы

Сообщества

Игры

Теги

Популярные авторы

Сообщества

Юмор

Теги

Популярные авторы

Сообщества

Отношения

Теги

Популярные авторы

Сообщества

Здоровье

Теги

Популярные авторы

Сообщества

Путешествия

Теги

Популярные авторы

Сообщества

Спорт

Теги

Популярные авторы

Сообщества

Хобби

Теги

Популярные авторы

Сообщества

Сервис

Теги

Популярные авторы

Сообщества

Природа

Теги

Популярные авторы

Сообщества

Бизнес

Теги

Популярные авторы

Сообщества

Транспорт

Теги

Популярные авторы

Сообщества

Общение

Теги

Популярные авторы

Сообщества

Юриспруденция

Теги

Популярные авторы

Сообщества

Наука

Теги

Популярные авторы

Сообщества

IT

Теги

Популярные авторы

Сообщества

Животные

Теги

Популярные авторы

Сообщества

Кино и сериалы

Теги

Популярные авторы

Сообщества

Экономика

Теги

Популярные авторы

Сообщества

Кулинария

Теги

Популярные авторы

Сообщества

История

Теги

Популярные авторы

Сообщества