Берём картинку из пинтерест и превращаем ее в реальный объект
Камрады, приветствую.
Давным давным уже не вынашиваю эту идею, просто потому что выносил и выродил. Пришла пора делиться с достопочтенной публикой, так как материала накопилось на несколько хороших, интересных постов, и грех это на вас не вывалить)
Но начнем всё таки с простой мысли, которая приходила и приходит всем рук..ждельникам, таким же, как и я, которым что то вот эдакое хочется, но своей фантазии не всегда хватает, а если попробовать нарисовать или объяснить, то как в том старом анекдоте - «Чтобы русские ни делали, всегда получается Калашников. Кроме памятника Калашникова. Когда делают памятник Калашникову, получается памятник Шмайсеру»…
Ну так вот. Начну цикл постов, в которых я буду описывать, какого хера у меня все таки не калаш получился, а что то похожее на изначальный референс:
Очень уж мне понравилась идея такого навеса. Выглядит легко, сочетания двух материалов я эстетически одобряю да и если честно, мне очень нравится эта банальная пара - лиственница в цвете не лиственницы и черный метал, классический Ral 9005..
Но!
Я не умею толком проектировать на этом участке своего пути (данное изделие было сколхожено 2 года назад) и только-только осваиваю «Компас» с репетитором, пару часов в неделю, вот уже несколько месяцев как.. моих навыков явно не достаточно и мы с наставником договариваемся, что он чутко руководит, я внимательно делаю…
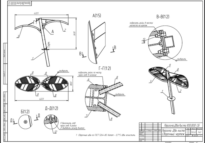
Определившись с размерами и основными узлами, создаем чертежи. Честно - это невероятно муторный и долгий процесс. Особенно когда у тебя проблемы с пространственным мышлением и нет насмотренности.. но мы справились:






Выдержки из проекта
В целом даже визуалка по этим чертежам получилась достаточно похожая на первоисточник:
Есть нюанс - нейросеть не учитывает конечно ветровых нагрузок, скручивания.. все параметры нужно проверять, дабы конструкция была жизнеспособна в реальной жизни. Чем прекрасны модели - их можно проверить на ветровые нагрузки.
На ветровые в первый раз я конечно же не проверил, у ростка в целом получился не кислый такой рычаг, но инженерные решения и костыли в процессе проектирования позволили об этом не думать перед сборкой и монтажом. Все конечно же - после.
Детали отправлены в нарезку на чпу, приступаем к сборке. Особых проблем кстати не было на этом этапе, каркас, несущую основу собрали…
Обварили и зашлифовали. Варил я это все аргоном, кайфово потом такие швы обрабатывать.
Большие элементы готовы. Поступаем к скамейкам. Детали тоже на чпу:
Скамейки готовы. Выезжаем на место монтажа.
Пара слов о том, как такую здоровую елду вообще можно куда то продать: я не знаю, как это работает у других.. но у меня с этим лепестком вышло интересно: пришли ребята, которые занимаются благоустройством и спросили - можешь что нибудь интересное сделать, все стандартное всем надоело.. бюджет есть вот такой.. ну я им эту картинку из пинтереста и показал.. и они согласились.. а я такой - ебаааа… как делать то.. ну да ладно. По фото - не то что уже сделали.. уже вывезли даже на место монтажа. Поэтому - продолжим:
Яму копаем метра 2,5. Глубина промерзания, все дела. Армируем - безусловно.
После того, как несущая опора забетонирована - можно уже и собрать до конца эту историю. Увидеть в целом в живую: как оно - самому пипец как интересно.
Сборка осуществлялась краном.. на болты.. тут особо проблем не было
Ну как то так:
Было
Стало
Превратил картинку из нейросети в реальный объект..
идем дальше)








































