Про параллельность стен
Если кому надо, вот лазерный дальномер на Али и аналог на Яндекс Маркет
Делитесь своими поделками в нашем сообществе
Если кому надо, вот лазерный дальномер на Али и аналог на Яндекс Маркет
Делитесь своими поделками в нашем сообществе
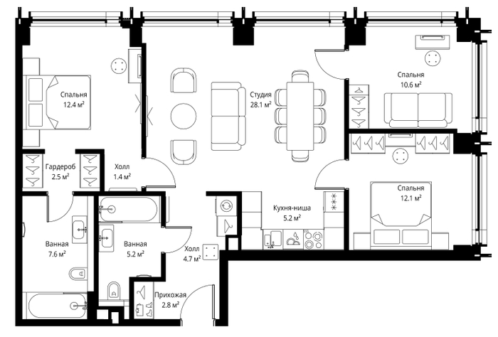
Дизайн-проект квартиры в ЖК «Галактика» в Санкт-Петербурге — продуманный современный интерьер с элементами экостиля и джапанди, разработанный для семьи с двумя детьми. На площади 93 м² спланировали кухню в нише, общее пространство гостиной, кабинет с перегородкой, две детские с разным настроением и два санузла с контрастной отделкой. В проекте использованы 3D-панели в детских, системы хранения, формирующие ниши, каменные поверхности и продуманные акценты в каждой зоне. Читайте кейс до конца, чтобы узнать бюджет проекта, сроки работы и ключевые решения по реализации.
В студии Artum проектирование начинается с понимания задач клиента и его повседневных сценариев. Работа выстраивается по чёткой системе — от функциональной планировки до реализации, с контролем всех решений и прозрачной логикой бюджета. Посмотрите портфолио, чтобы оценить, как такой подход реализуется в готовых интерьерах.
💎 Планировка квартиры в ЖК «Галактика»
💎 Дизайн-проект прихожей
💎 Интерьер кухни-гостиной
💎 Дизайн интерьера спальни
💎 Дизайн санузлов
💎 Интерьер детских комнат
💎 Дизайн кабинета
💎 Сколько стоит дизайн-проект квартиры в ЖК «Галактика»
💎 Сколько стоит ремонт квартиры в ЖК «Галактика»
Квартира спроектирована с тремя отдельными спальнями, кабинетом и общей зоной кухни-гостиной. Кухню разместили в нише, что позволило отделить рабочую часть от гостиной и сохранить цельность пространства. Гостиная объединена со столовой и стала основной зоной для совместного времяпрепровождения.
Просторный холл связывает все помещения между собой и не перегружает квартиру лишними проходами. Планировкой предусмотрены два санузла и отдельная гардеробная, что повышает удобство повседневного использования.
Прихожую оформили в минималистичном ключе со встроенными шкафами во всю высоту стены и фасадами под дерево. Хранение занимает целую плоскость и воспринимается как часть архитектуры, а не отдельная мебель.




Визуализация прихожей.
Акцентная панель с зеркалом асимметричной формы дополнена компактной консолью для мелочей. Подсветка подчёркивает зону входа и визуально отделяет её от жилого пространства.
Гостиная расположена в центральной части квартиры и примыкает к большому окну. Зону формируют диван, журнальные столики и акцентная панель, которая обозначает место для отдыха.



Визуализация гостиной.
Кухня вынесена в нишу и визуально отделена от гостиной. Гарнитур расположен вдоль одной стены: верхние шкафы выполнены в светлом цвете, нижние — под дерево, вся техника встроена.


Визуализация кухни.
Каменный фартук с активным рисунком задаёт акцент рабочей зоне. Обеденный стол со стульями размещён между кухней и гостиной и объединяет пространство.
Главную спальню оформили в светлой сдержанной палитре с акцентом на материалы и текстуры. Кровать с мягким изголовьем расположена по центру комнаты, а стену за ней выделили панелями под дерево и вставкой с каменным рисунком.




Визуализация спальни.
По обе стороны предусмотрены прикроватные тумбы и подвесные светильники, которые не загромождают поверхность. Вместо активного декора использованы текстурные панели и настенные композиции. Интерьер получился собранным и ориентированным на ежедневное использование.
В первом санузле стены облицованы светлой крупноформатной плиткой под камень, что делает пространство визуально цельным. Установлены подвесной унитаз и компактная тумба с каменной раковиной, а хранение и инженерия скрыты во встроенных шкафах. Интерьер дополнен полотенцесушителем и лаконичным светом без лишних элементов.


Визуализация ванной комнаты.
Во втором санузле использована тёмная плитка под бетон в сочетании с зелёными акцентами. Центральным элементом стала деревянная тумба с каменной раковиной и овальным зеркалом, под которым использована декоративная галька. Душевая зона выполнена со стеклянной перегородкой и чёрной сантехникой, чётко отделяя мокрую зону.




Визуализация ванной комнаты.
Одна из детских выполнена в светлой гамме с акцентной стеной из 3D-панелей в стиле LEGO и декоративной фигурой обезьяны. Кровать расположена вдоль стены, рядом организованы рабочий стол у окна и встроенные шкафы. Акцентные элементы делают комнату запоминающейся, сохраняя простую и удобную планировку.




Визуализация первой детской.
Вторая детская оформлена в зелёно-бежевой палитре с рельефной акцентной стеной. Зону кровати сформировали шкафами, которые создают нишу и одновременно решают вопрос хранения. Рабочее место у окна позволяет логично разделить пространство на зоны сна и учёбы.



Визуализация второй детской.
Кабинет отделён от зоны отдыха перегородкой: со стороны дивана она выглядит как акцентная стена, со стороны рабочего места — как чёткая граница пространства. Цветовая гамма здесь более насыщенная: графитовые стены, зелёные акценты и мебель из тёплого дерева.




Визуализация кабинета.
Рабочий стол расположен у окна, рядом предусмотрен высокий стеллаж. Шкаф в матовом зелёном цвете стал частью композиции и системы хранения. Дополняют интерьер диван, компактный столик, светильник с зелёными элементами и настенное панно с растительным мотивом.
Для квартиры площадью 93 м² был разработан полный дизайн-проект всех помещений. Стоимость работ составила 558 000 рублей, что соответствует 6 000 руб./м².
В проект вошли планировочные решения, концепция интерьера, подбор материалов и мебели, а также комплект рабочей документации с проработкой узлов. Срок разработки дизайн-проекта составил 75 дней.
Реализация интерьера и полная комплектация квартиры обошлись в 19 000 000 рублей. В бюджет вошли строительные и инженерные работы, чистовые материалы, мебель, техника и оснащение всех зон. Итоговая стоимость проекта «под ключ» вместе с дизайн-проектом составила 19 558 000 рублей.
Даже максимально проработанный проект требует контроля в процессе ремонта. Сопровождение позволяет точно реализовать заложенные решения, оперативно решать технические вопросы и снизить вовлечённость заказчика. Студия берёт на себя коммуникацию с подрядчиками, контроль работ и корректировки по ходу реализации.
Форматы сопровождения в студии Artum:
✔ Авторское сопровождение — 45 000 руб./мес.
Контроль соответствия ремонта проекту, консультации и участие в ключевых этапах.
✔ Комплексное сопровождение — 80 000 руб./мес.
Полное ведение объекта: координация подрядчиков, контроль сроков и комплектация.
Сопровождение осуществляется на протяжении всего ремонта, средний срок реализации — 8–11 месяцев.
Стоимость дизайн-проекта определяется индивидуально и зависит от параметров конкретного объекта. Даже квартиры в одном жилом комплексе могут отличаться по сложности и объёму работ.
На цену влияют:
— масштаб перепланировки;
— сложность инженерных решений и высота потолков;
— выбранные материалы и оборудование;
— наличие систем «умный дом»;
— количество мебели по индивидуальным чертежам.
Дизайн-проект квартиры в ЖК «Никитский 6» в Москве выполнен в современном стиле и рассчитан на площадь 170 м² для семьи с двумя детьми. В проекте предусмотрены просторная кухня-гостиная, кабинет, детская, мастер-спальня и два санузла, один из которых дополнен сауной. Много встроенных систем хранения, продуманное освещение и работа с натуральными материалами делают пространство функциональным и собранным. Дочитайте до конца, чтобы увидеть все решения и взять идеи для себя.
Дизайн интерьера квартиры в ЖК «Никитский 6», кухня-гостиная с латунными элементами от студии Artum.
В Artum мы выстраиваем работу по чёткому и понятному графику, держа сроки под постоянным контролем. При необходимости запускаем стройку ещё до полной финализации проекта, чтобы сократить общее время реализации. Посмотрите наше портфолио, чтобы убедиться, как выглядит продуманный ремонт.
⭐ Перепланировка квартиры в ЖК «Никитский 6»
⭐ Дизайн-проект прихожей
⭐ Дизайн интерьера кухни-гостиной
⭐ Интерьер спальни
⭐ Дизайн санузлов
⭐ Дизайн интерьера детской
⭐ Дизайн-проект кабинета
⭐ Особенности дизайна квартиры в ЖК «Никитский 6»
В прихожей предусмотрели системы хранения, чтобы пространство сразу работало на порядок. Кухню объединили с гостиной, получив большое общее пространство с логичным зонированием и комфортными зонами для готовки и отдыха. Спальня удалена от общей зоны и не пересекается с активными маршрутами по квартире.
Детскую разместили так, чтобы в комнате осталось достаточно места и для сна, и для хранения, и для будущих трансформаций без перепланировки. Отдельный кабинет выделили в тихой части квартиры. Два санузла: один основной, более просторный, второй компактный и удобный для повседневного использования.
Прихожую сделали максимально чистой и собранной: вдоль стены — встроенные шкафы в цвет отделки, которые визуально не утяжеляют пространство. На полу крупноформатный керамогранит с выразительным рисунком работает как акцент.


Визуализация прихожей.
Мягкая банкетка, куда удобно присесть, поставить сумку или обувь. Аккуратная консоль с подсветкой и декоративным светом делает зону законченной.
Гостиную собрали вокруг мягкого дивана с плавной формой — он разворачивает пространство к ТВ-зоне и задаёт спокойный, расслабленный сценарий. Акцентная стена с вертикальными реечными панелями и длинная тумба под телевизором с мраморной столешницей подчёркивают статус зоны и визуально вытягивают помещение.





Визуализация кухни-гостиной.
Кухню спрятали в единую линию шкафов: техника встроена, фасады спокойные, поэтому зона не перетягивает внимание на себя. Обеденный стол объединили с островом — получилась цельная композиция, которая одновременно работает и как место для приёма пищи, и как дополнительная рабочая поверхность. Над столом — парные светильники с латунным акцентом, которые работают как декоративный элемент даже днём.
В спальне — кровать с высоким мягким изголовьем, которое выглядит как отдельный элемент и завершает композицию. Панельная отделка с сочетанием текстур и тонкой вертикальной подсветкой аккуратно подчёркивает геометрию стены.




Визуализация спальни.
Подвесные светильники с тёплым стеклом опускаются прямо к прикроватным тумбам и освобождают поверхность от настольных ламп. Напротив кровати разместили ТВ-зону с системой хранения, встроенной в общую плоскость стены, чтобы всё выглядело максимально аккуратно.
Один санузел сделали более приватным и насыщенным по функциям: здесь разместили компактную сауну с деревянными полками и встроенной подсветкой. Душевую выделили стеклянной перегородкой, сделали акцентную стену с выразительным каменным рисунком. Раковину разместили на подвесной тумбе с подсветкой снизу и большим зеркалом.




Визуализация ванной комнаты с сауной.
Во втором санузле сделали ставку на чистые линии и контраст материалов — светлый камень и чёрная фурнитура сразу задают характер. Душевую отделили стеклянной перегородкой с выразительной аркой, которая работает как визуальный акцент.


Визуализация душевой.
Подвесная сантехника и компактная тумба оставляют максимум свободного пространства и упрощают уход.
Детскую сделали светлой и спокойной, без перегруженных акцентов, чтобы пространство легко адаптировалось со временем. Кровати разместили симметрично, оставив между ними проход и визуальный центр комнаты свободным.





Визуализация детской.
У каждой спальной зоны есть своё освещение и прикроватная тумба, поэтому у детей остаётся личное пространство. Рабочая зона с длинным столом, зеркалом и мягким креслом, где удобно заниматься, рисовать или просто хранить важные мелочи.
В кабинете — рабочий стол с удобным креслом, встроенные открытые полки и отдельная ТВ-зона. Акцентную стену оформили каменными панелями с мягкой подсветкой, которые добавляют глубины и собирают композицию.




Визуализация кабинета.
Напротив рабочего места разместили компактный диван. У окна оставили свободную зону под тренажёр, сохранив естественный свет и удобные проходы.
Ремонт квартиры в ЖК «Никитский 6» в Москве построен на продуманной функциональности и работе с материалами: дерево, камень и стекло используются как ключевые акценты. В проекте заложены разные сценарии жизни — от кухни-гостиной с островом и скрытыми системами хранения до кабинета, детской и санузла с полноценной сауной. Отдельное внимание уделили свету, встроенной мебели и чистым плоскостям, чтобы интерьер не был перегружен деталями.


В этом проекте мы осознанно работали с масштабом: крупные каменные плоскости, низкая мебель и свободные зоны дают интерьеру “дышать”. Кабинет задуман не только как рабочее место — с зоной отдыха и возможностью заниматься спортом, не выходя из комнаты.
(Подсмотрено в "Мужские мемы" - добро пожаловать в клуб!)