Дизайн-проект квартиры с оливковыми оттенками в ЖК «Bakunina 33 (Бакунина 33)» в Санкт-Петербурге
Дизайн-проект квартиры в ЖК «Bakunina 33» в Санкт-Петербурге разрабатывался для молодой заказчицы, которая четко сформулировала требования: свет, спокойствие, порядок и система. Площадь — 115 м², стиль — современная классика в сдержанном исполнении и натуральными материалами. Главные задачи — встроенные системы хранения, вместительная обеденная зона, мастер-спальня с душем и универсальная гостевая. В статье покажем, как все реализовано.
В Artum мы создаем работающие решения под конкретного человека. Пространство должно говорить на том же языке, что и его владелец — в портфолио видно, как мы к этому подходим.
Содержание:
📍 Перепланировка квартиры в ЖК «Bakunina 33»
📍 Дизайн прихожей
📍 Интерьер кухни-гостиной
📍 Дизайн-проект мастер-спальни
📍 Интерьер душевой в мастер-зоне
📍 Дизайн интерьера гостевой комнаты
📍 Дизайн ванной комнаты
📍 Особенности дизайна квартиры в ЖК «Bakunina 33»
Перепланировка квартиры в ЖК «Bakunina 33»
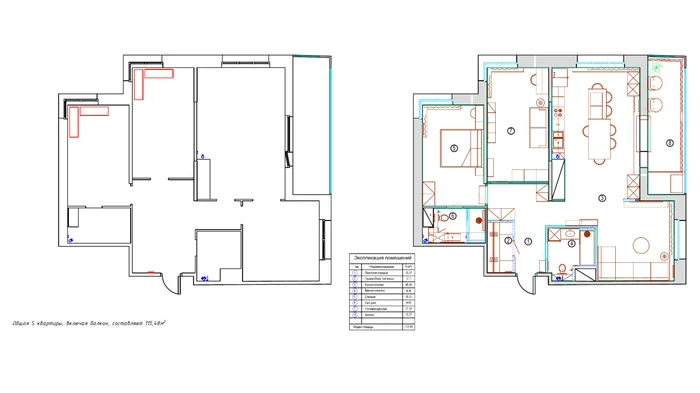
Основные конструктивные элементы квартиры остались без изменений — перепланировки не потребовалось. Пространство организовано за счёт объединения кухни с гостиной и частичного раскрытия лоджии, где добавили функциональную столешницу. В квартире два санузла: один приватный, с душевой при спальне, второй — гостевой с ванной и встроенной техникой.
Хранение распределено по всей квартире: шкафы встроены в прихожей, спальне и гостевой, плюс есть отдельный блок под бытовую технику. Распределение помещений стандартное — кухня-гостиная, спальня, гостевая, два санузла и лоджия, которая теперь задействована полноценно.
Дизайн прихожей
Прихожая оформлена в светлых серо-бежевых оттенках с оливковыми вставками в отделке и фасадах. Гардероб спрятан за глухими дверями, зеркало с подсветкой и тонкая консоль формируют лёгкий и собранный вход.




Визуализация прихожей.
Отделка стен — краска и лепнина в одном тоне, чтобы не дробить пространство. Продумана и логистика: всё, что нужно — на своём месте, ничего лишнего.
Интерьер кухни-гостиной
Кухня решена в матовых оливковых фасадах, верхний ярус — в отделке под дерево. Остров, встроенный духовой шкаф, высокая посадка и прямой выход на балкон делают кухню не просто удобной, а приспособленной к ритму жизни.




Визуализация кухни-гостиной.
Гостиная объединена с кухней, здесь много мебели и разделение происходит за счет напольного покрытия. Биокамин, молдинги, спокойный текстиль и светильники на шинах — всё выдержано в одном цвете.
Дизайн-проект мастер-спальни
Спальня оформлена сдержанно, но выразительно: оливково-серое изголовье с фактурной отделкой, встроенные светильники, акцентная фреска.




Визуализация мастер-спальни.
По бокам — подвесные тумбы, шкаф встроен в архитектуру помещения и закрыт глухими дверьми в цвет стен. У окна — столик для ухода или работы, с подвесным светильником. Прямой проход ведёт в душевую зону.
Интерьер душевой в мастер-зоне
Душевая сделана за счёт корректировки перегородки, что позволило встроить и сиденье, и подсветку, и шкаф под коллекторы.




Визуализация душевой.
Отделка — крупный керамогранит с каменной текстурой, встроенные ниши освещаются встроенными LED-лентами. Всё — в одной палитре, с акцентом на практичность и закрытые конструкции.
Дизайн интерьера гостевой комнаты
Гостевая совмещает функции кабинета и запасной спальни: здесь раскладной диван, встроенные шкафы и рабочая зона у окна.




Визуализация гостевой комнаты.
Оформление соответствует остальной квартире: оливковый в мебели, молдинги, деревянная отделка на панелях. Подсветка — на нескольких уровнях, от встроенной до точечных светильников, удобно для любых сценариев.
Дизайн ванной комнаты
Ванная комната организована с размещением техники в шкафу-колонне и дополнительными местами хранения под раковиной. Ванна совмещена с душем, встроены ниши для хранения.




Визуализация ванной комнаты.
Основной материал — керамогранит под светлый камень, зеркало с подсветкой и подвесная тумба завершают композицию. Комната решена без декоративного избытка, строго по функции.
Особенности дизайна квартиры в ЖК «Bakunina 33»
Ремонт квартиры в ЖК «Bakunina 33» в Санкт-Петербурге стал точной реализацией запроса на «чистый» интерьер без визуального мусора. Все решения выверены, каждая зона логична, каждый материал подобран под реальное использование.


Изюминкой стала лоджия, где появилась барная столешница и открытые полки с растениями — теперь это не просто балкон, а полноценное место для отдыха и коротких пауз.
👉 Получите бесплатную консультацию дизайнера и узнайте стоимость вашего проекта.





































































