Другая кухня
Вы когда-нибудь бились головой о кухонную вытяжку?
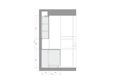
Вам хватает ширины кухонной столешницы стандартных 60см что бы поставить кухонный комбайн, миксер, чайник и при этом что бы оставалось место, где можно готовить?
Вас не раздражают висящие перед лицом кухонные шкафчики? - меня раздражают.
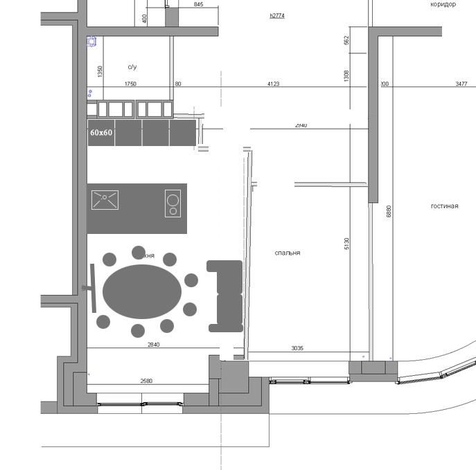
Ширину кухонной столешницы в 60 см я считаю категорически недостаточной.
Поэтому я сделал столешницу 90 см.
Я не первый это сделал - это решение применяется, например, в кухнях Valcucine.
Но в целом это решение используется редко, обычно экономят площадь пола, забывая, что даже в маленькой кухне не хватает не площади пола, а площади рабочей поверхности, а зона в глубине столешницы - самая доступная и востребованная на кухне:
Проект реализован.
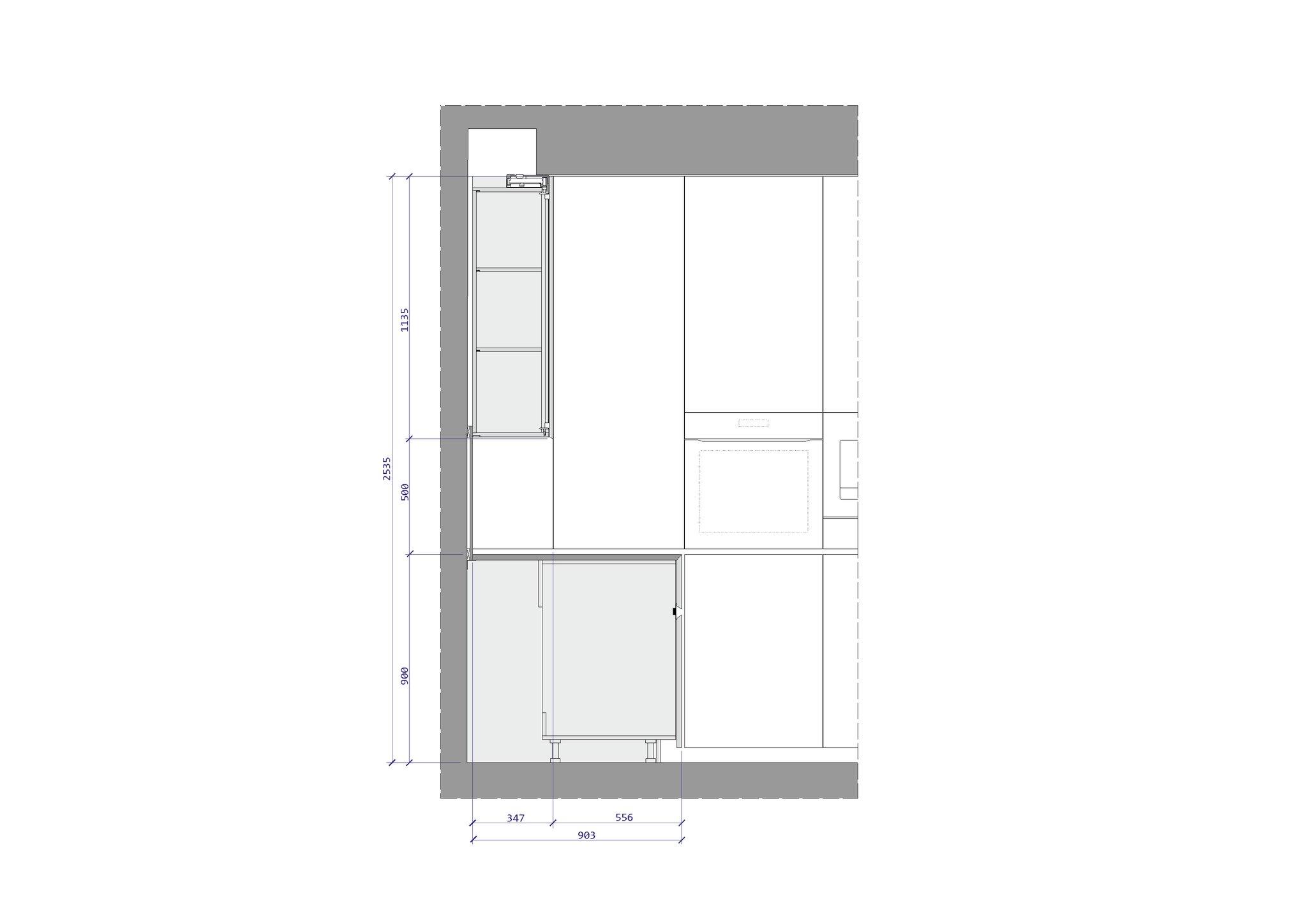
Кухонная мебель полностью выполнена на заказ. Детали, узлы, чертежи - мои.
Фасады - шпонированное МДФ
Столешница, раковина и фартук - Кориан
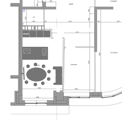
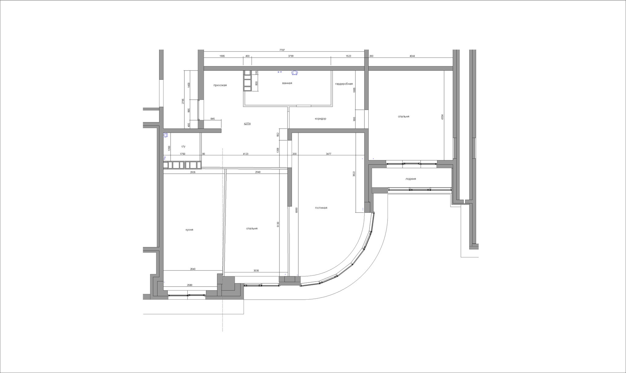
Что где находится:
В самом углу под бойлером ещё отопительный котёл для водяного тёплого пола.
За ящиками кухни, глубина которых - стандартные 60 см расположена система управления водяным тёплым полом.
Все изображения кухни - это фотографии, а не рендер.
больше фото этой квартиры: https://pikabu.ru/story/dushevaya_so_skryityim_trapom_681606...




































Строительство и ремонт
10.8K постов48.4K подписчиков
Правила сообщества
Правила оформления постов.
Посты видеоролики должны обязательно иметь описание о чём видео. Если видео длинное, то крайне желательно указать время, когда и о чём рассказываете.
В случае нарушения пост выносится из сообщества.
Правила общения.
Запрещено регулярное хамское и неуважительное обращение к другим участникам сообщества в рамках общения в комментариях. В случае первого нарушения бан в сообществе на 2-3 недели. В случае повтора постоянный.
Про нейросети
Тексты сгенерированные нейросетью, выносятся из сообщества, пользователь блокируется на неделю. При повторном нарушении перманентный бан для пользователя.
Про рекламу
Рекламные посты от платных/бесплатных аккаунтов запрещены. За первое нарушение блокировка на 7 дней. За второе перманентная блокировка.
Только для профессиональных участников рынка строительных услуг. (публикующихся регулярно)
Пост должен быть основан на личном опыте.
Должен быть информационно-познавательным (разъясняет/ объясняет что-то связанное с материалом/работой/организацией/и.т.д.) или пищей для ума (Взгляд на проблему, с другой стороны)
Запрещается публикация видео длиной более 5 минут без текстового таймлайна. ( надо указать где и о чём вы рассказываете в видео)
Не злоупотребляйте тэгами. Количество своих тэгов не более 4х шт. Тэги проставляемые системой не учитываются. (Длиннопост, видео, и.т.д.)