Дом-спутник
7 постов
7 постов
9 постов
Заказчик отказался принимать работу, поэтому свободно делюсь этой работой.)
В процессе проектирования было предложено несколько вариантов планировок, как с тремя спальнями, так и сауной. Рассматривались варианты, организации входа со стороны главного фасада или сбоку.



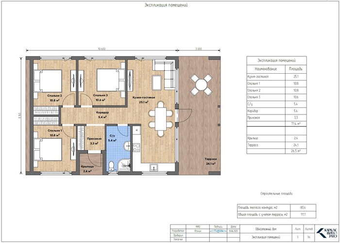
Итоговым решением стал дом с двумя спальнями, сауной и просторным «лофтом» на мансарде, где можно организовать, как еще одно спальное место, так и рабочий кабинет или игровую зону для детей.


На мой взгляд, дом получился достаточно универсальным, подойдет для большинства семей. Есть возможность изменить планировку под свои нужды. Например, вместо сауны можно организовать полноценную котельную или гардеробную, вместо душевой кладовую и т.д.





Сам проект можно бесплатно скачать у меня в telegram-канале PRO.Каркасники. Подписывайтесь на него, там я выкладываю проекты для самостоятельной постройки дома, чек-листы приёмки этапов строительства и актуальные сметы.
Задавайте вопросы в комментариях, с удовольствием на них отвечу.
Это краткое изложение моей истории строительства дома. Более детально процесс строительства я описывал отдельными постами в серии Дом-спутник
Сразу оговорюсь, что строил я конечно не в одиночку. Мне помогала бригада плотников, которые были моими "руками". Я же спроектировал этот дом, рассчитал смету, занимался снабжением и контролем за ходом строительства. Все инженерные коммуникации прокладывал самостоятельно по мере готовности дома.
Детально проработанный проект этого дома, а также детальную смету к нему можно бесплатно скачать у меня в канале Pro. Каркасники. Подпишитесь, если интересуетесь строительством, так как регулярно выкладываю рабочие проекты каркасных домов.
Строительство началось с установки ж/б свай. И сразу серьёзный косяк, не учел перепад на участке. Дом в длину 15,5 м, на такой длине даже небольшой перепад даёт большую разницу высот. Разница высот получилась больше 1 метра. Поэтому, в дополнение к заказанным трехметровым сваям, пришлось до заказывать коннекторы, удлинители и четырех метровые сваи. Этот просчёт стоил мне дополнительно 120 000 рублей. К слову сказать это единственный проблема с которой я столкнулся, дальнейшее строительство шло ровно и заняло ровно 3 месяца.



На фото хорошо заметен перепад высот фундамента.
Дальше заехала бригада и начала собирать каркас дома. Начали с обвязки свай наборной доской. Затем перекрытие и первые стены. Для контроля за ходом строительства я повесил видео камеру и вовремя успел заметить, что строители перепутали чертежи и установили первую стену зеркально от того, как должно быть. Хорошо, что вовремя заметил и не пришлось много переделывать)



На переднем плане видно, что укосы установлены изнутри, хотя по проекту должны быть снаружи
Строители долго не могли понять в какие места нужно монтировать закладные полосы пароизоляции, поэтому прокладывали их везде. Для меня же это было очень важно, так как я собирался строить энергоэффективный дом. забегая вперед скажу, что по окончанию строительства я провел тест на герметичность, но об этом чуть позже.



С поднятием самой большой стены возникли трудности - один из строителей надорвал спину и выпал из процесса на неделю. Пришлось колоть уколы с обезболивающим(



Когда собрали все стены я начал прокладывать канализационные трубы, чтобы впоследствии не пришлось резать утеплитель и пленку.



После установки стропильной системы дом обрел свою форму. Всего на этот дом ушло 37 куб.м. древесины и более 200 кг крепежа.



Далее приступили к монтажу кровельного покрытия из металлочерепицы.




Дом планируется для постоянного проживания, поэтому контур утепления составляет 200 мм. На стенах перекрестное утепление 150+50 мм.



После монтажа утеплителя закрыли изнутри пароизоляционной плёнкой, а снаружи ветрозащитной мембраной. Я же занялся установкой приточных клапанов и прокладкой труб водоснабжения.




Далее установили окна и приступили к монтажу фасадной доски. Но перед этим смонтировали цокольные ПВХ-панели. Фасадная доска с поднятым ворсом покрашена на производстве в цвет RAL6009 (елово-зелёный). В зависимости от освещённости имеет разный оттенок. Я уже выкладывал пост, где подробно рассказывал про такой вид отделки (Лучшая отделка каркасного дома).





Пока ребята занимались фасадом я протянул весь силовой кабель и провода освещения, собрал и подключил распределительный щит.



Внутренняя отделка также крашенная на заводе имитация бруса на стенах и вагонка штиль на потолке в зоне второго света кухни-гостиной, на полу фанера 18 мм. В санузлах и техническом помещении черновой пол листы ЦСП, на стенах влагостойкий гипсокартон.





Окончательный вид дома. Дом получился просторным. В нем большая кузня-гостиная 37 м2, хозяйская спальня с собственной гардеробной и санузлом, две детские по 13 м2, еще один санузел, котельная и кладовая.






Ниже представлена изначальная визуализация и готовый дом. Найдите десять отличий)
Задавайте вопросы в комментариях, с удовольствием на них отвечу.
Также подписывайтесь на мой telegram-канал PRO.Каркасники. Там я выкладываю проекты для самостоятельной постройки дома, чек-листы приёмки этапов строительства и актуальные сметы.
Каркасные дома воспринимаются как деревянные, поэтому и выглядеть они должны соответственно. Именно поэтому самой распространённой отделкой каркасных домов является дерево.
Деревянные фасады отличаются элегантным и современным дизайном, передавая текстуру и вид натурального дерева. Этот материал идеально подходит для создания фасадов в скандинавском стиле, известном своей простотой и лаконичностью.
На нашем рынке представлен большой выбор деревянной отделки. Начать, пожалуй, стоит с описания, какие бывают виды деревянных профилей. Ведь от типа профиля непосредственно зависит внешний вид дома.
«Классическая» имитация бруса – в зависимости от толщины, может применяться, как снаружи, так и для внутренней отделки.
Карельский профиль – отличается от стандартной имитации бруса усиленным замковым соединением с удлиненной полкой и более глубоким пазом, что обеспечивает прочное сцепление досок и минимизирует образование щелей при усадке материала.
Блок-хаус – профиль, похожий на сруб. Дома, отделанные блок-хаусом напоминают бревенчатые. В последнее время встречается всё реже.
Вагонка - похожа на имитацию бруса в миниатюре. Бывает двух видов: «Штиль» и «Евро». Чаще используется для отделки потолков внутри помещений
Прямой планкен бывает двух видов: профиль KM – доска прямоугольного сечения. КМ2R с закруглёнными углами на лицевой стороне. Такая доска чаще всего применяется в качестве подшивной или лобовой доски крыши. Используется для отделки откосов и наличников. Также подходит для подшивки свесов кровли.
Косой планкен – имеет форму параллелограмма. Эффектно смотрится на фасаде, как горизонтально, так вертикально. За счёт своей формы создаёт красивую игру теней, напоминая жалюзи.
Скандинавская фасадная доска имеет несколько видов:
Профиль UYV повторяет имитацию бруса, но за счет большей длины шипа образует профиль четверти.
Профиль UYS – доска с четвертью, похожа на прямой планкен. Используется только при вертикальном монтаже.
Профиль UYW повторяет профиль скошенного планкена, но за счет наличия длинного шипа образует профиль четверти.
Профиль UYL в народе именуемый «американка». Имитирует доску, смонтированную внахлёст.
Одним из ключевых параметров качественной отделки фасадов является толщина материала. Фасадная доска находится в агрессивной внешней среде и постоянно подвергается серьёзной нагрузке. Чтобы доска не растрескивалась, её не крутило и выгибало, она должна быть толщиной не менее 20 мм. Поэтому вагонку для отделки фасадов использовать нельзя, так как её толщина не превышает 14 мм (как правило 12,5 мм).
В качестве сырья для изготовления деревянной отделки используется древесина хвойных пород – в основном ель, сосна и лиственница. Ель и сосна самые распространённые, из них производится большинство видов отделки.
Лиственница более дорогой, премиальный материал. Отличается высокой плотностью, влагостойкостью и устойчивостью к гниению и грибку. Применяется для изготовления палубной доски, которая используется для отделки пола террасы.
Скандинавская фасадная доска отличается не только своей формой, но и фактурой лицевой поверхности.
Тонкопиленная доска с поднятым ворсом.
Выпускается строганной только с 3-х сторон. Лицевая поверхность в отличие от остальной деревянной отделки не строгается, а наоборот имеет шероховатую, ворсистую поверхность.
При окрашивании структура дерева дополнительно проявляется, что подчеркивает индивидуальность этой фасадной доски и принципиально отличает ее от пластикового сайдинга или гладкой строганой доски. Помимо декоративной составляющей, «ворсистость» обеспечивает глубокое проникновение краски, поэтому такое покрытие намного толще и держится значительно дольше.
Фрезерованная доска
Лицевая поверхность такой доски, также имеет шероховатую поверхность. Заготовки пропускают через специальную фрезу, которая оставляет небольшие бороздки вдоль всей поверхности. Делает структуру дерева более равномерной, скрывая природные дефекты древесины.
Браширование - процесс выскабливания специальной щёткой мягких волокон с верхнего слоя древесины, вследствие чего получается поверхность с ярко выраженной структурой годичных колец.
Брашированная и фрезерованная доска, так же, как и тонкопиленная увеличивает срок службы лакокрасочного покрытия в несколько раз, по сравнению со строганной поверхностью.
Крашенная на производстве фасадная доска позволяет значительно снизить расходы на отделку дома. Процесс монтажа сокращает время и затраты на рабочую силу, а также упрощает реализацию сложных дизайнерских решений.
Покраска может быть выполнена как по укрывистой, так и по лессирующей схеме, при которой будет сохранятся рисунок дерева.
Такая доска обладает высокой стойкостью к негативным воздействиям окружающей среды. Она не подвержена гниению, воздействию влаги и ультрафиолетовых лучей. Отлично справляется с температурными перепадами.
Подписывайтесь на мой telegram-канал Pro.Каркасники, где я рассказываю про строительство каркасных домов, выкладываю рабочие проекты, сметы и чек-листы.
Если кому-то не нравится деревянная обшивка, металлический или виниловый сайдинг, то фасадная штукатурка — хорошее решение, которое делает дом стильным, долговечным и защищённым от агрессивной внешней среды.
Фасадная штукатурка имеет ряд преимуществ:
Можно подобрать любой цвет и фактуру — от гладкой поверхности до фактурной “короед” или “шуба”. Ни смотря на то, что дом построен по каркасной технологии, визуально ничем не отличается от каменного.
Штукатурный слой надёжно защищает стены от влаги, ветра и ультрафиолета.
При правильном устройстве фасада штукатурка служит десятилетиями и не требует особого ухода.
Это единственный вид отделки каркасных домов, в котором отсутствуют швы и стыки.
В отличие от сайдинга или панелей, фасад выглядит цельным и аккуратным.
Сложность нанесения фасадной штукатурки каркасном доме заключается в том, что каркасный дом — это не каменное или монолитное строение. Деревянный каркас жёсткий и надёжный, но в нём, присутствуют незначительные подвижки и вибрации. В следствие чего могут возникать микротрещины на штукатурке, чтобы этого избежать необходимо организовать правильный «пирог» конструкции стен по технологии «мокрый фасад». Это когда штукатурные слои наносятся на утеплитель высокой плотности, который служит демпфером между несущей конструкцией и фасадной штукатуркой.
В своей практике я встречал два типа «пирогов» стен для нанесения штукатурки на фасад.
Первый тип – это «классический» пирог внешней каркасной стены с вентилируемым зазором:
По стойкам каркаса крепится ветрозащитная мембрана, далее бруски, обеспечивающие вентиляцию фасада. На бруски крепится жесткая плитная обшивка, как правило это фанера или ЦСП, но чаще всего ОСП. На плиты при помощи специального клея и дюбелей фиксируется жёсткий утеплитель (плотность 100 – 150 кг/м3) толщиной 50 мм.
Далее наносятся базовый и финишный слои штукатурки с обязательным применением армирующей сетки.
Во втором типе пирога стен отсутствует вентилируемый зазор и, в качестве жёсткого основания под плитный утеплитель используется ветрозащитный гипсокартон GTS-9 Vetonit (Gyproc).
Плиты GTS-9 используются в качестве внешнего ветро-влагозащитного слоя каркасных наружных стен. Сочетают в себе прочность OSB и паропроницаемые свойства ветрозащитных мембран, позволяют стенам «дышать», не препятствуя выходу влаги из конструкций.
Внимательный читатель спросит: «а почему бы не использовать плиты OSB вместо какого-то специального гипсокартона, как это делают, например, в Северной Америке?»
Дело в том, что коэффициент паропроницаемости ОСП намного ниже, чем у фасадного гипсокартона. При больших перепадах температур в толще стен может образовываться конденсат. Разница наглядна показана на графиках.
Таким образом использовать плиты OSB нужно только в системах вентилируемого фасада.
При использовании штукатурки вы получаете фасад, который визуально не отличить от каменного дома, но при этом сохраняете все плюсы каркасной технологии — тепло, экономичность и лёгкость конструкции
Подписывайтесь на мой telegram-канал Pro.Каркасники, где я делюсь своим опытом и даю практические советы, как как выгодно и без ошибок построить дом.
В первой части поста «Чем отделать фасад каркасного дома? Часть 1» речь шла про виниловый сайдинг, пластиковые панели, гибкую битумную черепицу, и металлический сайдинг.








Это стальные листы, имеющие профиль схожий со стоячим фальцем. Но не требующие специального оборудования для монтажа. Крепление между собой осуществляется путём защёлкивания фальцевых картин. От сюда название — «клик-фальц», «защёлка»)
🏮 В большинстве случаев такую отделку применяют на домах в современном стиле – «хай-тек» и «барнхаус». Где отсутствуют свесы крыши, либо предусмотрена плоская кровля. В сочетании с деревянной или кирпичной отделкой фасада смотрится стильно и современно, присутствует ВАУ-эффект!
⚓️ Монтируются фальцевые картины, как правило, вертикально (как продолжение скатов кровли), встречается также диагональный монтаж. Требуется высокая квалификация бригады строителей и опыт работы с таким материалом.
‼️ Существует важнейшее условие при работе с данным материалом — крепление панелей должно осуществляться с учетом температурного (линейного) расширения при нагревании на солнце. Крепёж не должен жестко фиксировать панель (должен быть зазор для движения). Это же правило касается и всех видов сайдинга.
🌊 Если при монтаже допустить подобные ошибки фасад будет выглядеть неаккуратно, будет наблюдаться волнистость и желаемого ВАУ-эффекта не достигнуть.
💸 По стоимости сравним с металлическим сайдингом, но за счет доборных планок все же отличается в большую сторону.
Панели клик-фальц отлично выглядит на фасаде, кровле. Строгие линии придают дому элегантность и минимализм. Хорошо смотрятся с матовыми покрытиями темных оттенков.







В отличие от клик-фальца, это более бюджетное решение, которое применяется на недорогих домах в стиле барнхаус или «шалаш».
Помимо общих недостатков, которые присущи все металлическим фасадам, имеет ряд особенностей:
🔘 Более простой монтаж, не требующий высокой квалификации рабочих. Видно стыки листов, так как крепление осуществляется внахлёст кровельными саморезами. В отличие от клик-фальца, где крепёж скрытый.
🔘 «Дешёвый» вид, в виду того, что профнастил внешне не сильно похож на фальцевое покрытие и чаще применяется для отделки промышленных зданий (цеха, гаражи, павильоны и тд.) или заборов.
Тем не менее, это достаточно распространённый вид отделки фасадов в виду своей неприхотливости, долговечности, он практически не требует ухода.








Представляет из себя полосы цементной плитки толщиной от 8 до 16 мм. В основном имитирует фактуру дерева, камня, штукатурки. Окрашивается однотонными красками либо наносится рисунок натуральной древесины.
Существует два типа такого сайдинга:
прямой – прямоугольные планки монтируется внахлест друг на друга, перекрывая тем самым крепёж;
клик – напоминает доску с четвертью, крепится специальным кляймерами.
Набрал большую популярность в последнее время за счет очевидных преимуществ по сравнению с другими видами фасадной отделки.
⚓️ Если сравнивать его с виниловым или металлическим сайдингом, то он значительно прочнее, не шумит от осадков.
🏋️♂️ Плотные тяжелые панели не выгибаются и не трескаются даже при сильном ветре.
💧 Фиброцемент не впитывает влагу, соответственно не подвержен грибкам.
🌡 Устойчив к резким перепадам температур.
Очевидных минусов данный материал не имеет, но о некоторых особенностях работы с ним, все же стоит рассказать.
🎨 Поскольку фиброцемент в массе не прокрашен, грунтуют и красят его на производстве. Со временем краска может отшелушиваться.
Относительно других материалов он значительно тяжелее. Это нужно учитывать на этапе проектирования.







Это отделочный материал из высшей ценовой категории. Они имитируют различные фактуры, такие как штукатурка, дерево, камень и кирпич, что позволяет создавать стильный и лаконичный внешний вид дома. Бывают различного формата - шириной, как правило 455 мм, длиной до 3-х метров.
Панели обладают значительным весом, поэтому для их монтажа требуется усиленная подсистема вентилируемого фасада.
Мировыми лидерами по качеству, бесспорно являются японские производители (Kmew, Nichiha). В нашей стране тоже производят достойного качества фасадные панели, которые неотличимы от натуральных отделочных материалов (Каньон, Триарм).
⚠️ Важно отметить высокую стоимость такой отделки и сроки доставки в виду сложной логистики.
Привлекательный внешний вид, неотличимый от натуральных отделочных материалов, в сочетании с долговечностью это основные плюсы данного вида фасадной отделки из-за которых фиброцементные панели так популярны в загородном строительстве.
Помимо этого панели обладают такими немаловажными преимуществами, как:
💧 Водонепроницаемость - не впитывают влагу из-за чего срок службы составляет более 50 лет;
🗿 Прочность - не боятся резких перепадов температур;
🧑🚒 Пожаробезопасность - не горючие, устойчивы к высоким температурам.
⛰ Натуральность - для углов и откосов не используются доборные элементы, углы запиливаются под 45 градусов алмазным диском.
🛠 Качество монтажа - в комплекте поставляются полиуретановый герметик и демпферная лента для защиты и надежного крепления.
В ассортименте производителей есть как угловые детали, так и дополнительные декоративные элементы (наличники, перемычки и тд).
Подписывайтесь на мой telegram-канал Pro.Каркасники, где я делюсь своим опытом и даю практические советы, как как выгодно и без ошибок построить дом.
Выбор фасадной отделки – это не только про красоту, долговечность, но и про стоимость. Исходя из конструктивных особенностей каркасного дома (основа – деревянный каркас), рассмотрим основные типы материалов:





1. 🌳 Отделка деревом (имитация бруса, планкен): Наиболее органичное решение для деревянного дома. Обеспечивает естественный микроклимат и эстетику. Периодически требует защитного ухода (шлифовка, покраска, удаление смоляных подтёков).
2. 🧱 Фиброцемент (сайдинг, панели): Популярное решение благодаря высокой прочности, негорючести, устойчивости к атмосферным воздействиям и широкому выбору фактур (под камень, кирпич, дерево). Минимальные требования к обслуживанию. Относительно высокая стоимость.
3. 💳 Полимерные материалы (виниловый сайдинг, ПВХ-панели): Экономичный и простой в монтаже вариант. Доступен в широкой цветовой гамме. Основные недостатки: риск температурной деформации, выцветание под УФ-излучением, хрупкость при низких температурах.
4. 🏚 Металлические системы (профнастил, фальцевые картины, металлический сайдинг): Отличаются высокой долговечностью и устойчивостью к выцветанию. Фальцевые панели обеспечивают современный вид. Возможны повышенная шумность при осадках и возможность механических повреждений (легко поцарапать или оставить вмятину).
5. 🏰 Битумная черепица для фасадов (Hauberk от Технониколь и аналоги): Легкий в монтаже материал с хорошей гибкостью, обеспечивающий неплохую имитацию кирпичной кладки. Долговечный, не требует особого ухода. Но материал на любителя.
6. 🥫 Фасадная штукатурка (по утеплителю высокой плотности): Такие дома, визуально, неотличимы от каменных. Необходимо иметь большой опыт и квалификацию, чтобы грамотно выполнить такую работу, поэтому отделка каркасного дома фасадной штукатуркой, большая редкость на данный момент. Риск появления трещин при нарушениях технологии делает этот вариант пока менее распространенным для каркасного строительства.
Перечисленные материалы представляют собой основные и наиболее востребованные на текущий момент решения для облицовки фасадов каркасных домов. Ниже постараюсь подробнее рассказать о каждом виде наружной отделки каркасных домов.







🏡 Пластиковые фасады в последнее время теряют популярность. Лет 10-15 назад это был, пожалуй, самый популярный вид отделки загородных домов. В первую очередь из-за низкой стоимости и простоты монтажа ПВХ-сайдинг преобладал на рынке загородного строительства.
За относительно небольшие деньги можно быстро отделать, как новый, так реконструировать старый дом. Легкий вес, система замкового соединения позволяют выполнять облицовку силами бригад невысокой квалификации.
ПВХ-сайдинг с полной, частичной или скрытой перфорацией отлично подходит для подшивки свесов кровли, террасы или крыльца. Такие софиты хорошо пропускают воздух, что позволяет вентилировать подкровельное пространство.
Ряд ключевых недостатков таких не позволяют широко использовать данную отделку:
➖ Выцветание: Со временем (особенно на южных фасадах) происходит потеря насыщенности цвета и глянца.
➖ Хрупкость при низких температурах: ПВХ становится ломким в сильные морозы, повышая риск повреждения при механическом воздействии и сильном граде.
➖ Линейное расширение: Значительное (до 1-1.5 см на 3м панели) требует строгого соблюдения правил монтажа (зазоры, свободная подвеска). Игнорирование приводит к появлению волн, разрывам замков.
Несмотря разнообразие цветов, дома, обшитые ПВХ-сайдингом выглядят «дёшево» и несовременно. Данный материал больше подходит для отделки небольших дачных построек или реконструкции фасадов деревенских домов.





Пластиковые фасадные панели более дорогие, но за счет различных фактур и окраски позволяют реализовать множество вариаций фасадов. Производители предлагают в основном коллекции каменных или кирпичных фактур.
По сравнению с сайдингом фасадные панели обладают увеличенной толщиной. Они относительно ударопрочные, стойки к механическим повреждениям, меньше подвержены деформациям.
Некоторым производителям действительно удалось воспроизвести близко похожие на натуральные материалы. Отделка домов, порой, напоминает настоящий камень или кирпич.
Такие панели подходят как для отделки цоколя, так и в целом дома, а комбинируя различные цветовые решения и фактуры можно добиться разнообразия и оригинальности.






Тем, кто предпочитает отделку дома «по кирпич» или «камень» подойдёт, как хорошая альтернатива пластиковым панелям.
Черепица, которая используется для покрытия кровли для фасада не подходит. Производители вывели на рынок отдельный продукт – штучную фасадную плитку. За счет уникальной формы и фактуры они создают иллюзию кирпичной или каменной кладки, сланцевой плитки или даже дранки.
Не смотря на искусственность кирпичной кладки, некоторые дома аккуратно смотрятся, и с определённого расстояния трудно отличить от натуральной кирпичной кладки.
➕ К основным плюсам я бы отнёс неприхотливость такого фасада, хороший срок службы и ремонтопригодность.
Фасады, покрытые битумной черепицей, не нуждаются в особом уходе. Повредить такой фасад сложно, но, если это произошло, то заменить повреждённые участки не составит большого труда.
Они не требуют капитальной реставрации - в отличие от деревянных фасадов, их не нужно ошкуривать и перекрашивать.
💒 Основа черепицы — стеклохолст, пропитанный модифицированным битумом и посыпанный каменной крошкой. Поэтому она хорошо защищает стены от косого дождя и мокрого снега. Помимо гидроизоляции стен, такая отделка обладает хорошей звукоизоляцией (в отличие от металлических фасадов).
К плюсам, также стоит отнести возможность отделывать криволинейные участки фасада, такие как эркеры, ризалиты, колонны, «башенки» и тд.
⚓️ Простота монтажа подобного вида фасадов позволяет выполнить отделку самостоятельно, не прибегая к услугам профессиональных бригад. Для качественного монтажа требуется ровное сплошное основание из листов фанеры или ОСП с обязательной организацией вентилируемого зазора. Далее, следуя инструкции производителя, с помощью гвоздей с широкой шляпкой элементы прибиваются к основанию строго соблюдая горизонтальный уровень.
Из-за необходимости обшивать весь дом плитами ОСП, нельзя относить такие фасады к бюджетным решениям. На мой взгляд такая черепица идеально подходит для отделки цоколя. «Кирпичный» цоколь даёт хороший визуальный эффект.







🖌 Отличается от винилового большим разнообразием профилей и расцветок. Помимо горизонтального монтажа, есть модели, которые монтируются вертикально. При сочетании с горизонтальным сайдингом может стать интересным дизайнерским решением. Естественно, он прочнее и менее подвержен температурным деформациям. Долговечнее винилового – производители дают гарантию на некоторые модели до 10 лет.
🍽 Тем не менее, можно легко поцарапать или оставить вмятину. Как и всякая металлическая отделка довольно шумная во время осадков.
💸 В три-четыре раза дороже пластикового сайдинга. А некоторые модели с принтами, имитирующими деревянные поверхности сравнимы по цене с крашенной доской или фиброцементным сайдингом.
Я не наблюдаю большой популярности данного вида отделки фасадов в ИЖС. Металлический сайдинг более распространен в промышленном или коммерческом строительстве.
Подписывайтесь на мой канал Pro.Каркасники, где я делюсь своим опытом и даю практические советы, как как выгодно и без ошибок построить дом.
Чтобы интерьер дома выглядел эстетичнее, инженерные коммуникации прокладываются скрытым способом.
🛁 Трубы водоснабжения из сшитого полиэтилена укладываться по полу в толще обрешётки. Обрешётка из доски 45х95 с шагом 380 мм, такой шаг специально рассчитан под укладку чернового пола из листов фанеры.



🚰 Все трубы разложены лучевым способом, таким образом каждая точка водоразбора (смеситель, унитаз, бойлер и т.д.) подключается отдельной трубой, которая идет напрямую от распределительного коллектора. Такая схема подразумевает больший расход трубы по сравнению с последовательной (тройниковой) схемой.
Отсутствие соединений в стенах и перекрытиях снижает шансы на протечку практически до нуля.
После опрессовки латунными фитингами создается герметичный, неразъёмный стык, который прослужит десятилетиями и не требует доступа или обслуживания.
📄 Все коммуникации идут в техническое помещение, где объединяются в коллекторные группы и, в дальнейшем будет собран водоразборный узел.
Разводка канализационных труб производится под домом. Трубы в утеплителе крепятся на подвесах с уклоном 20 мм на 1 м в сторону септика.
Считается, что трубы канализации не замерзают в зимний период, так как "жидкость" в них не застаивается из-за уклона. Но я настоятельно рекомендую оборачивать горизонтальные участки труб в утеплитель, так как это копеечное решение обезопасит возможных проблем при сильных морозах.
⚡️ Электрической проводке нужно уделять особое внимание, так как каркасные дома имеют повышенную пожарную опасность из-за деревянных конструкций.
Для обеспечения безопасности необходимо соблюдать некоторые правила проектирования и монтажа проводки и щитового оборудования.
1️⃣ Точный расчет потребителей электроэнергии и грамотное разделение их по фазам во избежание перекоса.
2️⃣ Использование качественного кабеля, изготовленного по ГОСТу (ВВГнг(А)-LS, ППГнг(А)-HF или NYM).
Сечение кабеля:
⏩ Освещение – 1,5 мм² (10 А).
⏩ Розетки – 2,5 мм² (16 А).
⏩ Мощные электроприборы (варочная панель, котёл, водонагреватель) – 4–6 мм² (25–32 А).
3️⃣ Все провода протянуты гофры трубу из ПВХ не поддерживающего горение.
4️⃣ Коммутация проводов осуществляется только в не горючих подрозетниках либо распаечных коробках.
5️⃣ Соединение кабеля осуществляется опрессовкой обжимными гильзами, никаких скруток или клеммников!
6️⃣ Использование надежного оборудование электрического щита, который имеет тройную защиту.


Помимо автоматических выключателей, собранных в группы и УЗО в щиты устанавливаются реле напряжения.
Оно отключает электропитание при опасных скачках напряжения, предотвращая поломку техники и пожары. В загородных домах оно особенно важно:
✅ при высоком напряжении (270–300 В) – может сгореть электроники (холодильник, компьютер, котёл).
✅ при низком напряжении (150–180 В) – могут выйти из строя компрессоры (насосы, кондиционеры).
✅ при обрыве нуля в 3-фазных сетях – приводит к скачку до 380 В, сжигая всё подключённое.
Только при комплексном подходе к проектированию и прокладке электрических сетей можно добиться максимальной безопасности будущего дома!
Еще на этапе фундамента был смонтирован комплект заземления. Он представляет из себя набор из трех стальных штырей, которые после погружения в грунт с помощью ударного перфоратора образуют контур заземления. Провод заземления заводится в дом вместе со всеми коммуникациями
💨 Как правило, спроектировав и построив себе загородный дом, о вентиляции задумываются в последнюю очередь.
Из инженерных коммуникаций, необходимых для полноценного функционирования дома вентиляции уделяют меньше всего внимания. Хорошо утеплённый дом, с грамотной пароизоляцией и ветрозащитой представляет из себя замкнутый контур. Воздух внутрь помещений попадает только через открытые окна и двери.
Отсутствие вентиляции в таком доме - серьёзная ошибка и головная боль в прямом смысле, которая приводит к большим проблемам:
💦 Высокая влажность - при влажности 60-70% на окнах выпадает конденсат. Влажная среда — это идеальные условия для роста плесени и грибка.
🤕 Духота - вызывает сонливость и головные боли. В душном помещении некомфортно находиться, буквально хочется выбежать на свежий воздух.
😓 Дискомфорт - постоянное ощущение спертости воздуха, неприятные запахи.
Для комфортных условий проживания в доме необходимо организовать систему вентиляции.
Оптимальным и недорогим решением является принудительная вентиляция.
Это когда приток воздуха осуществляется через стеновые проветриватели. Такие проветриватели устанавливаются в спальнях и гостиной. Удаление воздуха происходит принудительно, через вентиляционные трубы, расположенные в санузлах и техническом помещении.
Ещё на этапе сборки силового каркаса во внешние стены были установлены закладные трубы. После внутренней отделки на них будут установлены клапаны для регуляции подачи воздуха, а снаружи решетки, покрашенные в цвет фасада.
💨 В вентиляционных трубах, которые расположены в санузлах будут установлены канальные вентиляторы, для создания отрицательного давления
Канальные вентиляторы, расположенные в санузлах, будут создавать отрицательное давление и свежий воздух через стеновые проветриватели будет поступать в дом, создавая комфортные условия для проживания.
Подписывайтесь на канал Pro.Каркасники, где я делюсь своим опытом и даю практические советы, как как выгодно и без ошибок построить дом.
🏠 Дом планируется для круглогодичного проживания, поэтому, чтобы снизить теплопроводность внешних стен, снаружи идёт дополнительный слой перекрёстного утепления.
Бруски 45 мм набиваются горизонтально, между ними вставляется слой утеплителя повышенной плотности. Таким образом общая толщина утепления составляет 200 мм.
‼️ Тем самым мы исключаем промерзание стоек несущего каркаса и сокращаем теплопотери на 30%.








⚠️ Для того, чтобы утеплитель правильно работал его необходимо защитить снаружи от продувания мембраной.
💨 Она обеспечивает ветрозащиту, препятствуя продуванию утеплителя и снижая теплопотери, позволяет водяным парам выходить из утеплителя, предотвращая накопление влаги внутри конструкции и образование плесени.




Полотна проклеиваются между собой битумным герметиком.
На фасаде мембрана подшивается контрбруском для организации вентилируемого пространства, а на цокольном перекрытии доской для надежного поддержания утеплителя.
Цокольное перекрытия снизу обязательно закрывается металлической сеткой. Она не только защищает утеплитель, но и препятствует проникновению грызунов в дом. 🐭
В своём telegram-канале я выложил чек-листы для проверки утепления и защиты утеплителя в каркасном доме. Используя их вы сможете самостоятельно проконтролировать качество утепления вашего дома.



🏛 Одним из ключевых элементов качественного и долговечного каркасного дома является пароизоляция! Она обеспечивает защиту утеплителя и деревянных конструкций от влаги, исходящей изнутри помещения.
🏮 Пароизоляция предотвращает проникновение водяного пара из тёплого, влажного воздуха внутри дома в конструкцию стен, пола и крыши. Особенно это актуально в холодное время года, когда разница температур между внутренней и внешней сторонами ограждающих конструкций может достигать 40-50 градусов.
❓ Что будет, если не сделать пароизоляцию или сделать её некачественно?
🔘 Намокание утеплителя даже 2–3% может снизить теплоэффективность на 30–40%, что негативно скажется комфорте и затратах на отопление.
🔘 Постоянное увлажнение древесины приводит к её гниению и потере несущей способности.
🔘 Не говоря уже про появление плесени и грибка.
Что важно при устройстве пароизоляции:
🎗 Использовать профессиональную пленку;
🎀 Укладывать герметично, с проклейкой всех швов пароизоляционной лентой;
⛏️ Не допускать механических повреждений.
🗝 Размещать только на внутренней стороне ограждающих конструкций.
Отсутствие или некачественный монтаж пароизоляционной плёнки гарантированно приводят к серьезным проблемам в эксплуатации дома.



Наглядный пример того, как выглядит примыкание каркасной перегородки к внешней стене.
🧾 На внешней стене пароизоляционная плёнка, проклеенная специальной лентой между собой и к закладным, тем самым создаётся непрерывный контур пароизоляции.
📎 На перегородке паробарьер, как видно, стыки полотен ни чем не проклеены, так как основная задача этой плёнки не допустить попадание пыли от утеплителя в жилые помещения.
Подписывайтесь на канал Pro.Каркасники, где я делюсь своим опытом и даю практические советы, как как выгодно и без ошибок построить дом