Серия «Дом-ракета»

6800

Результат превзошёл ожидания

Серия Дом-ракета

UPD:

Скачать Эскизный проект, а также Рабочую документацию и подробную смету можно в моём Telegram-канале Pro.Каркасники

Основной этап стройки закончен, бригада уехала.

Итого, без учета фундамента, строительство дома заняло два месяца и четыре дня.

Пока позволяла, погода занимался малярными работами - снаружи покрасил столбы и ограждения. Внутри, с помощью краскопульта, нанес белую краску на стены и потолок в гостиной.

Приехали ребята, устанавливать станцию локальной очистки. Я же, тем временем, соединил под домом канализационные трубы с нужным уклоном в сторону септика.

Далее занялся электрикой. Смонтировал и подключил заранее собранный щиток, соединил все провода, установил розетки и выключатели. Расключил освещение.

Зимние пейзажи

Комнаты

Кухня-гостиная

Атмосферные вечерние фото

Показать полностью 32
90

Нюансы отделки каркасного дома1

Серия Дом-ракета

Поскольку внутри дома диффузия минимальна, то на внутренних перегородках использовал паробарьер с низким значением Sd (коэффициент сопротивления паропроницаемости) для беспрепятственного движения пара внутри дома.

Все швы, так же проклеены лентой Дельта.

Также установил выводы канализации. Разводка пройдет под домом, так как отрицательные температуры ей не страшны.

Ввод воды в дом из колодца в утеплителе, плюс греющий кабель длиной 3 метра. Помимо этого еще силовой кабель, закладная под оптоволокно и питание станции локальной очистки.

Все коммуникации в доме скрытые - разводка воды в полу. Для этого, в обрешетке делал пропилы и укладывал трубы Рехау из сшитого полиэтилена в изоляции. Чтобы при монтаже чернового пола из фанеры защитить трубы от случайного самореза, крепил металлическую ленту.

Разводка кабеля по толку, впоследствии закроется натяжным потолком. Все розетки и выключатели, также скрытого монтажа.

После прокладки кабеля начали обшивать стены имитацией бруса. Работа шла быстро, так как монтаж производился с помощью гвоздезабивного нейлера.

Смонтировали вагонку на потолок в кухне-гостиной. Для этого пришлось собирать дополнительные леса внутри дома.

Снаружи дом отделан фасадной доской, крашенной на производстве. Это не обычная имитация бруса, хотя выглядит похоже, профиль доски называется UYV. Изделия строгаются таким образом, чтобы лицевая поверхность оставалась шершавой, для нанесения более толстого слоя краски, ведь, чем больше краски, тем покрытие долговечнее.

Крепеж использовали специальный - самозенкующиеся саморезы с маленькой шляпкой. Они надежно крепят доски и их почти не видно на фасаде.

При монтаже окон выяснилось, что ширины отливов недостаточно, пришлось заказывать новые с шириной полки 200 мм. Также обнаружилась ошибка в узле монтажа наружных откосов. Ребята быстро нашли решение.

Цоколь закрыли обрезным бруском 50х50, красили его по месту.

Атмосферное фото, если не обращать внимание на строительный мусор). Видно, что начали устанавливать столбы ограждения. Далее настил из палубной доски.

Показать полностью 24
38

Чтобы дом был тёплым, его нужно утеплить!

Серия Дом-ракета

По завершении сборки несущего каркаса, сразу приступили к работам над кровлей.

Порядок работы такой: первым делом монтируются капельники для отвода конденсата, потом расстилается гидро- ветрозащитная мембрана и приклеивается к капельнику, согласно инструкции по монтажу металлочерепицы.

Далее брусок по стропилам, который формирует вентилируемый зазор и обрешетка из дюймовки с шагом 350 мм. В зоне ендовы и на свесах, где концентрируется максимальная нагрузка от веса снега - обрешетка сплошная.

Для защиты от проникновения птиц и насекомых в подкровельное пространство установили специальную сетку.

Смонтировали крюки для водосточных желобов и накрыли карнизной планкой.

Металлочерепицу резали специальными высечными ножницами типа "бобëр", так как любой производитель металла запрещает резать болгаркой.

После монтажа кровли приступили к утеплению.

На лаги перекрытия снаружи закрепили ветрозащитную мембрану, сетку от грызунов и зашили шаговой обрешеткой.

На стены прибили бруски под дополнительный слой утеплителя повышенной плотности.

Для изоляции внешнего контура использовал пленки и мембраны Juta, перехлесты мембраны проклеивали фасадным герметиком.

Заезжал "коллега", снимали ролик о доме для его youtube-канала

Показать полностью 10 1
122

Каркас - основа дома!

Серия Дом-ракета

Из-за изменения в проекте потребовалось докрутить 3 сваи под террасу и спилить лишние, "похоронив" их в грунте.

Параллельно с этим заказал пиломатериал окна и крепёж. С доставкой древесины вышло не все так, гладко, как хотелось бы. С первой доставкой, манипулятор не вписался в ворота и свалился в канаву завалив забор. Со второй доставкой не смог самостоятельно выехать с участка, пришлось вызывать трактор(

Ростверк собирали из тройной обрезной доски 50х200 мм, обработанной Неомидом. Сверху обвязка из строганной 45х145. Сбили все гвоздями и стянули шпильками. Конструкция, без сомнения, получилась крепкой и монолитной

Давно мечтал сделать такое фото)

Давно мечтал сделать такое фото)

Шаг лаг цокольного перекрытия стандартный 630 мм, с усилением под несущие стены. На террасе шаг 400 мм под террасную доску. Полосы белой ткани между ростверком и перекрытием, это закладные гидро- ветрозащитной мембраны. Впоследствии к ним будет удобнее крепить остальной материал.

При сборке стен, сразу закладывали мин.вату в труднодоступные места, чтобы не испытывать неудобства при дальнейшем утеплении. Решение неоднозначное, так как, при первом дожде этот утеплитель намокает и его нужно менять.

Чтобы наверняка исключить промерзание стен, проложили льняной джут во всех сдвоенных соединениях досок.

Когда собирали стены, ребята ошиблись в одном размере и фасадная стена получилась выше на 80 мм. Заметили это, когда уже подняли внешние стены и стало понятно, что они на разных высотах. Было принято решение не переделывать, а "спрятать" выступающую часть между стропилами. Но ребята, меня не послушали и сами все исправили.

Стропильная система комбинированная. В зоне кухни-гостиной и на террасе распор компенсируется опиранием стропил на несущие балки, а на чердаке эту функцию выполняют затяжки.

Затяжки надёжно крепятся к стропилам шпильками М12. Не забываем прокладывать полосы пароизоляции, для создания непрерывного контура паробарьера.

Показать полностью 31
40

Идеального проекта несущ...

Серия Дом-ракета

Предыдущий пост наделал много "шума" и даже попал в горячее. Вот уж чего не ожидал. Спасибо всем за комментарии и дельные советы. Так или иначе, идем дальше...

Изначально, планировал одноэтажный дом с мансардой и двусветным пространством в зоне кухни-гостиной. По архитектуре ближе к барнхаусу с простой двускатной кровлей. Назначение - гостевой дом с баней. Внутри большое двусветное пространство и лофт на втором этаже.

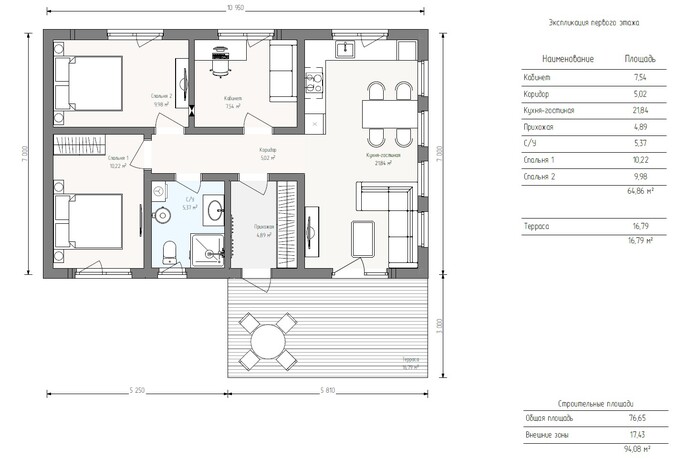
В результате, перепробовав с десяток различных планировок, остановился на варианте с тремя комнатами, кухней-гостиной и немаленькой террасой.

Из-за выступающей террасы и сложной кровли, на мой взгляд, дом получился визуально более интереснее.

На архитектуру и планировку дома также повлияли значительный перепад участка и большое количество деревьев, которые хотелось сохранить.

Показать полностью 20
49

Три аргумента в пользу винтовых свай

Серия Дом-ракета

1: на предполагаемом пятне застройки имеется значительный перепад высот, порядка 1 метра, соответственно плитные и ленточные фундаменты отпадают.

2: забивные сваи – дорого.

3: было огромное желание самому смонтировать фундамент.

Поэтому выбор сделан, приступаем…

Три аргумента в пользу винтовых свай

Всего 32 сваи, из них 24 под сам дом, 8 под крыльцо и лестницы. Из-за сильного перепада высот пришлось заказать 6 удлинителей по метру. Поначалу вкручивали вдвоём, сваи шли медленно и трудно. Отсутствие опыта сыграло свою роль - в результате чего, угловая свая зашла под углом. Оставлять в таком положении, конечно, было нельзя. Пришлось выкручивать и монтировать заново, сместив расположение сваи. Из-за этого длина строения уменьшилась на 300 мм🤷‍♂️🤨

Начинали с угловых свай, потом натягивали шнурку и по ней закручивали остальные винты.

Лето выдалось крайне дождливым, грунт переувлажнен, поэтому процесс закручивания свай больше напоминал прохождение полосы препятствий.

На видео показан процесс приваривания удлинителей свай.

Для защиты внутренней полости от коррозии и, соответственно, увеличения срока службы свай, их необходимо заполнить бетоном. Для ускорения процесса, изначально планировал засыпать сухой пескобетон. Но в результате отказался от этой затеи)

Заливал обычный раствор без щебня, так легче размешивать и удобнее заливать в полость. Расход в зависимости от длины - примерно мешок на одну сваю.

По ощущениям заполненная свая намного жёстче полой.

Чтобы придать сваям пространственную жесткость и связать их в единую конструкцию, смонтировал металлические укосины из уголка 32 мм. Для этого приварил к сваям проушины и закрепил уголки болтами крест накрест. При необходимости их легко можно будет снять.

Подобное решение необходимо применять при высоте цоколя свыше 70 см, т.к. оно позволяет устранить "эффект шатания" дома.

Параллельно установил контур заземления, проложил на глубине 40 см силовой кабель в трубе пнд, а также закладную под оптоволокно для интернета.

Показать полностью 8 5
18

Три вида забора это много?

Серия Дом-ракета

Расскажу и покажу, как я собственными силами устанавливал забор на своем участке.

До майских праздников привезли столбы для забора, калитки и поперечины. Бензобуром готовили отверстия, выставляли по уровню столбы и заливали заменитель бетона Fast2k - по сути это монтажная пена, при смешивании двух компонентов она быстро расширяется, закрепляя намертво столб в грунте. Штука интересная, работать с ней интересно - реально экономит время и силы, деньги не экономит😁

Параллельно с установкой столбов, приехали ребята и начали ставить откатные ворота. Работа тяжёлая, сложная и ответственная, поэтому решил не рисковать и доверил эту работу профессионалам.

В общей сложности, установка столбов заняла 5 дней, пришлось помимо друзей, привлекать наемных работников.

Втроём с друзьями за один день смонтировали профлист на две стороны, граничащие с соседними участками.

С друзьями работать легко и приятно) профлиста, кстати не хватило ровно 20 см😒 пришлось закрывать крашенным штакетником.

На сторону забора, которая выходит к лесу, я по совету друзей решил монтировать сварную сетку (изначально хотел профлист🤦‍♂️) получилось очень хорошо, я доволен

Закупил сухую строганную доску на фасадную часть забора. 100х40 - поперечины, 90х20 - штакетины. Пилил, грунтовал и долго красил. Погода не позволяла - в середине лета, по сути началась осень, дожди и сильный ветер не давали нормально работать(

Погода, так и не дала нам нормально покрасить штакетины, пришлось крепить только прогрунтовав. Красил в два слоя tikkurila ral7016 уже по месту.

К концу августа забор начинает приобретать законченный вид. Устанавливаю и крашу второй ряд штакетника.

В итоге, получилось три вида забора на одном участке!

Показать полностью 23 2
39

Первая стройка в жизни

Серия Дом-ракета

Вторую половину 2018 года, отойдя от ожогов борщевиком принялся за строительство временного жилья. Решив, что 70 000 на покупку деревянной бытовки это слишком дорого, начал первую стройку в своей жизни. Забегая вперед, скажу, когда сумма на материал перевали за 150 000, я перестал считать)

«Бытовка» представляла из себя домик 2,5 на 6 метров такой же по площади террасой. По конструктиву, это деревянный каркас с утеплителем: стены 50 мм, перекрытия 100 мм.

Снаружи отделка обрезной доской, внутри, для придания жесткости, обшил плитами QuickDeck

В последствии сделал навес для террасы из поликарбоната. Домик получил законченный вид.

Показать полностью 24
Отличная работа, все прочитано!

Темы

Политика

Теги

Популярные авторы

Сообщества

18+

Теги

Популярные авторы

Сообщества

Игры

Теги

Популярные авторы

Сообщества

Юмор

Теги

Популярные авторы

Сообщества

Отношения

Теги

Популярные авторы

Сообщества

Здоровье

Теги

Популярные авторы

Сообщества

Путешествия

Теги

Популярные авторы

Сообщества

Спорт

Теги

Популярные авторы

Сообщества

Хобби

Теги

Популярные авторы

Сообщества

Сервис

Теги

Популярные авторы

Сообщества

Природа

Теги

Популярные авторы

Сообщества

Бизнес

Теги

Популярные авторы

Сообщества

Транспорт

Теги

Популярные авторы

Сообщества

Общение

Теги

Популярные авторы

Сообщества

Юриспруденция

Теги

Популярные авторы

Сообщества

Наука

Теги

Популярные авторы

Сообщества

IT

Теги

Популярные авторы

Сообщества

Животные

Теги

Популярные авторы

Сообщества

Кино и сериалы

Теги

Популярные авторы

Сообщества

Экономика

Теги

Популярные авторы

Сообщества

Кулинария

Теги

Популярные авторы

Сообщества

История

Теги

Популярные авторы

Сообщества