1530

Как застройщики Уфы продают квартирки

Тёша моя в далёко 2018 купила квартиру в строящимся доме в Уфе. Небольшая, уютная евро двушка с лоджией в хорошем районе. Сделка прошла хорошо и вот всё идёт к сдаче. Решали посмотреть на квартирку сходить а там в общем лоджию украли. Парнишка говорит они только с 4 этажа начинаются, а у вас 3. Но мы ж покупали то с ней, и в договоре указано так и при покупки тоже на плане она имеется.
Сказали что якобы это просто менеджер ошибся, человеческий фактор. Ну и на этом всё.
Предложили расторгнуть договор и забрать деньги. Те деньги что были 2 почти 3 года назад. Потерять время и собственно сами деньги.
Такое вот отношение к людям в Первом Тресте в городе Уфа.
Подскажите что можно сделать с этим сделать, может кто был в такой ситуации и как решали,

Лига Недвижимости

2.9K постов5.8K подписчиков

Правила сообщества

Ну тут как обычно: оскорбления там всякие, поведение плохое, флуд и все дела,короче ничего мудрёного.

Вы смотрите срез комментариев. Показать все
392
Автор поста оценил этот комментарий

в договоре лоджия есть? обращайтесь в суд и требуйте компенсацию. вы же метраж покупали, а вам лоджию не сделали. пусть компенсируют разницу между вашей квартирой и квартирой над вами, с лоджией

раскрыть ветку (173)
20
DELETED
Автор поста оценил этот комментарий

Специально под топом!

Что такое евро двушка?

раскрыть ветку (78)
115
Автор поста оценил этот комментарий
Это когда у тебя двушка, только вместо 2х полноценных комнат и кухни, только 2 комнаты, в одной из которых кухня. Фактически однешка. Только евро двушка звучит лучше чем однешка, согласитесь?
раскрыть ветку (68)
96
DELETED
Автор поста оценил этот комментарий

"однешка", у вас шикарный польский

раскрыть ветку (2)
11
Автор поста оценил этот комментарий
Иллюстрация к комментарию
3
Автор поста оценил этот комментарий
Пшек пшек пердоле однешка
3
Автор поста оценил этот комментарий

а чем тебе полторушка не устроила, демон?

13
DELETED
Автор поста оценил этот комментарий
Нет. Это совсем не одно и тоже. У меня гостиная с кухней -- это полноценная большая комната с диваном, проектором, балконом и отделом для кухни
раскрыть ветку (56)
45
Автор поста оценил этот комментарий

Но не двушка! Двушка это 2 комнаты и кухня. А у вас однушка.

раскрыть ветку (55)
21
Автор поста оценил этот комментарий

При всём увОжении, помещение в таком случае называется "кухня-гостиная", а не кухня. И планировка называется не просто "двушка", а "евро-двушка". Не вижу противоречий. Есть существенная разница в площади и комфортности между однушкой и евро-двушкой, однушка попросту не подразумевает наличие гостиной, это две комнаты, условно: поесть и поспать. Многие же не хотят отделять кухню от гостиной перегородкой, и отлично, что есть такие варианты на рынке. У них – отдельное название. Вопрос, что вас не устраивает в терминологии?) Должна называться "евро-однушка" площадью ~ 70 км.м? Помимо банального "нет стены" есть такие понятия, как функциональное зонирование, например, и гостиную в случае необходимости можно использовать как спальное место, это полноценное место отдыха. Это комната, поэтому двушка. Но не отделена от кухни, поэтому евро. ???

раскрыть ветку (53)
39
Автор поста оценил этот комментарий
Есть однушки в 30 квадратов, есть в 50. Но однушками они от этого быть не перестают)
раскрыть ветку (10)
1
Автор поста оценил этот комментарий

Если мы различаем студии и однушки, одинаковые по площади, и один из ключевых признаков различия – отсутствие перегородок, почему мы не можем различать двушки и евро-двушки?

раскрыть ветку (7)
16
Автор поста оценил этот комментарий

Потому, что, как раз в Европе, основным отличием квартир является площадь и колличество спальных комнат.

ещё комментарии
ещё комментарий
1
Автор поста оценил этот комментарий
Ну вот есть BMW 5 а есть запорожец, по сути это автомобиль, но разница же есть?)
раскрыть ветку (1)
1
Автор поста оценил этот комментарий
Вот есть правая рука, а есть левая, по сути это рука, но разница же есть? )
24
Автор поста оценил этот комментарий
ну следуя вашей логике, моя трешка с кухней в 26 квадратов должна называться евро-четырешкой?
раскрыть ветку (16)
2
DELETED
Автор поста оценил этот комментарий
Нет.
Должна называться трёхкомнатной квартирой буржуев)
0
Автор поста оценил этот комментарий
Квартира вся метров под 100 наверное?
раскрыть ветку (1)
0
Автор поста оценил этот комментарий
93.6
ещё комментарии
0
Автор поста оценил этот комментарий

Только в том случае, если у вас там помещается гостиная.

Автор поста оценил этот комментарий
Да
раскрыть ветку (1)
0
Автор поста оценил этот комментарий
Ну заебись че)
6
Автор поста оценил этот комментарий

По факту эта большая кухня и спальня. Просто большую кухню риэлторы стали называть кухня-студия. А если еще и спальня есть - то евродвушка. Звучит красиво просто)) В документах то все равно указана как однокомнатная, если не ошибаюсь.

раскрыть ветку (3)
3
Автор поста оценил этот комментарий

Риэлторы? Ёбаные риэлторы, ненавижу, блядь, риэлторов.

2
Автор поста оценил этот комментарий
Да, в документах все нормально прописано, без этих сраных маркетинговых приставок.
Мы продаем квартиры от застройщика, никаких евродвушек не выдумываем. Друг собрался покупать квартиру, там с приставкой евро, но кухня такой же площади как у нас
0
Автор поста оценил этот комментарий

У меня евродвушка, в документах указана как двухкомнатная

3
Автор поста оценил этот комментарий
Тогда у меня евро трешка. Ибо кухня у меня по размерам 1в1 с о спальней
раскрыть ветку (2)
0
Автор поста оценил этот комментарий

Не совсем, в "евро" отдельно выделена кухня-ниша,  так что она по документом действительно как бы на комнату больше

Автор поста оценил этот комментарий

Не вижу в таком размере ничего удивительного, но есть и другие особенности планировки, позволяющие разместить полноценную гостиную в условиях совмещения с кухней, не только метраж. И сама по себе гостиная по идее не меньше, чем спальня.

Автор поста оценил этот комментарий
А туалет и ванная для вас тоже комнаты? Тогда у вас вообще четырехкомнатная квартира! И это мы ещё не знаем насколько большой у вас коридор!
раскрыть ветку (17)
3
Автор поста оценил этот комментарий

И не очень понимаю, причём здесь "моя квартира") Я живу в частном доме и работаю архитектором, поэтому немного остро воспринимаю вопросы по профессии. Есть более сложная классификация, чем "однушка" и "двушка", обозначающая особенности планировки. Желание упрощать по максимуму мне не присуще и я не понимаю, что мешает евро-двушки называть евро-двушкой, если она отличается и от однушки, и от двушки. Другое дело, что многие обычную кухню пытаются в это понятие втиснуть, но это уже недобросовестные маркетологи, а не типология жилья "евро-двушка" как таковая. И в наших реалиях встречается и то, и другое, просто за разные деньги)

раскрыть ветку (15)
5
Автор поста оценил этот комментарий

Почему бы в таком случае, не называть подобные квартиры еврооднушки, но нужно же припизднуть иначе не продать.

раскрыть ветку (5)
Автор поста оценил этот комментарий

Я уже писал об этом. Потому что вторая комната, блин, есть. Как правило она выполняет роль гостиной. Дело не в стене, а в площади и функции. Но и стену можно поставить и сделать детскую, например, потом, а кухня останется отдельно, самостоятельной кухней! А то пространство,  что делает её "евро" – не кухня. Это вторая комната, отдельно от спальни, но без перегородки с полноценной кухней. Поэтому двушка... Потому что это не однушка.

раскрыть ветку (4)
1
Автор поста оценил этот комментарий

я правильно понимаю, что если в моеё двушке сломать стену между комнатой и кухней, получится та самая евро-двушка?

раскрыть ветку (1)
0
Автор поста оценил этот комментарий

Не всегда в евродвушке есть дополнительное окно, чтобы получилась полноценная двушка.

раскрыть ветку (1)
3
Автор поста оценил этот комментарий
Двушка это две мать его комнаты! А все эти названия "евро", " финский" и прочее - в РФии от лукавого, для пиара и завышения цены.
раскрыть ветку (6)
3
Автор поста оценил этот комментарий

Понятно. Так и передам. И попрошу студию называть нулёвкой, потому что остальное "от лукавого"))

раскрыть ветку (4)
2
Автор поста оценил этот комментарий
Ну а в чем он не прав?
Я вот одинокий МЧ, смотрящий себе квартиру, захожу на сайт, смотрю
Вижу в интересующей меня новостройке: однокомнатная квартира, двухкомнатная квартира, опять двухкомнатная квартира но цена ниже на 400 к, а метров не шибко меньше чем у другой двухкомнатной, захожу смотреть планировку, а там студия с одной комнатой, но ее агенство толкает как двухкомнатную.
Для меня евродвушка это вообще студия с комнатой, но назвать да и в голове уложить ее как двухкомнатную ну никак
раскрыть ветку (1)
0
Автор поста оценил этот комментарий
Студия это вообще херь какая-то. Давайте ещё сортир и ванную комнату без стен запроектируйте и продавайте. На материалах сэкономите, а территории впарите "свободную евро-студио-планировку"!
раскрыть ветку (1)
1
Автор поста оценил этот комментарий

Цена от площади зависит , а не от планировки

1
DELETED
Автор поста оценил этот комментарий
Ничего, что сразу на ты?

Архитектор значит говоришь.
Как объяснишь строительство якобы круглых (но угловатых) ЖК с квартирами у которых комнаты 5-угольные?
раскрыть ветку (1)
Автор поста оценил этот комментарий

Не очень понимаю, как это связано с темой. Нужно смотреть конкретные проекты, планировки. Пятиугольные комнаты встречаются крайне редко, я бы назвал это проектной ошибкой, такое пространство как правило плохо воспринимается. Внутреннее вроде санузла – норм, например, когда скошенная стена в санузле образует более раскрытую гостиную, и образовавшееся пространство гостиной занимают растения, скульптуры, новогодние ёлки и проч., То есть, комната в целом прямоугольная, встают мебель, кухонный гарнитур, но к коридору, где санузел, одна стена небольшим участком посередине заворачивает. Смотреть нужно.

0
Автор поста оценил этот комментарий

Наличие санузла, как и кухни – обязательное условие для любой квартиры. Именно поэтому они не учитываются в нумерации комнат. Но кухня и кухня-гостиная – разные вещи. И название не двушка, а евро-двушка. Есть оттенки между чёрным и белым?

0
Автор поста оценил этот комментарий
Однёшка!
4
DELETED
Автор поста оценил этот комментарий

Евродвушка- это однушка с полноценной спальней и кухней-гостиной, которую можно, при помощи перегородки, разделить на комнату и небольшую кухню.

раскрыть ветку (1)
10
Автор поста оценил этот комментарий

Получится хрущ?

2
Автор поста оценил этот комментарий

Получается студия + комната.

0
Автор поста оценил этот комментарий
Самое занятное, что в тех самых Европах двушка-это когда two bedrooms, никакие комбо кухни с комнатой за таковые не считаются)
ещё комментарии
27
Автор поста оценил этот комментарий

Это способ продать однушку по цене двушки ))) Что самое забавное это приставка евро, хотя в европе квартиры измеряют количеством спален а не комнат. Ну тут видимо маркетологи пошли по пути знаменитого евроремонта.

раскрыть ветку (1)
0
Автор поста оценил этот комментарий

Абсолютно верно.

8
Автор поста оценил этот комментарий

Объясню, как человек, который ежедневно работает с этими крутыми терминами.
История почти как с евроремонтом, то есть в европах в термине есть смысл, а в россиях - только маркетинговая составляющая.

Для ЛЛ - евродвушка, ровно то же самое, что и полуторка, и то же самое, что и еврооднушка - планировка, при которой в квартире есть (помимо прихожей и санузла) маленькая жилая комната и большая кухня-гостинная, где есть возможность разместить спальное место.
ЭТО, БЛИН, ОДНОКОМНАТНАЯ КВАРТИРА, как бы застройщики и прочие заинтересованные в продаже люди ее не выставляли.

Историческая справка:
Изначально квартиры планировались по такой логике: небольшая кухня чисто для трапез + большие жилые комнаты, где жильцы и проводили бОльшую часть времени нахождения в квартире.
Современный человек при наличии планшетов и ноутбуков переехали жить на кухню. Поэтому возникли маленькие комнаты для сна и большие кухни-гостинные для жизни.
Но это как были односпальные и двухспальные квартиры, так они такими и остались.

раскрыть ветку (1)
0
Автор поста оценил этот комментарий

Если к одной комнате и кухне добавляется площадь второй комнаты, которая от кухни просто не отделена перегородкой, и это пространство является гостиной, это всё ещё однушка?) Ну, только если по формальному признаку.

1
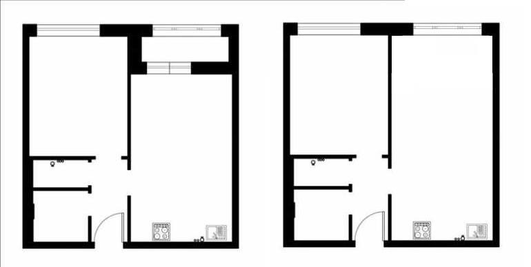
Автор поста оценил этот комментарий
Спальня + кухня-гостинная.
Если добавить ещё спальню, то это уже евро-трешка)
Иллюстрация к комментарию
раскрыть ветку (1)
Автор поста оценил этот комментарий

Это однушка, а не евро-двушка. Где здесь кухня-гостиная в пространстве 16 квадратов?

0
Автор поста оценил этот комментарий

Однушка.

0
Автор поста оценил этот комментарий
Однушка с огромной кухней, как вторая комната.
0
Автор поста оценил этот комментарий
Евро двушка, это когда в однушке вместо большой комнаты кухня-зал, а вместо кухни - спальня. Ещё это называют 1+.
Мне кажется, это удобнее обычной однушки.
0
Автор поста оценил этот комментарий
Причём компенсируют по рыночной цене на момент сдачи дома
ещё комментарии
Вы смотрите срез комментариев. Чтобы написать комментарий, перейдите к общему списку

Темы

Политика

Теги

Популярные авторы

Сообщества

18+

Теги

Популярные авторы

Сообщества

Игры

Теги

Популярные авторы

Сообщества

Юмор

Теги

Популярные авторы

Сообщества

Отношения

Теги

Популярные авторы

Сообщества

Здоровье

Теги

Популярные авторы

Сообщества

Путешествия

Теги

Популярные авторы

Сообщества

Спорт

Теги

Популярные авторы

Сообщества

Хобби

Теги

Популярные авторы

Сообщества

Сервис

Теги

Популярные авторы

Сообщества

Природа

Теги

Популярные авторы

Сообщества

Бизнес

Теги

Популярные авторы

Сообщества

Транспорт

Теги

Популярные авторы

Сообщества

Общение

Теги

Популярные авторы

Сообщества

Юриспруденция

Теги

Популярные авторы

Сообщества

Наука

Теги

Популярные авторы

Сообщества

IT

Теги

Популярные авторы

Сообщества

Животные

Теги

Популярные авторы

Сообщества

Кино и сериалы

Теги

Популярные авторы

Сообщества

Экономика

Теги

Популярные авторы

Сообщества

Кулинария

Теги

Популярные авторы

Сообщества

История

Теги

Популярные авторы

Сообщества