Недорогой домик - бунгало для дачи 28 м2 + проект (можно скачать)
Доброго времени суток, друзья! Сегодня решил выложить проект и фото небольшого дачного домика! Проект 28 м2 но в нем компактно разместилось масса удобств
Кстати в этом посте будет проект с полными чертежами для строительства!
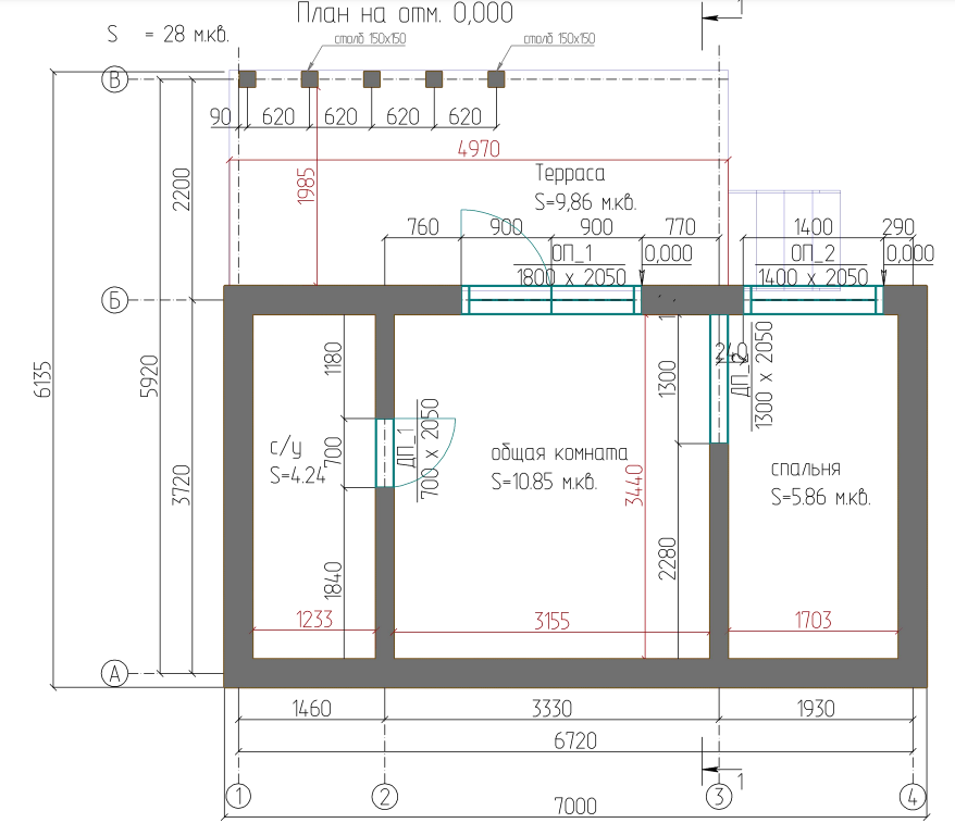
Домик размером 4х7 метров, спереди небольшая терраса, панорамные окна с выходом на берег реки Ангара
Строился он в прошлом году, в небольшом дачном кооперативе. Рядом лес и обалденный залив с щуками, карасями и плотвой.
Проект дома выкладываю для всех желающих построить что то подобное, скачать можно по ссылке:
https://megaartel.ru/wp-content/uploads/2022/05/dachnyj-dom-28-m2.pdf
Несколько фото домика
Живя на природе, конечно невозможно обойтись без панорамных окон
Можно подумать, что такая площадь остекления вызовет большие потери тепла, но у нас в Иркутске 1 квт стоит 96 коп, так что оттопиться зимой не проблема ) Нужно всего пару обогревателей
В доме две комнаты, кухня гостинная и спальня. Также есть сан узел и сауна)
Вот собственно и планировка
Проект дома выкладываю для всех желающих построить что то подобное, скачать можно по ссылке:
https://megaartel.ru/wp-content/uploads/2022/05/dachnyj-dom-28-m2.pdf
Спальня не большая, но с кровати открывается безумно красивый вид )
Вообще если вы не думаете здесь проводить много времени, то небольшая площадь - это очень большой плюс: не надо много тратить время на то, чтобы зимой прогреть перед заездом, не надо много убираться перед заездом - выездом, дешево ) уютно
При этом есть все удобства и сауна
Сан узел очень даже ничего получился)
Вообще как все выглядело до отделки, когда только построили и обшили вагонкой можно посмотреть в видео:
На все строительные работы есть смета, если интересно то я выложу в следующем посте.
Внутри и снаружи - имитация бруса.
Сам домик претерпел некоторые изменения пока строилась коробка, появилась крыша над террасой и прочее )
в следующем посте будет смета и все затраты на строительство)












Строительство и ремонт
10.9K поста48.6K подписчиков
Правила сообщества
Правила оформления постов.
Посты видеоролики должны обязательно иметь описание о чём видео. Если видео длинное, то крайне желательно указать время, когда и о чём рассказываете.
В случае нарушения пост выносится из сообщества.
Правила общения.
Запрещено регулярное хамское и неуважительное обращение к другим участникам сообщества в рамках общения в комментариях. В случае первого нарушения бан в сообществе на 2-3 недели. В случае повтора постоянный.
Про нейросети
Тексты сгенерированные нейросетью, выносятся из сообщества, пользователь блокируется на неделю. При повторном нарушении перманентный бан для пользователя.
Про рекламу
Рекламные посты от платных/бесплатных аккаунтов запрещены. За первое нарушение блокировка на 7 дней. За второе перманентная блокировка.
Только для профессиональных участников рынка строительных услуг. (публикующихся регулярно)
Пост должен быть основан на личном опыте.
Должен быть информационно-познавательным (разъясняет/ объясняет что-то связанное с материалом/работой/организацией/и.т.д.) или пищей для ума (Взгляд на проблему, с другой стороны)
Запрещается публикация видео длиной более 5 минут без текстового таймлайна. ( надо указать где и о чём вы рассказываете в видео)
Не злоупотребляйте тэгами. Количество своих тэгов не более 4х шт. Тэги проставляемые системой не учитываются. (Длиннопост, видео, и.т.д.)