Серия «нету дачи! »

13

Первый жилец в нашем новом доме

Серия нету дачи!

В прошлом году у нас завершилось строительство теплого контура дома. Мы подключили временное отопление (котёл с тепловой пушкой) и на всякий случай поставили там камеру, чтобы проверять температуру в доме.

В первый же день поймали на видео незаконного жильца нашего дома!!!

В первый же день поймали на видео незаконного жильца нашего дома!!!

Площадь дома чуть меньше 200м, только в одном маааленьком техническом помещении стоит котел, рядом с ним термометр, на который направлена камера. И в первый же день просмотра мы наблюдаем вот эту картину

явилась на огонек, звезда Голливуда

явилась на огонек, звезда Голливуда

Очень деловая колбаса пришла погреться. Возмущению нашему не было предела))) Из еды в доме ничего не было, там только залили пол - голый бетон. Но мадам это не смутило. Регулярно шарилась по дому, сидела в единственном походном кресле хозяйском. И гадила в него, нахалка!

Через неделю была поймана на клей, дерзкая зараза.

Показать полностью 2
6

Стройка - фото на память

Серия нету дачи!

Разбираю фото с нашей стройки. Кстати, очень полезная штука - делать фото всего, что там происходит.

2023-2024-2025

Фото прокладки закладных, труб канализации, подведение электрики, газа, воды - если на всё это есть фото, в будущем это помогает при планировке участка.

Фото и видео работ внутри и снаружи помогает потом в спорных вопросах с рабочими, соседями, управляющей организацией. Да и для себя тоже пригодится - чтоб потом вспомнить через пару лет.

Мои "себяшки" - одни из самых редких и бесполезных фото. Остальные сотни фото - этикетки стройматериалов, кирпичные кладки и бетонные заливки с приложенным к ним рулеткой, уровнем, тепловизором,..., фото канав вокруг дома, техники, что заезжала на участок - вот это все пригодилось!

Показать полностью 4
11

Начало стройки. Фундамент

Серия нету дачи!

Май 2023 - расчистка участка под застройку, завоз стройматериалов. Деревья удалялись не все. Видно, что на некоторых мы повязали сигнальную ленту - эти решено было оставить. Спойлер - не все остались в результате.

было/стало

Заливка фундамента. Июнь 2023.

мелко заглубленная лента.

Потом была пауза до конца лета. И наконец в августе приступили к кладке стен.

Керамоблок Гжель 510 (и 380 там, где гараж).

Столько было деталей, а рассказ получается краткий и быстрый. Задавайте вопросы, если интересны нюансы. Постараюсь ответить в комментариях или сделать более подробные отдельные публикации на какие-то темы.

Показать полностью 8
9

Планировка дома

Серия нету дачи!

В прошлом посте был вопрос про планировку. Это, мне кажется, тема очень индивидуальная. Универсальной планировки не существует. Мы стали смотреть разные дома и планировки задолго до покупки не то что дома - участка! Пересмотрели их десятки, а может и сотни. Какие-то детали нравились, но в целом ничего готовое не подходило. Стали рисовать свою.

первый вариант, сделанный в блокноте. С этим и пошли к архитектору

первый вариант, сделанный в блокноте. С этим и пошли к архитектору

Набросали разные детали, основные помещения. А уже после того, как купили участок, пересмотрели какие-то моменты (касательно входов, окон, ширины дома, места въезда, входа коммуникаций) - планировка сильно зависит от самого участка.

И с нашим планом на бумажке пошли к архитектору.

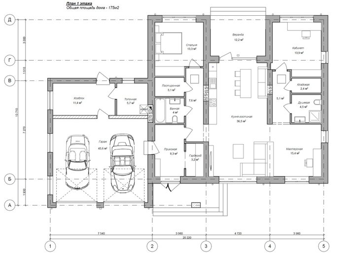
Архитектор на основании наших пожеланий сделал нам примерно вот так

план дома после работы с архитектором

план дома после работы с архитектором

После проекта архитектора всё ушло в расчёт строителям. Вот надо сказать, что тут мы допустили небольшой просчёт - надо было с этой рабочей документацией сходить еще и к дизайнерам - можно было бы проработать некоторые помещения получше. С дизайнерами мы потом еще подвигали внутренние перегородки, но были ограничены внешними стенами и подводкой коммуникаций, в результате не все получилось оптимизировать.

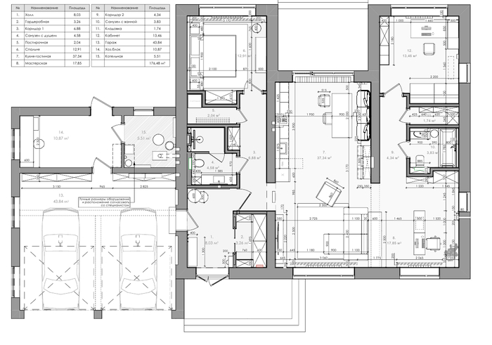
это финальный вариант после проработки с дизайнером.

это финальный вариант после проработки с дизайнером.

Сейчас дом уже построен, и некоторые плюсы/минусы уже можно выделить, хоть мы там ещё полноценно не живем, идет ремонт внутри. Большой плюс - много дверей. Реально уже сейчас удобно ходить с грязными работами через хозблок, завозить стройматериалы сразу в гараж. После работ на участке зайти с дом с удобной стороны, не обходить его. Очень удобная получилась терраса (веранда?) - закрыта с трех сторон. Можно сидеть в любую погоду, дождь и ветер не мешают. И соседей не видно.

Минусы - я бы увеличила бы постирочную и добавила бы отдельную кладовую на кухне. Про неё идея пришла уже после начала работы строителей, поздно было что-то радикально менять.

Всё это выложила для помощи тем, кто планирует стройку. Я не думаю, что наша планировка кому-то подойдёт, но может, натолкнёт на свои идеи.

Задавайте вопросы, если интересно. на их основе продолжу эту долгую, увлекательную, но нервную эпопею про стройку.

Показать полностью 3
25

Новый участок - начало

Серия нету дачи!

Нам нравилась наша дача. И природа вокруг нее. И мы бы хотели бывать там не только в сезон (см предыдущие публикации серии). Одно время подумывали сделать ей апгрейд до круглогодичной. Но когда прикинули все хотелки и свои возможности, стало понятно, что такие планы надо реализовывать в другом месте: с другим окружением, другими коммуникациями и инфраструктурой.

Поэтому мы стали подыскивать новое место. И в 2022 году его нашли. Плюсы - все коммуникации можно завести в дом (газ, свет, вода, канализация, интернет). Граничит с лесом по одной стороне. Подъезд асфальт и брусчатка. Круглогодичное обслуживание (вывоз мусора, уборка снега, уличное освещение).

Минусы - участок пустой, надо строить. Ну и цена, конечно же. Как вы понимаете по описанию, это вам не дача))

Фото 2022г, в момент покупки. Сейчас всё выглядит уже совсем не так, но давайте по порядку.

первые фото: реденький лесок в осинках и березках. с небольшим количеством сосен

первые фото: реденький лесок в осинках и березках. с небольшим количеством сосен

на фото видно как раз процесс устройства дороги. В тот момент ее как раз делали у нашего дома.

на фото видно как раз процесс устройства дороги. В тот момент ее как раз делали у нашего дома.

Предновогоднее (декабрь 22) на фото видна дорога, очищенная от снега, и люки с коммуникациями у начала нашего участка.

Предновогоднее (декабрь 22) на фото видна дорога, очищенная от снега, и люки с коммуникациями у начала нашего участка.

Вид, конечно, ещё весьма унылый, и наверняка многие скажут - ну и фигня. Но мы были в восторге, потому что видели перспективы.

В качестве спойлера фото 2025

зима-весна-лето 2025.

Стройка еще не окончена. Мы в процессе.

Показать полностью 6
2

Теперь у нас точно нет дачи!

Серия нету дачи!

Но я рада этому факту, т.к. наша дача обрела новых хозяев. Очень интересный был опыт. Дачу мы пристраивали ровно год. Сделку оформляли через МФЦ. Это сейчас тааак быстро и удобно! Я была очень удивлена, в пятницу сдали документы, в понедельник уже было всё оформлено.

Кстати, все документы я составляла и оформляла самостоятельно, что тоже оказалось довольно простым делом. У меня, есть небольшой опыт договорной работы, это мне помогало. Всё приняли, есть там пара нюансов, как-нибудь расскажу об этом подробнее.

Ниже пара моих наблюдений (вдруг пригодится тем, кто собирается продавать/покупать дачу).

– лучшее время для продажи дачи - март-апрель (начало дачного сезона). Очень большая активность, много показов.

– площадки для размещения объявления - прежде всего Авито. Затем Вконтакте (как личная страница, так и разные группы - объявления, тематические группы типа "Дачная Рязань"). Парадокс, но ещё неплохо работает объявление на столбе в самом СНТ (видимо, люди ездят по интересующим местам и смотрят подходящие варианты сразу на местности). Можно попробовать Циан, но оттуда обращаются одни москвичи, и редко. Если ваша дача где-то в недалеко, и теоретически может заинтересовать москвичей, то вполне можно попробовать эту площадку, они часто ищут дачи в близких от Москвы регионах. ДомКлик и ЯндексНедвижимость - ноль обращений.

– как понять, какую ставить цену? Я заходила на Авито и смотрела фильтр объявлений по схожим характеристикам. Составляла табличку, и где-то посередине ставила свою цену. Если нет активности после размещения, постепенно снижаем. Будет заметно, когда попали с ценой в точку - сразу увеличивается активность: звонки, сообщения, просмотры.

– риэлторы... Первые, кто к вам придут. Но в случае дачи их не так уж много было - видимо, по их меркам не такие уж большие деньги. Я не поняла, какие преимущества они в моём случае могут предложить. Все рассказывали про какие-то их свои внутренние базы клиентов... Мне сложно представить базу лучше и больше того же Авито. Возможно, у кого сложные сделки с большим количеством собственников, удаленной продажей и сложным оформлением (дача, например, без межевания или где-нибудь в историческом месте типа Константиново - родина поэта Есенина), риэлтор может помочь. Нам не пригодился.

Самое сложное в продаже дачи было для меня остановиться и не начать выкапывать "всё, что нажито непосильным трудом".

прощальные фото

Если есть ещё вопросы - задавайте в комментариях, буду рада поделиться своим небольшим опытом по продаже недвижимости ))

Ну и немного дачной атмосферы на видео. на участке всегда было много шмелей, очень люблю за ними наблюдать на клумбах.

на видео они в луке копошатся, но перед передачей ключей уже переместились на душицу

шмель в цветах душицы

шмель в цветах душицы

Буду скучать, но теперь пора заниматься новым участком. Он лучше по всем параметрам, но пока совсем неухожен, только штук 10 деревьев, в основном сосны.

Показать полностью 5 1
1910

Ответ на пост «У меня нет дачи»4

Серия нету дачи!

У нас есть дача! А не должно было быть... Мы с мужем как-то не планировали, просто в один день бабушка с дедушкой решили ее нам подарить.

– Вот счастье-то привалило! – подумали мы в 2013, когда нам на голову свалилось 15 заросших соток и старый домик. Вот так это выглядело.

Фото 2012-13

Почему не отказались, даже не знаю. Бес попутал )))

И потом как-то - ну не пропадать же добру. Давай траву покосим, давай вырубим кусты... Дальше всё как в тумане: новая веранда, новая крыша, новые окна, новый забор.

Фото 2024-2025

Но никакого огорода, картошки и т.п. Гамак, бадминтон, грибы (у нас на участке своя грибная полянка).

В один момент так увлеклись процессом, что купили другой участок, для постоянного проживания, и там дом построили.

Как доделаем в нем ремонт - будем расставаться с дачей. А жаль, у нее есть свои плюсы: рядом лес, много всяких птичек, место грибное и ягодное, все растет на самом участке.

наши дачные урожаи

Вот так внезапный подарок сделал из нас сельских жителей. Так что не зарекайтесь)) Мы тоже ни фига не дачники, и с печальным опытом 90-х.

Показать полностью 15
Отличная работа, все прочитано!

Темы

Политика

Теги

Популярные авторы

Сообщества

18+

Теги

Популярные авторы

Сообщества

Игры

Теги

Популярные авторы

Сообщества

Юмор

Теги

Популярные авторы

Сообщества

Отношения

Теги

Популярные авторы

Сообщества

Здоровье

Теги

Популярные авторы

Сообщества

Путешествия

Теги

Популярные авторы

Сообщества

Спорт

Теги

Популярные авторы

Сообщества

Хобби

Теги

Популярные авторы

Сообщества

Сервис

Теги

Популярные авторы

Сообщества

Природа

Теги

Популярные авторы

Сообщества

Бизнес

Теги

Популярные авторы

Сообщества

Транспорт

Теги

Популярные авторы

Сообщества

Общение

Теги

Популярные авторы

Сообщества

Юриспруденция

Теги

Популярные авторы

Сообщества

Наука

Теги

Популярные авторы

Сообщества

IT

Теги

Популярные авторы

Сообщества

Животные

Теги

Популярные авторы

Сообщества

Кино и сериалы

Теги

Популярные авторы

Сообщества

Экономика

Теги

Популярные авторы

Сообщества

Кулинария

Теги

Популярные авторы

Сообщества

История

Теги

Популярные авторы

Сообщества