MamichevaDarya
Узкая длинная комната для 2х мальчиков. До/После
Можно ли уместить 2х мальчиков в комнате шириной 2,2 метра?
Постараться сделать максимально комфортной точно можно.
Вот такой была исходная комната:
Проект:
За 2 года использования в окно никто не улетел 😉 А вот балкон над дверью стал любимым укромным местечком.
Если нет ширины, то используем высоту.
Жду комментарии: Зачем постеры? Ведь там надо фото или картину дедушки маслом 🙃
Ответ: Дети сами их выбрали. Они их радуют. Их легко заменить в подростковом возрасте. Плюс каждый над своей кроватью повесил индивидуальный выбор.
*Закреплены они на монтажную ленту. Вместо стекла акрил. Можно долбить по ним кирпичом и все равно не уронить.
Начало воплощения. На этой фото есть не очень классный момент, потому что клиент решил принять решение сам, чтобы лишний раз не беспокоить. Потом исправили. Заметить его сложно. Фото с ракурсом на кровать специально для этого 😉
*У автора есть дети. И у владельцев комнаты тоже. Всё живы, счастливы и радуются новой комнате 🤣
Как декор меняет комнату. До/После
Здесь должен быть поясняющий текст, но нет.
Наглядная штука получилась у нас по ходу работы над комнатой:
* Вывод:
Даже если вся мебель на месте.
Потратьте немного сил на настроение и уют 😉
Комната мальчика
Всех мужчин с праздником!
Сегодня поделюсь с вами одной сказочной комнатой малыша, которая сейчас воплощается.
Сразу для местных критиков:
-цвет в декоре, потому что в 2 года предпочтения есть только у мамы
-плафоны пластиковые
-под ковром нескользящая подложка
-толщина мата рассчитана по нормам 10 см на 1 метр высоты комплекса (скалодрома)
-Хранение одежды в гардеробной. Поэтому в комнате только комод и вешалка для формирования навыка одеваться
-Кстати вешалка классная: с одной стороны зеркало, с другой пробка
-На ящики труфаста закажем наклейки, чтобы понимать, что там внутри
-Крюк и ткань шатра выдерживают 150 кг. На этих полотнах можно висеть, даже взрослому XD
Фото до размещать не буду, ничего интересного в них нет. Желтые стены и детская кроватка с комодом
Для тех, кто писал, что пастельные тона, потому что ярко не умею, вот вам картинка еще одной детской в процессе. Тут задача была сделать сочно и бюджетно:
Рассказать о ней подробнее? ;)
История преобразования одной детской
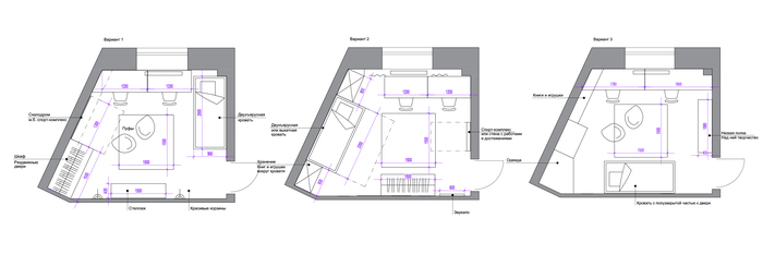
К нам обратились родители 2х погодок школьников 6 и 7 лет. Комната сложной треугольной формы и небольшой площади (всего 13 метров). Нужно разместить все необходимое, но и оставить места для активности и веселья. Ребята- то бодрые. Пока делала замеры, стала свидетелем выяснения, кто просверлил стены внук или дедушка XD
Вот, что у нас было изначально:
Сначала работали над планом, вот какие варианты рассматривали:
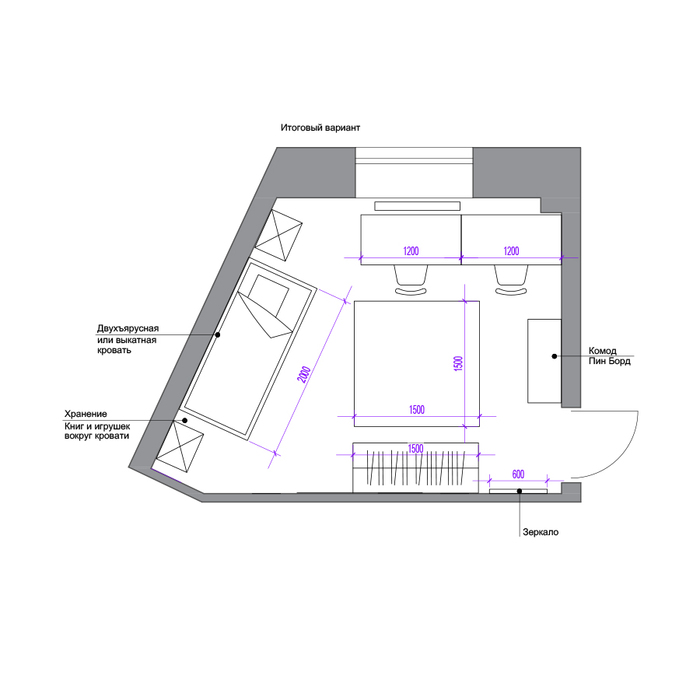
Решили, что спортивный уголок нам не нужен и хотим обойтись без дорогой мебели, сделанной на заказ, поэтому выбрали такой:
Сформировали общую концепцию интерьера:
- С окон убрали лишний тюль, чтобы получить максимум естественного света
- Обои заменили на более светлые с прохладным оттенком, для визуального увеличения пространства
-Выбрали не банальную цветовую гамму и стильный декор
-Хранение сделали по максимуму закрытым, чтобы визуально комната смотрелась аккуратней.
Вот, что у нас вышло:
Декор не только стильный, но и подростковый. Над комодом появился ПинБорд, который ребята могут оформить индивидуально и он станет отличным украшением комнаты.
Кстати, настенные головы из бумаги, тоже можно сделать самостоятельно. Владельцам комнаты были отправлены все инструкции.
Вся мебель уже заказана в точности как на картинка. В начале марта все соберем.
Выложу вам фотографии ;-)
Нравится формат? Рассказать вам еще? :)
*Давненько меня здесь не было. Соскучилась по искреннему и живому Пикабу. Ох уж этот гламурный инстаграм XD
Happy Origami, 1960
Всем иллюстраторам, дизайнерам и просто ценителям прекрасного на усладу глаз посвещается. Искала что-то красивое, что можно рассматривать долго и что будет растить чувство прекрасного в моем очередном маленьком клиенте, а так же украшать его детскую комнату и нашла эти чудесные сканы книги 1960х:
Надеюсь и вам подняло настроение в конце рабочего дня :)
Детская #1 "Пещера" в комнате
Со всеми моими юными заказчиками старше 3х лет я всегда прошу познакомиться лично. Так было и на этот раз. Девочка 6 лет, но уже заканчивает 1 класс, потому что непременно хотела все вместе с 7милетней сестрой. Второй ребенок в семье из четверых :) Родители сразу предупредили, что это "кусок тратила" И были правы, за пол часа разговора она ни разу не присела, а только скакала, перемещалась, кувыркалась, танцевала и т.д..
Ведем разговор, что нравится делать дома, что на улице, любимые предметы и т.д. Доходим до вопроса про любимого героя. Диалог: Я (Я) и Девочка (Д)
Я: Какой твой любимый герой?
Д: А сколько можно назвать?
Я: Давай трех.
Д: Но у меня только один...
Я: Значит одного.
Д: Дарт Вейдер
Я: *хм.. это второй ребенок на моей памяти, который его назвал* Почему?
Д: Потому что черный
Тут то все и встало на свои места. Любимые цвета: черный, белый и красный, что не удивительно при ее темпераменте. Поскольку детей четверо, а места пока мало всем крайне хотелось личное пространство, укромное местечко, даже в рамках своей комнаты. Мы обсудили этот вопрос с родителями, они были не против, только решили отказаться от "конкретных" образов: пещера, дерево, замок, а прибегнуть к стилизации, чтобы фантазия работала.
Получилась вот такая концепция:
Если смотреть в плане, то получится вот так:
Расположение кровати обусловлено тем, что так выведены розетки и выводы под бра. Стол-парта у окошка. Рядом кресло-гнездо для чтения с книжными полками. Легкая кровать, которая "растет". Съемные панели домики с бортами, чтобы положить мел. Во втором домике наклеим пластины лего, т.к. это второе увлечение, можно собирать картины-инсталляции на стене. Единственно, что решили убрать в цоколь - это барабаны, на которых играет хозяйка комнаты. По понятным причинам XD Внизу вход в гардеробную, поэтому "хранения" достаточно. Ну и справа наша чудо-конструкция "пещера". Примерно вот так *картинка из интернета*:
Только у нас потолок 3 метра, а значит там можно встать ребенку. И стена черная - это же пещера))) И телевизора в комнате нет, т.к. дети смотрят только через проектор мультики в отдельной комнате. И будет рулонная шторка на входе.
Пол - пробка. К ней все привыкли и она нравится по тактильным ощущениям.
За кроватью мы поклеим белые обои с черным рисунком:
или
Тут голоса разделились, но в итоге остановились на облаках. Хотя точки, конечно, будут графичней.
Ну и стандартный вопрос: Вам интересно? :) Хотя это вряд ли меня остановит ответ нет... Но могу писать чуть чаще, т.к. много интересного проектируется. Даже добавила нумерацию историй, заботясь о нервах тех, кому дети не нравятся.
Такие разные дети и их комнаты
За что люблю Пикабу - это за адекватность. Ни на одном профильном сайте не найдешь столько чаще конструктивной критики :)
https://pikabu.ru/story/detskaya_v_gustavianskom_stile_58843... - делилась с вами своей очередной работой над детской комнатой.
Вроде все правильно, и я уверена, что пространство будет "работать" на ребенка. Есть место для творчества, чтения, удобно самостоятельно убирать свой вещи и достаточно свободного пространства.
Цветовая гамма - это дело вкуса. Комната солнечная, что не удалось передать на 3Д, вопрос с поиском визуализатора открыт :) Да и в целом, как мама и художник, я уверена, что спокойные богатые оттенки помогают развить умение их видеть. И комната должна быть легко изменяема по цвету. Захотелось яркости: поменяли шторы, наклеили наклейки на комод и шкаф, кинул яркое покрывало и готово.
Но вот этот ракурс не давал мне покоя:
"И скучно и грустно и некому руку подать..." так и всплывало в голове) Отправилась на поиски стеллажа + игрового объекта и нашла:
Вот, что вышло. Кровать-диванчик со съемным бортом, который в жизни будет длиннее. Стеллаж- домик. Внизу для хранения, средняя часть для кукол и игр. Сверху пока для игрушек, затем для книг. На стене сказочная карта для рассматривания во время засыпания. Я вот до сих пор помню оленей на ковре у бабушки XD
Глазу стало приятнее, а проект стал понятнее. Теперь решаю проблемы где это купить не за космические деньги, из нормальных материалов, и не со 100% предоплатой из другого региона без гарантий. В целом детской мебели качественной за вменяемые деньги не так уж много, хотя за 2 года стало больше того, что приятно купить и рассматривать, чему я безмерно рада.
Для тех кто любит сочность и контрастность, сейчас делаю 4 детские для 4х совершенно разных деток, есть и контрастные:
И сочные:
Если хотите, расскажу подробнее. Когда детей 4 и они долго жили в одной не очень большой квартире, на встрече все хотели: тайник, домик, убежище. Учитывая, что родители готовы были к экспериментам, мы разработали каждому из 4х свой интересный объект, эскизы которых есть на коллажах :)






































