Раскритикуйте проект дома, плиз
Приветствую. Продумываю эскиз проекта домика, хочу критики.
Для начала немного общих сведений:
Дом в небольшом городе на юге, со всеми центральными коммуникациями и инфраструктурой. То есть мне не нужно будет 24/7 чистить снег, колоть дрова и перекидывать навоз (и остальное что там жители квартир думают о досуге владельцев домов).
Я не собираюсь что-то там садить, копать, косить. Будут дорожки, газончики, неприхотливые деревца и кустики (и, вероятно, приходящий садовник).
Материалы - ж/б каркас, ж/б перекрытия, газоблок и облицовка кирпичом.
Живу сейчас один, но не исключаю что заведу семью. Зачем мне сейчас большой дом? Потому что есть возможность построить, плюс я не очень люблю квартиры.
Я жил в домах и знаю что это такое.
Я не проектировщик, не ругайте за запятые, условные обозначения и стиль. Вроде бы всё понятно, а это главное.
Планировка участка в общих чертах:
Земля ~18*45м.
Ширина дома максимальная для данного участка и окружающей застройки.
Размеры и расположение бассейна очень условные.
Не люблю окна на соседей.
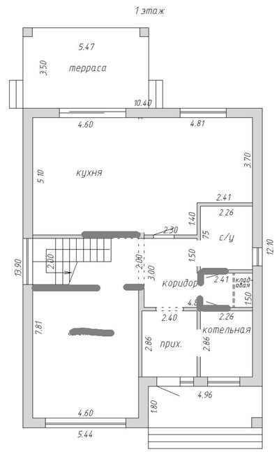
Собственно, сам эскиз проекта:
Но сперва немного контекста.
Обязательным условием была спальня на 1м этаже. Всего же считаю достаточным 3 спальни. Если вдруг у меня каким-то маловероятным образом появится куча детей которым этого будет не хватать, то тогда уже и буду решать эту проблему. Пока же этого не случилось, не вижу смысла лепить десяток комнатушек.
Прихожая. В нашем климате не очень нужен холодный тамбур, прихожая это просто прихожая, как в квартирах, собственно. Также, мне не нравится идея отдельной гардеробной рядом с прихожей - насмотрелся у знакомого. Считаю что в прихожей должен быть закрытый шкаф, открытые вешалки, обувница и скамеечка. Может быть не очень по-дизайнерски, зато практично и удобно, имхо.
Места хранения. Для всего что понадобится на улице - будут стеллажи и крепления в гараже. Для дома же считаю достаточным небольшой шкаф-кладовую на 1м этаже (тут она между котельной и санузлом). Ну и гардеробная в мастер-бэдруме на 2м.
Санузлы. Считаю что 3 санузла достаточно для такого дома. И я всегда мечтал о большой ванной комнате, поэтому постарался сделать такую на 2м этаже.
Кухня. Думал поменять местами ее и спальню, но всё-таки не уверен, хз. Я не вижу проблемы в совмещенной кухне-гостиной, тем более что тут они не такие уж и совмещенные. Показанный вариант мне нравится больше.
Кабинет-сычевальня. Я ультра-интроверт и мне необходимо мое место для уединения, работы, игрушек, блэк-метала и прочего аниме. Не уверен как там лучше сделать и нарисовал оба варианта перегородок. В целом пространства нужно довольно много, при необходимости оно будет зонироваться реечными перегородками или стеллажами.
Кажется всё. Вперёд, обоссывайте...





Строительство и ремонт
10.9K поста48.6K подписчиков
Правила сообщества
Правила оформления постов.
Посты видеоролики должны обязательно иметь описание о чём видео. Если видео длинное, то крайне желательно указать время, когда и о чём рассказываете.
В случае нарушения пост выносится из сообщества.
Правила общения.
Запрещено регулярное хамское и неуважительное обращение к другим участникам сообщества в рамках общения в комментариях. В случае первого нарушения бан в сообществе на 2-3 недели. В случае повтора постоянный.
Про нейросети
Тексты сгенерированные нейросетью, выносятся из сообщества, пользователь блокируется на неделю. При повторном нарушении перманентный бан для пользователя.
Про рекламу
Рекламные посты от платных/бесплатных аккаунтов запрещены. За первое нарушение блокировка на 7 дней. За второе перманентная блокировка.
Только для профессиональных участников рынка строительных услуг. (публикующихся регулярно)
Пост должен быть основан на личном опыте.
Должен быть информационно-познавательным (разъясняет/ объясняет что-то связанное с материалом/работой/организацией/и.т.д.) или пищей для ума (Взгляд на проблему, с другой стороны)
Запрещается публикация видео длиной более 5 минут без текстового таймлайна. ( надо указать где и о чём вы рассказываете в видео)
Не злоупотребляйте тэгами. Количество своих тэгов не более 4х шт. Тэги проставляемые системой не учитываются. (Длиннопост, видео, и.т.д.)