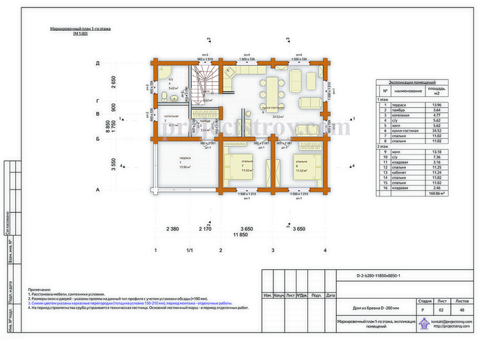
Проект дома 12 х 9 м из бревна1
Деревянный дом из оцилиндрованного размер по осям 11.85 х 8.85 м.
Много сказано про МИНУСЫ деревянных домов, в основном продуваемость...
- через 1-2 года после усадки герметик по дереву, теплый шов, читаем в интернете (родоначальник - Perma-Chink);
- сейчас из-под станка делают не продуваемые замки в ОЦБ (по типу канадских), не только "лунный паз";
- выбираем и не жалеем межвенцовый утеплитель (по типу овечьей шерсти) и саморасширяющуюся ленту псул на чашки;
- не лепите окна во весь дом, красота через год забудется));
- конечно, достойное утепление цоколя, межэтажные и кровли от 200 мм
И сам проект дома с разбревновкой:






Строительство и ремонт
10.7K поста48.3K подписчик
Правила сообщества
Правила оформления постов.
Посты видеоролики должны обязательно иметь описание о чём видео. Если видео длинное, то крайне желательно указать время, когда и о чём рассказываете.
В случае нарушения пост выносится из сообщества.
Правила общения.
Запрещено регулярное хамское и неуважительное обращение к другим участникам сообщества в рамках общения в комментариях. В случае первого нарушения бан в сообществе на 2-3 недели. В случае повтора постоянный.
Про нейросети
Тексты сгенерированные нейросетью, выносятся из сообщества, пользователь блокируется на неделю. При повторном нарушении перманентный бан для пользователя.
Про рекламу
Рекламные посты от платных/бесплатных аккаунтов запрещены. За первое нарушение блокировка на 7 дней. За второе перманентная блокировка.
Только для профессиональных участников рынка строительных услуг. (публикующихся регулярно)
Пост должен быть основан на личном опыте.
Должен быть информационно-познавательным (разъясняет/ объясняет что-то связанное с материалом/работой/организацией/и.т.д.) или пищей для ума (Взгляд на проблему, с другой стороны)
Запрещается публикация видео длиной более 5 минут без текстового таймлайна. ( надо указать где и о чём вы рассказываете в видео)
Не злоупотребляйте тэгами. Количество своих тэгов не более 4х шт. Тэги проставляемые системой не учитываются. (Длиннопост, видео, и.т.д.)