Кухня своими руками1
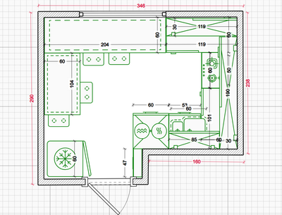
Спроектировал и собрал кухню в квартиру 42 квадрата. После просмотра готовых вариантов стало понятно, что это дорого и не то, что хочется. С женой сели за комп, нарисовали проект в Базис-Мебельщике за пару дней, потом в течение года ещё немного изменяли его.
В понедельник привезли "дрова".
Инспектор сразу всё обнюхал и дал допуск к работе.
Фартук сделали заранее с учётом новой высоты кухни (сделали чтобы в уровень с подоконником было).
Навесные шкафы сделал единым блоком. Проблемы возникли только с фасадами - нужны петли с ненулевым возвышением ответной планки.
Пенал для техники собрали в первую очередь. Духовка на нормальной высоте, чтобы в позе рака к ней не лазить за горячей едой.
Ещё предусмотрели комод вместо барной стойки, чтобы было место для хранения.
Ящики собирать - это долго и муторно.
А особенная жопа - вешать фасады при конструкции ящика "решили сэкономить". Нет передней внутренней стенки, чтобы к ней без проблем закрепить фасады.
Контролёр одобрил.
Верхние шкафчики на шину крепятся.
Только прикрутил фасады, ещё надо настроить.
Комод наконец готов полностью, отличное место для хранения всякой утвари. Два дня на него ушло...
Свысока лучше видно, что делают кожаные.
Сделал ящики в пенал и ручки на фасады к верхним ящикам.
Тут прошло много времени, собрал весь низ, прикрутил вытяжку, установил технику. Благо друг помогал.
Выпиливание под раковину и варочную поверхность дело дорогое и кропотливое.
Итоговый результат. Надо менять петли на верхних шкафчиках, не получилось нормально отрегулировать с текущими.
Без техники получилось 140к. При этом ездил в магазин докупать постоянно что-то, буквально каждый день сборки. 7 дней сборки - 7 поездок в магазин.
Без помощи друга не справиться никак - столько всего таскать...
Тут ещё в комплекте из обрезков раскладной стол, которого нет на фото, который распахивает крылья на новый год и для настолок.
Контролёры наблюдают.
Всем спасибо за внимание.









































