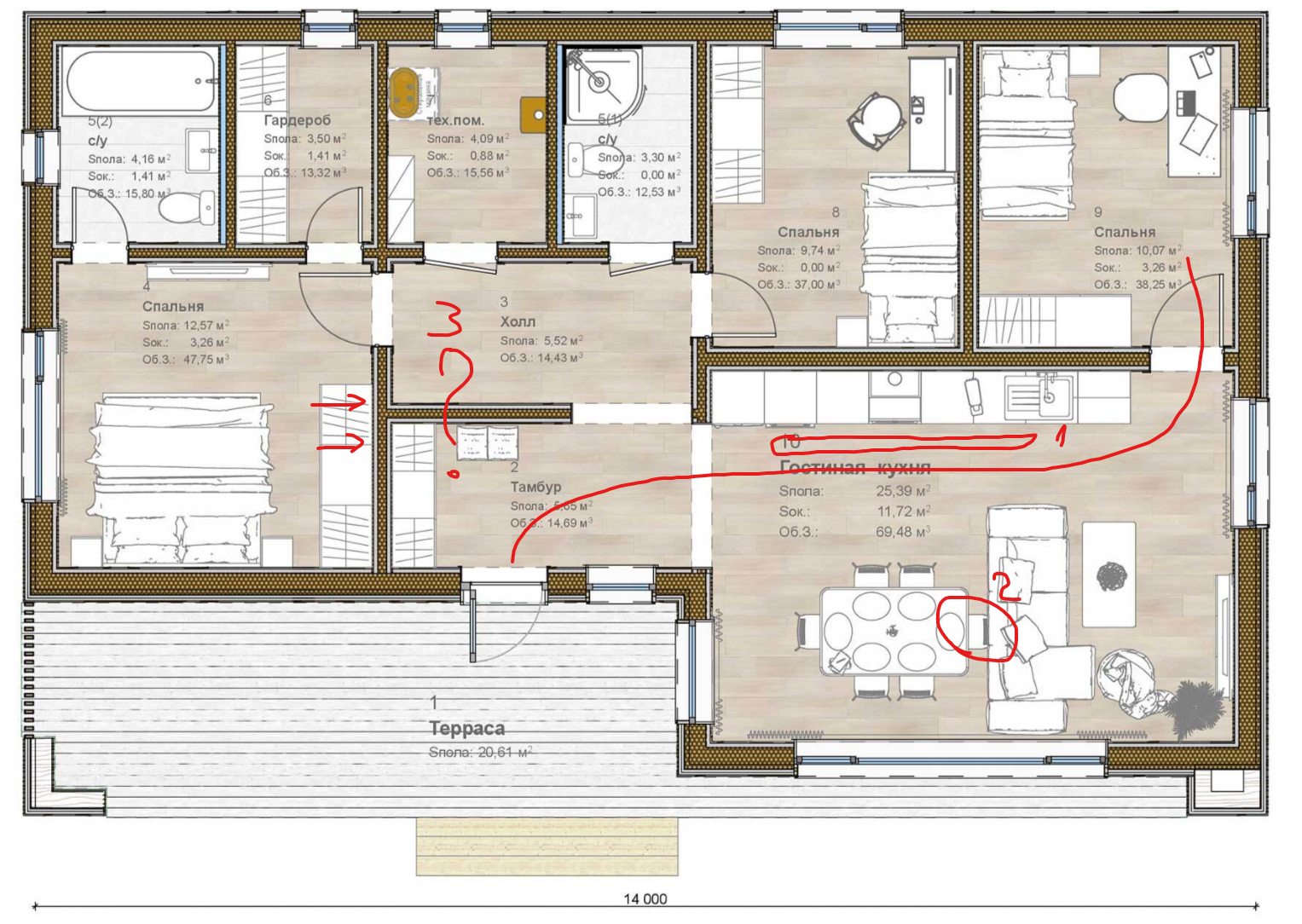
Что не так с планировкой?
Нужна сила пикабушных архитекторов. Решил строить дачу-дом. Выбрал базовый дом от строфирмы. Но смущает планировка. Можно менять внутри все, только внешний контур не трогать.
Смущает большая ванна в мастер-спальне, будто логичнее сделать больше ту, что общая, но тогда там и не поваляешься...Также можно ванны сделать ближе, зачем тянуть так трубы далеко?
Нужен ли тамбур?
Одни вопросы. Дом первый, раньше никогда не строил и не жил за городом долго.


Посоветуйте. что приходит в голову исправить?





Строительство и ремонт
10.8K постов48.4K подписчика
Правила сообщества
Правила оформления постов.
Посты видеоролики должны обязательно иметь описание о чём видео. Если видео длинное, то крайне желательно указать время, когда и о чём рассказываете.
В случае нарушения пост выносится из сообщества.
Правила общения.
Запрещено регулярное хамское и неуважительное обращение к другим участникам сообщества в рамках общения в комментариях. В случае первого нарушения бан в сообществе на 2-3 недели. В случае повтора постоянный.
Про нейросети
Тексты сгенерированные нейросетью, выносятся из сообщества, пользователь блокируется на неделю. При повторном нарушении перманентный бан для пользователя.
Про рекламу
Рекламные посты от платных/бесплатных аккаунтов запрещены. За первое нарушение блокировка на 7 дней. За второе перманентная блокировка.
Только для профессиональных участников рынка строительных услуг. (публикующихся регулярно)
Пост должен быть основан на личном опыте.
Должен быть информационно-познавательным (разъясняет/ объясняет что-то связанное с материалом/работой/организацией/и.т.д.) или пищей для ума (Взгляд на проблему, с другой стороны)
Запрещается публикация видео длиной более 5 минут без текстового таймлайна. ( надо указать где и о чём вы рассказываете в видео)
Не злоупотребляйте тэгами. Количество своих тэгов не более 4х шт. Тэги проставляемые системой не учитываются. (Длиннопост, видео, и.т.д.)