Оцените планировку дома1
Присоединюсь к волне постов.
Жаль что не додумался это сделать ДО постройки дома, тогда было все сумбурно, время летело, не до этого было.
И, тем не менее, хотелось бы услышать конструктивную критику на планировку от самостройщииков, архитекторов, прорабов, etc.
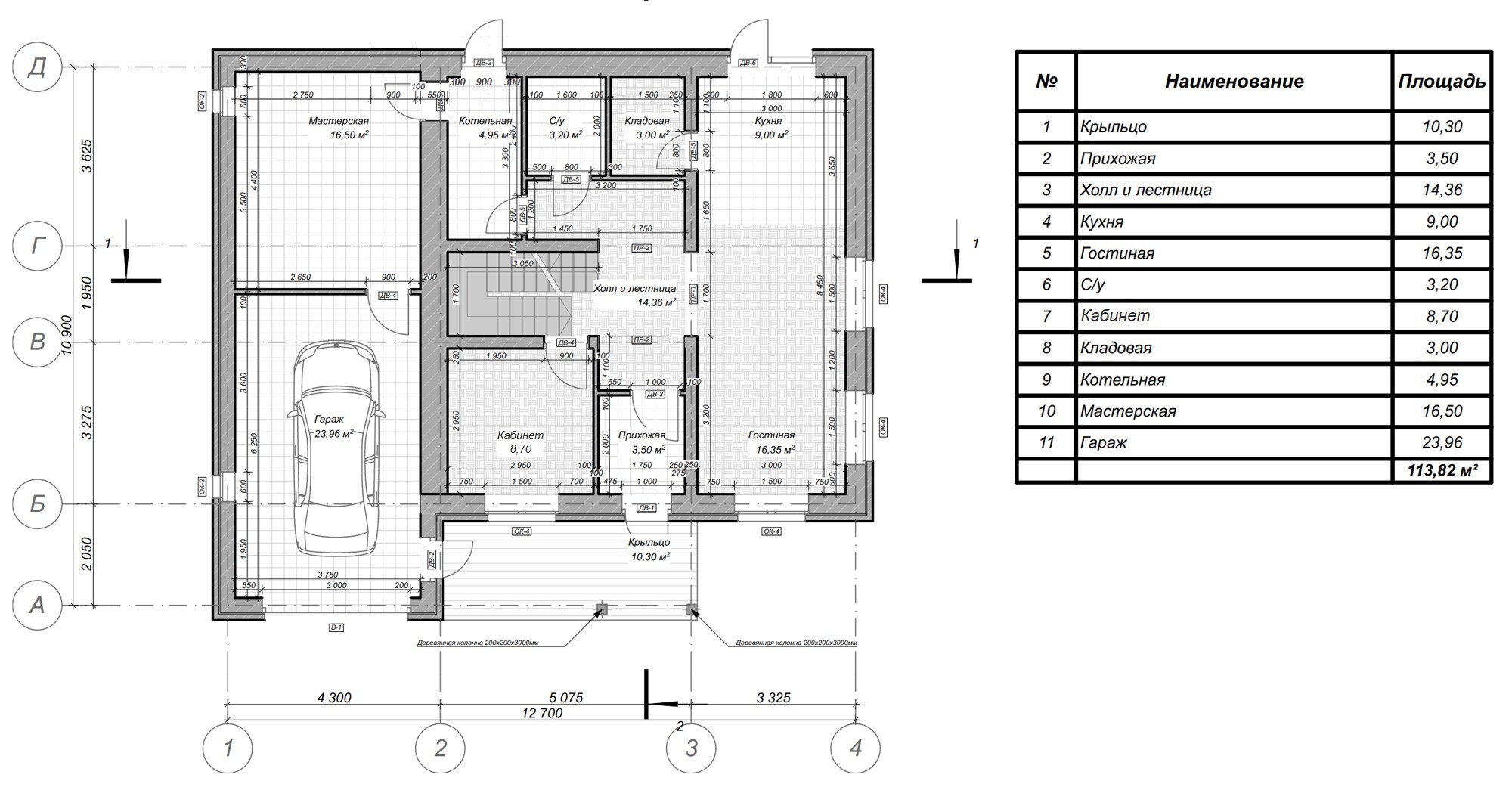
Мастерская изначально планировалась как баня, пока еще думаю оставить ли это баней или убрать перегородку и сделать большой гараж.
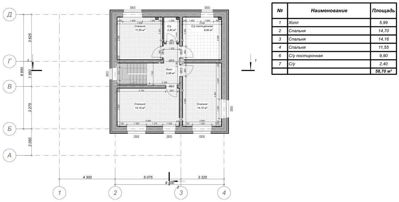
Спальни на втором этаже 14,16 и 14,70 квм - это, соответственно, детские комнаты. С/у постирочная - ванная со шкафом по ширине всей стены а-ля гардеробная, а также комната для стирки/сушки.
Если интересно, попробую собрать пост по этапам и стоимости строительства такого дома, регион Новосибирская область.


Строительство и ремонт
10.9K постов48.6K подписчиков
Правила сообщества
Правила оформления постов.
Посты видеоролики должны обязательно иметь описание о чём видео. Если видео длинное, то крайне желательно указать время, когда и о чём рассказываете.
В случае нарушения пост выносится из сообщества.
Правила общения.
Запрещено регулярное хамское и неуважительное обращение к другим участникам сообщества в рамках общения в комментариях. В случае первого нарушения бан в сообществе на 2-3 недели. В случае повтора постоянный.
Про нейросети
Тексты сгенерированные нейросетью, выносятся из сообщества, пользователь блокируется на неделю. При повторном нарушении перманентный бан для пользователя.
Про рекламу
Рекламные посты от платных/бесплатных аккаунтов запрещены. За первое нарушение блокировка на 7 дней. За второе перманентная блокировка.
Только для профессиональных участников рынка строительных услуг. (публикующихся регулярно)
Пост должен быть основан на личном опыте.
Должен быть информационно-познавательным (разъясняет/ объясняет что-то связанное с материалом/работой/организацией/и.т.д.) или пищей для ума (Взгляд на проблему, с другой стороны)
Запрещается публикация видео длиной более 5 минут без текстового таймлайна. ( надо указать где и о чём вы рассказываете в видео)
Не злоупотребляйте тэгами. Количество своих тэгов не более 4х шт. Тэги проставляемые системой не учитываются. (Длиннопост, видео, и.т.д.)