Кухня: 5.9 кв.м - это магия. Или впихнуть невпихуемое
Иногда, привычное окружение достает неимоверно. Старая мебель, не отмывающийся линолеум, дурная планировка... и хочется наконец избавиться от всего этого, взять в руки перфоратор, ломик, топор, да и снести все к лешему, приведя в порядок помещение, которое видело ремонт лет 30 назад. Вот и со мной такое приключилось...
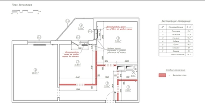
Итак, что имеем: Старая кухня в хрущевке (по факту, ремонт я устроил во всей квартире, но про это напишу как нибудь в другой раз, иначе пост растянется неимоверно). Площадь типичная - 5.9 квадратов, 1 окно, газ, водяные подводки в углу. Вот примерно вот так.
Не скажу что все убито - уход и чистка какая никакая была, но... сами понимаете. свободного места по сути нет, под окном - дующий *холодильник* (дырка на улицу с ящиком, если кто то не видел такого), настоящий холодильник в коридоре. Все забито мебелью - остается г образный проход с метр шириной.
Начал я с плана. Вначале просмотрел 100500 решений для хрущевок - благо в интернете их огромное количество. отобрал из сотен картинок десятки интересных. Порисовал на бумаге. Потом порисовал в 3д редакторе. Ну и родил вот это вот
В целом, задачи я видел следующий:
1) холодильник должен быть на кухне
2)рабочая зона должна быть большой
3)по возможности, пространство не должно быть загромождено
Вроде, простые задачи, но не для такого маленького помещения. Те кто проектировал такие кухни знают, наверное, что габариты не позволяют нормально поставить многие модули кухонные . Например, классику в виде холодильник - мойка - рабочая зона - плита невозможна, так как в длину помещения лезет всего 3 модуля по 60см , а не 4. И как сделать большой рабочую зону, если суммарная длинна помещения - 2.35 м... В общем, поломать голову было над чем.
Что я сделал, и почему:
0) Держите в голове, что все делалось под 1 человека, а не под семью, и под конкретно мои цели и привычки
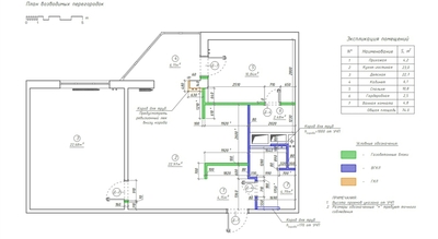
1) мойка, здоровенная, 62 см. Почему такая здоровая дура , на такой мелкой кухне (нелогично, вроде) - такая мойка при использовании дает очень мало брызг, и ее можно ставить около стены, не боясь ее залить и не испытывая необходимости тереться о стену - также удобством использования отчасти нивелирует необходимость в посудомойке - ее я не ставил. Положение раковины крайне левое - там подводки, канализация. Она занимает все место от стены до рабочей зоны, не оставляя неиспользуемых обрезков стола слева.
2)Далее, за раковиной идет рабочая зона, основная - именно на ней происходит 90% готовки. Простая логика - помыл продукт - передвинулся на шаг правее - начал его обрабатывать. Ее длинна - метр, и это отличный результат, я мало где видел рабочие зоны длиннее 40, 60 см в похожих помещениях.
3)Плита, на 2 конфорки. от 4 отказался умышленно - как показал лично мой опыт, я редко применял 2 конфорки одновременно, крайне редко 3, никогда 4, и в 90% случаев - одну. 2 конфорки оказались достаточны - если и есть необходимость греть сразу 3 блюда ( забегу вперед, так и не пришлось за год эксплуатации так делать) , можно поставить мультиварку. Ну и плита на 2 конфорки экономит лишние 20-30см, что в моих реалиях - дофига.
4) Холодильник. Камень преткновения, на планах он не лез нормально никуда. В итоге, я наткнулся на холодильники под столешницу - и понял что да, это оно! Да, они мелкие, дорогие, и были сомнения что мне его хватит. Я поступил просто - месяц пользовался только 3 полками в своем старом холодильнике, и по итогу понял что да - мне хватит. Он стоит под рабочей зоной, скрыт, и вместе с ним вырисовывается удобный треугольник перемещений при готовке - человек стоит по центру , перед рабочей зоной, справа - плита, слева - мойка, снизу - холодильник. Двигаться или не надо, или хватит 1 шага, чтобы что то сделать.
В общем, накидал я схему, все продумал, что мог, ну и начал все ломать) Не буду долго это описывать, типичная долбежка перфоратором. Пыльно, грязно, и шумно
В общем, разнес я все, кроме стояков) А потом была рутина - выравнивание стен по маякам , штукатурка, покраска стен. Самым геморным было восстановить подоконный блок ( он просто осыпался). Его я утеплил , ликвидировав подоконный холодильник, восстановил геометрию пеноблоками, и подготовил все для оьединения столешницы и подоконника. Это был очень важный этап - я планировал по полной программе использовать свободное место - в том числе, и подоконник, слив его со столом, а для этого надо было вывести стены в уровень , заказать окна с нужной высотой и пазом под монтаж столешницы, и самое сложное - учесть все точно , ведь ошибка означала бы что или кухня не встанет, или окна не откроются. допустимое отклонение было всего миллиметров 20, и то - вниз.
Вот что в итоге вышло. короб под батарею, подоконный блок - все выведено под уровень будущей столешницы и общий горизонт.
Все это заняло примерно месяца так полтора от момента демонтажа старой кухни. По завершению чистовой отделки, я заказал кухонные шкафчики. Денег у меня было не много, я заказывал все поэтапно - шкафы нижние - потом нижняя бытовая техника - потом верхние - потом еще техника - и в таком вот ключе постоянно. Заработал - купил - поставил. Начал я ожидаемо с низа.
покупал каркасы и фасады в икеа, остался доволен - все собирается в удовольствие, все точно и четко. в процессе монтажа, забегая вперед, я уронил 2 полки и повредил 1 фасад - все заменили на новые в течении 10 минут в икее (в течении 2 недель после покупки они заменяют даже то, что вы сломали по своей вине). В общем, икеа - рулит.
после сборки шкафчиков - наступил самый сложный момент. В плане видна очень сложная П образная столешница. Материал был выбран простой и дешевый - ЛДСПшная столешница. Изначально хотел покупать ее в икеа, но когда пришло время покупки оказалось, что темные ЛДСП у них все сняли с производства, а шпонированные покупать было слишком дорого. По итогу, закупил 3 столешницы по 2.45м в другом магазине.
Довольно мощные 40мм влагостойкие столы. стоили всего около 3500 за штуку , что было более чем приемлемо.
После покупки встал вопрос, как же эти заготовки сделать в виде столешницы. Оказалось, что найти исполнителя проблема - мне называли цены от 20 до 40 тр за работу, роспил в магазине не подходил - углы стен были не 90 градусов, а пилить под иные углы никто не хотел, да и попасть в угол было малореально по чертежам - при длинах в 2 метра отклонение лишь на градус дало бы очень большие щели.
Я не столяр, но я рискнул - арендовал в москве погружную пилу макита на 2 суток (2000р)
Ну и пошло-поехало. под каждый сегмент столешницы я делал картонный шаблон, который подгонял под углы стен - переносил его на столешницы - и пилил, молясь, чтобы не ошибиться. соединял между собой через стяжки, заполняя швы силиконом под цвет столов. Под стяжки фрезеровал выборки , пользуясь самодельной оснасткой и дрелью. Рассказывать как все это делалось очень долго, если будет интересно - расскажу в комментариях. Вот как это было в фотографиях
получилось мало того не ошибиться - я попал в допуск по стенам в 2мм. По итогу не понадобился плинтус - я закрыл микрощели силиконом.
После этого, в столах вырезались отверстия под мойку, плиту и прочее
Все это делалось очень медленно - у меня не было опята, я постоянно сверялся с инструкциями, гайдами, ютубом и форумами. В конечном итоге, примерно за 2 месяца я закончил нижний ярус
Особенно геморно было делать маленькую имитацию дверки под окном - пришлось юзать 3д принтер для того чтобы придумать крепеж. Примерно в то же время делал плиточный фартук, немного наползающий на столешницу. так как икеевская мебель делана под глубину 63см, а стандартная столешница - 60см, пришлось заполнять шов клей-пеной и наращивать стену гипсокартоном, дабы плитка оказалась там, где должна
Плитку кстати я тоже впервые делал сам) за ее монтаж запросили 15тр +-, я не был готов класть 9 плиток за такую сумму, хотя она и была понятна - никому не хочется делать такие мелкие заказы. В принципе, с СВП ничего сложного, медленно, аккуратно, и не спешить - и все получится. После нижнего яруса, я делал верх в 3 захода - купил шкафы второго яруса, смонтировал, купил третий ярус - смонтировал, в завершении поставил бытовую технику, которой не доставало.
Подсветку я также делал сам, Бп + лента стоили что то не более 1500 рублей. готовая подсветка для кухни в икеа обошлась бы от 8000.
В итоге, вышло вот это вот все (ниже склейка из фото, лимит на фото кончился).
Главная особенность всего проекта - это столешница сложной формы. Она позволила получить как адекватную рабочую зону , так и обеденный стол, который вмещает максимум 3 человека (1.85 метра если я верно помню). Самый интересный шкаф - это крайний левый, с мойкой. в него получилось запихнуть мойку, смеситель с выдвигающимся краником, измельчитель отходов, 2 контейнера под мусор, 2 контейнера под овощи, и еще 2 контейнера под всякую бытовую химию. в нем же подвесная колба с моющим средством (на столешнице виден краник) - чтобы не захламлять столешницу всякими флаконами. Все задумано так, чтобы на столе не копился хлам - терпеть не могу, когда стол завален всякой утварью.
Также, получилось установить полноразмерную духовку ( мне это важно, я очень много пеку), скрытую вытяжку. Мест для хранения тоже очень много, причем они ранжированы по важности - первый ярус подвесных шкафов сделан для вещей которые нужны часто, второй - антресоли - используется для хранения редко используемой кухонной техники.
Я комментом сделаю еще несколько фоток, которые не влезли в пост. Спасибо за то, что прочли такую простыню (если прочли))














































Строительство и ремонт
10.9K постов48.6K подписчиков
Правила сообщества
Правила оформления постов.
Посты видеоролики должны обязательно иметь описание о чём видео. Если видео длинное, то крайне желательно указать время, когда и о чём рассказываете.
В случае нарушения пост выносится из сообщества.
Правила общения.
Запрещено регулярное хамское и неуважительное обращение к другим участникам сообщества в рамках общения в комментариях. В случае первого нарушения бан в сообществе на 2-3 недели. В случае повтора постоянный.
Про нейросети
Тексты сгенерированные нейросетью, выносятся из сообщества, пользователь блокируется на неделю. При повторном нарушении перманентный бан для пользователя.
Про рекламу
Рекламные посты от платных/бесплатных аккаунтов запрещены. За первое нарушение блокировка на 7 дней. За второе перманентная блокировка.
Только для профессиональных участников рынка строительных услуг. (публикующихся регулярно)
Пост должен быть основан на личном опыте.
Должен быть информационно-познавательным (разъясняет/ объясняет что-то связанное с материалом/работой/организацией/и.т.д.) или пищей для ума (Взгляд на проблему, с другой стороны)
Запрещается публикация видео длиной более 5 минут без текстового таймлайна. ( надо указать где и о чём вы рассказываете в видео)
Не злоупотребляйте тэгами. Количество своих тэгов не более 4х шт. Тэги проставляемые системой не учитываются. (Длиннопост, видео, и.т.д.)