Что нам стоит дом построить? Часть 2
Итак, прошло много времени с написания прошлого поста. Хочу отметить, что у нас активно начались работы по дому и участку, поэтому времени банально не хватало, чтобы сесть писать.
В прошлой части мы остановились на обращении к проектировщику. Поскольку опыта работы с такими людьми у нас не было, пошли шерстить интернет. Просматривали различные сайты организаций, авито, искали по соседям и знакомым. Таким образом вышли на одного человека, посмотрели его работы и нас все устроило. По времени создание проекта каркаса заняло около месяца. Мы получили визуалы экстерьера, разрезы, чертежи конструкций и свайного поля, подробные схемы по сборкам узлов каркаса, карту распиловки материала и смету по материалам. Забегая в будущее - по смете сошлись, но все нужно брать с запасом в 10%. В общем как лего - только кубики побольше.
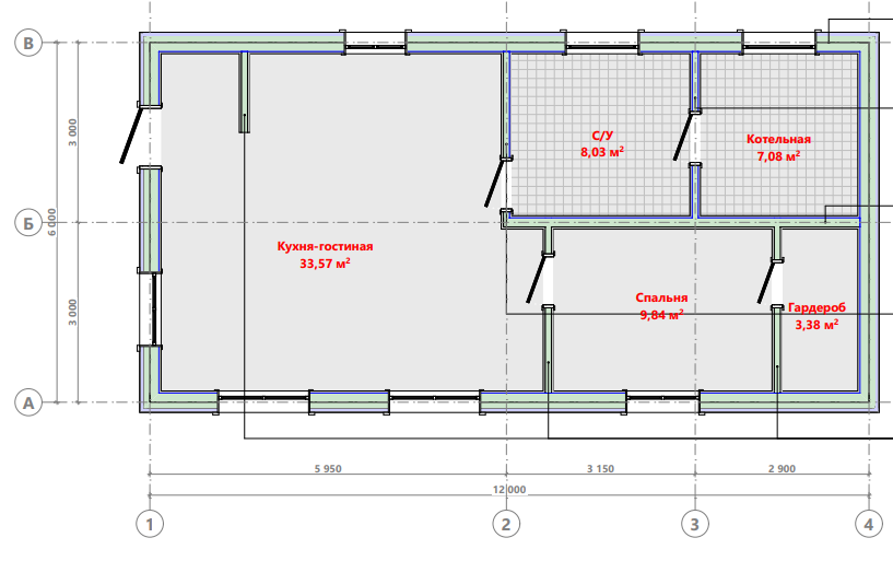
Планировка после всех обсуждений получилась следующая:
Имея на руках проект, некоторую сумму денег, разбили дело на этапы и начали подготовку к постройке. Начали с подготовки к подготовке земельного участка (далее по тексту буду писать ЗУ). Для начала - нарисовал схему ЗУ на бумаге в масштабе. Из бумаги других цветов, также в масштабе, вырезал домик, парковку, места для коммуникаций, будущие, планируемые, строения. Сразу отметил на схеме ЗУ границы, где можно ставить строения, а где нельзя. И начал планировать. Было примерно 4 итерации, по итогу - выбрал максимально удобною для нас. И все завертелось.
Первым делом подаем уведомление о планируемых строительстве или реконструкции объекта индивидуального жилищного строительства или садового дома через госуслуги. Там ничего сложного, нужно указать параметры будущего дома (высота, ширина, длинна, площадь) и нарисовать простую схему с указанием отступа от границ. В ответ администрация присылает - "да - стройте" или "нет - исправьте".
Следующее, но не менее важное в любом деле - поставить туалет.
Был накинут чертежик уличного туалета из брусков 50х50 и osb, выбрано расположение и вуаля!
Установили, теперь работать на участке можно дольше :)
Далее - мы брали участок зимой, до этого там было поле, которое долгое время не окашивалось. По весне у нас был бурелом вперемешку со старой сухой травой, стеблями и прочим. Мотокосой это не бралось совершенно, в связи с этим было принято решение заказать мульчер. Минитрактор замульчировал всю траву примерно за 2-3 часа, а дальше граблями мы собрали её в стога и вывезли. Выравнивать участок не стали, перепад высот нас вполне устраивал (на 6 метров около 50см перепад), плюс дом будет располагаться в самой высокой части участка.
В промежутке между подготовкой участка и строительством туалета нам подвели электричество. 3 фазы, 15кВт все стандартно. Поставили столб напротив моего участка и удалились. Пришлось ставить свой столб у себя на участке и кидать воздушку через улицу.
Поскольку забора пока нет и пока не планируется, а дежурить на участке я на то время не мог, было принято решение повесить камеры видеонаблюдения, чтобы, если что, успеть приехать (благо мне 5 минут езды до участка) и мы начали готовить место под стройматериалы.
Сделали разметку под будущий склад пиломатериала и параллельно с этим процессом забили сваи под фундамент согласно проекту свайного поля.
Так как дом каркасный - основной стройматериал - дерево. Дерево было предварительно заказано в соответствии со сметой на местной лесобазе. Древесина нестроганная, камерной сушки. Не все так делают, но тут все было ок. Дерево сухое, отличное, 1 сорт. Но опять-же, забегая вперед - в следующий раз я бы делал из строганной доски. Так проще было бы в дальнейшем.
Ну а поскольку просто кидать дерево на грунт - идея не очень, построили навес. Сперва основание:
На это основание штабелями стали укладывать доски. Доски привезли до заезда на фуре, дальше манипулятором перегружали партиями непосредственно на участок.
За день дружной компанией друзей раскидали все доски в штабеля. Прокладывали между каждым рядом рейки, делали отступ между штабелями. В темноте уже успели собрать крышу нашего временного навеса.
Итак, у нас есть - подготовленный к стройке участок, туалет, пиломатериалы. Следующим этапом нужна бытовка. Бытовку взяли в аренду у знакомых, металлическую с нормальной дверью. Завели туда свет, минимальные бытовые вещи и начали подготовку привезенного материала.
Для начала - доску необходимо было обработать. Решили брать неомид 430, невымываемый для основных досок каркаса, и неомид 450 для пропитки леса под кровлю.
Касательно способов нанесения - попробовали все, рекомендованные производителем.
1. Распыление - не понравилось. Пробовали электрораспылителем, 430 неомид съел оцинкованные детали (это указано в ТДС производителя). Плюс количество материала получается, как по мне, недостаточное для нормальной пропитки.
2. Нанесение кистью - отлично, пропитывает хорошо, делали в 2 слоя с промежуточной сушкой. Но 40 кубов руками вынести - пропитать, перевернуть, занести - занятие не из простых.
3. Погружение в раствор - жаль не решились раньше. Опускали доски в самодельную ванну с раствором, выдерживали и откладывали на сушку. Таким методом получается работать быстро, меньше устаешь, меньше пачкаешься.
Ванну для досок делали сами, из, собственно, досок и пленки. Вмещает в себя за раз 2 доски 200х50х6000.
Таким образом была обработана вся древесина, предназначенная для строительства. Исключение составляла та доска, которая шла на крышу и которую собирались покрывать неомидом 450 - её было в разы меньше и мы её пропитывали кистью.
Параллельно с подготовкой закупался необходимый инструмент, об этом в следующей части.
Отдельная строка данного повествования - поиск необходимого и качественного. На данном этапе строительства - оголовков на сваю.
Ребята, которые забивали сваи предложили свои оголовки, но когда привезли их - мы их брать не стали. Тонкая сталь, не окрашены, сварка не очень. Начались поиски. Авито, сайты, люди, заводы. В итоге - нашли в городе Королев, скатались, забрали. И так почти на каждом этапе будущей стройки, к этому надо быть готовым. Что какая-то мелочевка заставит тебя искать во всех регионах в округе нужную вещь.
Уважаемые пикабушники, на сегодня это все, в следующей части постараюсь рассказать о необходимом инструменте для начала строительства и покажу следующие этапы стройки.












