Замена пола ч.1
В догонку к посту http://pikabu.ru/story/zvukoizolyatsiya_pola_v_kvartire_pol_...
хотел сделать пост чуть позже, но раз пошла тема сделаю сейчас.
Сразу хочу отметить что ремонт еще в процессе, чистовой отделки пока нет.
Итак, имеем, двухкомнатную хрущевку 1961г постройки:
Полы - паркет щитовой
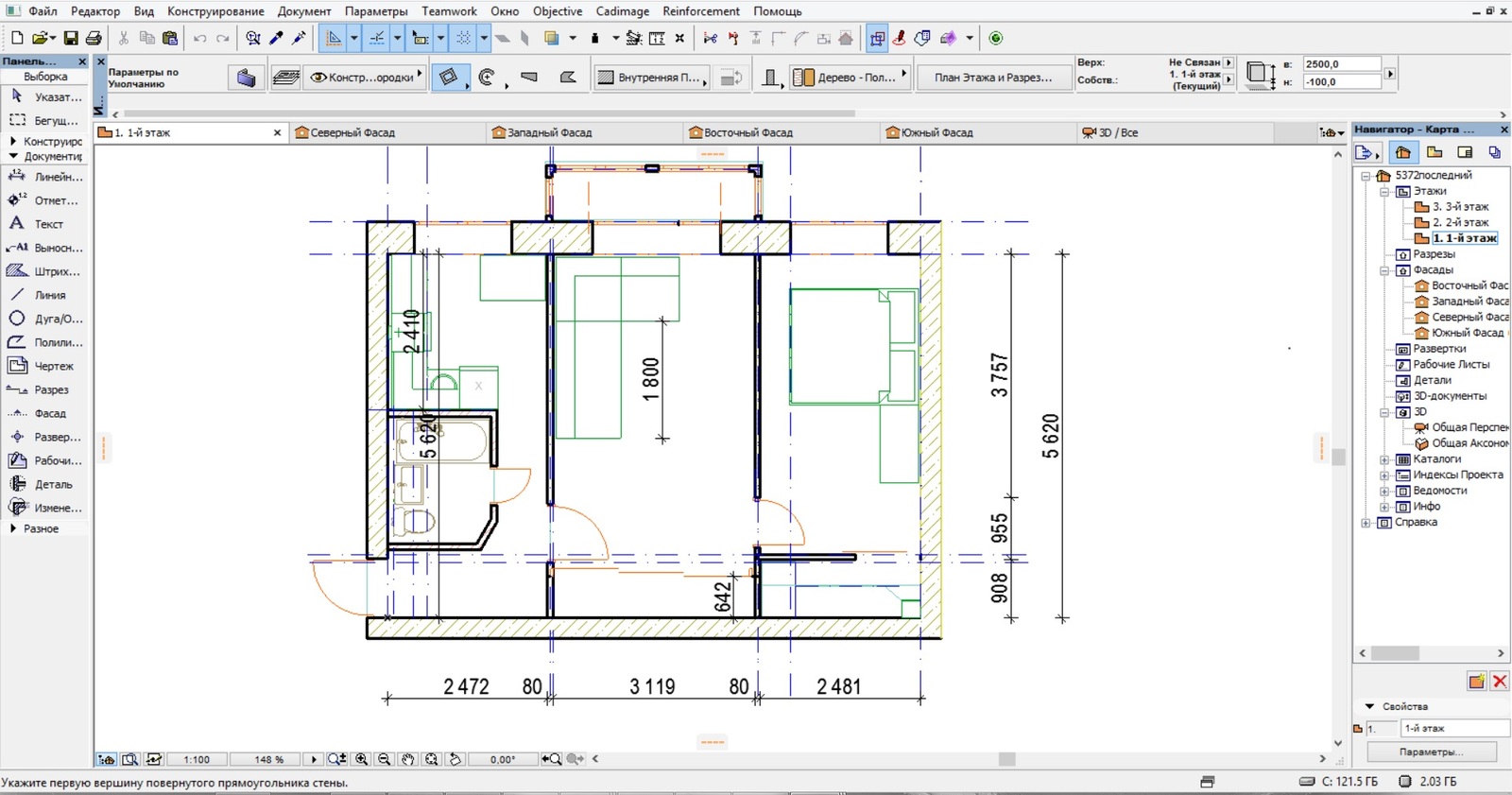
Делал я его путем обмера, потому что в техпаспорте и проектах, которые в сети, размеры могут не совпадать.
Когда есть понимание что как и где начинаем демонтаж:
Под полом Очень много мусора, в основном это песок и строительный, хотя попадаются и интересные вещи - сережки, цепочки, монеты. Демонтировав выскребаем весь мусор и демонтируем стены:
Далее сделал в автокаде РД на пол и стены, посчитал сколько нужно материалов, заказал, привез, и начался процесс обратный демонтажу.
Начал со стен
Больше не влезло, допишу позже























