Почему трещат стены?
Еще один поучительный случай из практики обследования. Простейшее по конструктиву здание - кирпичные несущие стены, фундамент из блоков ФБС, пустотные плиты перекрытия и покрытия. Один этаж и техподполье. Казалось бы, стоять такому зданию 100 лет без проблем? Нифига, только не у меня в подборке.
Первая мысль - может эти трещины для устрашения посетителей, чтоб легче анализ кала было сдавать? Здание-то как раз действующая лаборатория. Но вроде в санпинах такой методики не описано, поэтому зайдем со строительно-технической стороны. Трещин много, они сквозные, персонал даже жалуется, что сильно дует зимой, приходится заклеивать. Летом, правда, сплошная польза от них - дополнительная вентиляция. Шутки шутками, но это все плохие факторы. И особенно плохой - трещины пересекают отдельные кирпичи. То есть, в слабость раствора и плохую гидроизоляцию кровли, влекущую протечки в кладку, поверить нельзя (судя по внешнему виду здания). Неужели силовые? И при этом еще и нестабилизированные - маячки рвутся. Но откуда взяться нагрузке в таком-то конструктиве? Оговорюсь - никакого тяжелого оборудования нет.
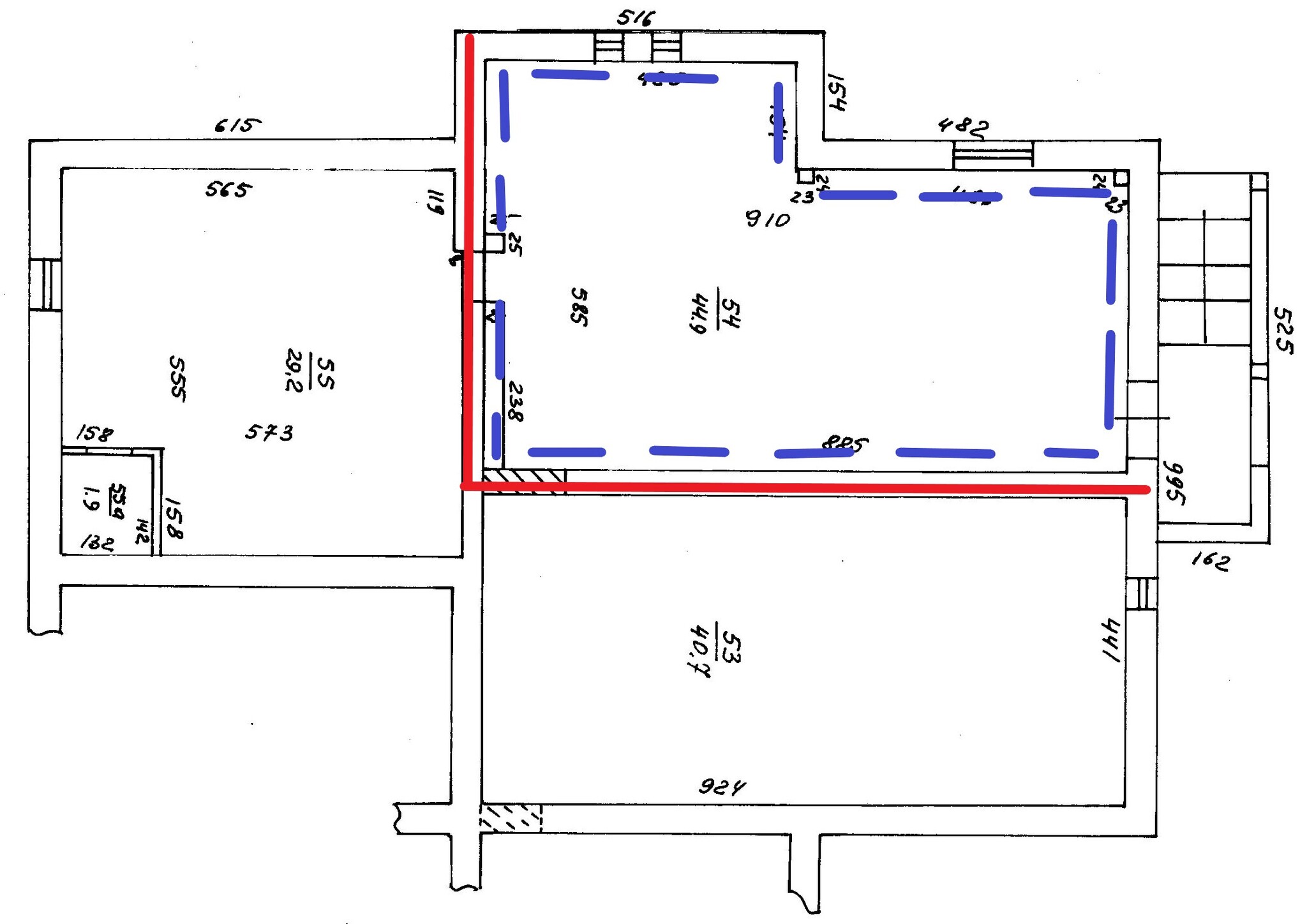
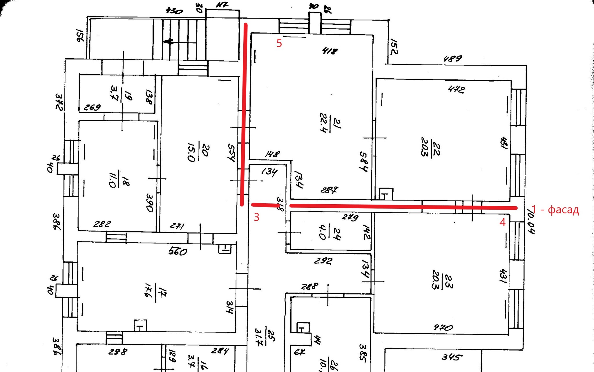
Начинаем анализировать расположение трещин. Их много, но самые большие кучкуются в зоне двух стен (отмечал не все):
Нумерация соответствует номерам фото в посте. Красными линиями - направления стен, дальше пригодится.
Ага, а стены эти - несущие. Пора спуститься в техподполье. И когда я туда спускался, то вспомнил, что его высота по техпаспорту - 1,8 м. То есть пройти-то я пройду, но потолок будет в нескольких сантиметрах над макушкой. А фактически высота помещения сильно больше - в районе 2,2 м. Зацепка.
Смотрим на стены помещения (помещение обведено синим штрихпунктиром) - а там все откопано! Даже низ блоков ФБС местами над грунтом висит. А на эти фундаменты как раз и опираются наиболее дефектные стены 1-го этажа (которые красными линиями на схемах отмечены).
Как так получилось? Переносимся в конец 90-х. Разруха, нищета, а в лаборатории - свободное техподполье, которое можно сдавать коммерсам! Только вот неурядица - высота маленькая, надо углубить. И углубили. Уровень чистого пола стал в одном помещении (синий штрих-пунктир на схеме) чуть ниже подошвы фундамента, причем без всяких усилений. А как понимаете, под уровнем чистого пола еще сантиметров 10 было выкопано и залито стяжкой. Вроде бы мелочь, но структура грунта нарушена. Может и стояло бы здание так и дальше, да в 2004 в Калининградской области случилось землетрясение. Скорее всего оно и дало толчок к началу трещинообразования. В середине 10-х люди обеспокоились - трещины стали видны, ближе к 20-м маячки клеили. Почему-то не помогло. Я же на объекте был в 2022 году. И сорока лет здание нормально не отстояло - год постройки 1988...
Напоследок - пара забавных фото:











Строительство и ремонт
10.6K постов48.3K подписчиков
Правила сообщества
Правила оформления постов.
Посты видеоролики должны обязательно иметь описание о чём видео. Если видео длинное, то крайне желательно указать время, когда и о чём рассказываете.
В случае нарушения пост выносится из сообщества.
Правила общения.
Запрещено регулярное хамское и неуважительное обращение к другим участникам сообщества в рамках общения в комментариях. В случае первого нарушения бан в сообществе на 2-3 недели. В случае повтора постоянный.
Про нейросети
Тексты сгенерированные нейросетью, выносятся из сообщества, пользователь блокируется на неделю. При повторном нарушении перманентный бан для пользователя.
Про рекламу
Рекламные посты от платных/бесплатных аккаунтов запрещены. За первое нарушение блокировка на 7 дней. За второе перманентная блокировка.
Только для профессиональных участников рынка строительных услуг. (публикующихся регулярно)
Пост должен быть основан на личном опыте.
Должен быть информационно-познавательным (разъясняет/ объясняет что-то связанное с материалом/работой/организацией/и.т.д.) или пищей для ума (Взгляд на проблему, с другой стороны)
Запрещается публикация видео длиной более 5 минут без текстового таймлайна. ( надо указать где и о чём вы рассказываете в видео)
Не злоупотребляйте тэгами. Количество своих тэгов не более 4х шт. Тэги проставляемые системой не учитываются. (Длиннопост, видео, и.т.д.)