Стоимость дизайн-проекта и ремонта квартиры в стиле джапанди в ЖК «AMO» в Санкт-Петербурге
Дизайн-проект квартиры в ЖК «AMO» в Санкт-Петербурге — пространство 50 м² для молодой пары, которая работает удалённо. Основа концепции — джапанди: природная палитра, натуральные фактуры, продуманная перепланировка и два разнесённых рабочих места. В интерьере использованы стеклянные перегородки, нестандартные предметы и решения, которые укладываются в чётко рассчитанный бюджет. Читайте до конца — дальше разбор проекта с практическими выводами.
Мы в студии Artum строим проекты так, чтобы задуманные решения без потерь переходили в ремонт и оставались в рамках согласованной суммы. В начале работы мы закрепляем диапазон затрат, подбираем материалы и технические решения с реальной доступностью, а также расставляем акценты: где стоит вложиться, а где можно разумно оптимизировать без ущерба качеству. Загляните в портфолио студии — там видно, как проект выглядит после реализации.
Содержание:
📍 Планировка квартиры в ЖК «AMO»
📍 Дизайн интерьера прихожей
📍 Дизайн кухни-гостиной
📍 Интерьер спальни с кабинетом
📍 Дизайн-проект ванной комнаты
📍 Сколько стоит дизайн-проект квартиры в ЖК «AMO»
📍 Сколько стоит ремонт квартиры в ЖК «AMO»
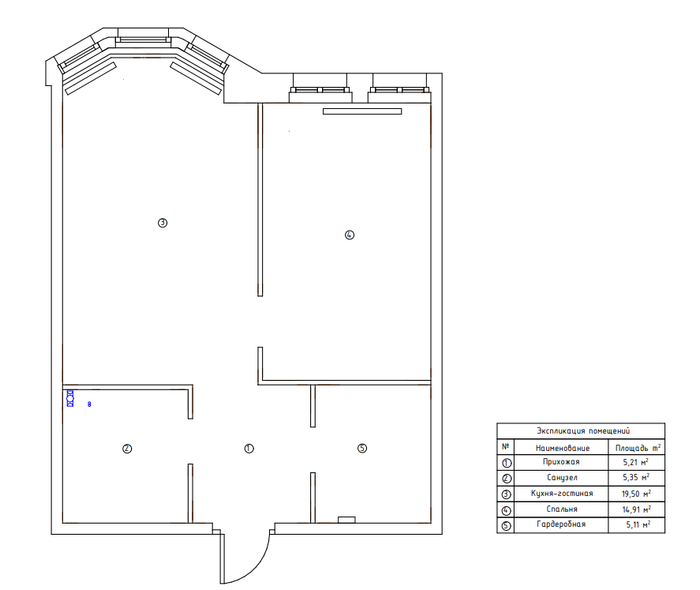
Перепланировка квартиры в ЖК «AMO»
В исходном варианте вход в гардеробную располагался со стороны прихожей, а спальня была отделена глухой стеной. Мы перестроили план под сценарии жизни пары: перегородку между спальней и гардеробной демонтировали и заменили на стеклянную систему. Помещение гардеробной перепрофилировали в полноценный кабинет с изолированным рабочим местом.


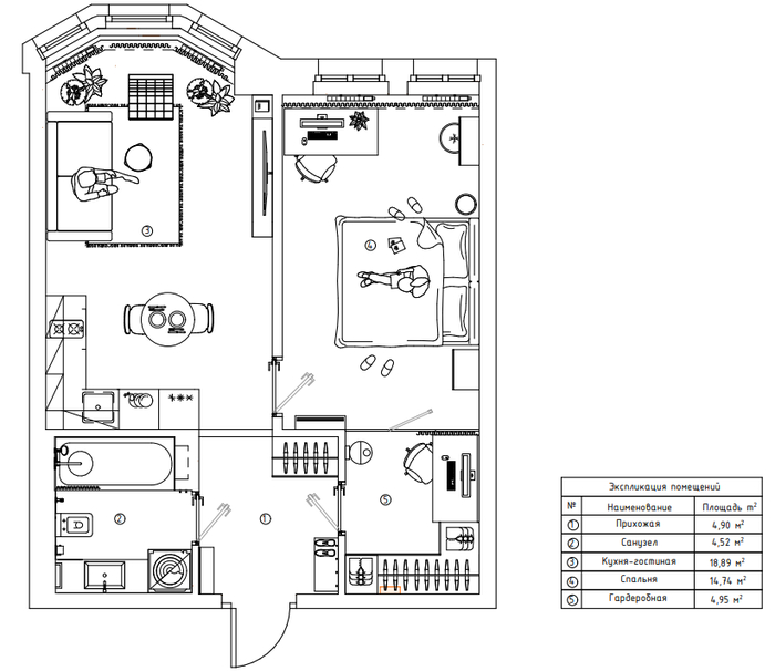
Планировка до и после.
Вторую рабочую зону аккуратно организовали в спальне. В санузле перенесли вход, чтобы разместить широкую ванну полноценного формата. Над проёмом в кухню-гостиную дополнительно сделали простенок — он нужен был, чтобы корректно вывести дренаж кондиционера в стояк.
Дизайн интерьера прихожей
Входная зона получилась сдержанной и практичной: много дерева и светлые нейтральные плоскости задают тон всему интерьеру. Стену у двери оформили шпонированными панелями, добавили встроенные крючки и компактную банкетку — функционально и без лишних деталей.



Визуализация прихожей.
Зеркало во всю высоту с мягкой подсветкой визуально увеличивает пространство и даёт ощущение глубины, что важно на небольшом метраже. Системы хранения и скрытые двери держат линии ровными и не перегружают прихожую.
Дизайн кухни-гостиной
Кухню-гостиную задумали как общее место для отдыха и встреч, не смешивая его с домашними рабочими зонами. Кухонный фронт собрали из тёплого шпона и светлых фасадов, технику спрятали встройкой и добавили аккуратную подсветку на рабочем участке. Обеденную часть решили компактно: круглый стол и выразительные стулья поддерживают природную гамму проекта.




В гостиной акцентом стал диван приглушённого зелёного оттенка — его дополнили фактурным ковром и невысоким столиком. ТВ-зону сделали спокойной и чистой по виду: экран и тумба с закрытым хранением не перетягивают внимание.
Интерьер спальни с кабинетом
Спальня выдержана в тёплых светлых тонах, с деревом и мягкими зелёными акцентами — это поддерживает направление джапанди. Главный фокус — кровать с мягким изголовьем; её дополняют лаконичные подвесные светильники и встроенные прикроватные решения.






Визуализация спальни.
Кабинет отделили стеклянной перегородкой, поэтому рабочая зона получилась изолированной, но визуально лёгкой. Небольшой стол, встроенное хранение и нейтральная отделка дают удобный формат для работы и не утяжеляют спальню предметами.
Дизайн-проект ванной комнаты
Ванная решена на светлой нейтральной базе с тёплыми терракотовыми акцентами, которые поддерживают общий характер проекта. Планировкой предусмотрели широкую ванну, встроенное хранение и нишу под косметику — при этом пространство осталось собранным и не перегруженным.




Визуализация ванной комнаты.
Умывальную зону оформили подвесной тумбой, большим зеркалом и мягкой подсветкой, удобной для ежедневных задач. Стиральную и сушильную машины встроили в колонну, чтобы сохранить чистую геометрию помещения.
⭐ Сколько стоит дизайн-проект квартиры в ЖК «AMO»
Для квартиры площадью 50 м² подготовили полный дизайн-проект. Стоимость составила 275 000 рублей, то есть 5 500 руб./м². В состав вошли планировочные решения, разработка визуальной части, подбор материалов и мебели и полный комплект рабочей документации.
Проектирование заняло 59 дней — за этот срок удалось тщательно проработать и визуальную идею, и технические детали.
✅ Сколько стоит ремонт квартиры в ЖК «AMO»
Реализация проекта обошлась в 7 000 000 рублей. В сумму вошли строительные и инженерные работы, чистовые материалы, мебель, техника и освещение. Общая стоимость «под ключ» вместе с дизайн-проектом составила 7 275 000 рублей.
💎 Сопровождение и реализация проекта
Даже самый выверенный дизайн-проект нуждается в контроле во время ремонта — именно здесь чаще всего появляются расхождения с запланированными решениями. Сопровождение закрывает координацию подрядчиков, контроль соответствия работ проекту и оперативное решение технических вопросов, чтобы заказчику не приходилось участвовать в процессе каждый день.
В студии Artum есть два формата:
— авторское сопровождение — 45 000 руб./мес.
— комплексное сопровождение — 80 000 руб./мес.
Работа ведётся весь срок ремонта: в среднем это 8–11 месяцев, и продолжительность зависит от сложности инженерии, объёма отделки и выбранных решений.
💵 От чего зависит стоимость дизайн-проекта
Стоимость рассчитывается индивидуально и не сводится только к площади — даже в одном жилом комплексе задачи и уровень проработки могут отличаться заметно. На цену влияет объём перепланировки, сложность инженерных схем, высота потолков, конфигурация несущих конструкций и тип остекления.
Дополнительно учитываются выбранные материалы, наличие встроенных систем, техническое оснащение и количество мебели, выполненной по индивидуальным чертежам.















