Беседка с вальмовой крышей
Приветствую, дорогие друзья! Подписчикам отдельный (написанный каллиграфическим с почерком) привет!!!
Пока каникулярю, наконец-то добрался до темы ) . Некогда, знаете-ли, было.
Заказали у нас в мастерской беседку. С крышей типа вот:
Вальмовая называется.
Мягкая кровля.
Штош, рукава прочь (в яростном порыве закатать-оторвал нах). И приступаем к работе.
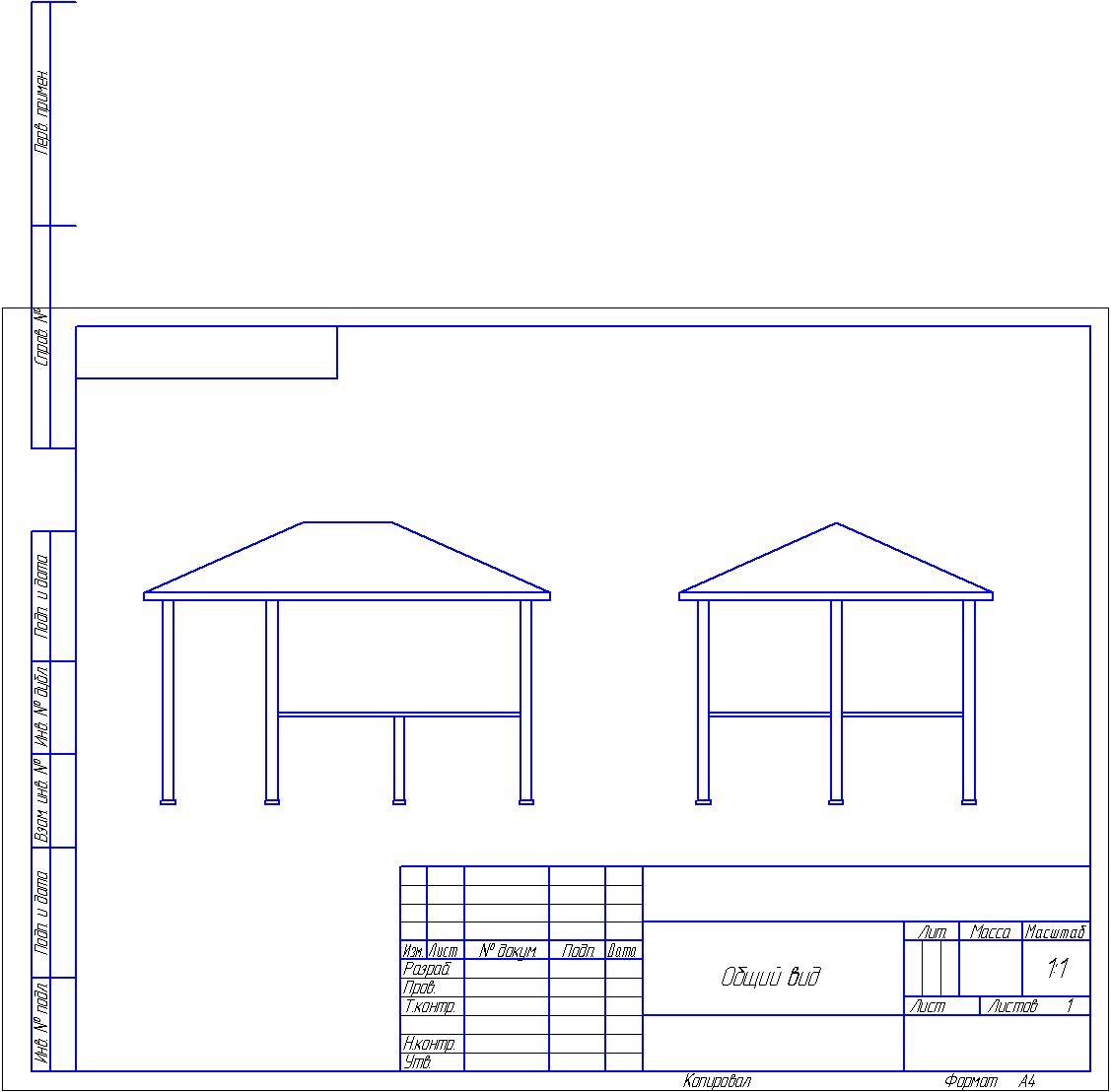
Первым делом накидываем эскиз, для понимания. Габарит у нас 3000*4000.
Ну и клиенту шоб показать как оно, примерно будет.
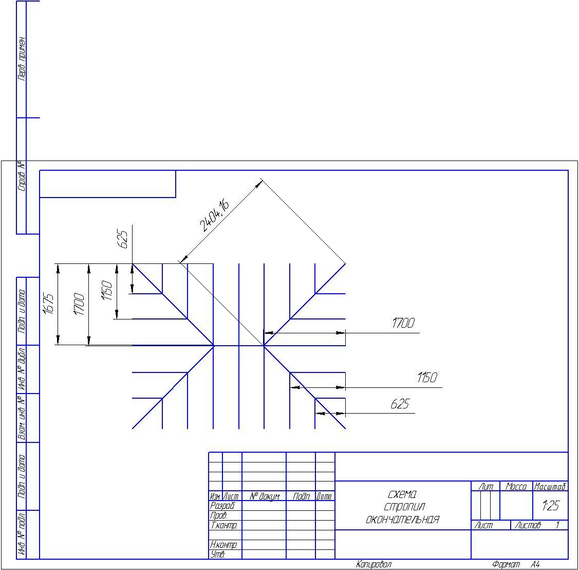
А это уже для себя. Так сказать: для внутреннего пользования.
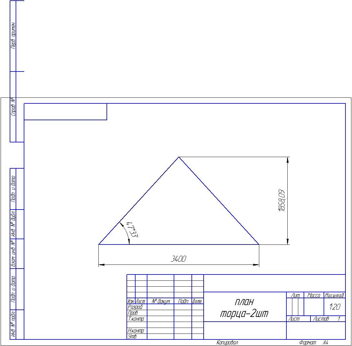
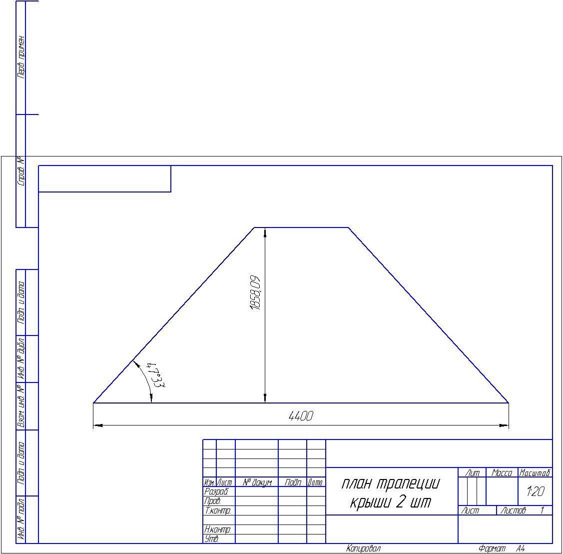
Для расчёта кровли:
Прошу прощения за долгое вступление.
Просят, понимаешь, люди поподробнее.
Ну и собсна сам процесс. Правда не настолько подробный, как вступление. Сорри. Ну тут либо-либо.
Либо ты Шрайбикус, либо: работать нада !!!
Как ставили основание/пол некому было фотать. Ежли интересно кому-велкам в комменты.
Поэтому начнём вот с этого этапа:
Столбы выставлены, Мауэрлат и перголы на месте. Ограждение только с торца.
Ну вот и стропильная на месте. Правда ещё не подстрижена. Ограждение полностью:
Стропила подстригли и ставим "тормоза" для OSB. Обведено жёлтым:
Летать верхом на OSB, канеш, весело... Приземлятся грустно, понимаешь.
Как постелить кровлю? Да просто! Кидаем OSB, и обрезаем всё лишнее )
Заканчиваем с основанием.
Правда процесс с кровлей, и глухими стенами некому было снимать.
Поймите и пгастите (с)... Люто тапками не швыряйте (с).
Ну вот. Почти финиш.
Не установлен короб (помечен красной стрелкой), и декоративные отделочные элементы (жёлтая область) :
Вот и всё.
Установлены все декоративные элементы. Мебель расставлена.
Клиент улыбается ) Мы тоже. Заиграла музыка, и началась дискотека.
Как-то так. Прошу прощения за не полный репортаж. Чукча не шрайбикус. Чукча столяр-плотник.
Если есть вопросы, то велкам. Постараюсь ответить.
С уважением tjomytsch















