Ответ на пост «Небольшой уютный домик 9х11,5, зато свой»3
Мой домик очень похож, но он на 2-х человек.
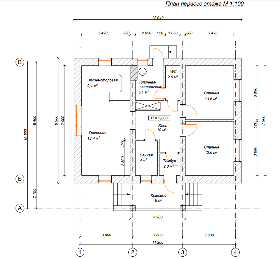
Крыльцо, да , неправильное. Открытое проходное со ступенями с двух сторон, красиво, кирпичные столбики и между ними перила, но ... снег, дождь + теплопотери. Закрыли. Вход с одной стороны , со стороны литеры А. Снег пытается падать на голову, когда сильное таяние еще и вода переполняет желоба, заливает дорожку, ночью подмораживает и каток обеспечен.
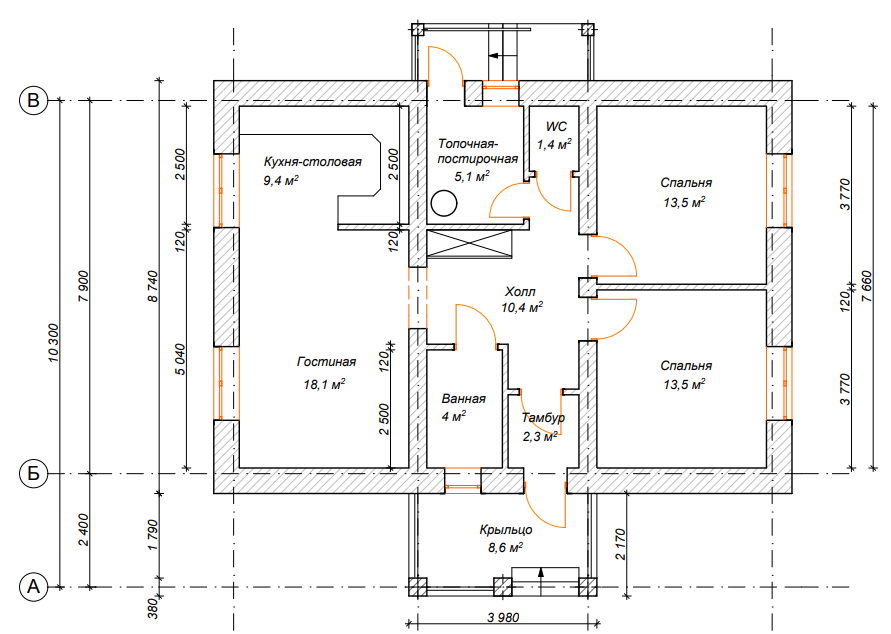
Площади помещений получились чуть меньше, из-за небольших погрешностей кладки и непрофессиональной штукатурки.
Дверь, где тамбур не делали сразу, слишком тесно.
Нетрадиционное решение: одно большое окно и 2 маленьких по торцам. Снаружи смотрится так себе, но жить очень удобно, чем если бы было 2 окна симметрично расположенных. Кто сомневается попробуйте расставить хотя бы диван и телек в гостинной при таком варианте:
Сзади еще одна дверь нафиг не нужна, но нам без нее не подписывали проект газовщики. Там же в топочно-постирочной лаз вниз в подполье и вверх на чердак. Как в таком доме жить вчетвером - не представляю.



Строительство и ремонт
10.7K постов48.3K подписчиков
Правила сообщества
Правила оформления постов.
Посты видеоролики должны обязательно иметь описание о чём видео. Если видео длинное, то крайне желательно указать время, когда и о чём рассказываете.
В случае нарушения пост выносится из сообщества.
Правила общения.
Запрещено регулярное хамское и неуважительное обращение к другим участникам сообщества в рамках общения в комментариях. В случае первого нарушения бан в сообществе на 2-3 недели. В случае повтора постоянный.
Про нейросети
Тексты сгенерированные нейросетью, выносятся из сообщества, пользователь блокируется на неделю. При повторном нарушении перманентный бан для пользователя.
Про рекламу
Рекламные посты от платных/бесплатных аккаунтов запрещены. За первое нарушение блокировка на 7 дней. За второе перманентная блокировка.
Только для профессиональных участников рынка строительных услуг. (публикующихся регулярно)
Пост должен быть основан на личном опыте.
Должен быть информационно-познавательным (разъясняет/ объясняет что-то связанное с материалом/работой/организацией/и.т.д.) или пищей для ума (Взгляд на проблему, с другой стороны)
Запрещается публикация видео длиной более 5 минут без текстового таймлайна. ( надо указать где и о чём вы рассказываете в видео)
Не злоупотребляйте тэгами. Количество своих тэгов не более 4х шт. Тэги проставляемые системой не учитываются. (Длиннопост, видео, и.т.д.)