Оцените планировку1
Добрый день!
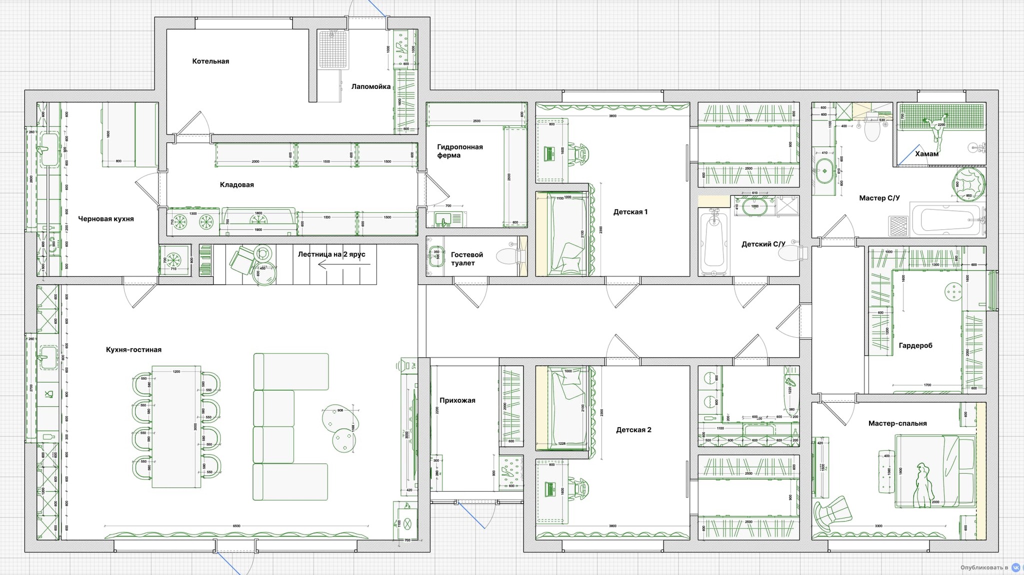
Я видел тут много постов с просьбой оценить планировку дома, так что решил присоединиться.
Строиться планирую начать весной 2025 года. Технология: УШП+ЛСТК+Пенобетон.
Планировку делал сам в программе РемПланнер. Строиться по этому проекту не планирую, рассматриваю ее скорее как максимально подробное ТЗ для архитекторов и дизайнеров.
Буду рад получить конструктивную обратную связь по планировке, ибо вложил в нее душу, переделал уже очень много вариантов и вообще очень постарался :)
Общая площадь первого яруса примерно 230 метров, второго - примерно 40. Он только над котельной и кладовой.
Я люблю готовить, и не всегда это что-то чистое и не вонючее. Иногда - самогон, консервы, колбасы и сыровяленое мясо. Поэтому черновая кухня нужна, чтоб я засирал только ее :)
И большая продуктовая кладовая с холодильником и морозильным ларем, чтобы хранить результаты своего труда. Так же есть небольшая гидропонная ферма на 2 стеллажа для овощей и зелени. Над этими помещениями планируется второй ярус, где будет творческая студия супруги и иногда мой кабинет и игровая комната.
Внешне дом будет выглядеть примерно вот так вместе со вторым ярусом:
А лестница из гостиной будет плюс-минус вот такая, только под лестницей не подсолнухи, а нычка для чтения.
Это будет не единственное строение на участке, отдельно будет еще мини-столярная-мастерская для других моих хобби, и там же кладовка для инструментов и прочих автомобильных шин, лопат и вот этого вот всего, поэтому в доме кладовку для такого рода хлама не предусматривал.
Что думаете о такой планировке? На что стоит обратить внимание? Что стоит учесть и проработать?



