История одного строительства или как построить один жилой дом из двух морских контейнеров (часть третья)
Продолжаю про строительство дома, Начало тут
История одного строительства или как построить один жилой дом из двух морских контейнеров
И тут
Сегодня часть про инженерные системы. Это скучная часть, в ней не много веселых картинок, но меня много раз просили рассказать обо всей инженерке и пройти мимо этого я сегодня не могу, так что простите меня любители веселых картинок.
Несмотря на то что домик изначально планировался как временный, мне предстояло в нем жить, поэтому инженерные системы планировались сразу все. Никаких удобств на улице или воды из колодца. Полный набор всех удобств, которые предлагает обычная городская квартира.
Система электроснабжения
Система водоснабжения
Система канализации
Система отопления
Система вентиляции
Из всего этого мне светило только электричество, поэтому все остальное надо было делать самостоятельно. Хотелось чтобы дома было хорошо тепло и уютно, примерно так. (Да, да, да мы так и не выбрали подходящие люстры, пока лампочки висят).
Поехали.
ВОДОСНАБЖЕНИЕ И КАНАЛИЗАЦИЯ
Вообще они делались первыми, пока на участке еще ничего не было, пока ничего не мешало трактору вольно копать.
С водой проще всего, вызываешь парней с буровой техникой, платишь им деньги, они тебе делают дырку в земле, и бросают в нее стальную трубу, а потом еще и пластиковую.
Получается скважина. Собственно, я так и поступил.
Скважину мне сделали еще зимой, смешно но я почти не видел буровиков. Мне дали контакты надежной компании. Я позвонил им, согласовал материал и диаметр обсадной и пластиковой трубы, дал координаты участка, воткнул на участке колышек, где надо бурить. Они сказали, что все сделают. Предоплату не попросили. Потом через пару дней мне позвонили, сказали, что все готово, прислали видео с водой с моего участка, озвучили сумму я перевел им деньги на счет (мой внутренний интроверт ликовал, это было лучшее сотрудничество за все время постройки дома, никто не любил мозг ненужными подробностями, не пытался навязать ненужные услуги, не пытался продать тебе еще что то, просто пришли люди и сделали свое дело).
Встретился я с ними кажется только когда забирал документы на скважину.
К скважине нужен кессон (как бы объяснить это короче такой погреб для скважины), у меня маленький дом и тратить место внутри на расширительный бак, и систему фильтрации воды очень не хотелось, поэтому кессон, а не скваженный адаптер.
Спустившись в пластиковый кессон к соседу (за сто с лишним тысяч между прочим), поняв что я там с трудом развернуться могу решил, что это не мое. Решил делать кессон сам. Кессон из бетонных колец диаметром 1,5 метра – мой размерчик, лучше бы конечно два метра, но жаба задушила.
Перед стройкой заказал бетонные кольца для кессона, крышку и люк.
Дно решил залить потом сам потому что делать в нем отверстие под скважину было просто нечем. Гидроизолировал их битумной мастикой.
КАНАЛИЗАЦИЯ
Септик если кто не знает это локальное очистное сооружение, шайтан бочка куда текут сточные воды с вашего дома. Там живут бактерии, бактерии кушают любую органику которая к ним попадает. На выходе сравнительно чистая вода которую можно сливать например в придорожную канаву или доочищать на полях фильтрации..
Я считаю что не ломается только та деталь которой нет, поэтому когда я вижу пятикамерный септик, с двойным дном, пятью эрлифтами, тремя перепускными клапанами, и тремя программными блоками, то я вижу проблемы. Я реально верю что он очистит лучше, чем трех камерный, но как бы это сказать, бочка для говна, не та система с которой хочется долго копаться и тонко настраивать. Поэтому мой выбор самая простая система, минимум элементов три камеры, один компрессор, один эрлифт, один аэратор, и один насос. Вся автоматика это поплавковый выключатель насоса. Все. Модель рекламировать не буду. кому надо найдет, их таких несколько на рынке.
Септик я тоже заказал, с доставкой, с монтажом. По поводу септика я вообще был спокоен, девушка манагер клятвенно обещала что стоит мне позвонить за неделю, предупредить и в нужный срок мне все привезут приедет их бригада в чисто поле и все закопает, от меня только деньги. Красота да? так вот ни-фи-га…
Вначале когда я позвонил за 10 дней мне сказали, что минимум могут привезти через 15-20 дней, что сорвало мне на неделю срок монтажа контейнеров. Затем бригадир этих товарищей весело мне сообщил, что от меня нужен будет, пару кубов песка, куб воды, и электричество. на мои возражения, что мне обещали под ключ без моих телодвижений (я это отдельно уточнял), сказал что это не очень умная девочка манагер ошиблась и наобещала, а они ничего не возят, могут конечно, но к цене (и так не маленькой надо будет добавить им за песок, воду и генератор по не рыночным ценам).
В конце концов послал их нафиг с их монтажом за две трети стоимости септика, решил делать сам.
Купил септик в другой компании и стал готовиться. Купил БУ генератор киловаттник (но стартовый ток насоса он не потянул, пришлось просить у соседа), заказал еще песка, купил 10 мешков цемента, договорился с трактором. Короче все вместе мне вышло в два раза дешевле чем изначальная цена монтажа от профи.
Думал купить вибрационный насос, для заполнения септика из скважины, потом передумал, и купил нормальный, в Леруа кто то прощелкал с ценником и удалось купить вполне подходящий насос похоже еще по осенней цене.
В один день выкопал и опустил кольца на скважину, затем накрыл крышкой установил люк и закопал.
Выкопали яму и опустили септик
А на следующий день я не спеша смонтировал насос, трубопровод, опустил все это в скважину, и параллельно с заполнением септика водой мешал песок с цементом и засыпал септик. В результате у меня на участке появилась вода и канализация, а у детей исчезла большая песочница за что кстати они меня долго ругали.
После этого выставили уклон канализационных труб засыпали и разровняли, выводы труб все было готово к установке контейнеров и началу большой стройки...
Кстати все трубы входят контейнер снизу, (пол контейнера не стальной как многие думают, это очень жесткая многослойная фанера).
Про саму систему в доме и писать то нечего в доме одно "мокрое место", все разведено в доме вдоль этой стены по ней идут все трубы отопления (ничего внутрь не прятал, все снаружи), сейчас все закрыто кухней поэтому фото нет особо, а в процессе я не делал.
Все трубы с водой полипропилен, минимально возможного диаметра (у меня друг поставил трубы 32 "шоб було", теперь сливает перед тем как принять душ из труб пару тройку литров воды пока тепленькая не пойдет).
Канализационная труба в доме серый полиэтилен самая обычная, несколько отводов под ванную раковины и унитаз плюс воздушный клапан чтобы не срывало водяные замки с сифонов когда смываешь. Даже и рассказать особо нечего.
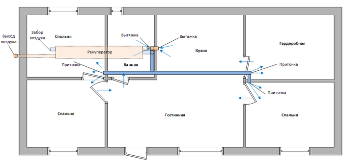
ВЕНТИЛЯЦИЯМного спрашивали про вентиляцию. Оно и понятно, теплоэффективные дома где стены и окна не сифонят из щелей, просто обязаны иметь вентиляцию.
Вентиляция организована приточно-вытяжная принудительная с рекуперацией. Вот по такой схеме (то что пунктиром – установлено на чердаке).
Приточная вентиляция организована в спальнях, (изначально она была и в дальнем углу кухни, но решил, что лишний проход в натяжном потолке не нужен – убрал, сделал ее в гардеробной).Со спальней младшей дочери получилось не очень там нет своей приточки, только тот воздух что идет из приточки в комнате сестры. Если вы читали первую часть то помните, что это должна была быть одна большая общая спальня, и вентиляцию я проектировал под это.
А, после того как решили что будут две отдельные комнаты, переделывать уже не стал, опускать потолки в других комнатах чтобы пробросить канал туда, или пилить лишние отверстия на чердак очень не хотелось.
Выходы вентиляции закрыты декоративными вентиляционными решетками. Вот на фото видно.
Ну или здесь
Сама реализация. Ничего экстраординарного, круглые пластиковые воздуховоды диаметром 100 мм, в ванной и кухне идут под потолком поэтому в этих комнатах высота потолков меньше на 15 сантиметров, но для кухни это очень органично вышло, в ванной это вообще традиционно.
Канальные вентиляторы установлены в ванной, за потолком. На максимальной мощности шумят не сильно, так как изначально не очень мощные, ватт 15 где то, коробки от них не осталось, так что даже модель не скажу, обычные канальники, со своей задачей справляются.
Фото только такое, есть тут до переделки, и установки потолка не кидайтесь сильно тапками. Все остальное было скрыто за натяжными потолками.
Рекуператор.
Рекуператор самодельный, очень простой и дешевый, коаксиального типа. (расскажу о нем поподробней ибо чую вопросами закидают)
Нам понадобятся:
- алюминиевая гофра длиной три метра диаметром 100мм - 112руб и 150мм - 252руб
- три переходника 100-150мм – 85 руб (итого 255)
- тройник 150мм – 142 рубля
- фольгированный утеплитель, три метра (у меня он уже был, понятия не имею, сколько стоит).
- алюминиевый скотч.
С описанием процесса у меня явно проблемы, поэтому смотрим слайды.
1. Готовим один из переходников, в нем надо насверлить отверстий или вырезать окна (как это сделал я) чтобы внешний канал сообщался с атмосферой, откладываем его в сторону.
2. Крепим гофру 150 одной к тройнику, а гофру 100 к переходнику 100-150мм.
3. Вставляем гофру в гофру, крепим к тройнику переходники.
4. С другой стороны крепим обе гофры к отложенному предварительно подготовленному переходнику и
5. Растягиваем всю эту конструкцию в сосиску длиной три метра и заворачиваем в теплоизоляцию (в моем случае это фольгированный вспененный полиэтилен). Крепим скотчем.
А теперь слайды.
Фото еще со времен стройки, в доме бардак и хаос :)
Собственно все. Подключаем рекуператор к вентиляции так, выходящий воздух внутри входящий с улицы снаружи коаксиала, сам рекуператор монтируем под уклоном 2-3 см на метр, так, чтобы конденсат из внутренней трубы самостоятельно стекал на улицу.
Что имею. Давно замерял, могу ошибиться, но вроде так, при -3-5 на улице, и +23 в доме, на выходе из рекуператора +18,5.
Пару таких труб в параллель и эффективность будет еще лучше.
ОТОПЛЕНИЕ
Первым делом посчитал расчетные теплопотери дома в самую холодную пятидневку, получилось около 6 киловатт часов, на эту мощность системы отопления и решил ориентироваться.
Отопление я изначально хотел газовое, так как официально это не дом, то киловатт час стоит что то в районе шести рублей, и топиться электричеством довольно дорого, да и отдельные провода под каждое окно по дому тащить не хотелось.
Рассматривал вначале вариант с тремя газовыми конвекторами, так как планировка была по сути в три комнаты, но после изменений пришел к тому, что буду делать обычное водяное отопление с газовым котлом.
Со схемой отопления определился быстро, у меня очень короткий контур и всего шесть радиаторов поэтому классическая однотрубная система с байпасом была самой простой, дешевой и меньше загромождала дом трубами.
Если кран радиатора открыт его гидравлическое сопротивление ниже трубки заниженного диаметра (байпаса) и ток воды идет через него, если кран закрыть полностью, то вода начинает идти через байпас, краном можно регулировать ток теплоносителя через радиатор, а значит и температуру в комнате.
(Да я знаю, что если подачу в радиатор сделать сверху работать он будет эффективнее, но мне так нравится больше. И да я знаю, что можно поставить краны с двух сторон, и тогда можно снимать радиатор не сливая жидкость с системы отопления, но давайте будем честны часто ли вы снимаете радиаторы? А воды в системе у меня 17-20 литров, слить заполнить вообще не проблема).
По расчетам, диаметром мне подходила даже 25 труба с очень большим запасом, решив, что я не ефрейтор ее и использовал.
В частном доме нет высокого давления в трубах, и воды со всем набором таблицы Менделеева, которая течет с ТЭЦ по трубам через пол города собирая все по дороге, от которой коррозия съедает сталь за считанные месяцы. Поэтому брать биметаллические или алюминиевые радиаторы особого смысла нет. Радиаторы решил выбрать стальные панельные, как самые дешевые и на мой взгляд симпатичные. Шесть радиаторов примерно по киловатту отдаваемой мощности каждый.
Вот такая схема отопления
То что нарисовано пунктиром идет под контейнером в слое утеплителя, спорное решение, но не хотелось тянуть трубы там, где их очень легко можно спрятать под пол. С другой стороны если они там лопнут, чинить не вариант, мне проще смонтировать новые именно в доме по стенам.
Чтобы два раза не вставать и не мудрить с горячей водой, решил, что котел должен быть двухконтурным. А так как я ленивая жопа, нужно чтобы там уже были встроенные группа безопасности, насос и расширительный бак. Выбор пал на Bosch BWN 6000-12C на 12 киловатт, да я знаю это очень избыточно по мощности, но котлов такого класса на шесть-семь киловатт я не нашел все больше на 24 или 32. (более того на самом деле это 18 киловаттная версия которую зарезали до 12 киловатт и при необходимости можно обратно расширить).
Я вначале собирал обвязку для каждого радиатора на столе, (чтобы не делать потом это стоя на корточках), вешал их на места, а уже потом паял между ними трубы.
Кто ни разу не варил трубы - знайте, это по сути конструктор для взрослых, отмерил, отрезал, нагрел, соединил, подождал пока остынет, все. Пользоваться паяльником для полипропилена вообще элементарно, если обычным утюгом можете работать не обжигаясь с этим тоже справитесь. Видео на ютубе полно. Пару дней, охапка дров и система отопления готова.
Теперь надо перевести котел на сжиженный газ (почему то найти в магазинах котел сразу настроенный на пропан сложнее, чем девственницу на вписке). Вот дальше описывается полная дичь, треш угар и содомия, не вздумайте это повторять, я вас предупредил.
Перевод состоит из в программной и аппаратной части обе тщательно описаны в инструкции, но это инструкция не для вас, это для настройщиков которые заплатили деньги чтобы получить корочки, не вздумайте делать это сами если вы не специалист.
Короче лезем в настройки котла, и выбираем там режим сжиженного газа. Если вы думаете, что этого достаточно и все так просто, очень ошибаетесь. К котлам продаются специальные комплекты с соплами другого диаметра, которые вам надо будет установить разобрав котел.
Не забудьте собрать все обратно.
Поскольку мощность котла у нас регулируется, надо настроить регулятор давления. Для чего берем плоскую отвертку, ключ на 10, специальный манометр для измерения давления газа (ну или как я вспомнить физику и взять прозрачную трубку, линейку и сделать жидкостный манометр) и настроить параметры минимального и максимального давления газа указанные в мануале для вашего котла (все есть в инструкции).
И да это еще не все. После этого вам надо будет опять зайти в программу и изменить параметры работы вентилятора под свой дымоход согласно инструкции (у сжиженного газа режим отличается от магистрального). У меня на рекомендуемом в мануале режиме вентилятор срывал пламя во время розжига, если то же самое надо попробовать программно сделать поток послабее или использовать специальную диафрагму для впуска.
Собственно, все было подключено, настроено, система проверена, заполнена водой и успешно запущена, УРА все греет в доме тепло, даже очень тепло, временами жарко, котел надо все время подстраивать под меняющуюся температуру за бортом, нет. так дело не пойдет будем дорабатывать.
ТЕРМОСТАТ
Сам по себе котел поддерживает температуру теплоносителя в контуре, а нас во первых больше интересует температура в доме, а во вторых держать в трубах +30 - +40 чтобы в доме было +24 не выгодно экономически, котел для поддержания такой температуры работает в неоптимальном режиме, и ест больше газа (много тепла просто улетает в трубу), на теплообменнике при такой низкой температуре образуется конденсат, крутить все время краны на радиаторах тоже так себе идея.
Гораздо экономней, периодически включать котел нагревая теплоноситель до 75-85С, нагреть дом до нужной температуры, после чего отключать пока не понадобится снова греть. Этим колдунством занимается термостат.
Мой котел (как и почти любой другой), имеет вход для внешнего управления, есть сложные системы, с погодозависимой автоматикой, которые передают в котел по специальному протоколу данные о температуре внутри и снаружи и он на основании этих данных вычисляет оптимальную поддерживаемую температуру теплоносителя.
В простейшем случае это два провода, если их замкнуть котел греет теплоноситель до заданной температуры, если разомкнуть – не греет. В России, в магазинах такие термостаты почему то стоят как крыло от боинга, механические от трех тысяч начинаются, умный электронный может более десяти тысяч стоить.
Выручают китайцы, на алиэкспресс был куплен термостат который замыкая размыкая релюху, управляет котлом, поддерживая заданную температуру плюс минус пол градуса, имеет суточный и недельный таймер, управляется через Wi-Fi с телефона и вообще душка.
По моему он очень хорошо смотрится на белой стене
Ладно кого я обманываю, я просто картинкой хвастаюсь.
Я честно не знаю, что отвечать на вопрос «тепло ли в доме?». Какую температуру на термостате выставлю - такая и будет, хоть +17 хоть +30. Обычно у меня дома +22С.
И да, баллон на фото в прошлом посте это изначально временная схема, бегать с баллонами раз в неделю на заправку очень быстро надоедает. Я купил и поставил на улице баллон на 800 литров, медной трубой подключил баллон к котлу, все работает уже год (раз в пол года проверяю разъемные соединения обмыливанием). (Заправлял три раза за год по 600-650 литров цена около 19 рублей за литр), но это уже отдельная история, если интересно потом покажу.
На этом сегодня пожалуй все. Осталось не так много, в одну часть думаю уложусь и отдельным постом сделаю ответы на самые частые вопросы.
Всем удачи.
з.Ы. Осталось место, под одну фотку, просили фото как сейчас внутри, ну вот фотка например.












































































