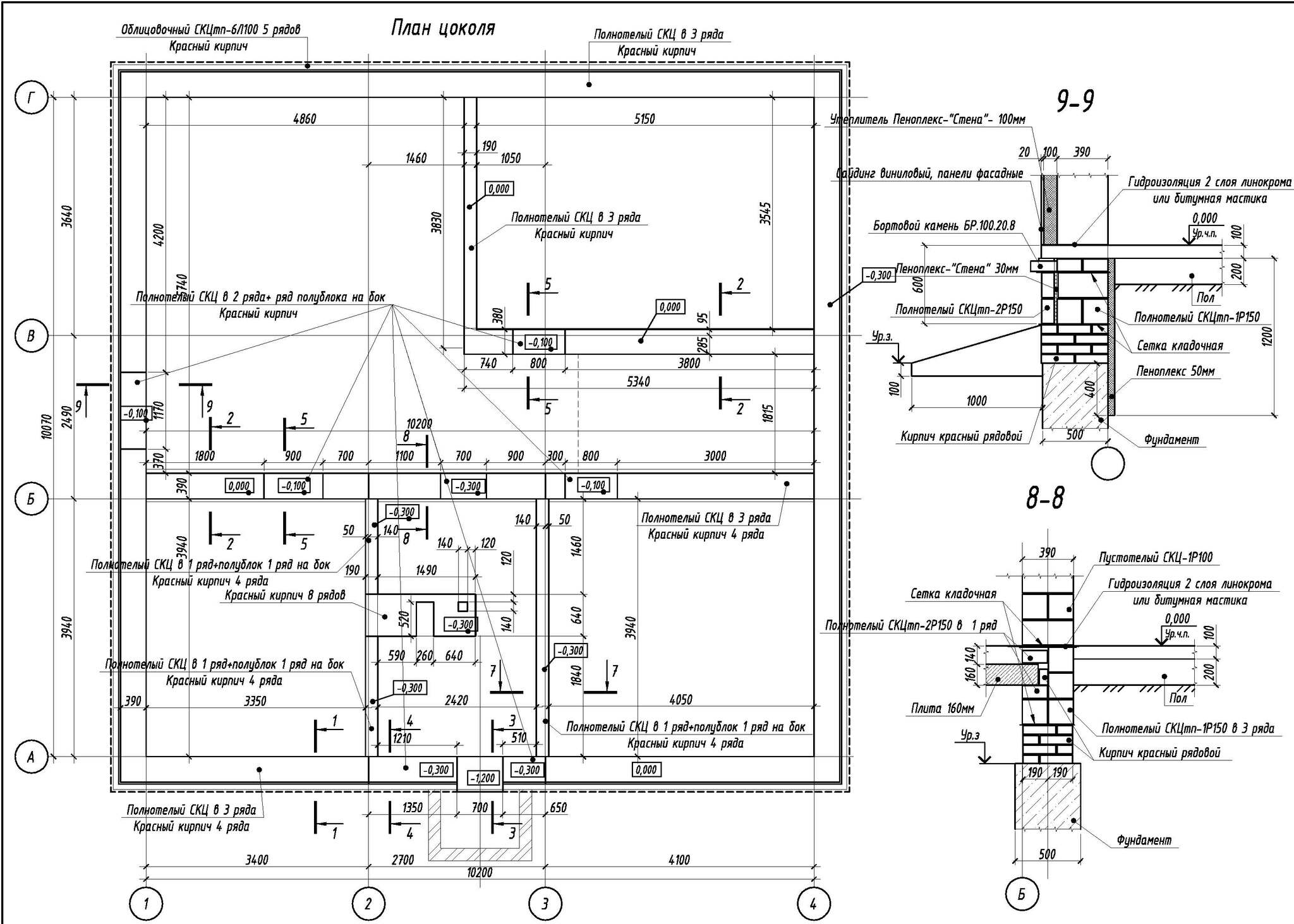
Цоколь
Поскольку фундамент был залит неравномерно ориентируясь по поверхности грунта то первым этапом было выравнивание цоколя.
Для выравнивания был применён полнотелый Энгельсовский кирпич марки М150 на цементно-песчаном растворе марки М100. Армирование - кладочной сеткой 3мм с ячейкой 50*50мм через 2 ряда.Ширина кладки цоколя 510мм и 380мм.
После выравнивания перепадов цоколя , а это примерно 30см на 10м, началось возведение кладки собственно цокольной части с облицовочным слоем.Высота этой кладки составила 900мм. Несущий слой - блок СКЦтп1Р-150 шириной 400мм, 20мм пеноплекса, и облицовка - лицевой блок СКЦтп6л-100. завершает кладку - поребрик со свесом 20мм БР100-20-8 и красный кирпич.Армирование - кладочной сеткой 3мм с ячейкой 50*50мм через 3 ряда.Ширина кладки цоколя 400+20+120=540мм. Заложить все необходимые гильзы. Выполняются углубления в местах дверей.
Между выравнивающим слоем и основной кладкой цоколя - уложить гидроизоляцию линокром тпп-3.6 нижний слой. Боковые внутренние поверхности стен цоколя обмазать битумной мастикой и утеплить пеноплексом 20мм.






























Цоколь

