Планировка дома 2 этажа с плоской крышей
Всем привет!
/За ошибки не прошу не пинать. Видимо у меня дислексия/
Прошу вашей МАКСИМАЛЬНОЙ критики моих планировочных решений.
Мой замыленный взгляд трезво уже не видит недостатков.
Далее отдаю в проектирование, возможно в процессе что-то изменится (переубедят)
Отдельное спасибо @fasalt, благодаря его постам, я узнал в чем можно быстро набросать планировочные решения (Renga bim - им тоже спасибо, что можно использовать лицензированный софт бесплатно).
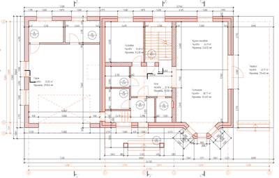
Дом 11*12 м монолитный, для постоянного проживания 2 взрослых + 4 детей
Газ в перспективе.
Планирую воздушное отопление + теплый (скорее комфортный) пол. Есть положительный опыт товарища. В любом случае приточно-вытяжная вентиляция будет.
В планировке не учтены толщина утеплителя и внешней отделки (штукатурка или кирпич)
Крыша плоская, не эксплуатируемая. Бортик высотой примерно 400мм. Слив воды внутренний.
В коридоре 2 этажа, между двумя дверьми помещений «Детская_1» и «Детская_2» будет открывающийся зенитный фонарь, через который будет выход на кровлю по стремянке.
Примерный размер проема под зенитный фонарь 1200х1700, ниже "вид сверху".
Вообще, я так понимаю это не удобно, но надеюсь, делать там будет нечего и часто лазить не придется.
- Чистовая высота потолков 1 этажа -3м, 2го этажа -2.8 или 3 м (склоняюсь к 2.8)
Не слишком большие/маленькие окна, двери?
1 этаж:
- Размеры дверей:
2300(или 2100?)*1700 – дверь двухстворчатая на террасу
2100*900 – 6шт входная и во все помещения, кроме:
2100*700 – 1шт в туалет(9)
2100*600 – 1шт в хамам(7)
-Размер оконных проемов:
1800*1700 -4шт, зал(4) и гостевая(2), расстояние 900мм от чистового пола
1800*800 -2шт, гостевая(2) и комната_отдыха(8), расстояние 900мм от чистового пола
700*700 - 1шт котельная(6), расстояние 1500мм от чистового пола
700-1200 -2шт в Кладовке(3), расстояние 1500мм от чистового пола
Меня смущает проход между залом и холлом 3100мм. Может меньше нужно? Или наоборот. В итоге выбрал, имхо оптимальный. Но пролет в том месте получается 6700мм. Но это вопрос уже к конструктору?
2 этаж:
- Размеры дверей:
2100*900 – 7шт во все помещения
2100*700 – 4шт во все гардеробные
-Размер оконных проемов:
1800*1700 -4шт, помещения: 10, 11, 12, 14, расстояние 900мм от чистового пола
1800*800 -3шт, гостевая помещения:11, 13, 15, расстояние 900мм от чистового пола
700*700 - 1шт санузел(16), расстояние 1500мм от чистового пола
-Размер оконного лестничного проема:
3700*1000, расстояние 1500мм от чистового пола
Несколько видов фасадов. Для представления расположения окон, не более.
Вид сверху, зенитный фонарь. Слив и вытяжки не показаны ((
Параметры монолитной лестницы. (извиняйте, за красный вырвиГлаз цвет)
Судя по рекомендациям, лестница должна быть комфортная. Специально ширину выбрал 1350мм. Во-первых санузел с одной стороны. Во-вторых, с другой стороны под лестницей планирую установить морозильную камеру (в кладовке)
Гардеробные подсмотрел у одного лысого гражданина с ютуба. На чем ему спасибо.
Сознательно пришел к такому решению, т.к. шкафы визуально съедают пространство. По размеру, комнаты получились оптимальные, имхо.
Еще огромная просьба, поделитесь пожалуйста опытом использования навесов. Хочу навес от забора до дома вплотную сделать. 7 метров не слишком я лиху дал? Под две машины. Вот не очень хочется в дождь от машины идти к дому под дождем или зимой чистить в огромных количествах снег (как этой зимой)
Еще раз спасибо за комментарии и обратную связь.







































Строительство и ремонт
10.9K постов48.6K подписчиков
Правила сообщества
Правила оформления постов.
Посты видеоролики должны обязательно иметь описание о чём видео. Если видео длинное, то крайне желательно указать время, когда и о чём рассказываете.
В случае нарушения пост выносится из сообщества.
Правила общения.
Запрещено регулярное хамское и неуважительное обращение к другим участникам сообщества в рамках общения в комментариях. В случае первого нарушения бан в сообществе на 2-3 недели. В случае повтора постоянный.
Про нейросети
Тексты сгенерированные нейросетью, выносятся из сообщества, пользователь блокируется на неделю. При повторном нарушении перманентный бан для пользователя.
Про рекламу
Рекламные посты от платных/бесплатных аккаунтов запрещены. За первое нарушение блокировка на 7 дней. За второе перманентная блокировка.
Только для профессиональных участников рынка строительных услуг. (публикующихся регулярно)
Пост должен быть основан на личном опыте.
Должен быть информационно-познавательным (разъясняет/ объясняет что-то связанное с материалом/работой/организацией/и.т.д.) или пищей для ума (Взгляд на проблему, с другой стороны)
Запрещается публикация видео длиной более 5 минут без текстового таймлайна. ( надо указать где и о чём вы рассказываете в видео)
Не злоупотребляйте тэгами. Количество своих тэгов не более 4х шт. Тэги проставляемые системой не учитываются. (Длиннопост, видео, и.т.д.)