Как я дальневосточную ипотеку осваивал ч. 4
Сегодня буду рассказывать про стены.
Цокольный этаж готов. Плиты перекрытия уложены и подлиты. Важный момент - не забыть закрыть с торца плиты теплоизоляционным материалом чтобы холод по пустотам не заходил под пол.
Пришло время возводить стены. Изначально хотел строить из арболита ( блоки из древесной щепы и цемента), но у нас в городе всего два завода их производящих. Из этого следует, что он самый дорогой из легких бетонов, очередь на блоки от двух недель до месяца и размерный ряд очень скудный. В силу этих обстоятельств было решено строить из полистеролбетона. Блоки выбрал размером 600х400х300 и марки D500. Для перемычек над окнами и дверьми взял тоже полистеролбетон, но армированный и марка D600.
И пошло поехало. Стены мне быстро скидали.
При кладке использовался специальный клей, так как обычный раствор промерзает и создает мостики холода. Первый ряд и каждый третий прокладываются металлической армирующей сеткой. А так же участки под окнами и дверными проемами.
Забыл сказать, толщина стен 400мм.
Когда первый этаж был закончен, сверху залили армопояс. И тут важный момент. Не нужно лить армопояс по всей толщине стены (ну или лить по всей, а потом утеплять снаружи), иначе он будет промерзать, т.к показатели теплопроводности у бетона и полистеролбетона разные. Поэтому я поставил с внешней стороны полистеролбетонные блоки толщиной 100мм и залил армопояс 300мм, тем самым немного его утеплив и оградив от холода, наподобие, как на картинке.
После этого опять пришлось ждать, когда армопояс встанет и наберет крепости. Цоколь и стены я сделал быстро, если смотреть сами работы по их возведению, но из-за того, что на каждом этапе приходилось ждать, пока застынет бетон, это сожрало кучу времени. Примерно 1:1. Это нужно учитыватт, когда планируешь стройку и сроки, за которые хочешь построить.
После того как все застыло, были уложены плиты перекрытия между первым и вторым этажом.
Они капец дорогие, собаки) Если, когда перекрывал цоколь, получилось взять новые (по объявлениям), и это вышло примерно в 40-50 тысяч. То, чтобы перекрыть первый этаж, я брал плиты с завода и это вышло в 112000 рублей.
После этого делалась опалубка, подливались монолитные участки, и пошёл второй этаж по аналогии с первым. На втором этаже подливать бетоном плиты не стали, а просто выпилили и поставили стеновые полистерольные блоки. И затыкать пустоты на втором этаже в плитах так же не стал, так как блоки сами по себе холод не пропускают и ограждают плиты от него.
Единственное отличие это, то что в армопоясе цоколя и первого этажа я использовал металлическую арматуру, а в самом верхнем армопоясе на втором этаже композитную (потому что там только крыша, она хоть и тоже имеет немалый вес, но все же нагрузка не такая серьезная).
Еще меня по срокам очень выбило дождливое лето, что не характерно для Забайкалья.
Полностью все блоки (включая перегородочные, из которых я делал межкомнатные перегородки) и весь бетон на весь дом (включая цоколь) вышли на 1.3 ляма. Брал все на одном заводе. Плюс 500 тысяч работа за первый и второй этажи. Доски на опалубку, гвозди, арматура, армирующая сетка и т.д еще примерно 100 тысяч.
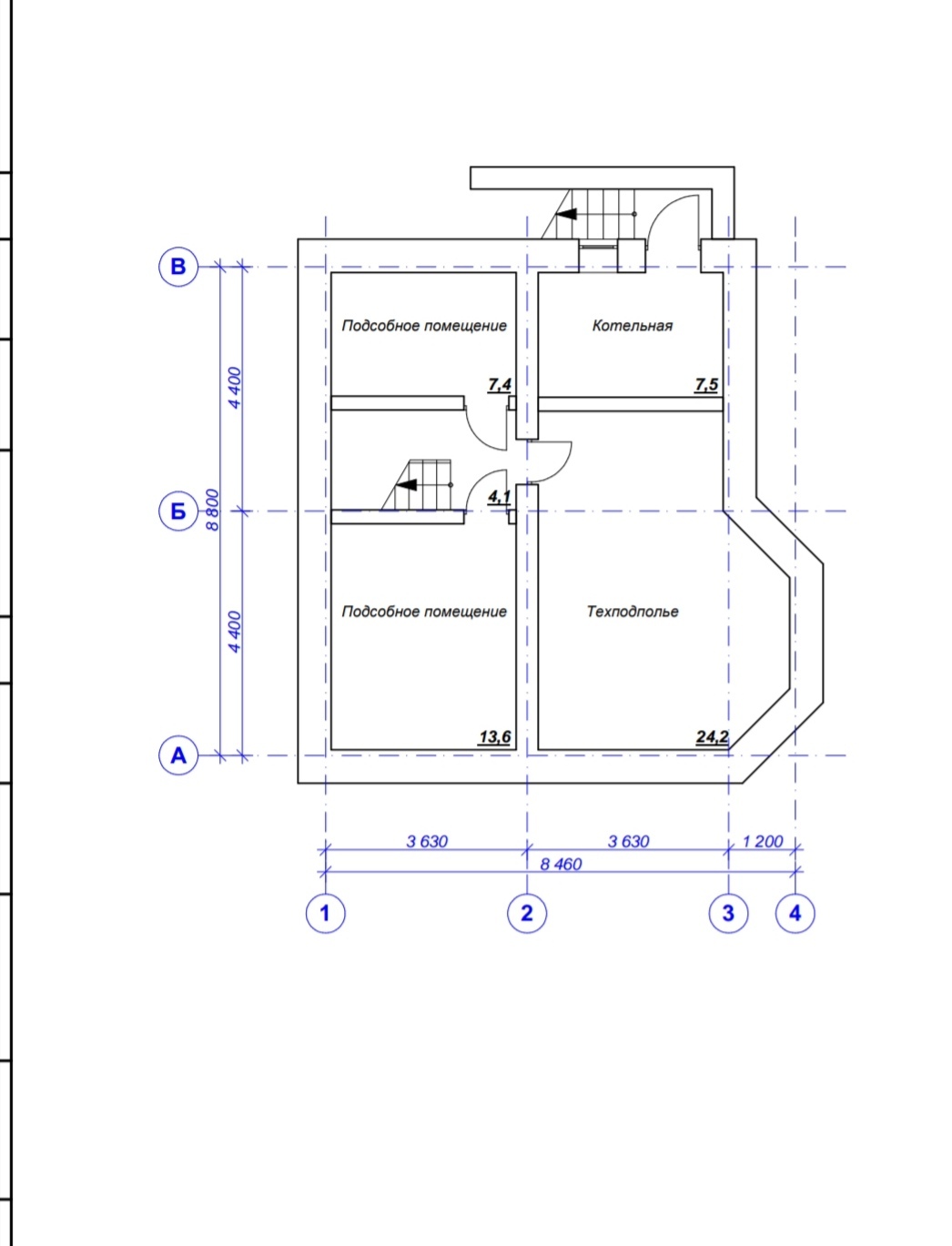
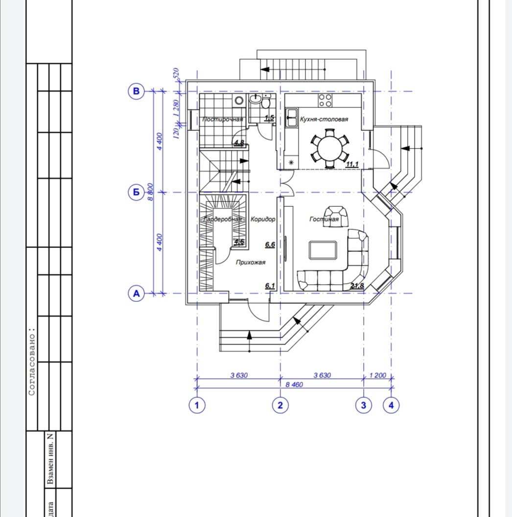
Ну и план дома внутри.
Цоколь
Первый этаж
Второй этаж
Ну и как всегда, если есть вопросы - задавайте)
Сделаю, наверно, перерыв. Следующий пост после выходных.












Строительство и ремонт
10.8K поста48.4K подписчиков
Правила сообщества
Правила оформления постов.
Посты видеоролики должны обязательно иметь описание о чём видео. Если видео длинное, то крайне желательно указать время, когда и о чём рассказываете.
В случае нарушения пост выносится из сообщества.
Правила общения.
Запрещено регулярное хамское и неуважительное обращение к другим участникам сообщества в рамках общения в комментариях. В случае первого нарушения бан в сообществе на 2-3 недели. В случае повтора постоянный.
Про нейросети
Тексты сгенерированные нейросетью, выносятся из сообщества, пользователь блокируется на неделю. При повторном нарушении перманентный бан для пользователя.
Про рекламу
Рекламные посты от платных/бесплатных аккаунтов запрещены. За первое нарушение блокировка на 7 дней. За второе перманентная блокировка.
Только для профессиональных участников рынка строительных услуг. (публикующихся регулярно)
Пост должен быть основан на личном опыте.
Должен быть информационно-познавательным (разъясняет/ объясняет что-то связанное с материалом/работой/организацией/и.т.д.) или пищей для ума (Взгляд на проблему, с другой стороны)
Запрещается публикация видео длиной более 5 минут без текстового таймлайна. ( надо указать где и о чём вы рассказываете в видео)
Не злоупотребляйте тэгами. Количество своих тэгов не более 4х шт. Тэги проставляемые системой не учитываются. (Длиннопост, видео, и.т.д.)