Как я дальневосточную ипотеку осваивал ч. 3
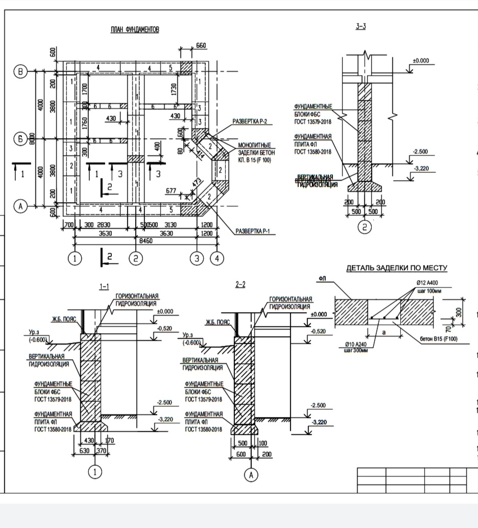
Итак, деньги получены, можно и стройку начинать. В наличии имелся участок 20 соток с размерами 50 на 40 метров, посередине которого имелся котлован, уже весь заросший елками. Так как построить надо было край в этом году, то было решено делать цокольный этаж. Объясню поподробнее. Если бы я засыпал котлован, то грунт дал бы усадку и строительство в этом году было бы невозможно. А в другом месте располагать дом не хотелось, и не укладывалось в пятно застройки (указывается при получении разрешения на строительство и составляет не больше 10% от площади участка), поэтому елки были удалены, корни вырваны и подготовлена площадка для подушки под фундаментные блоки. Фото котлована не сохранилось поэтому скину проект.
Цокольный этаж (точнее, он больше подвальный) было решено строить из блоков фбс толщиной 60 см. Монолитный был бы, конечно, лучше, но по трудозатратам и финансам вышло бы больше.
И вот в начале июня была залита подушка и оставлена на 14 дней (да, нужно ждать месяц по технологии, чтобы бетон набирал крепость).
Далее пошла сборка цоколя. Тут-то и пригодился проект со спецификацией. Все, как в инструкции лего. Заказал кран (2500 за час ), и понеслось. Я цеплял блоки и, согласно схеме, говорил, куда ставить а рабочие ставили их и таскали раствор.
Сделали все за 4 захода, так как пришлось лить монолитные участки. В итоге я отдал крановщику за 10 часов работы.
В каждой стене были заложены технологические отверстия и вентиляция с запасом. Подумал, на крайний случай лишние запеню, чем потом придется долбить бетон.
Далее цоколь был обмазан гидроизоляцией и утеплен пеноплексом.
Это пристенок, где располагается лестница, ведущая в котельную. Также есть вход в цоколь из дома.
Предвосхищая вопросы о системе дренажа и грунтовых водах. Их нет. Потому что первый водоносный слой находится на глубине 40-50 метров. Скважина у меня, например, 46 метров. Высота водяного столба 7метров. Вышла она мне со всеми шлангами, насосом, работой и т.д 126000 р. Единственное, вода насыщенна железом, и пришлось ставить станцию очистки воды (о ней расскажу, как заберёмся внутрь дома), но это экономически оказалось выгоднее даже с дальнейшим обслуживанием этой станции, чем буриться до третьего водоносного слоя (а это около 110-130 метров и в денежном эквиваленте около 600 т.р). Там была бы вода уже чистейшая. А, ну и вода от осадков будет отводится от фундамента отмосткой.
После того как армопояс, связывающий блоки, подсох, были установлены плиты перекрытия и залиты монолитные участки. И пошла засыпка котлована, которая выбила меня из бюджета, так как я не ожидал, что понадобится столько грунта. А ушло его примерно 50 машин Volvo по 12-15 кубов каждая. Если бы я покупал готовый грунт, то такая машина стоила порядка 4 т.р., поэтому я заказал фронтальный погрузчик и самосвал с почасовой оплатой и пошел побираться по соседям, у кого тоже шли строительные работы.
Цокольный этаж на этапе как на последнем фото вышел около 800 тысяч. Это блоки, работа бригады, работа техники, обратная засыпка и все, все, все.
Ну и если у кого есть какие вопросы задавайте)Отвечу в меру своей компетенции и опыта.










Строительство и ремонт
10.8K поста48.4K подписчиков
Правила сообщества
Правила оформления постов.
Посты видеоролики должны обязательно иметь описание о чём видео. Если видео длинное, то крайне желательно указать время, когда и о чём рассказываете.
В случае нарушения пост выносится из сообщества.
Правила общения.
Запрещено регулярное хамское и неуважительное обращение к другим участникам сообщества в рамках общения в комментариях. В случае первого нарушения бан в сообществе на 2-3 недели. В случае повтора постоянный.
Про нейросети
Тексты сгенерированные нейросетью, выносятся из сообщества, пользователь блокируется на неделю. При повторном нарушении перманентный бан для пользователя.
Про рекламу
Рекламные посты от платных/бесплатных аккаунтов запрещены. За первое нарушение блокировка на 7 дней. За второе перманентная блокировка.
Только для профессиональных участников рынка строительных услуг. (публикующихся регулярно)
Пост должен быть основан на личном опыте.
Должен быть информационно-познавательным (разъясняет/ объясняет что-то связанное с материалом/работой/организацией/и.т.д.) или пищей для ума (Взгляд на проблему, с другой стороны)
Запрещается публикация видео длиной более 5 минут без текстового таймлайна. ( надо указать где и о чём вы рассказываете в видео)
Не злоупотребляйте тэгами. Количество своих тэгов не более 4х шт. Тэги проставляемые системой не учитываются. (Длиннопост, видео, и.т.д.)