Прошу помощи с двухуровневыми потолками
Приветствую, уважаемые пикабушники!
Каждый из нас, думаю, в своей жизни сталкивался с ремонтом и творческим подходом к нему.
Я ни разу не дизайнер, и никаких творческих жилок в помине не было. Но вот поступила задача, которую уже некогда ни делегировать, ни проектировать.
Помогите, пожалуйста, ее решить.
Мне просто нужно узнать, у опытных в данном деле товарищей, что «вот так» – делается, а «вот так» – не делается. Изложу пару вариантов исполнения, как я их вижу. Правда, ни один из них мне не кажется правильным или гармоничным.
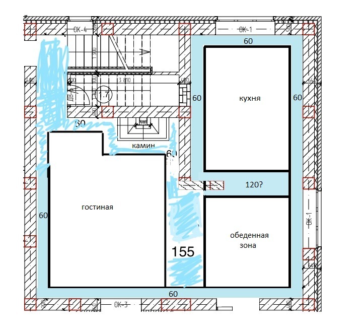
Дано: загородный домик, требуется сделать двухуровневые потолки из ГКЛ по периметру каждой зоны, разграничив тем самым зоны кухни, обеденной зоны и зоны гостиной. Дверей между этими зонами нет, есть небольшой простенок между самой кухней и обеденной зоной.
Также дано: несколько простых требований, из-за которых всё и упирается в никуда.
1. Потолок на кухне будет шириной 60 см, так как такой кухонный гарнитур.
2. Этот самый потолок должен по одной линии продолжаться через простенок до обеденной зоны включительно, разграничивая ее с гостиной.
3. Напольная плитка будет двух цветов, условно – черная и белая, и идея такова, что она цветом должна повторять и выделять эти самые потолки. Сама плитка 60х60, поэтому главное в этом деле обойтись без совсем уж жестких подрезок.
Вот так голубым цветом уже показан предполагаемый потолок. На кухне будут вмонтированы точечные светильники, в остальных зонах потолки второго уровня будут чистые, без света.
И вот теперь у меня вопрос, если потолок между обеденной зоной и гостиной будет так же 120 см, то там, где стена возле камина, этот потолок будет выходить на 15 см, а это совсем не красиво. И получится, что в одном месте ширина потолка 60 см, в другом 120 см, в третьем 15 см.
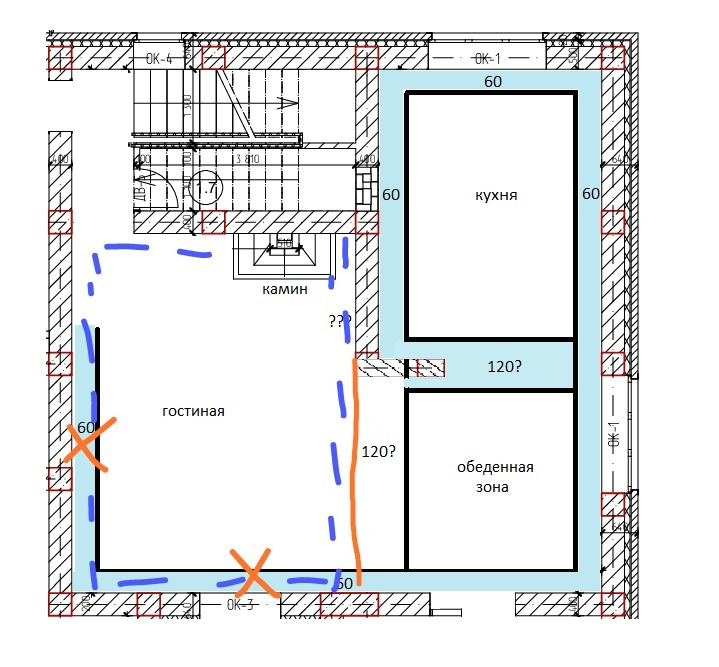
Если потолок делать по ширине простенка, то стена возле камина будет смотреться очень лысой. Вот например так:
Если делать у стены рядом с камином потолок тоже 60 см, как и по всему периметру, то ширина потолка у простенка будет слишком большой, и будет, как мне кажется, скрадывать пространство.
Вот сижу и думаю, как решить эту задачку. С благодарностью приму любой совет, услышу точку зрения.
Сила Пикабу, помоги! Всем добра и всех благ. Пост с большой надеждой и без рейтинга.







Строительство и ремонт
10.8K постов48.4K подписчиков
Правила сообщества
Правила оформления постов.
Посты видеоролики должны обязательно иметь описание о чём видео. Если видео длинное, то крайне желательно указать время, когда и о чём рассказываете.
В случае нарушения пост выносится из сообщества.
Правила общения.
Запрещено регулярное хамское и неуважительное обращение к другим участникам сообщества в рамках общения в комментариях. В случае первого нарушения бан в сообществе на 2-3 недели. В случае повтора постоянный.
Про нейросети
Тексты сгенерированные нейросетью, выносятся из сообщества, пользователь блокируется на неделю. При повторном нарушении перманентный бан для пользователя.
Про рекламу
Рекламные посты от платных/бесплатных аккаунтов запрещены. За первое нарушение блокировка на 7 дней. За второе перманентная блокировка.
Только для профессиональных участников рынка строительных услуг. (публикующихся регулярно)
Пост должен быть основан на личном опыте.
Должен быть информационно-познавательным (разъясняет/ объясняет что-то связанное с материалом/работой/организацией/и.т.д.) или пищей для ума (Взгляд на проблему, с другой стороны)
Запрещается публикация видео длиной более 5 минут без текстового таймлайна. ( надо указать где и о чём вы рассказываете в видео)
Не злоупотребляйте тэгами. Количество своих тэгов не более 4х шт. Тэги проставляемые системой не учитываются. (Длиннопост, видео, и.т.д.)