Небольшой, но свой - дом 90 м2, проект + смета
Я закончил строить небольшой домик 9 на 11,5 метров. Кому-то покажется он совсем маленьким, но для небольшой семьи вполне достаточно для того, чтобы начать жить в своём небольшом уютном гнёздышке.
Дом строился этим летом. Сегодня я выложу проект и стоимость этого дома!
А это как он будет выглядеть после отделки:
Дом строился на ленточном фундаменте. Бетона у нас ушло 18 кубов по 7,5 тысяч рублей. Сам бетон обошёлся в 135 тысяч рублей. Арматуры у нас ушло почти тонну на 80 тысяч рублей. Это основные затраты для монтажа фундамента.
Один из самых дорогих элементов в доме — это плиты перекрытия. Плиты перекрытия выполнены из полистиролбетона. Помимо высокой стоимости армированных плит из полистиролбетона, в цену вошла очень дорогая доставка. Дело в том, что объект находится от производства на расстоянии более 100 км, поэтому пришлось сюда гнать технику, доставляющую плиты большой длины, и выставлять кран для того, чтобы их разложить. В общем, удовольствие недешёвое. Сами плиты стоят 614 893 рубля.
Ещё особенность таких плит, что они идут с небольшим заводским отклонением, поэтому выставить ровно отверстия в плитах под сейсмические колонны невозможно. Поэтому колонны мы прорезали — отверстия под колонны мы прорезали по месту. Это очень трудозатратно и, в принципе, дорого по износу материала и инструмента.
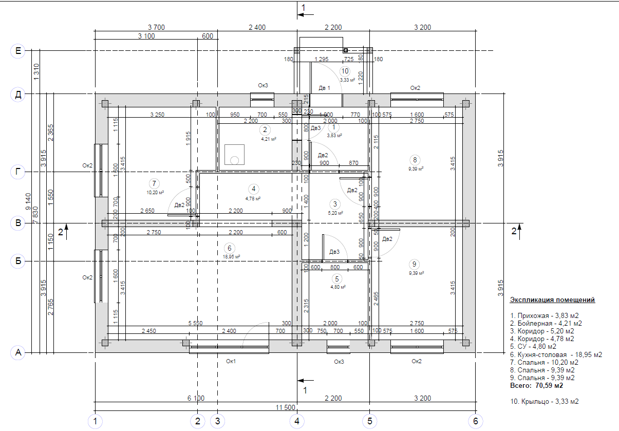
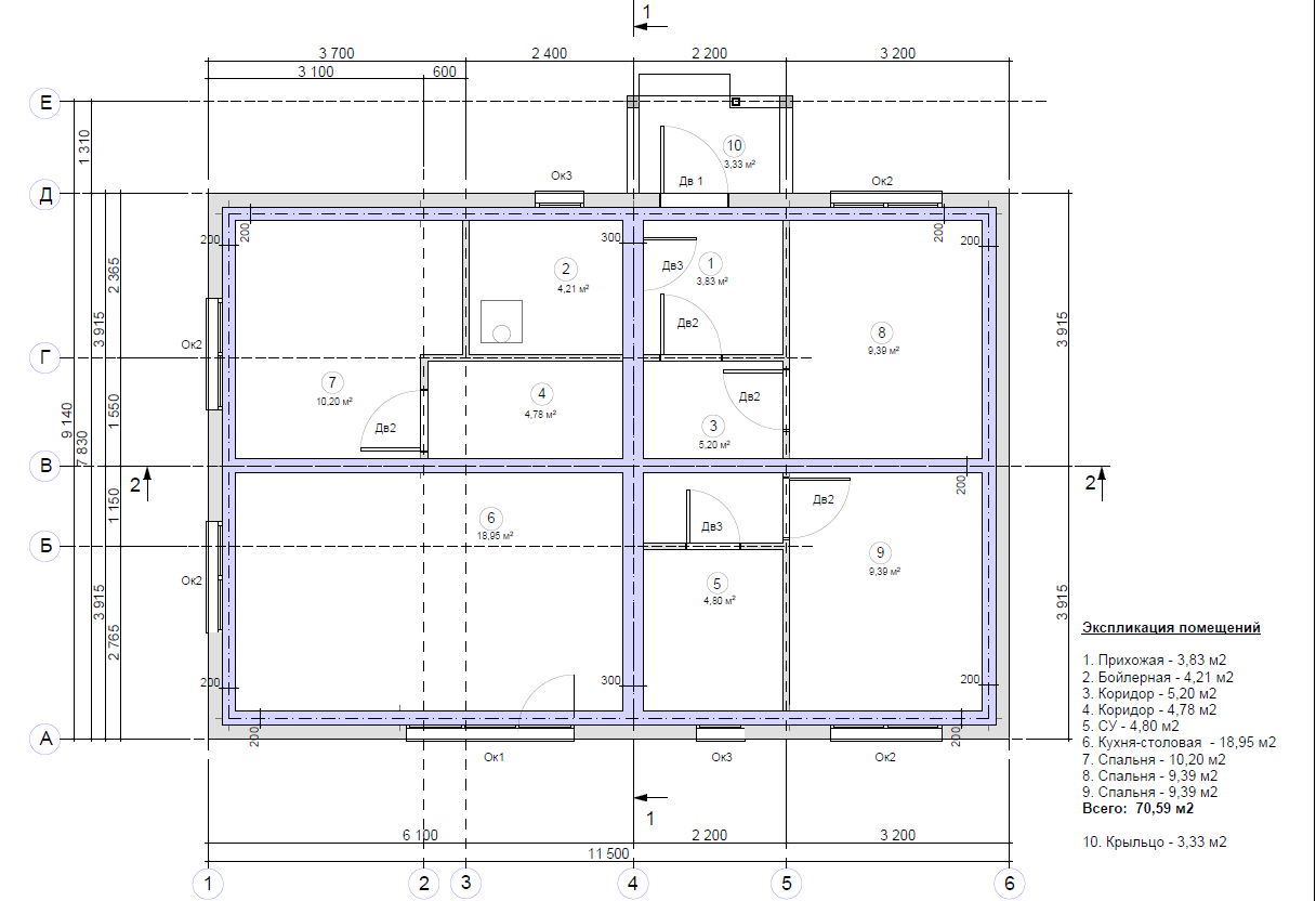
Выкладываю вам проектную планировку дома. В доме подразумевается всего девять помещений. Чистая площадь из 90 кв. м превращается в 75,9 м². В доме три спальных комнаты, кухня-столовая, санузел, два коридора, бойлерная и прихожая. Ну и также крыльцо — 3 м.
Далее по затратам. Арматуры ушло на колонны — это поперечная арматура — на 20 тысяч. Арматуры ушло на продольное армирование колонны на 30 тысяч. Также арматуры ещё дополнительно ушло на армопояс на 40 тысяч рублей.
Арматура для армирования через ряд, через по две нитки между газобетонными блоками, ушло на 25 тысяч рублей. Бетон на армопояс ушло на 25 тысяч рублей. Бетон на колонны и на перемычки ушло на 25 тысяч рублей.
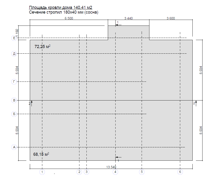
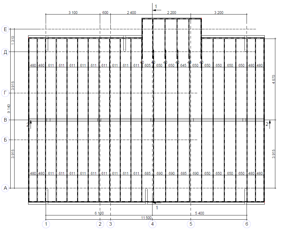
Выкладываю план сейсмопояса, план перекрытия балок, чтобы вы могли использовать, если вам необходимо при строительстве. План стропильной системы и развёртка по кровле, чтобы вы могли заказать при необходимости кровельный материал. Это элементы архитектурного проекта. Полный проект, естественно, выложить сюда не получится, потому, что Пикабу принимает только определённое количество чертежей. Но для расчёта стоимости дома, для расчёта объёма по материалу при запросе со строителями или для того, чтобы определиться вам самим, нужен вам такой дом или нет, этого материала вам, надеюсь, вполне будет достаточно.
Газобетона толщиной 400 ушло 37,5 куба на 332 500 рублей. Газобетона толщиной 300 ушло 3,5 куба на 31 000 рублей. Газобетона толщиной 200 ушло 3,5 куба на 31 000 рублей. Газобетона толщиной 100 мм ушло 4,5 куба на 40 000 рублей. Газобетон стоил у нас во время покупки 8867 рублей за метр кубический. Это сезонное удорожание, зимой газобетон в Иркутской области стоит на 1000 рублей дешевле.
Также у нас ушло ещё плита ОСП на черновой потолок на 12 000. Минералватного утеплителя 14 кубических метров на 46 000 рублей. Пароизоляции и ветрозащиты на 20 000 рублей. Черепица плюс комплектующие обошлись в 280 000 рублей.
Окна комплект стоил 153 000. Монтаж окон — 80 000 рублей. Очень важно понимать, что дом находится на удалении более 100 км. Сюда вошла доставка и монтаж, и плюс расходники по монтажу окон.
Дорого или нет, сами решайте в комментариях, но качественно дешевле довольно сложно найти у нас в регионе. Домик, кстати, строился в городе Свирск, Иркутская область.
Ну и, конечно, самое любимое, что Пикабу любит — это стоимость за работы. Работа по фундаменту стоила 615 000 рублей. Работа по монтажу стен стоила 625 000 рублей. Работа по перекрытию потолка и перекрытию пола стоила 578 000 рублей. Работа по кровле стоила 365 000 рублей.
Это укрупнённые строчки из общего сметного расчёта, так как на все мелочи, типа монтаж крыльца и прочее, отдельно затраты не выносились, они были в общем объёме. То есть расчёт брался за всё, что вы видите. То есть в монтаж кровли, например, и монтаж стропильной системы отдельно считались, и монтаж кровли кровельного материала, но в итоговой смете есть укрупнённая расценка. Точно так же в монтаже перекрытия заложено и монтаж балок, и утепление, и монтаж плёнок, и обработка антисептическими составами, но всё это не выделено в отдельные затраты.
Я постарался максимально детально вам отразить нужные разделы проекта. Прошу строго не судить, если понравится, я выложу. У меня есть ещё один домик из газобетона приблизительной площадью...
Ну и на десерт, как говорится, общая стоимость дома обошлась: 5 029 700 рублей.
Сюда хочу также сказать, вошли все доставки всей техники, работы швингов, миксеров, того, чего не было в смете. Ну и, конечно, дом строился в ипотеку, поэтому большая часть удорожания связана с тем, что всё шло по безналичному расчёту.
Следующим постом будет еще один домик )



















Строительство и ремонт
10.7K постов48.3K подписчиков
Правила сообщества
Правила оформления постов.
Посты видеоролики должны обязательно иметь описание о чём видео. Если видео длинное, то крайне желательно указать время, когда и о чём рассказываете.
В случае нарушения пост выносится из сообщества.
Правила общения.
Запрещено регулярное хамское и неуважительное обращение к другим участникам сообщества в рамках общения в комментариях. В случае первого нарушения бан в сообществе на 2-3 недели. В случае повтора постоянный.
Про нейросети
Тексты сгенерированные нейросетью, выносятся из сообщества, пользователь блокируется на неделю. При повторном нарушении перманентный бан для пользователя.
Про рекламу
Рекламные посты от платных/бесплатных аккаунтов запрещены. За первое нарушение блокировка на 7 дней. За второе перманентная блокировка.
Только для профессиональных участников рынка строительных услуг. (публикующихся регулярно)
Пост должен быть основан на личном опыте.
Должен быть информационно-познавательным (разъясняет/ объясняет что-то связанное с материалом/работой/организацией/и.т.д.) или пищей для ума (Взгляд на проблему, с другой стороны)
Запрещается публикация видео длиной более 5 минут без текстового таймлайна. ( надо указать где и о чём вы рассказываете в видео)
Не злоупотребляйте тэгами. Количество своих тэгов не более 4х шт. Тэги проставляемые системой не учитываются. (Длиннопост, видео, и.т.д.)