А почему бы и "Да"?
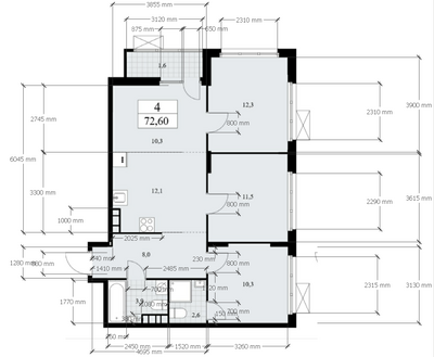
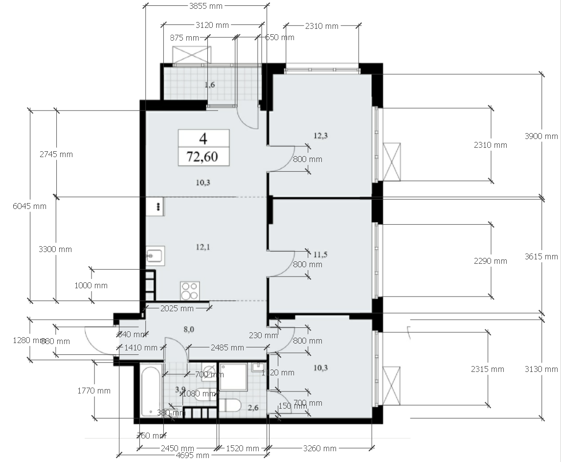
Россия — уникальная страна. Есть требование, по которому застройщик не может строить и сдавать в эксплуатацию квартиры площадью меньше 28 кв. м. Как видно по плану, здесь аж 40 кв. м. Однако есть нюансы...
Да, 40 кв. м — отличная, даже вполне себе просторная однушка, если исходить из площади. Но прихожая 7м часть пространства отберет шкаф, часть еще что-то и на пронос ~50 см, и ВСЕ. Чтобы меблировать данную квартиру, нужно либо закупить, и расставить всю сантехнику и мебель, включая кухню, ДО возведения стен спальни, сральни и т.д., что приведёт к последующему выбросу всего купленного. Как ни крути, всё это добро в ходе ремонтных работ будет ушатано так, что после останется только на помойку. Или кровать и диван должны быть надувными, остальная мебель крайне узкая и пластиковая, либо полностью разборная, а кухня — оборудоваться туристической плиткой.
А так да, все требования соблюдены, площадь — огонь.
UPD : перепроверил обрезаемый вариант, это оказывается 2-ка у них считается
UPD 2 : для тех кому было лень гуглить ЖК самостоятельно как появилось время нашел сам эту квартиру. Купить 2-комнатную квартиру площадью 40.1 м² по адресу Московская обл.,Одинцовский р-н, пос. «Перхушково», дом 3, этаж 1, 65ап
UPD 3 : Для тех кто не может понять и найти где там 50см про которые речь, добрый человек прокинул точки : #comment_345087434
Стоит это чудо почти 7 лямов
Ну и сюрприз-сюрприз(нет) о том что это квартира написано ровно до нажатия и перехода непосредственно на карточку этого чудо жилья, планировку которого кто-то сделал(интересно под чем блять?) потом кто-то согласовал(бухой что ли?) а потом кто-то построил (нет того на что не пойдет торгаш ради 300% прибыли) и вот уже в самой карточке это *хуяк* апартаменты.













Строительство и ремонт
10.8K пост48.4K подписчик
Правила сообщества
Правила оформления постов.
Посты видеоролики должны обязательно иметь описание о чём видео. Если видео длинное, то крайне желательно указать время, когда и о чём рассказываете.
В случае нарушения пост выносится из сообщества.
Правила общения.
Запрещено регулярное хамское и неуважительное обращение к другим участникам сообщества в рамках общения в комментариях. В случае первого нарушения бан в сообществе на 2-3 недели. В случае повтора постоянный.
Про нейросети
Тексты сгенерированные нейросетью, выносятся из сообщества, пользователь блокируется на неделю. При повторном нарушении перманентный бан для пользователя.
Про рекламу
Рекламные посты от платных/бесплатных аккаунтов запрещены. За первое нарушение блокировка на 7 дней. За второе перманентная блокировка.
Только для профессиональных участников рынка строительных услуг. (публикующихся регулярно)
Пост должен быть основан на личном опыте.
Должен быть информационно-познавательным (разъясняет/ объясняет что-то связанное с материалом/работой/организацией/и.т.д.) или пищей для ума (Взгляд на проблему, с другой стороны)
Запрещается публикация видео длиной более 5 минут без текстового таймлайна. ( надо указать где и о чём вы рассказываете в видео)
Не злоупотребляйте тэгами. Количество своих тэгов не более 4х шт. Тэги проставляемые системой не учитываются. (Длиннопост, видео, и.т.д.)