BeeRKyT
Как мы решились дом строить. Электрика.
Прошу прощения что долго не было постов. На фото наш дом с небольшой новогодней иллюминацией. Сегодня расскажу об электрике в доме.
Поначалу был очень оптимистично настроен, так как человек, подключавший счетчик(не МОЭСК, а просто человек с "кошками" и нужным инструментом) предложил очень вменяемый ценник на скрытую разводку электрики(дом каркасный). Но после чтения форумхауса, СНИПов и т.п. закрались смутные сомнения и я попросил его выслать более подробную смету. Оказалось, что на весь дом планируется три однофазных дифавтомата по 25А и один трехфазный на те же 25А. И все. Проводка будет в пластиковой гофре. Соединения колпачками-скрутками. Сразу напрягло то, что розетки 16А, а автомат 25А. Т.е. при 20 амперах через розетку (условные фен+утюг через двойник) автомат не сработает, а розетка может и не выдержать.
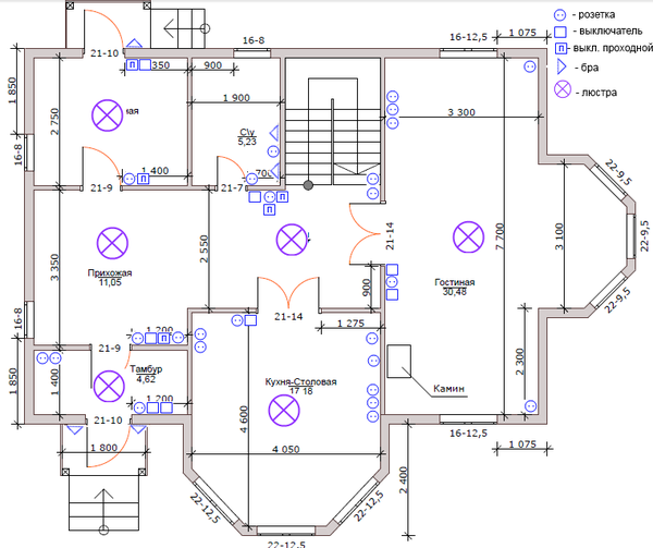
Понял, что придется увеличивать ценник и искать другого подрядчика. Нарисовал схемы расположения розеток, выключателей и ламп и начал искать более адекватного специалиста. Во всех письмах и звонках говорил, что нужно соответствие СНИПам, так как дом по ипотеке и возможна процедура сдачи в эксплуатацию. Собственно, схемы(рисовал в paint.Net).
В каждой комнате розетка у входа для пылесоса. Остальные по планируемому расположению мебели. В санузлах влагозащищенные розетки(для бритвы, фена и т.п.)
Разброс цен в предложениях был от 250 тыс до 800 тыс., но было одно НО. Наши устаревшие снипы и нормы. А именно то, что в деревянном доме скрытая проводка делается либо в слое штукатурки определенной толщины, либо в металлических трубах со следующими характеристиками.
Для сравнения. В США делают вот так.(фото из интернета)
Так как слоя штукатурки не планировалось, а проводку хотелось скрытую, надо было делать в трубах. Радовало одно, что при сечении провода до 2,5 мм2 толщина трубы не нормируется. И выбор пал на гофрированную трубу из нержавейки(знаю, что недешево, знаю, что лишнее, но формально закон соблюден и это греет душу). И, оказалось, что никто не хочет браться за прокладку электрики в металлогофре за вменяемые деньги( многие пытались убедить, что металлорукав - также подходит под снип). В итоге, потренировавшись на бытовке(разводка коробок, подключение розеток, лампочек, зачистка и соединение проводов и т.д.) решился делать сам. Оставалась одна сложность - щиток. Надолго засел на форумхаусе, вспомнил школьную физику, прикинул потенциальные нагрузки и получилось вот это.
Выглядит параноидально(наверное, так и есть). Но освободившиеся деньги(монтаж решил делать сам) позволили немного разгуляться. Принципы, которыми руководствовался при сборке щитка. На каждую комнату и санузел отдельный автомат на свет, отдельный автомат на розетки, на мощные потребители отдельные автоматы(тепловая завеса, духовой шкаф, плита, стиральная машинка и т.п.) на системы жизнеобеспечения отдельные автоматы(холодильник, скважина, септик, отопительные насосы, обогревы труб). Все, кроме света в сухих комнатах(вероятность контакта с проводом после монтажа очень мала),скважинного насоса и обогрева водопровода(инструкция), через 30 мА узо. На каждое узо, кроме вводного(400мА) не более трех автоматов(тоже в каком-то документе было написано). Ещё поставил реле напряжения(на фото с жк дисплеями) - обрубают свет, если напряжение меньше 180 и больше 250. Как ни странно, несколько раз вырубало по верхнему порогу(в итоге переключили на другую подстанцию) и ни разу по нижнему(тьфу-тьфу).
Заземление(считаю необходимой штукой в доме) делали с помощью готового комплекта из 4-х полутораметровых стальных штырей покрытых медью и кувалды.
Труднее всего оказалось прокладывать металлогофру и протягивать в ней провод(понял почему все отказались). Изначально труба предназначена для водопровода, поэтому в ней нет протяжки. Выручала бечевка, пылесос и наушники(звук при соединении включенного пылесоса и гофры сродни звуку трения пенопласта о школьную доску). Для того, чтобы край гофры не резал провод, загибал его пассатижами. Выводы под свет делал с помощью водорозеток.
Ещё в уличном щитке поставил рубильники для подключения генератора. Ток от обычного генератора реле не пропускают, а вот с инверторным проблем нет.
В 2014 году на кабели, розетки, автоматы и т.п. ушло 60 тыс. рублей. На гофру 28 тыс. руб.
Спасибо, что дочитали до конца. На вопросы с удовольствием отвечу в комментариях. Замечания специалистов также приветствуются( мне исправлять вряд ли получится, зато другим полезно будет знать).
Как мы решились дом строить. Отопление.
Эта штука помогает нам экономить деньги при отоплении электричеством. Всем привет! Теперь расскажу как мы до такого докатились!
После того, как я увидел ценник на газ длиною в 8 цифр перед запятой, стало понятно, что над отоплением придется думать очень тщательно. Много ночей провел за чтением форумхауса и подобных порталов, изучением цен на различные устройства и виды топлива. Вырисовались следующие варианты:
1. Электрические конвекторы.
Плюсы: Минимальные затраты на оборудование (19 конвекторов Nobo по 1 кВт выходили в 40 тыс.)(здесь и далее цены на весну 2014 года), встроенные термостаты. Включил и забыл.
Минусы: Выделенная мощность всего 15 кВт(надо настраивать с помощью таймер розеток(ещё + 6 тыс.)), не вытянуть генератором при отключении электричества (генератор на 15 кВт стоил(да и стоит) более 200 тыс.). Дорогое электричество(подходит только однотарифный режим). Нужен водонагреватель.
2. Электрический котел. Водяное отопление(здесь и далее).
Плюсы. Дешевый котел, отсутствие дымоходов, возможность несложного апгрейда до газового отопления (замена котла + дымоход). Включил и забыл. Бывает двухконтурный(отопление и горячая вода)
Минусы. Те же, что и у конвекторов.
3. Дизельный котел.
Плюсы: Включил и забыл. При коротких отключениях света хватает ИБП. При более длительных хватит немощного генератора. Для перехода на газ надо сменить только горелку в котле. Двухконтурный
Минусы: Дизельное топливо и его постоянно увеличивающаяся цена. Его надо покупать оптом и организовывать хранение(закапывать емкость, либо ставить емкость в котельной).
4. Пеллетный котел.
Плюсы: Энергозависимость такая же как и у дизельного(т.е. ибп плюс небольшой генератор на случай отключений), дешевое топливо относительно дизеля, и более удобное хранение(закинул в бытовку). Надо вспоминать раз в 1-2 недели (в зависимости от емкости буфера).
Минусы: Стоимость котла(на весну 2014 года цена начиналась от 200 тыс. Сейчас вроде есть нашего производства менее чем за 100 тыс.). Сильная зависимость от качества топлива. Надо очищать от золы и сажи относительно часто.
5. Твердотопливный котел.
Плюсы: Энергонезависимость. Ест все, что горит(в разумных пределах. дрова, уголь, торф). Легко организовать хранение топлива(бытовка после стройки осталась).
Минусы: Требует постоянного контроля. Надо подкидывать дрова(бывают котлы длительного горения, но там все не так просто), чистить от золы и сажи. Риск вскипятить котел.
Так как ни один из вариантов полностью не устраивал (может это бзик, но как-то пережив с бабушкой в зимние каникулы 2-х недельное отключение электричества, не полагаюсь на заявленную стабильность подмосковных сетей), решил смотреть схемы комбинированного варианта. Конвекторы трудно с чем-то комбинировать. Из оставшихся вариантов выбрал самый удобный и самый независимый(т.е. электрокотел и твердотопливный(ТТ) котел).
Надо было думать как их комбинировать, чтобы было максимально удобно, безопасно и эффективно по финансам. Электрическим котлом дешево топить по ночному тарифу. Чтобы не вскипятить ТТ котел - нужно много энергоносителя(вода, антифриз). Эти мысли привели меня к теме буферных накопителей. И принцип отопления получился следующий. Ночью включаем электрокотел на полную мощность, греем дом, остальное греет воду в накопителе. Днем остывает накопитель, если к вечеру температура в доме начинает падать - затапливаем ТТ котел(греет дом, остатки в буфер). Так как ТТ котел не умеет греть горячую воду, а при отключении света она бывает нужна, то воду решил греть через бойлер косвенного нагрева(вода из системы отопления через змеевик греет воду для горячего водоснабжения). Соединять котлы можно было последовательно и параллельно. Так как в электрокотлах стоит термостат, решил, что буду подключать последовательно(хотя на форумах и на показах домов большинство подключают параллельно). В итоге получилась вот такая схема.
ТТ(нравится сокращение) котел греет только воду в буфере(1 тонна антифриза - очень дорого). Объем подбирался из расчета, что одна полная загрузка котла не сможет закипятить весь буфер. Через электрокотел проходит вода из буфера. Если она меньше 70С и время ночного тарифа, то он её подогревает. Далее вода идет на радиаторы и на бойлер. Возвращается вода в буфер. Если ТТ котел затоплен, то вода благодаря естественной циркуляции проходит через котел и возвращается в буфер горячей.
После общения с монтажниками, прочтения инструкций буфера и котла, между ТТ котлом и буфером появился трехходовой клапан(чтобы котел не потел при растопке и дольше служил).
Радиаторы были выбраны стальные панельные с нижним подключением(в комплекте идет кран маевского(спускать воздух), клапан для термоголовки ну и много разных размеров, нам под эркерные окна нужны были высотой 30 см). Монтажники порекомендовали трубы из сшитого полиэтилена для подключения радиаторов, из полипропилена для обвязки котельной и из металла для контура ТТ котел - буфер. На том и остановились.
Пост большой получился. В конце скажу, что ТТ котел топим только когда на улице минус(только одна загрузка топливными брикетами), в остальных случаях электрокотла, работающего только по ночному тарифу, хватает и для горячей воды и для отопления(летом общий счет за свет 2-3 тыс, зимой 4,5 - 5,5). Генератор включали только для проверки работоспособности.
Спасибо, что дочитали до конца. Если есть вопросы - с удовольствием отвечу в комментариях. Прошу прощения за фото, так как размеры котельной, расстановка оборудования и отсутствие широкоугольного объектива не позволяют сделать фотографии, на которых хоть что-то влезало бы целиком. На фото ТТ котел(слева) и часть буфера(справа).
Как мы решились дом строить. Подрядчики и стройка.
Таким получился проект нашего дома в 3D MAX. Прошу прощения, что долго не было постов. Всем привет! А теперь о том, как мы к нему пришли и что из этого получилось.
В предыдущем посте рассказал о том, как удалось получить средства от банка на строительство дома. Теперь расскажу о том, как мы эти средства тратили.
Так как средства кредитные, то финансовая отчетность по ним относительно строгая. Поэтому строиться решили через подрядчиков, которые бы эту отчетность обеспечили.
Выбор подрядчиков. Пока ждали готовили документы и ждали одобрения кредита - посетили несколько строительных выставок в Москве, где пообщались и взяли контакты очень многих компаний. Планировку дома с женой вынашивали давно, поэтому нарисовав планировку в пейнте, разослали их по потенциальным подрядчикам(более 50). Исходных планировок не осталось - поэтому выкладываю финальные.
Изучив все предложения, а разброс был от 2 до 16 млн, поняли, что в наш бюджет вписываются следующие варианты:
1. Дом из бруса 150х150 на свайно-ростверковом фундаменте.
2. Каркасный дом на любом фундаменте(но без подвала) со многими вариантами внешней отделки(сайдинг, фиброцементная плита и т.д, и т.п)
3. Дом из газобетона на ленточном фундаменте без внешней отделки.
4. Дом из сип панелей.
Супруга отвергла вариант бруса, так как хотела внутри штукатурку, отсутствие внешней отделки на пеноблоке (газобетоне) мне не нравилось, сип-панели исключали возможность скрытых коммуникаций. Остановились на каркасе.
В итоге осталось около 15 подрядчиков. Посетив их объекты(ушло порядка месяца), остановились на варианте отделки дома плитами ЦСП с каменной крошкой(по мне, так практичный и красивый вариант, да и по деньгам приемлемый). С этим материалом работал только один подрядчик - на том и решили. Строить планировали зимой(дешевле, да и дождей поменьше), поэтому очень сомневались в возможности качественно залить ленту и остановились на свайном фундаменте. На выставках был налажен контакт с компанией, которая только этими фундаментами и занимается, причем давно.
После изучения сметы основного подрядчика "под ключ", оставили только коробку без окон и кровлю. Так как за разводку коммуникаций и за окна цены были явно выше рынка.
Как результат, фундамент - подрядчик 1, коробка + кровля - подрядчик 2, окна - подрядчик - 3, отопление + водопровод - подрядчик 4, электрику и внутреннюю отделку(по мере появления денег) делал полностью сам.
Во всех договорах с подрядчиками просили указать производителя материала, влажность древесины(ведь на словах у всех все самое лучшее), четкие сроки и штрафы за просрочку. После подписания договоров я отправил в компании по производству материалов запросы на то, какие у них маркировки и какие партии они отправляли в Россию.(Был 2013 год и покупать иностранные материалы было не дороже, чем российского производства) и технологии установки, крепления и т.п. На удивление, все компании ответили, а производитель оконных профилей даже написал, что у него сейчас акция и они поставляют премиум-профиль по цене стандартного(подрядчик об этом не говорил, но после пересылки ответа производителя согласился и ,не меняя итоговую смету, поставил 80мм профиль, вместо 70 мм). В общем, подрядчики были уведомлены, что материал и технологии будут проверяться в соответствии с письмами от производителей. Не все были довольны, но никто не отказался.
Ещё раз изучив сметы, мы поняли, что получается перерасход отделочных плит ЦСП(самый дорогой материал в смете) и немного изменили размеры дома и оконные проемы под этот материал. Сэкономили почти 100 тыс.
И так. Имеем
Фундамент - 300 тыс.
Коробка с кровлей - 1,7 млн
Окна - 350 тыс.
Промежуточный итог: 1,6 млн участок с коммуникациями(без газа) + 2,350 коробка с окнами и кровлей = 3,950 млн.
У меня тогда была 2-х мегапиксельная моторола. Не ругайте за качество.
Внутри были просто балки перекрытий. А стены отделаны ОСП. Поэтому ещё закупили ЦСП 24 мм на пол, 9,5мм гипсокартон на стены(прямо поверх ОСП) и утеплитель с пленками для перекрытий. Получилось где-то 150 тыс.
Уже подходим к концу. Терпение.
Отопление, вода, канализация - 400 тыс.
Электрика - 50 тыс.(делал сам)
Санузел(плитка, раковина, унитаз, душевая кабина) - 50 тыс.(делал сам)
Итого: 4,6 млн.
С апреля по сентябрь удалось самостоятельно(при помощи тестя, супруги и друзей) застелить полы, зашить стены гипсокартоном, сделать импровизированные двери из ОСП и положить плитку в санузле.
В сентябре 2014 годы мы въехали. Дом был не отделан(стены гипсокартон, пол цсп(в одной комнате постелили ковер), Холодильник и стиралку привезли из общежития(осталось от соседей), но нам удалось миновать этап съемного жилья, переехать из 8 кв.м в общежитии в свой дом.
Получилось сумбурно. Если есть вопросы - задавайте. С удовольствием отвечу в комментариях.
P.S. Хорошо все уметь. Плохо все делать самому.
Как мы решились дом строить. Ипотека.
Всем привет! Если раньше для постройки дома людям требовался только топор, то сейчас таким универсальным инструментом стала ипотека. У всякого инструмента есть правила эксплуатации и техника безопасности. Расскажу о своем опыте работы с данным видом банковского продукта.
Создав семью в уже далеком 2012 году, естественно, задумались с супругой о своем жилье. Накопить сумму, достаточную для покупки квартиры/постройки дома за время жизни в общежитии(3 года) было проблематично. Поэтому ипотека рассматривалась как наиболее быстрый способ обретения семейного гнездышка. После изучения "Инструкции по эксплуатации" было решено вести семейную бухгалтерию в табличке Excel для определения размеров и структуры трат. Это сейчас банковские приложения строят статистику расходов - тогда у меня была старая добрая кнопочная моторола и карточка для стипендии.
За два года сумели накопить не только сумму, которая частично покрыла траты на покупку участка и подведение коммуникаций, но и собрали статистику сколько и на что тратим в месяц, оптимизировали расходы(продукты длительных сроков хранения, одежда и т.п. покупались по распродажам, билеты на метро на максимальное число поездок) и начали пользоваться накопительными банковскими картами (Связной Банк, помним тебя).
Из двух типов платежей по кредиту мне больше приглянулся дифференциальный(меньше переплата, легче проконтролировать расчеты, более выгодное досрочное погашение) поэтому выбирать особо не пришлось, ибо ипотеку на строительство загородного дома с дифференциальными платежами давал только банк со 100% государственным капиталом.
Подали заявление, нам сделали предварительный расчет, одобренная сумма нас более чем устраивала. Срок выбрали максимальный(процент от срока не зависел, а ежемесячный платеж был меньше, т.е. безопаснее). Начали собирать необходимые документы. На первый взгляд их было немного, но разрешение на строительство требовало времени и кучи побочных документов. Пришлось освоить Autocad и даже не обошлось без суда. Последним этапом перед получением кредита была оценка участка и оказалось, что сумма, выдаваемая банком на строительство не может быть больше чем 85% цены участка (не понимаю этого правила, получается, что риск банка отсутствует). Оценочная контора пошла на встречу и сделала оценку по верхней планке(дорого оценила наличие коммуникаций и забора, близость реки), но даже с учетом этого пришлось корректировать проект дома в сторону уменьшения и удешевления(отсылали планировки и получали коммерческие предложения). Иначе достроить дом в планируемые сроки было бы сравни чуду.
В итоге перед началом строительства имели одобренную(не предварительно, а уже 100%) сумму и дело оставалось за малым, выбрать подрядчика(забегая вперед скажу, что многое делал сам) и начать стройку.
Получилось сумбурно. Много разных нюансов, но и длинный пост писать не хотелось. На вопросы с удовольствием отвечу в комментариях.
UPD1: Написал настолько сумбурно, что никаких цифр не привел. Дело все происходит в ближайшем Подмосковье, доход семьи на момент взятия кредита 90 т.р., дали 2,1 млн. на 25 лет, платеж в начале около 35 тыс.руб был - сейчас уже меньше(особенность дифференциальных платежей).
Как мы решились дом строить. Коммуникации.
Да. Именно столько попросили за то, чтобы труба с газом оказалась рядом с забором. Всем привет! А теперь обо всем по порядку.
Шел 2012 год. Документы на участок получены. Оставалось 2 года до окончания аспирантуры, и, соответственно, 2 года общежития. Какие-либо работы по строительству дома начинать без электричества тяжело(это раньше топора хватало, а сейчас даже молотки от компрессора), а до ближайшего столба 60 метров. Позвонил в МОЭСК. Сказали принести документы на участок и распечатку гугл или яндекс карт, где подключаемый участок обведен. Сказано-сделано. На следующий день сдал все бумаги и через месяц получил технические условия, в которых стояла сумма 550 рублей и 6 месяцев ожидания. Сумма устраивала, сроки не очень. Был куплен генератор на 3 кВт для более раннего начала и будущего резерва. Столбы, как и обещал МОЭСК, появились ровно через 6 месяцев. Счетчик и щиток так же за наш счет(около 10 тыс. рублей).
Вода. Деревенский водопровод заканчивался в 500м от участка и его мощность была почти полностью выбрана. Сначала хотели сделать абиссинский колодец, но глубина залегания вод оказалась ниже допустимого (18 метров вместо максимум 10). Пришлось бурить скважину. Отдельно прорабатывал юридический вопрос на тему недропользования. Вроде как буриться до первого водоносного слоя с непромышленным расходом разрешено без всяких согласований(знающие люди поправят). Собственно так и сделали. Итого 40000 бурение и 50000 обустройство скважины. Кессон + насос + реле + гидроаккумулятор. Цены 2012 года.
Канализация. Здесь все просто. Деревенских сетей нет. Поэтому собственный очистные. Взяли аэрационную установку. Сами очистные + установка + земляные работы(6 куб.м грунта) получилось 136000. Заранее скажу, что результатом довольны. Запаха нет, даже если открыть крышку и наблюдать за бурлением.
Газ. Набор документов как и для электричества. Отдал. Через месяц пришел на получение тех. условий. Сказать, что я был удивлен - ничего не сказать. Причем, не я один. Главный инженер принял без очереди, достал проект газификации. Оказалось, что мощностей нет. И, чтобы подключить меня, надо протянуть 1200м газопровода, поставить понижающую станцию, и т.д. и.т.п. И все это вешают на меня. Понятное дело, что парень, приехавший на автобусе, вряд ли выложит 10 млн за газ и, взяв договор на ознакомление, а скорее для истории, поехал в общежитие несолоно хлебавши.
Следующие две недели по ночам изучал разные варианты отопления будущего дома без газа. Просчитал все, что нашел. Газгольдер - начальные затраты 400 тыс. + дорогой газ, тепловые насосы - 1,2 млн, дизельный котел + емкость для хранения (200 тыс), пеллетный котел(150 тыс. тогда ещё не было российского производства), электрокотел(15 тыс.) + буфферный накопитель(40 тыс) + твердотопливный котел(дрова, уголь) (35 тыс). Выбрал последний вариант. Электрокотел по ночному тарифу греет дом и излишки копятся в буферной емкости на 1000л. и если до вечера не хватает тепла, то к вечеру затапливается ТТ котел.
Подведем итоги. В сумме за подведение и обустройство коммуникаций мы заплатили где-то 240 тыс. Из центральных - только электричество, остальное автономное, но, как оказалось, это не беда. Коммунальные платежи у нас выливаются в плату за электричество(очистные бурлят, насос качает, в доме тепло и вода горячая имеется). Получается летом около 2 тыс в месяц, зимой больше 5 не было + 1 тыс в месяц зимой за топливные брикеты(ими удобнее, чем дровами). Итого 48 тыс в год. На мой взгляд, неплохо.
Спасибо всем, кто прочитал. Если появились вопросы - задавайте. С радостью отвечу в комментариях.
P.S. "С деньгами любой дурак сможет, а ты без денег попробуй"(с)
Как мы решились дом строить. Выбор участка.
Всем привет! После моего первого поста я понял, что тема постройки частного дома интересна, как минимум, четырем подписчикам. Поэтому продолжаем.
Наверное, это был самый важный и ответственный этап. Мы начали с изучения возможных категорий и видов разрешенного использования. В итоге остановились на ИЖС (индивидуальное жилищное строительство) и ЛПХ (личное подсобное хозяйство). Для этих категорий много плюшек от государства (15кВт электричества за 550 рублей, газ до забора за 50 тыс и т.п.). Далее следовала транспортная доступность. Так как автомобиля на тот момент не было, а на работу надо в столицу, отталкивались от станций электричек(чтобы избежать пробок). Порядок был такой. Брали карту, смотрели станции и их расписание, если устраивала частота электричек и время в пути до метро(максимум час до вокзала на Садовом кольце), то искали объявления в интернете, договаривались о встрече с риэлтором(собственник всего один попался) и выбирались на место. Искали полгода. Почти каждые выходные. За это время изъездили всю область до бетонного кольца. И вот в один из дней приехали на очередной просмотр. 'Идеальные' по описанию на сайтах участки - один под высоковольтной линией, второй в 20 метрах от активной железной дороги. После просмотра решили прогуляться вдоль реки, протекающей около деревни. Увидели поляну и подумали: "Вот здесь было бы здорово построить дом". По пути на станцию электричек на столбе висело объявление от руки 'Продам участок'. Ну, мы и позвонили. Оказалось, что участок именно на той поляне. Радости не было предела. Проверили документы, подсобрали денег и заключили договор купли-продажи. Так участок стал нашим.
Хотелось бы добавить, что в процессе поисков выработали для себя следующие правила:
1. Смотреть участки лучше не летом. Осень-весна покажет, можно ли добраться по распутице, зима-чистят ли дороги.
2. Спрашивать местных о продаже участков. Часто люди не вывешивают объявления в интернете и не пользуются услугами риэлторов.
3. Приезжать на просмотр и возвращаться только на общественном транспорте. Чтобы была более реалистичная картина транспортной доступности.
4. Если участок в коттеджном поселке, то внимательно изучать договоры членства. В 90% случаев ежемесячные взносы были больше 10 тыс. рублей, что для нас много.
На вопросы с радостью отвечу в комментариях.
P.S. "Вкладывайте деньги в землю, ведь её больше не производят."(Марк Твен)
На фото та самая речка.
Как мы решились дом строить
Прочитав комментарии к посту http://pikabu.ru/story/zavist_4420173 , решил написать как мы с супругой построили дом и теперь периодически ездим в Икею.
Пикабу читаю давно, но зарегистрировался только что.
Дело было в 2012 году. Я поступил в аспирантуру, универ выделил комнату в 8 кв.м. Потом женился. Вдвоем в 8 кв.м. было тесновато, но так как в Икею ещё не ездили, места хватало. Я работал параллельно с аспирантурой. Стали задумываться о своем жилье, так как через три года надо было бы съезжать из общежития. Естественно, начали прощупывать варианты с квартир в строящихся комплексах. Сначала замахнулись на трешку с парковкой внутри МКАД(молодые были, амбициозные и неопытные), но ценник от 13 млн оказался неподъемным в принципе(думаю, не только нам). В итоге, рассчитав свои силы и умерив аппетиты были готовы на двухкомнатную квартиру в ипотеку с месячным платежом около 60 т.р. на этапе котлована, который сейчас называется "Город в лесу". Заявление в банк на кредит написано. Ждем решения и нечаянно попадаем на выставку домов в Тушино, где деревянный дом в 140 квадратов стоит меньше, чем полтора миллиона. Что-то щелкнуло в голове и через два часа я начал активно смотреть цены на участки под строительство. И, оказывается, в пределах 10 км от МКАД можно найти довольно много интересных мест, имея на руках(ну или как в нашем случае, на руках у родителей и друзей) чуть больше 1 млн. рублей. А так, как до окончания аспирантуры было ещё два с половиной года, и сил в себе чувствовал немерено, на семейном совете было решено купить участок и строить на нем дом. Ведь помимо очевидных плюсов(площадь, участок, где и парковку можно выделить, и цветы посадить, и собаку завести(мечта жены)), основным плюсом оказалось то, что деньги вкладываются постепенно(участок, потом фундамент, потом коробка и т.д.), что при использовании кредитных средств получается дешевле(так как проценты платятся только за освоенную часть).
Собственно, к чему я все это. В итоге в 14м году(т.е. через два года) из 8 кв.м. переехали в 180 кв.м., минуя съемное жилье. И дом получился дешевле, чем та квартира, которую мы чуть не взяли в котловане, а платеж по ипотеке в два раза меньше.
Прошу прощения за много слов. Если кому-то будет интересно, напишу, как выбирали участок(ИЖС, ЛПХ и подобные термины), возводили фундамент, делали проект и т.д.
Всем добра!
P.S. Ипотека как топор, можно дом построить, а можно и руки(почки) лишиться.

















