Эх склад, еще склад, еще много-много склад
Волна фур у «Скандинавского». В Бородино перевели новый сельхоз участок в промышленный.
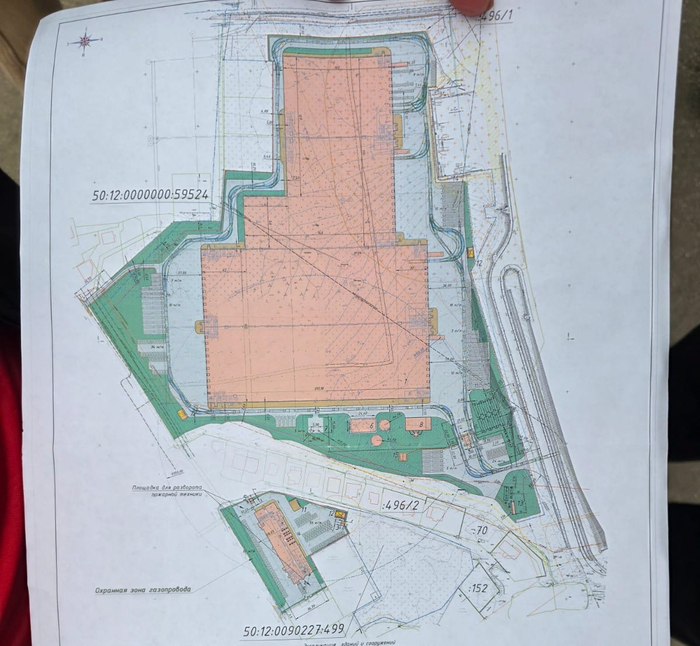
Кажется, местные власти видят в нашей территории только одно: бескрайнее поле для бесконечных складов. Свежая новость — под них уже отведён новый участок. И это не просто «ещё один склад».
➡️ Его площадь — в ДВА РАЗА больше того участка, который уже стал кошмаром для жителей. Масштабы трудно представить.
➡️ Землю, которая принадлежит всем нам (муниципальная!) оценили в НОЛЬ рублей. Прозрачность? Эффективность? Общественная польза? Вопросы риторические.
А главная боль ляжет на нас. Весь поток фур арендаторов поедут не по какому-то абстрактному шоссе, а по Малой Бородинской улице, густо населённой жителями.
Забудьте про «цветочки» Промышленного проезда в Беляниново. Это будут «ягодки» нового уровня. Шум, вибрация, грязь, опасность для детей и тотальные пробки станут нашей новой реальностью.
Молча соглашаться? Или всё-таки спросить?
· Кто принял это решение?
· Где публичные слушания и оценка воздействия на среду?
· Почему интересы арендаторов важнее качества жизни тысяч людей?
Это касается каждого, кто здесь живёт.
ИСТОЧНИКИ: https://t.me/borodino_za_chistiy_vozdux
Также кадастровые номера, которые изображены на скриншотах, пробиваются путем поискового запроса в росреестре и содержит официальную информацию: https://pk-rosreestr.ru/












