Фундамент
Под дом был выбран ленточный монолитный фундамент.
Ширина ленты была - 640мм под вентшахту, 500мм - наружные несущие стены, 400мм - ненесущие внутренние стены , 250мм - под внутренние перегородки. Глубина везде Отметка низа фундамента относительно земли - 1200мм.
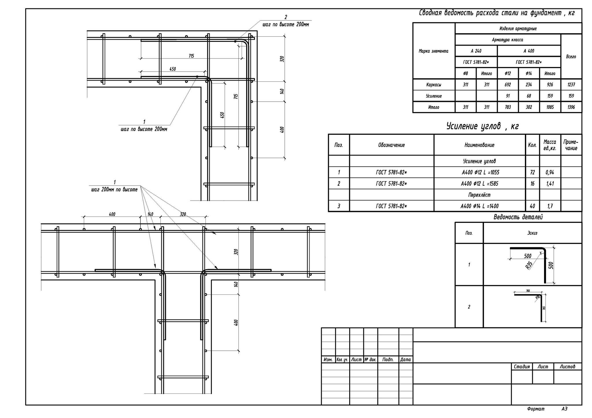
Разметка - при помощи геодезиста.В углах по осям установились колья из арматуры. Через метр от основных кольев устанавливались дублирующие на время копки. Копка осуществлялась мини-экскаватором с ковшом шириной 400мм - ушло часов. Объём земли - 38м3. Доработка грунта вручную. Грунт - суглинок с прослоями песка, воды нет. Лента армировалась вязаными каркасами - для удобства 8 продольных стержней из 12мм арматуры обвязанные хомутом из 8мм арматуры с шагом 500мм. Дно и края котлована выравнивались и слегка утрамбовывались. Затем по дну и стенкам укладывалась плёнка полиэтиленовая 200мкм для предотвращения ухода воды из бетона в грунт. Каркасы вязались непосредственно в траншее при помощи вязальной проволоки 0,9мм. Для создания защитного слоя применялись пластиковые звёздочки d=50мм. На углах ленты выполнялось усиление при помощи Г-образных стержней из 14мм арматуры. Вся лента за исключением стены по центру где арматура была 14мм, армировалась 12мм арматурой класса А500С. Расход арматуры - примерно 1250кг. Где было необходимо - обвалившиеся углы фундамента обрамлялись OSB плитой. Под вентшахту фундамент был в мини -опалубке.
В фундаменте заранее заложены были гильзы под канализацию, воду и электричество. А также небольшая местная выемка под лаз в техподполье.
Заливка фундамента происходила из бетона В15 (М200) при помощи комбинаций миксеров 6,5м3 и 8,5м3 - 6,5+8,5+6,5+8,5+8,5=38,5м3.
После заливки необходимо укрыть бетон плёнкой и периодически его поливать водой согласно рекомендациям и по погоде. На 3ей неделе можно снять плёнку и приступать к устройству цоколя.





















