Дизайн квартиры-студии 14 м2
Как в 14 м2 впихнуть все, что необходимо для жизни?
Вполне реально и даже можно сделать это современно и стильно. Квартирка вышла достаточно "просторной", как минимум визуально. Этого добились за счет сочетания светлых цветов.
Квартира планируется для проживания квартиросъемщиков и мамы хозяйки в зимнее время года.
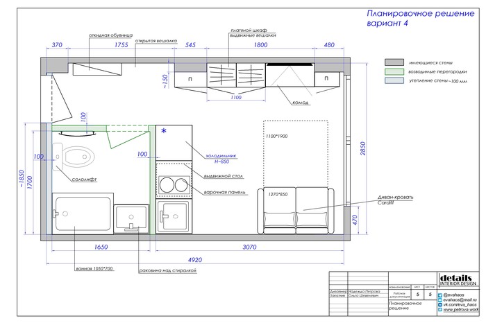
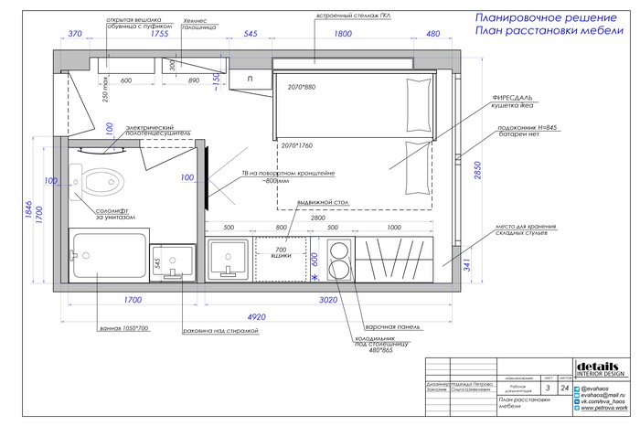
Чтож...как обычно, все начинается с планировки полезного пространства, было несколько вариантов расстановки мебели и из них выбрали самый оптимальный вариант.
В этой квартире есть полноценная прихожая, спальное место (кушетка из икеи, которую можно раздвинуть в двухспальную кровать), гостиная, кухня и ванная комната.
Из-под кухонной столешницы выдвигается обеденный стол, за который можно сесть достаточно большой компанией (минимум 4 человека). Раскладные стулья прячутся сбоку шкафа. Там же под столешницей мини-холодильник с морозилкой. На столешнице разместили двухкомфорочную варочную панель и маленькую раковину. Фартук кухни отделали оргстеклом, чтобы не привлекать к нему особого внимания, изначальным вариантом было зеркало ромбиками с фацетом.
В туалете расположили мини-ванную и стиралку. Для хранения разных мелочей антресоль над дверью, шкафчик и полка в углу ванной для шампуней и прочих банных принадлежностей.
В этот раз другое напутствие в конце поста)))
Всем достойной работы с хорошей оплатой, чтобы жить в большой квартире, чтобы там туалет был размером с эту квартиру)) Всем добра и плюшек (❍ᴥ❍ʋ)
















