Завершенные проекты: Из "Однушки" в "Евродвушку"
Всем привет! Давненько ничего не постил сюда, был занят переездом в Питер и покупкой квартиры, т.ч. все свободное время посвящал бытовой суете, как-то не до бложиков было. Обещаю исправиться, тем более, что задумок у меня масса.
Сегодня расскажу об одном своем уже как полтора года назад реализованном проекте. А именно об отделочных работах в небольшой однокомнатной квартире, общей площадью 42 кв. м. Пожалуй основной особенностью данного проекта стала просьба заказчиков сделать из однокомнатной квартиры "евродвушку", что для такой относительно небольшой площади и общей планировки помещения, задача не из простых, благо дизайнер был толковый и с задачей справилась.
Изначальная планировка квартиры (от застройщика) продемонстрирована на плане ниже. Сразу хочу обратить ваше внимание на прихожую с коридором, их площадь отбирала процентов двадцать от общей, не меньше, что как бы довольно расточительно в столь небольших размерах квартиры. Кроме того, изначальное расположение кухни было в помещении слева, т.е. там, где по предоставленному нам проекту должна будет находиться спальня.
По задумке дизайнера, после работ по перепланировке, квартира должна была быть разбита на четыре отдельные зоны: 1.Прихожая - Кухня, 2.Ванная комната, 3.Гостиная и 4.Спальня. При этом, как я уже писал ранее спальня переезжала на кухню, на ее месте, после объединения с площадью коридора и прихожей, должны были появится кухня и гостиная, а вход в с/у у нас переносился на стену со стороны прихожей, зоны кухни и гостиной разделялись при помощи декоративной перегородки из бруса.
На бумаге все это выглядит логично и практично, однако в реальности недостаточно просто снести и поставить новые перегородки. Столь серьезное вмешательство в изначальную архитектуру квартиры неминуемо тянет за собой необходимость решать сложные задачи по перепланировке всех инженерных коммуникаций. Поэтому нам пришлось озадачиться переносом вывода вентиляционной шахты на новое место кухни, но это были цветочки по сравнению с проблемой, которая возникла в с/у. Поскольку дверной проем был перенесен на стену по которой были расположены канализационный и водопроводные стояки, убрать трубы в нее стало невозможно, и что бы вывести канализационный слив для ванной, нам необходимо было протащить трубу в обход, аж через три стены. И мы бы это сделали, но как оказалось строители расположили колено канализационного стояка на 12 см выше уровня стяжки пола, и получалось, что канализационный слив для ванной выходил на уровень на 10 см выше чем дно ванной, что намекало, что вода уходить будет очень плохо. И мы бы могли переделать канализационный стояк, но в квартире снизу уже был ремонт, а стояк был намертво зашит и выложен плиткой. В общем выбор был либо поднимать уровень пола во всей квартире см на 15, либо городить какой-то помост для ванной. И то и другое - бред. Пришлось собирать консилиумы из всех толковых сантехников в городе, и придумывать иной способ решения, в итоге придумали как врезать трубу прямо в 100 канализационный стояк, без отводов, а слив убрали в пол, под наклоном, аж плиту перекрытия пришлось выгрызать местами, но своего добились. Но порой вот такая тупость может тормознуть реализацию проекта на месяц а-то и больше. Но самое смешное произошло, когда уже на половине ремонта, заказчик вдруг озадачил нас совершенно сумасшедшим предложением сделать на лоджии сауну, я пытался его отговорить, но он прям этой идеей загорелся, в итоге я еще месяц подбирал спеца, который за это непотребство возьмется, и продумывал технические и финансовые аспекты этого сумасшествия. Благо все это уперлось в какую-то проблему (уже не помню) и так это и осталось всего лишь планами.
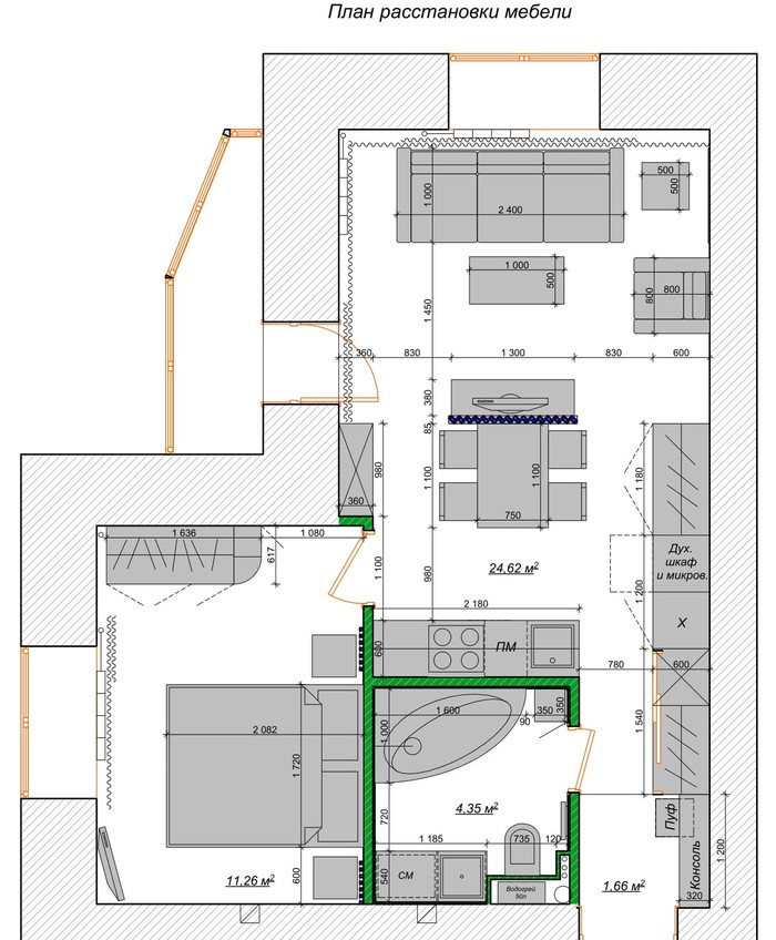
Поскольку я не делал фотки отдельных этапов работ, я решил, что я продемонстрирую вам соотношение задумки дизайнера и нашей реализации этой задумки. Сразу хочу отметить, что не надо искать стопроцентного совпадения между картинкой и реальностью, дизайн проект это не калька, это скорее концепт или эскиз. В ходе отделочных работ в него могут вносится различные изменения, которые продиктованные огромным количеством факторов.
Сам дизайн проект квартиры, если кому интересно, выполнен в популярном нынче стиле Модерн, в интерьере которого преобладают легкие и ненавязчивые бежевые, коричневые и серые оттенки, а так же отдается предпочтение натуральным материалам и фактурам.
1. Кухня - Прихожая
2. Гостиная
3.Спальня
4. Ванная комната
Ну вот как-то так! Если есть какие-то вопросы по данной квартире или вообще по ремонтам, не стесняйтесь, задавайте их в комментариях, постараюсь ответить. Или пишите сразу на электронку: repairer29@gmail.com

























Строительство и ремонт
10.9K постов48.6K подписчиков
Правила сообщества
Правила оформления постов.
Посты видеоролики должны обязательно иметь описание о чём видео. Если видео длинное, то крайне желательно указать время, когда и о чём рассказываете.
В случае нарушения пост выносится из сообщества.
Правила общения.
Запрещено регулярное хамское и неуважительное обращение к другим участникам сообщества в рамках общения в комментариях. В случае первого нарушения бан в сообществе на 2-3 недели. В случае повтора постоянный.
Про нейросети
Тексты сгенерированные нейросетью, выносятся из сообщества, пользователь блокируется на неделю. При повторном нарушении перманентный бан для пользователя.
Про рекламу
Рекламные посты от платных/бесплатных аккаунтов запрещены. За первое нарушение блокировка на 7 дней. За второе перманентная блокировка.
Только для профессиональных участников рынка строительных услуг. (публикующихся регулярно)
Пост должен быть основан на личном опыте.
Должен быть информационно-познавательным (разъясняет/ объясняет что-то связанное с материалом/работой/организацией/и.т.д.) или пищей для ума (Взгляд на проблему, с другой стороны)
Запрещается публикация видео длиной более 5 минут без текстового таймлайна. ( надо указать где и о чём вы рассказываете в видео)
Не злоупотребляйте тэгами. Количество своих тэгов не более 4х шт. Тэги проставляемые системой не учитываются. (Длиннопост, видео, и.т.д.)