Что такое дизайн-проект квартиры: состав, этапы и зачем он нужен
Что такое дизайн-проект интерьера, зачем он нужен и что в него входит? Рассказываем поэтапно: от ТЗ и планировки до визуализаций, чертежей и сметы. Объясняем, как продуманный план работ помогает избежать ошибок, сэкономить и получить результат без хаоса на стройке.
«Хороший проект делает ремонт понятным: вы точно знаете, как будет выглядеть квартира, сколько это стоит и что нужно делать на каждом этапе. Посмотрите наше портфолио — так выглядит ремонт с чётким планом и без лишних сюрпризов»
Содержание:
1. Что такое дизайн-проект и из чего состоит?
2. Почему дизайн-проект — это важнее, чем кажется?
3. Зачем нужен дизайн-проект: что решает?
4. Как строится работа: 7 этапов разработки дизайн-проекта
5. Сколько стоит дизайн-проект и от чего зависит цена?
6. Дизайн проект: самостоятельно vs услуги дизайнера
7. Как выбрать исполнителя: чек-лист клиента дизайнера интерьера
Что такое дизайн-проект и из чего состоит?
На старте ремонта всё кажется простым: найти строителей, выбрать плитку, решить, где будет кухня. Но уже через месяц всё превращается в беготню и догадки. Розетка не там, перегородка мешает, отделка «вживую» не сочетается. Причина почти всегда одна — отсутствие предварительно проработанного ТЗ.
Дизайн-проект — это сборник документов, чертежей и визуализаций, который формируется для реализации интерьера. Его можно сравнить с подробной картой для путешественника, с которой не заблудишься, не пропустишь поворот и обязательно достигнешь намеченного пункта назначения.
Из чего состоит дизайн-проект:
Часть №1: Эскизная концепция — «лицо» вашего будущего интерьера. Задача — утвердить общую идею, стиль, цветовую палитру и настроение.
обмерочный чертёж → детальная схема помещения с замерами, расположением окон, дверей, коммуникаций: стояки, вентиляция, розетки, выключатели
планировочное решение → несколько вариантов расстановки мебели и оборудования на плане
стилевое решение → коллаж из референсов, которые передают атмосферу: похожие интерьеры, материалы, оттенки, мебель, светильники
колористическое решение → палитра цветов для потолков, стен, акцентов, мебели
3D-визуализации → реалистичные изображения будущего пространства с разных ракурсов
набор чистовых материалов → конкретные образцы напольных покрытий, обоев, красок, декоративных панелей, столешниц и т.д.
список для обстановки → модели мебели, текстиля, светильников, сантехники, которые планируется использовать



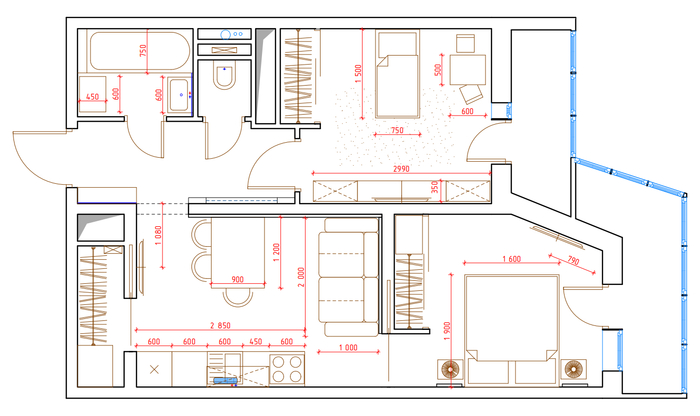
Наглядная разработка дизайн-проекта
Часть №2: Рабочая документация — технические чертежи для строителей. Задача — дать мастеру исчерпывающую информацию для работы.
демонтаж и монтаж стен → что и где нужно снести/построить
расстановка мебели → финальный вариант, который утверждён на этапе эскиза
потолки с узлами и разрезами → подробная схема общей конструкции, расположения светильников, карнизов, подсветки
осветительное оборудование → отдельный чертёж с привязкой каждого выключателя к конкретным светильникам или группам света
розетки и выключатели → точное расположение всех электрических точек с указанием высоты и назначения
сантехнические приборы → разводка труб, расположение коллекторов, точки подключения унитаза, раковины, стиральной машины, посудомойки
развертки стен → где вешать полки, картины, как класть плитку в ванной и т.д.
спецификация → таблица со списком всех материалов, мебели и предметов декора с артикулами, названиями, количеством и ориентировочной стоимостью
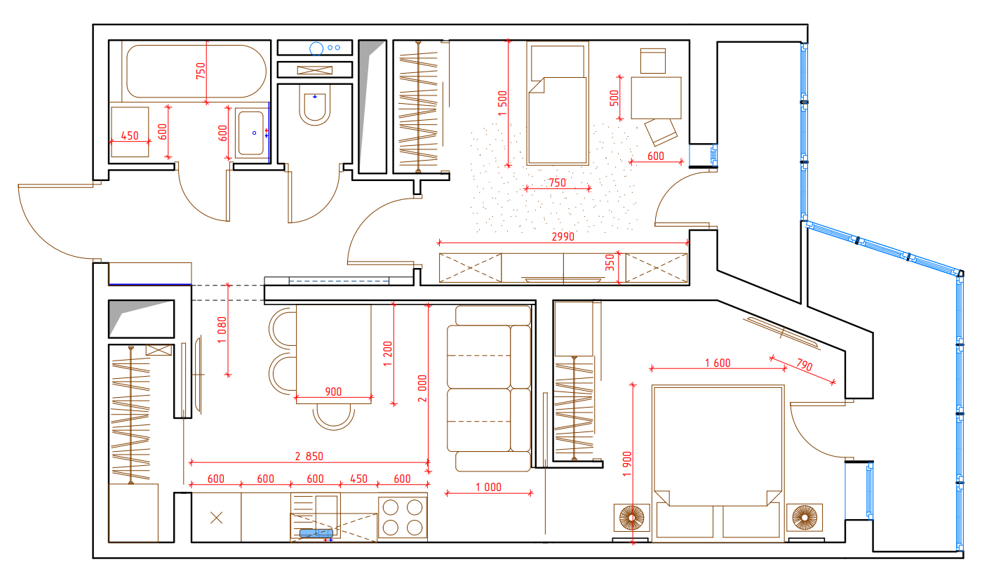
Пример полного дизайнерского проекта
Почему дизайн-проект важен?
Мы уже сравнили дизайн-проект интерьера с подробной картой. Теперь представьте, что вы отправляетесь в серьёзное и очень важное плавание. Точка Б — остров идеального интерьера.
👎🏻 БЕЗ проекта вы — отважный, но беспечный капитан на лодке. Плывёте по наитию, надеетесь на удачу. Сталкиваетесь с подводными рисками, штормами, попутными течениями, которые бросают вас то влево, то вправо. Вероятность потратить все припасы и доплыть не до того пункта сильно увеличивается.
👍🏻 С проектом вы — владеете точными навигационными планами, схемой всех мелей и рифов, течений и ветров. Имеете полный список портов, где можно пополнить запасы по лучшей цене. И самое главное — у вас есть компас, который указывает в сторону ваших целей. Тут вы не просто плывёте, а уверенно управляете судном.
Стоит ли уточнять, в каком случае вы совершаете успешную высадку на берег, который видели в своей мечте?
Зачем нужен дизайн-проект: что он решает?
Дизайнерский проект решает несколько важных задач:
1. Сохраняет ваше время и нервы. Все вопросы вы продумываете заранее, а значит, не нужно на ходу выбирать плитку или цвет стен, спешить под давлением прораба.
2. Экономит бюджет. Сильно! Чёткий план и спецификация не дают потратить лишнего. Вы заранее знаете стоимость всех материалов и мебели. Исключаются ошибки и переделки, которые выступают главной причиной незапланированных расходов.
3. Обеспечивает предсказуемый результат. Вы точно знаете, что получите в итоге, а не надеетесь на «авось» и вкус строителей.
4. Учитывает функциональность и эргономику. Пространство получается продуманным до мелочей. В нём учтены все ваши привычки и потребности. А значит, вам будет удобно и комфортно жить.
5. Координирует работы мастеров. Все специалисты (электрики, сантехники, отделочники) работают по единым чертежам, что исключает конфликты и нестыковки.
Как строится работа: 7 этапов разработки дизайн-проекта
Хороший проект — это результат чёткой последовательности шагов. Рассказываем, как происходит разработка дизайн-проекта помещений: от идеи до последнего чертежа.
1️⃣ Бриф и техническое задание. Сначала дизайнер знакомится с образом жизни: сколько человек будет жить, как устроен быт, есть ли дети, домашний офис, хобби. Обсуждаются бытовые сценарии, привычки, планы на будущее. На основе встречи формируется ТЗ — документ, в котором фиксируются требования, приоритеты и ограничения.
2️⃣ Обмеры и анализ. Специалист выезжает на объект и фиксирует точные замеры: стены, проёмы, высота потолков, розетки, стояки. Учитывает несущие конструкции, вентиляцию, точки подключения техники, естественное освещение. Это нужно, чтобы ни одна идея не «сломалась» о реальность.
3️⃣ Планировка и зонирование. На базе обмеров формируются варианты (обычно 2-3) планировки — как расположить спальни, гардеробную, зону кухни, рабочее место. Всё с пояснениями: почему так, в чём плюсы и как можно адаптировать под пожелания. После обсуждений и правок утверждается финальная схема.
4️⃣ Визуальная концепция. Время подбора материалов, оттенков, фактуры. Дизайнер создаёт коллажи и референсы по каждому помещению. Этот этап помогает избежать фразы «мы по-разному представляли скандинавский стиль». Именно здесь формируется цельная атмосфера.
5️⃣ 3D‑визуализация. Далее специалист делает визуализации. Это не просто красивые картинки, а проверка: как всё будет выглядеть в реальности. Модели отражают объём, расстановку мебели, освещение, сочетаемость отделки. У клиента есть возможность внести правки.
6️⃣ Рабочая документация. Комплект чертежей в среднем пополняется 18 документами, которые становятся основой работы для строителей:
— электрика и освещение
— потолки и полы
— сантехника
— развёртки стен
— план расстановки мебели
7️⃣ Смета и спецификация. На финальном этапе собирается таблица комплектации: отделка, мебель, оборудование, техника. Указываются артикулы, производители, объёмы, стоимость. Это позволяет заранее оценить бюджет, запланировать закупки и не бегать по магазинам в поисках «чего-то похожего».
Авторский надзор (подключаете опционально) — когда дизайнер остаётся «в деле» до окончания ремонта. Он отвечает на вопросы строителей, выезжает на объект, сверяет соответствие с ТЗ, помогает решать спорные ситуации. Авторское сопровождение снижает риски, избавляет от переработок и срывов сроков. Это очень полезная штука.
Сколько стоит дизайн-проект и от чего зависит цена?
Цены на интерьерный дизайн-проект в 2025 году очень сильно варьируются и зависят от множества факторов. Давайте разберём всё по порядку.
1. Тип проекта. Эскизный (перепланировка, расстановка мебели и сантехники, основные чертежи) или полный (все чертежи для строителей, спецификации, 3D-визуализации, подбор материалов и мебели). Авторский надзор — тоже плюс к прайсу.
2. Площадь помещения. Квартиры-студии и малогабаритки часто имеют фиксированную цену, квартиры средней и большой площади (от 70-100 кв.м) — ценник за квадратный метр. У загородных домов и коттеджей стоимость выше из-за сложности проектирования.
3. Опыт дизайнера/студии. Это начинающий дизайнер, специалист среднего ценового сегмента или топовая студия премиум-уровня? Работа стоит дороже не просто так — вы платите за эксклюзивный подход и доступ к редким материалам.
4. Сложность задачи. Одно дело — когда минимум перегородок, стандартная мебель, простое зонирование. Другое — многоуровневые потолки со сложной подсветкой, индивидуальные мебельные конструкции, нестандартные архитектурные элементы.
5. Состав документации. Чем больше 3D-визуализаций и чем они детальнее, тем дороже. Также ценник поднимает детализация чертежей и сопроводительные документы (подробная смета на материалы и работы, ведомости на заказную мебель и декор).
Пример расчёта для квартиры 80 кв.м.:
эконом-вариант: 80 кв.м. * 4 000 ₽ = 320 000 ₽
средний сегмент: 80 кв.м. * 8 000 ₽ = 640 000 ₽
премиум: 80 кв.м. * 15 000 ₽ = 1 200 000 ₽
«Хорошо, когда выбранная компания может не только разработать дизайнерский проект, но и полностью реализовать его силами своих проверенных бригад. В таком случае вы получаете результат «под ключ», где нет никакого пинг-понга и перекладывания ответственности. Все работают чётко, слажено и по единому стандарту качества», — Маша Черная, арт. директор студии Artum.
Дизайн проект: самостоятельно vs услуги дизайнера
Сделать самостоятельно или доверить создание дизайн-проекта интерьера профессионалу? Это одна из ключевых дилемм для каждого, кто затевает ремонт. Давайте разберём все «за» и «против» каждого подхода, чтобы вы могли сделать осознанный выбор.
Самостоятельно ➜ Если у вас есть чёткое видение результата, вкус и опыт в ремонтных делах, бюджет ограничен, а проект не предполагает сложных перепланировок и инженерных решений.
Дизайнер ➜ Если вы хотите сэкономить время, нервы и избежать ошибок, которые могут дорого обойтись. Если проект сложный (перенос стен, сложное освещение, нестандартная мебель), вы не уверены в своих идеях, но хотите получить классный результат.
Не готовы к заказу полноценного дизайнерского проекта — выбирайте золотую середину. То есть смешанные форматы:
консультация дизайнера по часам
готовый дизайн-проект, который можно адаптировать под свои задачи
онлайн-сервисы, где можно получить удалённую помощь по доступным ценам
«Идеальный вариант — когда студия предлагает оптимизацию проекта под бюджет и временные рамки клиента. Например, вы можете заказать визуализацию не на всю квартиру, а только на ключевые комнаты. Или исключить часть чертежей (например, если стены будут без изменений). Это позволяет снижать общую стоимость без потери качества», — Ирина, дизайнер студии Artum.
Как выбрать исполнителя: чек-лист клиента дизайнера интерьера
Выбор правильного исполнителя — это 80% успеха разработки вашего дизайн-проекта. Забирайте экспертный чек-лист, который поможет действовать последовательно и не упустить важное.
1️⃣ Определите свои цели/бюджет. Ответьте на вопросы: зачем мне дизайнер (перепланировка, экономия времени, сложный проект, просто «сделать красиво»), что мне нравится и какой стиль, сколько я могу потратить на услуги?
2️⃣ Найдите кандидатов. Используйте искренние рекомендации друзей, знакомых (самый надежный способ), профессиональные порталы (Houzz, Pinterest и т.д.), соцсети, сайты студии дизайна и архитектурных бюро.
3️⃣ Созвонитесь или встретьтесь с 3-5 понравившимися кандидатами и задайте каждому из них список одинаковых вопросов. А затем сравните ответы.
Задайте эти вопросы специалисту, который будет заниматься разработкой дизайн-проекта для вашей квартиры или дома (*сохраняйте)
На заметку: хороший знак, если дизайнер подробно расспрашивает о вас обо всех деталях: образ жизни, состав семьи, домашние животные, привычки, какие-то особые пожелания («хочу библиотеку», «не люблю открытые полки»). Это показывает вовлеченность и желание сделать проект именно для вас.
4️⃣ Составьте ТЗ. Подробно опишите все пожелания по изменениям (зоны, хранение, освещение, стиль, материалы). Отправьте выбранным дизайнерам и попросите каждого из составить коммерческое предложение (КП) на основе вашего задания.
5️⃣ Примите решение. Сравните КП, запросите контакты 2-3 прошлых клиентов и пообщайтесь с ними. Отметьте фактор личной симпатии (вам комфортно с этим человеком, он вас слышит?).
Важно: внимательно изучите договор. В нём должны быть чётко прописаны все этапы, сроки, стоимость, ваши и дизайнера обязанности, порядок внесения правок и разрешения спорных ситуаций.
нет реализованных проектов: одни визуализации
размытое ТЗ и КП без детализации
требование 100% предоплаты за весь проект
давление и агрессивные продажи
дизайнер не задаёт уточняющих вопросов о ваших потребностях
полное несоответствие вашим взглядам на первом же созвоне
Дизайн-проект — не дополнительная трата, а главная инвестиция в успех ремонта. Он превращает хаотичный и стрессовый процесс в чёткий, предсказуемый план, экономя ваши время, нервы и бюджет. Это ваш личный навигатор, который гарантированно ведёт к интерьеру мечты — продуманному до мелочей, удобному и красивому.





























