Дизайн-проект квартиры в ЖК ««DECO RESIDENCE (Деко Резиденс)» в Москве: интерьер с объединённым санузлом
Дизайн-проект квартиры в ЖК «DECO RESIDENCE (Деко Резиденс)» в Москве выполнен в современном формате с минималистичными акцентами и реализован на площади 79 м². В концепции сочетаются светлая основа, выразительные контрасты, сложные материалы и продуманная работа с планировкой. Все зоны выстроены с учётом повседневного использования и удобства перемещений. Рекомендуем дочитать кейс до конца — он будет полезен тем, кто готовится к ремонту или подбору дизайн-решений.
В Artum работа над проектами строится по чётко выверенной этапной схеме с контролем сроков. В отдельных случаях строительные процессы запускаются ещё до полной финализации проектных решений, что сокращает общее время реализации. В портфолио студии — десятки объектов, завершённых без затяжек и возвратов к переделкам.
Содержание:
⭐ Перепланировка квартиры в ЖК «DECO RESIDENCE»
⭐ Дизайн-проект прихожей
⭐ Интерьер гостиной
⭐ Дизайн интерьера кухни
⭐ Дизайн балконов
⭐ Дизайн-проект спальни
⭐ Интерьер ванной комнаты
⭐ Особенности дизайна квартиры в ЖК «DECO RESIDENCE»
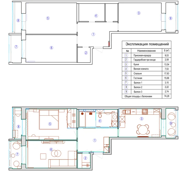
Перепланировка квартиры в ЖК «DECO RESIDENCE»
Планировочное решение изменили, чтобы пространство стало более удобным и визуально свободным. Ванную комнату и санузел объединили, убрав перегородку и организовав одно помещение с ванной и душевой. В зоне спальни предусмотрели отдельную гардеробную, выделив её перегородкой с раздвижной системой.
Входную группу доработали за счёт увеличения стены и визуального объединения входной двери с межкомнатными. В кухне и спальне стандартные балконные блоки заменили на остекление от пола. Балконы включили в общую структуру квартиры как дополнительные функциональные пространства.
Дизайн-проект прихожей
Прихожую спроектировали с упором на чёткую геометрию и продуманное хранение. В пространстве разместили встроенную скамью с нишей для обуви и вертикальный модуль с отделкой под тёмное дерево. Стену в зоне входа нарастили, чтобы двери воспринимались как единый архитектурный элемент.



Визуализация прихожей.
Шкафы выполнены в нейтральной серо-бежевой гамме, а тёмная фурнитура добавляет выразительный контраст. Для пола выбрали крупноформатный керамогранит с активным рисунком, рассчитанный на высокую нагрузку. Подсветка зеркала и вертикальные световые линии подчёркивают объём и структуру мебели.
Интерьер гостиной
В оформлении стен гостиной использованы разные материалы: панели под дерево, вертикальные рейки и декоративные поверхности с графичными линиями. Акцентной точкой стала ТВ-зона с каменной фактурой и подвесной тумбой с тёмной столешницей. Основную зону отдыха сформировали вокруг большого углового дивана с текстилем глубоких оттенков.




Визуализация гостиной.
Дополнительную выразительность интерьеру добавляют предметы мебели в светлой эмали и контрастные журнальные столики. Большие окна обеспечивают высокий уровень естественного света, что входило в ключевые задачи проекта.
Дизайн интерьера кухни
Кухню оформили в спокойной серо-бежевой гамме с акцентом на тёмную технику и чёткую графику линий. Гарнитур выполнен до потолка и дополнен верхними витринными модулями для увеличения хранения. В зоне фартука использован керамогранит с активным рисунком, поддерживающий концепцию сложных материалов.




Визуализация кухни.
Варочную панель, духовой шкаф, кофемашину и винный шкаф объединили в один вертикальный блок. Обеденную зону разместили у стены с декоративными рейками и мягкой боковой подсветкой, визуально отделив её от рабочей части.
Дизайн балконов
Балкон при гостиной оформили как компактную зону отдыха с креслом, акцентной рейкой и системой открытых полок, собранных в единую композицию. Небольшой столик и настенный светильник подчёркивают формат пространства для чтения и коротких пауз.


Визуализация балкона гостиной.
Балкон из кухни организовали как небольшую лаунж-зону с креслом округлой формы и приставным столиком. Стену оформили лаконичной панелью со встроенным освещением, а тёплый оттенок обивки поддерживает кухонную палитру.


Визуализация балкона кухни.
Балкон при спальне реализовали в формате мини-кабинета с рабочим столом и встроенными полками. Нейтральная отделка и компактная система хранения позволяют использовать узкое пространство максимально рационально.


Визуализация балкона спальни.
Дизайн-проект спальни
Спальню оформили в современном стиле с акцентом на сочетание светлых поверхностей и тёмной мебели. Центральным элементом стала кровать с мягким изголовьем и встроенной подсветкой. Стены выполнены с использованием гладких панелей и вертикальных реек, формирующих визуальную структуру.



Визуализация спальни.
Напротив кровати расположили ТВ-зону с подвесной тумбой и отделкой под камень. Гардеробную отделили стеклянными раздвижными дверями, сохранив лёгкость восприятия пространства. Цветовая схема построена на серо-бежевой базе с глубокими тёмными акцентами, учитывая предпочтения владельцев.
Интерьер ванной комнаты
Ванную комнату и санузел объединили, оформив их как единое функциональное пространство с ванной и душевой. Для отделки выбрали керамогранит с активным рисунком прожилок, использованный на полу и стенах. Душевую зону выделили стеклянной перегородкой, сохранив визуальную открытость помещения.



Визуализация ванной комнаты.
Постирочный блок разместили во встроенном шкафу, скрыв стиральную и сушильную машины за фасадами. Мебель и акцентные элементы выполнены в отделке тёмным деревом, что усиливает контраст со светлой основой.
Особенности дизайна квартиры в ЖК «DECO RESIDENCE»
Ремонт квартиры в ЖК «DECO RESIDENCE» в Москве основан на сочетании разных типов настенной отделки: краски, декоративной штукатурки, панелей и металлических молдингов. Такой приём подчёркивает архитектуру пространства и усиливает глубину за счёт деталей.


Отличительной чертой проекта стало применение керамогранита с выразительным природным рисунком в санузле и входной зоне, а также сочетание тёмного дерева и светлых эмалевых фасадов в мебели, которое сформировало чёткий визуальный характер интерьера.

















































































































