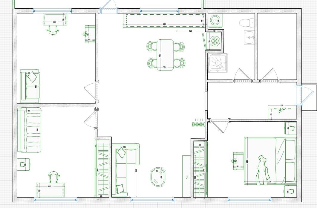
Планировка одноэтажной дачи
Тут часто выкладывают планировки своих домой и дают ценные советы. Хочу и я показать свой, он пока только на бумаге. Товарищи пикабушники покритикуйте пожалуйста планировку, а может, посоветуете чего
Значит, планируем строить дом для семьи 3 человека (плюс гости), жить там постоянно не собираемся, это дача на лето-осень, то есть мы будем переезжать туда на все лето, приезжать на праздники и каникулы, благо работаю на удалёнке
Дом будет каркасный, 8х12 м + терраса, выход на террасу из кухни-гостинной
Для хранения всякого барахла будет сарай рядом с домом и чердак, поэтому отдельно кладовку не делаю
Комнаты такие: кухня-гостинная 32 кв.м, спальня, детская, кабинет по 12-13 м, с/у, тех.помещение для бойлера, отопление электричество+ печка
UPD:
Всем большое спасибо за критику, советы и идеи, есть над чем ещё подумать.
Проект поправили, новая версия в комментариях

Строительство и ремонт
11.2K постов48.7K подписчиков
Правила сообщества
Правила оформления постов.
Посты видеоролики должны обязательно иметь описание о чём видео. Если видео длинное, то крайне желательно указать время, когда и о чём рассказываете.
В случае нарушения пост выносится из сообщества.
Правила общения.
Запрещено регулярное хамское и неуважительное обращение к другим участникам сообщества в рамках общения в комментариях. В случае первого нарушения бан в сообществе на 2-3 недели. В случае повтора постоянный.
Про нейросети
Тексты сгенерированные нейросетью, выносятся из сообщества, пользователь блокируется на неделю. При повторном нарушении перманентный бан для пользователя.
Про рекламу
Рекламные посты от платных/бесплатных аккаунтов запрещены. За первое нарушение блокировка на 7 дней. За второе перманентная блокировка.
Только для профессиональных участников рынка строительных услуг. (публикующихся регулярно)
Пост должен быть основан на личном опыте.
Должен быть информационно-познавательным (разъясняет/ объясняет что-то связанное с материалом/работой/организацией/и.т.д.) или пищей для ума (Взгляд на проблему, с другой стороны)
Запрещается публикация видео длиной более 5 минут без текстового таймлайна. ( надо указать где и о чём вы рассказываете в видео)
Не злоупотребляйте тэгами. Количество своих тэгов не более 4х шт. Тэги проставляемые системой не учитываются. (Длиннопост, видео, и.т.д.)