Горячее
Лучшее
Свежее
Подписки
Сообщества
Блоги
Эксперты
Войти
Забыли пароль?
или продолжите с
Создать аккаунт
Регистрируясь, я даю согласие на обработку данных и условия почтовых рассылок.
или
Восстановление пароля
Восстановление пароля
Получить код в Telegram
Войти с Яндекс ID Войти через VK ID
ПромокодыРаботаКурсыРекламаИгрыПополнение Steam
Пикабу Игры +1000 бесплатных онлайн игр Ищите дары леса и готовьте изысканные блюда на лесной ферме с ресторанчиками!

Грибники: дары леса

Фермы, Симуляторы, 2D

Играть

Топ прошлой недели

  • solenakrivetka solenakrivetka 7 постов
  • Animalrescueed Animalrescueed 53 поста
  • ia.panorama ia.panorama 12 постов
Посмотреть весь топ

Лучшие посты недели

Рассылка Пикабу: отправляем самые рейтинговые материалы за 7 дней 🔥

Нажимая «Подписаться», я даю согласие на обработку данных и условия почтовых рассылок.

Спасибо, что подписались!
Пожалуйста, проверьте почту 😊

Помощь Кодекс Пикабу Команда Пикабу Моб. приложение
Правила соцсети О рекомендациях О компании
Промокоды Биг Гик Промокоды Lamoda Промокоды МВидео Промокоды Яндекс Маркет Промокоды Пятерочка Промокоды Aroma Butik Промокоды Яндекс Путешествия Промокоды Яндекс Еда Постила Футбол сегодня
0 просмотренных постов скрыто
dizain.interiera
dizain.interiera

Дизайн-проект квартиры в ЖК «Трилогия CRYSTAL (Трилогия Кристалл)» в Москве: интерьер с выразительной зоной гостиной⁠⁠

18 дней назад

Дизайн-проект квартиры в ЖК «Трилогия CRYSTAL» в Москве площадью 145 кв. м разработан для семьи с детьми. Интерьер выполнен в современном стиле с элементами контемпорари. В отделке используются дерево, керамогранит, мягкие матовые поверхности и элементы тёплого металла, которые формируют цельный, продуманный образ пространства. Проект включает камин в выделенной нише, отдельный кабинет, большую гардеробную и ванную с акцентным панно из керамогранита. Ниже — подробное описание решений, которые определили характер этого интерьера.

Дизайн интерьера квартиры в ЖК «Трилогия Кристалл», гостиная с камнем, деревом и стеклом в интерьере от студии Artum.

Дизайн интерьера квартиры в ЖК «Трилогия Кристалл», гостиная с камнем, деревом и стеклом в интерьере от студии Artum.

Все проекты студии Artum не зависают месяцами на согласованиях — работа строится по этапам, с чётким планом и прозрачными сроками. При необходимости мы запускаем ремонт параллельно с проектированием, что ускоряет реализацию и помогает избежать простоев. Посмотрите портфолио Artum — в нём десятки завершённых объектов, реализованных без задержек и переделок.

🔥 Посмотреть все проекты 🔥


Содержание:

🔵 Перепланировка квартиры в ЖК «Трилогия CRYSTAL»  

🔵 Дизайн-проект прихожей

🔵 Интерьер кухни-гостиной 

🔵 Дизайн-проект спальни

🔵 Интерьер детских комнат

🔵 Дизайн санузлов

🔵 Интерьер кабинета

🔵 Особенности дизайна квартиры в ЖК «Трилогия CRYSTAL» 


Перепланировка квартиры в ЖК «Трилогия CRYSTAL»

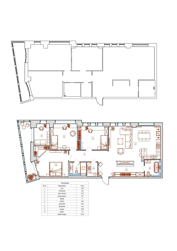
Перепланировка сделала пространство квартиры более удобным и логичным. Демонтировали перегородку, разделявшую коридор, и объединили прихожую с холлом, что улучшило логику передвижения и увеличило полезную площадь. Большую угловую комнату разделили на два отдельных помещения — детскую и кабинет для хозяина.

Планировочное решение до и после.

Планировочное решение до и после.

В гостиной была изменена конфигурация перегородок, что позволило встроить камин в отдельную нишу. В итоге планировка стала структурированной и соответствующей сценариям жизни семьи.


Дизайн-проект прихожей

Прихожая выдержана в светло-серой гамме с акцентами тёплого металла. Большое зеркало в полный рост визуально раскрывает пространство и наполняет его светом. Пол облицован крупноформатным керамогранитом с латунными вставками.

1/2

Реализация прихожей.

У стены расположены два мягких кресла и столик на металлическом основании. На противоположной стене — декоративная панель под дерево с нишей и арт-объектом. Центральный светильник с матовыми подвесами поддерживает визуальный ритм интерьера.


Интерьер кухни-гостиной

Кухня-гостиная объединена в одно пространство с выделенными зонами отдыха и приготовления пищи. В отделке используются светлые оттенки, дерево и металлические акценты.

1/3

Реализация гостиной.

Главным акцентом гостиной стала выразительная каминная композиция — камин встроен в нишу между встроенными шкафами, формируя центр притяжения. ТВ-зона оформлена панелями под дерево и декоративным покрытием под камень, что добавляет фактуры. Мебель выдержана в спокойной палитре, а журнальный стол в металле подчеркивает композицию.

1/4

Реализация кухни.

Кухня выполнена в лаконичном стиле с матовыми фасадами без лишней фурнитуры. Фартук и столешница — из керамогранита с выразительным рисунком. Обеденную зону выделяют бархатные стулья цвета марсала и подвесной светильник с элементами под латунь.

👉 Заказать дизайн-проект 👈


Дизайн-проект спальни

Спальня выполнена в мягкой серо-бежевой гамме с акцентом на текстурные поверхности. Изголовье кровати оформлено вертикальными панелями с мраморными вставками и подсветкой. По бокам расположены подвесные тумбы и стеклянные бра.

1/4

Реализация спальни.

В комнате предусмотрена отдельная гардеробная с дверьми из рифлёного стекла в металлическом профиле. В отделке использованы краска, декоративная штукатурка и панели под дерево. Освещение комбинирует потолочные светильники и подсветку стеновых элементов.


Интерьер детских комнат

Комната сына оформлена в спокойных оттенках с акцентом на синюю фактурную стену. Кровать дополнена мягким объёмным изголовьем и настенным светильником. Рабочая зона у окна выполнена в виде длинной столешницы со встроенными системами хранения.

1/4

Реализация комнаты сына.

Комната девочки построена на светлой основе с розовыми акцентами и элементами под золото. Рабочее место у окна включает стеллажи и шкафы. Зона туалетного столика оформлена в арочной нише с подсветкой — функциональный и выразительный элемент пространства.

1/5

Реализация комнаты дочери.


Дизайн санузлов

В ванной комнате установлена отдельно стоящая чаша у стены с акцентным панно из керамогранита и подсветкой. В отделке использован крупноформатный керамогранит под мрамор в светлой гамме. Смесители в матовом золоте перекликаются с остальными элементами квартиры.

1/2

Реализация ванной.

В душевой использованы бежево-серые оттенки. Встроенная ниша с подсветкой и стеклянная перегородка в металлическом профиле формируют аккуратную и функциональную зону. Латунные детали объединяют санузлы по стилистике.

1/2

Реализация душевой.


Интерьер кабинета

Кабинет оформлен в спокойных оттенках серого и дерева. Рабочий стол расположен у окна, что обеспечивает комфортный естественный свет. Шкафы и открытые стеллажи вдоль стены дают достаточно места для хранения документов и книг.

1/2

Реализация кабинета.

Кожаное кресло добавляет выразительный акцент. Подсветка ниш подчеркивает структуру мебели и делает пространство более глубоким.


Особенности дизайна квартиры в ЖК «Трилогия CRYSTAL»

Ремонт квартиры в ЖК «Трилогия CRYSTAL» в Москве построен на сочетании светлой палитры, дерева, фактурной штукатурки и акцентных металлических деталей. Керамогранит с выразительным рисунком, тёплый металл и продуманная подсветка объединяют все помещения в единую концепцию. Натуральные материалы читаются ярко и последовательно благодаря продуманной композиции.

1/2

Особенностью проекта стала акцентная каминная зона в гостиной, которая сразу притягивает внимание. В ТВ-зоне использовано сочетание покрытия под скалу и панелей под дерево — такой приём придал интерьеру выразительность и глубину..

🔥 Запишитесь на бесплатную консультацию дизайнера, чтобы обсудить ваш проект и рассчитать его стоимость!

👉 Заказать дизайн-проект 👈

Показать полностью 33
Ремонт Дизайнер Дизайн Интерьер Дизайн интерьера Длиннопост
0
3
optimuspraim14

Подскажите с обустройством квартиры под аренду⁠⁠1

18 дней назад

Получил квартиру. Но вообще в этом не понимаю. Жили долгое время в селе, насыпном неблагоустроенном доме. В последнее время кочую по арендным в разных городах, естественно никакого опыта в сантехнике, ремонтах и прочем.
Квартира с ремонтом от застройщика. Что как делать без понятия.
Город на подобии российских Высоковск, Курган, Клин, с населением 200. С ценами на аренду не понятно на авито, какие-то замученые двушки некоторые за 50 сдают, кто-то с хорошим ремонтом в хорошем районе за 30, конторы некоторые за неочень удобные, с плохой техникой, но дизайнерским ремонтом по 75-80 пытаются сдавать. Я бы хотел сдать хотя-бы за 60.
Через дорогу теннисный корт, рядом дворец спорта, дворец исскуств, в общем в радиусе 200 метров будет более сотни всяких детских кружков и подобного. Ориентировочно аренда под семью с детьми.
Комнату под гостиную выделять не хочу . Ладно бы бы она была с кухней соединина, а так будет под диван, тв, ковер на стене, и стенку шкаф 😂.
Лучше одна для родителей, а две для детей разного пола.
Приоретет удобство, интерьер проще и минималистичнее и минимально по цене, но уютно, современно.
Мебель типа столов, шкафов буду искать б/у.

Бюджет на сколько дадут кредит, ориентировочно 120-200к.
Квартира 75 или 76 метров, 3 комнаты.
Квартира сквозная, две стороны дома берет, но не угловая, теплая. Этаж 17, так как комары не долетают, меньше дыма, выхлопов, сырости.

Вид из окна на частный сектор, это где балкон и кухня, а нижние комнаты на город

В приоритете удобная кухня. Холодильник есть уже, Samsung RSA1SHSL1/BWT составляют 178,9 см (высота) x 91,2 см (ширина) x 73,4 см (глубина). Но вот куда его поставить думаю, ближе к окну рядом с радиатором?

И какие модули тогда на кухню брать, понравились эти, но чтоб все вмещалось надо, вытяжку туда и сушилку решетку встроить
https://ozon.kz/t/9wTw8t1
Раковина 60см уже взял и панель варочную 60см. Еще на верх получается надо как то вытяжку и сушилку.
Куда приткнуть и как микроволновку встроенную с духовкой тоже не знаю, чтоб было удобно, все куханное влезало и было место для готовки.
Еще как быть с шахтой, с нее шум от соседей и наоборот, она вроде из чего-то типа дсп или гипсокартона, может еще с наружи чем бюджетно облепить.

Ванна и туалет как то так выглядят, думаю может как то бюджетно можно покрасивше сделать.
Балкон холодный, трогать нет не знаю.

На потолке еще такие штуки. Если делать натяжные, тоже думаю делать нет, что с ними делать

Еще лампочки вкручиваю сгорают, нужно во всей квартире как то прозванивать электрику? Что-то еще в щиток пихать?

Стены красятся сильно, тоже думаю, может какой имульсией покрасить или не стоит

Заранее спасибо за любые советы

Показать полностью 11
Ремонт Ремонт квартир Интерьер Дизайн интерьера Дизайн Квартира Съемная квартира Новостройка Мебель Нужна помощь в ремонте Помощь Длиннопост
19
Synergy.ru
Synergy.ru

Для тех, кто хочет творить: лучшие колледжи дизайна в Москве⁠⁠

18 дней назад

Мечтаете рисовать, проектировать или делать красивые интерфейсы, но не знаете, с чего начать? Мы собрали топ столичных колледжей, в которых есть факультет дизайна, — по отзывам студентов, качеству обучения и уровню трудоустройства выпускников.

Какие направления дизайна востребованы в 2026

Будущее за теми, кто умеет совмещать креатив и цифровые навыки — на сцену выходит дизайн, который напрямую пересекается с технологиями:

🖌️UX/UI-дизайн — цифровые продукты проникают во все сферы жизни, а компании нуждаются в специалистах, которые делают интерфейсы удобными и понятными.

🖌️Графический и моушн-дизайн — бренды активно продвигаются в видеоформатах и соцсетях, анимация становится обязательной частью визуального контента.

🖌️Дизайн цифровых продуктов и приложений — дизайнеры участвуют в создании сервисов, нейроинтерфейсов и VR-пространств.

🖌️Промышленный и продуктовый дизайн — тренд на локальное производство и экологичные материалы усиливает спрос на инженеров-дизайнеров.

🖌️Экологичный дизайн — важен в архитектуре, упаковке и фэшн-индустрии.

🖌️Дизайн в метавселенных и 3D-графика — растет рынок виртуальных пространств, игр и цифровой моды.

Если коротко — увереннее себя будет чувствовать тот, кто свободно работает не только со своими идеями, но и с современными инструментами.

🥇Лучшие колледжи дизайна в Москве: топ-10

1️⃣ Московский колледж архитектуры и градостроительства (МКАГ)

Здесь делают акцент на практике: студенты создают реальные архитектурные проекты, участвуют в чемпионате «Молодые профессионалы». МГАК — это пять современных корпусов, мультимедийные аудитории и творческая атмосфера во время обучения.

🔸Программы: «Дизайн (по отраслям)», «Графический дизайнер»

🔸Стоимость учебы за год: от 215 745 рублей

🔸Формат обучения: очный

🔸Бюджет: проходные баллы — от 4,1; свободных мест — от 240

🔸Платное обучение: количество свободных мест уточните на сайте

Чтобы поступить на дизайн в МКАГ, абитуриенты проходят творческое испытание по рисунку. На экзамене нужно изобразить с натуры композицию из трех геометрических тел — например, куба, шара и цилиндра — с легкой проработкой объема и пространства.

2️⃣ Колледж Университета «Синергия»

Если вас привлекают дизайнерские колледжи в Москве с особенным подходом, обратите внимание на «Синергию»: здесь, в первую очередь, ценят вашу индивидуальность. А еще — свободу, страсть к креативу и инициативность. Место, где можно учиться, творить и развиваться, пока вокруг кипит жизнь, появляются новые проекты и вдохновляющие люди. Обучение строится на практике — занятия ведут действующие дизайнеры и архитекторы, студенты работают над реальными проектами и создают насыщенное портфолио. Учебные мастерские оснащены современным оборудованием, а стажировки проходят в компаниях-партнерах, которые заинтересованы в будущих талантливых специалистах.

🔸Программы: «Дизайн (по отраслям)», «Графический дизайнер», «Архитектор»

🔸Стоимость учебы за год: уточните на сайте колледжа

🔸Формат обучения: очный

🔸Бюджет: нет

🔸Платное обучение: количество свободных мест уточните на сайте

Что нужно сдавать на дизайнера? При поступлении в Колледж «Синергия» понадобится пройти творческое испытание — обычно это рисунок или композиция. Это поможет оценить художественные способности и мотивацию абитуриента.

3️⃣ Московский техникум космического приборостроения Московского государственного технического университета имени Н. Э. Баумана (МГТУ им. Н. Э. Баумана)

Здесь студенты учатся работать с высокими технологиями, создают реальные проекты вместе с преподавателями, а также проходят практику на предприятиях «Роскосмоса».

🔸Программы: «Дизайн (по отраслям)»

🔸Стоимость учебы за год: от 611 000 рублей

🔸Формат обучения: очное

🔸Бюджет: нет

🔸Платное обучение: проходные баллы — от 3,1; свободных мест — от 15

Прием проходит по конкурсу аттестатов и результатам творческого испытания. На экзамене нужно нарисовать композицию из нескольких геометрических фигур с натуры — показать чувство формы, композиции, перспективы и светотени. Работу выполняют карандашом на листе А3 за мольбертом. Баллы за рисунок суммируются с баллами аттестата.

4️⃣ Московский колледж информационных технологий (МКИТ)

Московский колледж информационных технологий готовит специалистов, которые совмещают в работе креатив и технологии — от IT-дизайнеров до разработчиков цифровых продуктов. Здесь современная инфраструктура с лабораториями VR, 3D-моделирования и медиастудией, а выпускники работают в ведущих IT-компаниях и креативных агентствах Москвы.

🔸Программы: «Графический дизайнер»

🔸Стоимость учебы за год: от 100 000 рублей

🔸Формат обучения: очное, очно-заочное

🔸Бюджет: нет

🔸Платное обучение: свободных мест — от 96

Для поступления нужно пройти тестирование или выполнить творческое задание, чтобы показать свой потенциал. Главное — желание учиться, разбираться в технологиях и создавать что-то новое.

5️⃣ Образовательный комплекс «Юго-Запад» (ОК «Юго-Запад»)

За более чем век колледж прошел путь от торговой школы до современного политехнического центра, где готовят специалистов в IT, дизайне, инженерии и экономике. Сегодня «Юго-Запад» — преемник старейших техникумов столицы, объединяющий традиции качества и современные технологии обучения.

🔸Программа: «Графический дизайнер»

🔸Стоимость учебы за год: от 142 392 рублей

🔸Формат обучения: очное, очно-заочное

🔸Бюджет: свободных мест — от 90

🔸Платное обучение: минимальный балл — 3; свободных мест — 60

Поступить в образовательный комплекс «Юго-Запад» можно по результатам ОГЭ по русскому языку и математике — дополнительных вступительных испытаний нет.

6️⃣ Московский издательско-полиграфический колледж имени Ивана Федорова (МИПК им. Ивана Федорова)

Одно из старейших профильных учебных заведений страны, которое готовит дизайнеров, верстальщиков и специалистов печатной индустрии. В колледже есть современная типография, студии компьютерного дизайна, а обучают студентов преподаватели-практики.

🔸Программы: «Дизайн (по отраслям)», «Графический дизайнер»

🔸Стоимость учебы за год: от 141 700 рублей

🔸Формат обучения: очное, очно-заочное

🔸Бюджет: свободных мест — от 240

🔸Платное обучение: свободных мест — от 90

Для поступления на творческие направления нужно пройти вступительное испытание и представить портфолио с примерами работ. Экзамен проходит в колледже — помогает показать творческое мышление, эстетический вкус и потенциал абитуриента.

7️⃣ Технологический колледж №34 (ТК №34)

Основанный в 2004 году на базе трех профессиональных училищ, колледж объединяет несколько учебных корпусов и предлагает студентам востребованные специальности в сфере дизайна, моды, технологий и сервиса.

🔸Программы: «Дизайн (по отраслям)», «Графический дизайнер»

🔸Стоимость учебы за год: от 162 000 рублей

🔸Формат обучения: очное

🔸Бюджет: проходные баллы — от 4,3; свободных мест — от 210

🔸Платное обучение: количество свободных мест уточните на сайте

Абитуриенты проходят творческое испытание по рисунку — нужно изобразить с натуры три геометрические фигуры (например, куб, шар и цилиндр) с легкой проработкой объема и перспективы. Экзамен проверяет чувство формы, композиции и умение передавать пространство — именно те навыки, которые пригодятся будущему дизайнеру.

8️⃣ Колледж архитектуры, дизайна и реинжиниринга №26 (26 КАДР)

Колледж «26 КАДР» стал одной из самых масштабных образовательных площадок столицы: здесь учат архитектуре, дизайну, IT, строительству, реставрации и креативным профессиям будущего. Учебные программы создаются вместе с крупными работодателями, а студенты с первого курса работают над реальными проектами.

🔸Программы: «Дизайн (по отраслям)», «Графический дизайнер»

🔸Стоимость учебы за год: от 240 000 рублей

🔸Формат обучения: очное

🔸Бюджет: проходные баллы — от 4,8; свободных мест — от 240

🔸Платное обучение: проходные баллы — от 3,9; свободных мест — от 60

Чтобы поступить, нужно пройти вступительное испытание. Абитуриенту предстоит за четыре академических часа закончить линейно-конструктивный рисунок из трех геометрических тел — например, куба, шара и цилиндра. Работа выполняется карандашом на листе А2 или А3, можно набрать максимум 100 баллов.

9️⃣ Московский промышленно-экономический колледж Российского экономического университета имени Г. В. Плеханова (МПЭК РЭУ)

Престижный колледж при одном из старейших экономических вузов страны. Студенты учатся у преподавателей университета, пользуются его лабораториями и кампусом, а лучшие выпускники продолжают обучение в самом РЭУ без ЕГЭ и с сокращением сроков обучения.

🔸Программы: «Дизайн (по отраслям)»

🔸Стоимость учебы за год: от 575 000 рублей

🔸Формат обучения: очное

🔸Бюджет: свободных мест — от 10

🔸Платное обучение: свободных мест — от 20

Для поступления на специальность «Дизайн» абитуриенты проходят два творческих экзамена — «Рисунок» и «Композиция». На испытание нужно принести собственные материалы: карандаши, ватман, цветную бумагу, линейку, клей, ножницы и другие инструменты.

🔟 Международный колледж искусств и коммуникаций (МКИК)

МКИК дает базовые навыки работы с современными инструментами и программами. Студенты знакомятся с основами композиции, графики и визуальной коммуникации, выполняют практические задания и постепенно формируют портфолио.

🔸Программы: «Дизайн (по отраслям)»

🔸Стоимость учебы за год: от 600 000 рублей

🔸Формат обучения: очное

🔸Бюджет: нет

🔸Платное обучение: проходные баллы — от 3,6; количество свободных мест уточните на сайте

Чтобы поступить на дизайн в МКИК, нужно представить портфолио из 15 работ — по пять рисунков, живописных и творческих проектов на свободную тему. Затем в аудитории колледжа абитуриенты выполняют натюрморт карандашом формата А3, показывая владение композицией, формой и цветом.

Как выбрать свой путь в дизайне

Выбор колледжа — первый шаг в профессию, где важно не только владеть инструментами, но и уметь мыслить творчески.

В Москве множество учебных заведений дают такую возможность — от классических школ с академической базой до современных пространств, где студенты работают над реальными проектами.

Каким бы ни было направление — графика, UX/UI, промышленный или экологичный дизайн — главное, чтобы место обучения вдохновляло и помогало раскрыть потенциал. Ведь хороший дизайнер не просто умеет красиво рисовать, а видит мир по-своему и делает его красочнее.

Реклама Университет «Синергия», ИНН 7729152149

Показать полностью 2
Дизайн Дизайнер Обучение Колледж Профессия Образование Учеба Графический дизайн Блоги компаний Длиннопост
0
18
DtRoad
DtRoad
ВМоскве

Новый тематический поезд в московском метро посвятили российской промышленности⁠⁠

18 дней назад

Поезд запустили к 120-летию Минпромторга России.

На иллюстрациях в вагонах мы изобразили:

🔹 первые автомобили и паровозы

🔹 мощные тракторы

🔹 новейший российский пассажирский самолет «МС-21»

🔹 атомный ледокол «Арктика»

Поезд будет курсировать по Арбатско-Покровской линии в течение 6 месяцев.

Показать полностью 6
[моё] Транспорт Метро Московское метро Промышленность Общественный транспорт Москва Пассажиры Поезд Дизайн Длиннопост
4
Outoffuel
Outoffuel
CGI Media

Время драконов⁠⁠

18 дней назад
Время драконов

Серия плакатов на Год Дракона с 3д-визуализацией военной техники: зенитного ракетного комплекс войсковой ПВО средней дальности ЗРК «Викинг», многоцелевого боевого вертолёта Ка-52, основного боевого танка с необитаемой башней Т-14 «Армата»: https://dprofile.ru/case/158324/vremia-drakonov

Показать полностью 1
[моё] 3D Армия Военная техника Дизайн
1
74
2GIS
2GIS

Художники улиц: кто и как визуализирует города в 2ГИС⁠⁠

18 дней назад

Если вы открывали карты в 2ГИС, то видели: некоторые здания там изображены в виде реалистичных 3D-моделей и выглядят совсем как в жизни. Как получается повторить их так точно? Секретами поделился старший специалист по трехмерной графике Иван Кузьмин.

Шаг 1 — собрать референсы

Перед моделированием нужно детально изучить здание, которое мы хотим добавить на карту. Важно найти как можно больше его изображений. Подойдут чертежи, схемы, концепт-арты, фотографии, видео, а в некоторых случаях даже скриншоты из фильмов. Иногда помогают «пешие» специалисты и коллеги в разных городах. Они могут добыть снимки объектов с нужных ракурсов, если их нет в открытых источниках.

Подбор фото важен, ведь задача будущих моделей — не просто быть красивыми, а помогать пользователям ориентироваться на местности. Для этого нужно точно повторить все особенности объектов. Так проще понимать масштабы, расположение выходов и других важных элементов.

Такие фото потребовались для создания модели Инновационного культурного центра в Первоуральске. 

Такие фото потребовались для создания модели Инновационного культурного центра в Первоуральске. 

Шаг 2 — эскиз объекта

Когда специалисты получают фото, они приступают к созданию модели. Начинают с построения здания из простых форм. Используют кубы, сферы, цилиндры. Это позволяет оценить масштаб, почувствовать пропорции. А еще — внести коррективы до начала работы над более сложными элементами. Так не придется, скажем, перерисовывать оконные проемы, потому что промахнулись с шириной фасада. Все правят на раннем этапе.

Подобно художнику, который сначала намечает общую картину, 3d-художники тоже идут в своей работе от простого. Вот первый этап построения модели.

Подобно художнику, который сначала намечает общую картину, 3d-художники тоже идут в своей работе от простого. Вот первый этап построения модели.

Шаг 3 — детализация объекта

Просто использовать базовые фигуры — недостаточно. На следующем этапе модели придают более сложные формы. Здесь важно добиться визуального баланса, чтобы все части были проработаны равномерно. Например, если на балконах изобразить даже самые мелкие завитушки, а окна оставить без рам, то картинка будет выглядеть странно. Важно, чтобы уровень проработки элементов был одинаковым.

Когда основные формы и детали готовы, начинается оптимизация модели. Как говорят 3D-художники, этап «чистки». Процесс действительно похож на наведение порядка: важно удалить все, что замедляет работу приложения. Чем легче модель, тем быстрее у карт получится ее прогрузить. Особенно это важно, например, в центре Москвы, где рядом расположено много визуально отличающихся 3D-зданий.

На этом этапе особенно важно поймать баланс. Обычно автору хочется добавить максимум деталей, но творческий порыв иногда приходится останавливать, чтобы не испортить общий результат. В этом и кроется профессионализм.

Шаг 4 — малярные работы

Завершающий этап — текстурирование или, по-простому — покраска модели. Она начинается с создания UV-развертки. В ходе этого процесса объемная модель как бы раскладывается на плоскости, как выкройка одежды. Когда развертка готова, художники назначают материалы и настраивают цвета, отражающие внешний вид объекта. Затем эти данные «запекаются» — превращаются в финальную текстуру, которая будет натягиваться поверх геометрии.

Отдельно прорабатывают то, как модель будет выглядеть ночью: это важно для реалистичности картинки. Чем больше текстура, тем тяжелее она загружается. Поэтому, опять же, приходится искать компромисс между детализацией и технической сложностью.

1/2

Перелистните карусель, чтобы перейти на «ночной режим».

В результате получаем 3D-модель, которая отлично смотрится на карте и не перегружает устройство пользователя.

На этом процесс не останавливается. Мы всегда стараемся предоставить максимально актуальные данные. Сотрудники следят за тем, как меняются задания, и продолжают дополнять и уточнять модель, чтобы она всегда выглядела так, как в жизни.

Сейчас мы рисуем главные достопримечательности крупных городов, а после — начнем создавать менее известные, но не менее значимые объекты. Кроме того, продолжаются работы по 3D-моделям для Казахстана: в Астане и Алматы.

А вашем городе есть 3D-модели зданий в 2ГИС? Делитесь в комментариях, какие кажутся вам самыми удачными!

Реклама ООО «ДубльГИС», ИНН: 5405276278

Показать полностью 8
Дизайнер Дизайн Разработка Карты Длиннопост Блоги компаний
82
1
Finder
Finder

Нейросеть Midjourney: что это, как правильно использовать⁠⁠

18 дней назад

Нейросеть Midjourney — инструмент генерации изображений на основе искусственного интеллекта, работающий через платформу Discord. Созданная в 2022 году лабораторией Midjourney, Inc. под руководством Дэвида Хольца, она быстро стала популярной среди дизайнеров, художников, креаторов, маркетологов и всех, кто работает с визуальным контентом.

Что такое Midjourney

Midjourney — это нейросеть для генерации изображений по текстовому описанию. Она работает через Discord и позволяет создавать реалистичные, фантазийные и художественные изображения высокого качества. Сервис популярен у дизайнеров, маркетологов и художников, так как поддерживает гибкую настройку стиля, вариаций и деталей картинки. В отличие от классических графических редакторов, Миджорни не требует технических навыков — весь процесс построен на естественном языке. Пользователь вводит текстовое описание, а алгоритм с помощью машинного обучения преобразует его в визуальную форму. В этой статье мы рассмотрим принципы работы Midjourney: что делает эта нейросеть и как использовать Миджорни в России.

В основе нейросети лежит принцип машинного обучения, где модель обучается на миллионах изображений и текстовых описаний. Благодаря этому она «понимает», как соотнести слова и визуальные элементы, превращая простые фразы в уникальные картины. Нейросеть учитывает композицию, свет, перспективу, стиль и даже эмоциональный подтекст запроса. Именно поэтому один и тот же текст может давать разные результаты — все зависит от контекста и точности формулировки.

Сейчас нейросеть Миджорни в России официально недоступна: сайт и бот могут не открываться, а оплата подписки российскими картами не проходит. Также для регистрации требуется рабочий доступ к Discord. Ниже представлены российские сервисы и платформы, которые позволяют пользоваться возможностями работы с Midjourney из России: с оплатой в рублях и без прямой регистрации в оригинальном сервисе.

Топ-10 нейросетей

  1. Study24.ai — универсальный российский сервис для генерации текстов, изображений, видео и презентаций.

  2. GPTunneL — AI-хаб, объединяющий более ста нейросетей, включая ChatGPT, Claude и Midjourney.

  3. MashaGPT — русскоязычный чат-бот с возможностью создавать тексты, изображения и выполнять задания.

  4. GenAPI — платформа с единым API-доступом к текстовым, визуальным и аудио-нейросетям.

  5. ChadGPT.ru — упрощенный русскоязычный чат-бот для генерации текстов и ответов на вопросы.

  6. Bothub.ru — каталог и консоль ИИ-инструментов для работы с российскими нейросетями.

  7. ruGPT.io — русскоязычная платформа для генерации и редактирования текстов разных форматов.

  8. Mitup AI — сервис для рерайта, описаний товаров и маркетинговых текстов на русском.

  9. Pixian AI — инструмент для обработки изображений: удаление фона и векторизация.

  10. SmartBuddy — платформа для создания изображений через Midjourney и аналогичные ИИ-модели.

1. Study24.ai

Платформа нового поколения, объединяющая в себе инструменты для работы с текстом, изображениями и видео. Она создавалась как универсальный помощник для тех, кто хочет выполнять сложные креативные задачи без необходимости использовать множество отдельных сервисов.

Главное преимущество — возможность комбинировать форматы. Например, за один запрос можно создать рекламный текст, подобрать к нему изображение и сгенерировать видеоролик с этим же посылом. Интерфейс Study24.ai прост и понятен, а полная русскоязычная локализация делает работу максимально комфортной. Сервис особенно удобен для авторов, маркетологов, студентов, дизайнеров и контент-мейкеров, которым нужен «все-в-одном» инструмент.

  • Что умеет: Генерация текстов, рерайт, создание изображений и видео, оформление презентаций, комбинированные задачи (текст + визуал).

  • Как использовать: Можно зарегистрироваться напрямую или воспользоваться российскими сервисами, которые дают полный доступ ко всем функциям.

  • Для кого: Авторы, маркетологи, студенты, дизайнеры — все, кому нужен универсальный ИИ-инструмент на русском языке.

Примеры промптов:

  • «Составь рекламный текст для нового кафе в центре города на сто слов».

  • «Сделай инфографику на тему энергосбережения».

  • «Сгенерируй видео-рекламу продукта длительностью тридцать секунд».

Перейти на сайт сервиса >>>


2. GPTunneL

Агрегатор, который объединяет более сотни разных моделей — от ChatGPT и Claude до Midjourney и Stable Diffusion. Вместо того чтобы переключаться между разными сайтами, пользователь получает единый интерфейс для генерации текста, изображений, видео, звука и даже программного кода.

Главная сила GPTunneL — гибкость. Он позволяет выбрать конкретную модель для конкретной задачи. Например, если нужно написать статью — выбирается текстовая модель, а для иллюстраций — визуальная. Платформа особенно ценна для маркетологов, дизайнеров, создателей контента и разработчиков. Она также поддерживает интеграции через API, что делает GPTunneL удобным инструментом для бизнеса и IT-команд.

  • Что умеет: Агрегирует более ста нейросетей, включая ChatGPT, Claude, Midjourney; поддержка генерации текстов, изображений, кода, аудио, видео.

  • Как использовать: Регистрация возможна на платформе; для удобства можно воспользоваться российскими сервисами с полным доступом.

  • Для кого: Пользователи, которые хотят работать с разными нейросетями в одном месте.

Примеры промптов:

  • «Создай три концепции логотипа для технологического стартапа».

  • «Напиши мотивационное письмо для вакансии маркетолога».

  • «Сгенерируй короткое видео с анимацией текста».

Перейти на сайт сервиса >>>


3. MashaGPT

Русскоязычный чат-бот, созданный для живого взаимодействия с пользователем. В отличие от многих аналогов, MashaGPT не просто отвечает на вопросы, но и умеет выполнять творческие задачи: писать тексты, адаптировать материалы, создавать иллюстрации и даже генерировать идеи. Работа с ним проходит в формате привычного чата, где можно вести длительный диалог, уточнять детали, редактировать результаты и получать визуальный контент прямо в беседе. Это делает сервис особенно удобным для студентов, блогеров, журналистов и специалистов по контенту.

MashaGPT также поддерживает несколько ИИ-моделей, что позволяет выбирать оптимальную в зависимости от задачи — от генерации коротких описаний до написания развернутых аналитических статей.

  • Что умеет: Онлайн-чат с несколькими ИИ-моделями: генерация текстов, создание изображений, выполнение заданий, рерайт.

  • Как использовать: Можно зарегистрироваться на платформе; российские сервисы обеспечивают полный доступ к функциям.

  • Для кого: Пользователи, которым нужен чат-бот на русском с поддержкой текста и визуальных материалов.

Примеры промптов:

  • «Напиши план статьи о трендах в AI на 2025 год».
    «Создай иллюстрацию для статьи о космических путешествиях».

  • «Перепиши текст на более простой и понятный язык».

Перейти на сайт сервиса >>>


4. GenAPI

Профессиональная платформа для разработчиков и компаний, которые хотят интегрировать возможности искусственного интеллекта в свои продукты. Это мощный API-интерфейс, объединяющий десятки нейросетей для генерации текста, изображений, видео и звука. Разработчики могут подключить генерацию контента к сайтам, приложениям, чат-ботам или CRM-системам всего за несколько строк кода. Сервис поддерживает масштабируемость, позволяет контролировать нагрузку и анализировать статистику запросов.

Компании используют GenAPI для автоматизации создания контента, персонализации предложений клиентам, обработки изображений и многого другого. Это решение, которое подойдет тем, кто хочет не просто использовать ИИ, а встроить его в свою экосистему.

  • Что умеет: Доступ через API к широкому набору нейросетей: текст, изображения, видео, аудио. Поддержка интеграции в проекты и приложения.

  • Как использовать: Регистрация на платформе; для удобства можно использовать российские сервисы с готовым доступом ко всем функциям.

  • Для кого: Разработчики, интеграторы, компании, которым нужен универсальный интерфейс для работы с ИИ.

Примеры промптов:

  • «Сгенерируй описание товара для интернет-магазина».

  • «Создай изображение футуристического города».

  • «Переведи текст с русского на английский с сохранением стиля».

Перейти на сайт сервиса >>>


5. ChadGPT.ru

Легкий, доступный чат-бот на русском языке, созданный для повседневного общения и решения базовых текстовых задач. Он идеально подходит тем, кому нужен быстрый ответ, пояснение или короткий текст без сложных настроек и перегруженных функций. Пользователи часто выбирают ChadGPT.ru для написания поздравлений, составления писем, кратких обзоров, пояснений к терминам и даже для помощи с учебными заданиями. Интерфейс предельно прост — достаточно ввести запрос и получить ответ в течение нескольких секунд.

Сервис особенно удобен для пользователей, которым нужен компактный, но надежный инструмент на русском языке, работающий без перебоев.

  • Что умеет: Упрощенный чат-бот на русском языке, генерация текстов и ответов на вопросы.

  • Как использовать: Регистрация доступна, а российские сервисы помогают удобнее работать со всеми возможностями.

  • Для кого: Пользователи, которым нужен простой чат-бот для общения и получения текстовых ответов на русском.

Примеры промптов:

  • «Объясни разницу между нейросетью и алгоритмом».

  • «Напиши поздравление с днем рождения для коллеги».

  • «Составь краткий обзор книги на двести слов».

Перейти на сайт сервиса >>>


6. Bothub.ru

Не просто сайт, а полноценный каталог и консоль для работы с искусственным интеллектом. Здесь собраны десятки ИИ-инструментов, доступных на российском рынке, от текстовых и графических генераторов до видео- и аудио-платформ. Пользователь может сравнивать возможности разных сервисов, находить подходящие решения для конкретных задач и тестировать их прямо в интерфейсе. Bothub.ru фактически выполняет роль «маркетплейса» ИИ, где можно быстро подобрать нужную модель под любой запрос — от генерации визуала для рекламы до написания сценариев для видео.

Сервис особенно полезен для маркетологов, контент-менеджеров, стартапов и агентств, которые ищут надежные инструменты для автоматизации креативных процессов.

  • Что умеет: Консоль и каталог ИИ-инструментов: генерация текста, изображений, видео через разные сервисы.

  • Как использовать: Регистрация доступна; для удобства лучше использовать российские сервисы с полным доступом.

  • Для кого: Те, кому нужен единый интерфейс для работы с разными ИИ-сервисами на российском рынке.

Примеры промптов:

  • «Найди лучший инструмент для генерации видео по тексту».

  • «Сравни модели ИИ для создания иллюстраций».

  • «Сгенерируй шаблон презентации по теме маркетинга».

Перейти на сайт сервиса >>>


7. ruGPT.io

Одна из первых платформ, полностью сфокусированных на русскоязычной генерации текстов. Она использует собственные модели семейства ruGPT, обученные на огромных массивах русских данных, что делает тексты естественными и стилистически точными. Платформа идеально подходит для создания пресс-релизов, аналитических отчетов, писем, статей и любых материалов, где важно грамотное и выразительное изложение. Пользователь может выбрать модель в зависимости от задачи — более креативную или формальную.

Особенно ruGPT.io ценят журналисты, копирайтеры и компании, работающие с корпоративным контентом. Сервис обеспечивает стабильность, глубокое понимание контекста и возможность адаптации под нужный стиль.

  • Что умеет: Русскоязычная генерация текстов: статьи, письма, отчеты, рерайт. Можно выбирать нейросеть для конкретной задачи.

  • Как использовать: Регистрация доступна; российские сервисы дают полный доступ ко всем нейросетям.

  • Для кого: Авторы, журналисты, студенты и компании, которым важен русский язык и качественная генерация текста.

Примеры промптов:

  • «Напиши пресс-релиз для IT-компании».

  • «Составь отчет по маркетинговой кампании».

  • «Перепиши текст для корпоративного блога в более легкой форме».

Перейти на сайт сервиса >>>


8. Mitup AI

Специализируется на создании и улучшении текстов для бизнеса и маркетинга. Это идеальный инструмент для тех, кто работает с описаниями товаров, рекламными материалами и SEO-контентом. Сервис позволяет быстро переписывать тексты, делая их более эмоциональными, структурированными и привлекательными для читателя. Он также помогает создавать сценарии для видео, писать посты и даже подбирать заголовки, оптимизированные под поисковые системы.

Mitup AI отличается скоростью работы, простотой интерфейса и адаптацией под русский язык. Он помогает не только создавать контент, но и улучшать уже существующий, экономя время копирайтеров и маркетологов.

  • Что умеет: Генерация текстов на русском: рерайт, описание товаров, маркетинговые тексты.

  • Как использовать: Можно зарегистрироваться на платформе; российские сервисы обеспечивают полный доступ.

  • Для кого: Авторы, маркетологи, контент-менеджеры.

Примеры промптов:

  • «Составь описание нового продукта для сайта».

  • «Перепиши текст с рекламой более эмоционально».

  • «Создай сценарий для видеообзора товара».

Перейти на сайт сервиса >>>


9. Pixian AI

Инструмент для быстрой обработки изображений, который значительно упрощает жизнь дизайнерам и маркетологам. Он способен автоматически удалять фон, повышать качество снимков, делать цветокоррекцию и даже переводить растровые изображения в векторные. Это особенно полезно для подготовки фотографий товаров, логотипов и иллюстраций к публикации в интернете или для печати.

Pixian AI работает прямо в браузере и не требует установки дополнительного ПО. Сервис экономит время и упрощает процесс редактирования, предоставляя результаты профессионального уровня всего за несколько секунд.

  • Что умеет: Обработка изображений: удаление фона, преобразование растровых изображений в вектор, редактирование изображений.

  • Как использовать: Регистрация доступна; российские сервисы дают полный доступ к инструментам.

  • Для кого: Дизайнеры, маркетологи, пользователи, работающие с визуальным контентом.

Примеры промптов:

  • «Удалить фон у фотографии продукта».

  • «Преобразовать растровое изображение логотипа в векторный формат».

  • «Сделать изображение более контрастным и ярким».

Перейти на сайт сервиса >>>


10. SmartBuddy

Портал для генерации изображений через Midjourney и другие визуальные модели. Сервис идеально подойдет для художников, дизайнеров и маркетологов, которые хотят быстро создавать креативный контент без необходимости вручную рисовать или использовать сложные графические редакторы.

SmartBuddy поддерживает разные стили и направления — от реалистичных фотографий до фэнтезийных сцен и аниме-иллюстраций. Он позволяет создавать изображения для постов, рекламных баннеров, презентаций или визуальных концептов для проектов.

  • Что умеет: Генерация изображений через Midjourney и других ИИ-моделей, поддержка различных художественных стилей.

  • Как использовать: Регистрация доступна; российские сервисы позволяют работать без перебоев и с оплатой в рублях.

  • Для кого: Художники, дизайнеры, маркетологи, пользователи, которым нужен удобный способ создавать визуальный контент.

Примеры промптов:

  • «Создай фэнтезийный пейзаж с замком и драконами».

  • «Сгенерируй иллюстрацию для поста в соцсетях о стартапе».

  • «Сделай концепт-арт персонажа в стиле аниме».

Перейти на сайт сервиса >>>


Как пользоваться Midjourney?

Чтобы создавать изображения и узнать, как пользоваться Миджорни, нужно отправлять текстовые описания через Discord. Миджорни — нейросеть для генерации изображений по текстовому описанию, которая работает через Discord. Сервис позволяет создавать реалистичные, художественные и фантазийные визуализации в различных стилях. Главная идея ИИ Миджорни  — дать каждому пользователю возможность стать художником, не имея художественного образования. Здесь ценится не умение рисовать, а умение мыслить образами и формулировать мысли.

Основные возможности:

  • Генерация изображений по текстовым запросам (prompts).

  • Создание вариаций, улучшение и детализация выбранных изображений.

  • Настройка художественного стиля, освещения, цветовой палитры и уровня реализма.

  • Возможность объединять несколько идей или объектов в одном изображении.

  • Формирование уникальных композиций, которые можно использовать в коммерческих и творческих проектах.

Для начала работы необходимо зарегистрироваться на официальном сайте нейросети Midjourney онлайн и подключиться к Discord-серверу проекта. В Discord пользователи вводят текстовые запросы и получают созданные нейросетью изображения. Каждое изображение генерируется в несколько этапов — от чернового варианта до финального рендера, что делает Миджорни удобным. Пользователь может выбирать понравившиеся версии, улучшать их или изменять стиль, пока не добьется идеального результата. Для пользователей из России удобнее работать через российские платформы и агрегаторы, которые предоставляют доступ к Midjourney онлайн с оплатой в рублях.

Кому подходит:

  • Художникам, иллюстраторам и дизайнерам — для быстрого создания визуальных концепций и референсов.

  • Маркетологам и SMM-специалистам — для разработки рекламных баннеров, обложек и визуалов для соцсетей.

  • Авторам и блогерам — для иллюстраций к статьям, постам и видео.

  • Исследователям и энтузиастам генеративного искусства — для экспериментов со стилями и идеями.

Midjourney объединяет творческую свободу художника с точностью цифровых алгоритмов, позволяя превращать текстовые описания в выразительные визуальные образы за считанные минуты.


Как правильно писать промпты для Midjourney?

Чтобы получить нужное изображение, нужно составлять точные текстовые описания — промпты. Промпт — это текстовое описание, на основе которого нейросеть Midjourney.com создает изображение. Чем точнее и детальнее формулировка, тем ближе результат к вашей задумке. Хороший промпт — это баланс между краткостью и детализацией. Он должен описывать суть изображения, атмосферу, стиль и ключевые элементы, но не перегружать запрос лишними словами.

1. Указывайте конкретные объекты и действия

Четко опишите, кто или что изображено и что делает главный объект.

Пример:

  • Неполный запрос: «Кошка».

  • Конкретный запрос: «Серая кошка сидит на подоконнике в солнечном свете».

  • Описывайте детали и окружение

Добавляйте информацию о фоне, обстановке, времени суток, погоде или атмосфере.

Пример: «Городской пейзаж ночью с яркими огнями, дождь, отражение на мокрой улице».

2. Уточняйте художественный стиль

Midjourney умеет создавать изображения в разных стилях, поэтому важно указать желаемый стиль: реализм, мультяшный стиль, фэнтези, минимализм, ретро и другие.

Пример: «Портрет старого мудрого человека в стиле реалистичной живописи»

3. Используйте композиционные и визуальные указания

Добавляйте информацию о ракурсе, перспективах, освещении и цветовой палитре.

Пример: «С высоты птичьего полета, крупный план лица, мягкое освещение, теплые оттенки».

4. Разделяйте несколько идей

Если хотите объединить несколько элементов в одном изображении, разделяйте их запятыми или короткими предложениями.

Пример: «Древний замок на скале, озеро перед ним, туманное утро, отражение в воде».

5. Экспериментируйте

Не бойтесь пробовать необычные комбинации и творческие идеи. Иногда самые интересные результаты получаются от неожиданных сочетаний.

Пример: «Фэнтезийный город под водой с сияющими медузами и светящимися башнями».

Примеры промптов для Миджорни на русском:

  • «Серая кошка сидит на подоконнике в солнечном свете».

  • «Фэнтезийный город под водой с сияющими медузами и светящимися башнями».

  • «Городской пейзаж ночью с яркими огнями, дождь, отражение на мокрой улице».

Дополнительный совет: после создания изображения не останавливайтесь на первом варианте. Промты для Midjourney можно редактировать. Пробуйте менять слова, добавлять уточнения, комбинировать стили — каждая новая итерация дает шанс на неожиданный и вдохновляющий результат. Midjourney часто «учится» понимать вас лучше, если вы экспериментируете и уточняете запросы.


Современные нейросети открывают перед создателями контента, художниками и дизайнерами новые возможности: теперь можно генерировать изображения, видео, тексты и даже полноценные визуальные концепты без необходимости владеть сложными графическими программами. Хотя Миджорни в России недоступен, его функциями можно пользоваться через официальные агрегаторы и локальные сервисы, представленные в этой подборке. Это упрощает работу, позволяет оплачивать подписку в рублях и сохранять доступ к регулярным обновлениям и полному функционалу нейросети. Сегодня Midjourney становится не просто инструментом для генерации изображений, а полноценной частью креативного процесса: помогает визуализировать идеи, проверять гипотезы, формировать стиль бренда и развивать визуальную айдентику проекта.

Показать полностью 11
Нейронные сети Искусственный интеллект Midjourney Генерация Художник Дизайн Графический дизайн Маркетинг Блоги компаний Длиннопост
2
Bolserge
Bolserge
Серия Одежда и стиль

Нейро Валерия и Елена⁠⁠

19 дней назад

По прежнему есть некоторые проблемы с консистенцией. Но в целом, думаю интересно получилась реализация идеи украшенной ели в лесу. С художественной точки зрения, интересного здесь мало. Но по сути это работа над технической частью - сложные ракурсы, детализацией и реалистичностью. В итоге, получилась нейро фотопрогулка в новогоднем лесу с людьми, которых не существует. Генерация полностью локальная, без применения сервисов. Конечные правки в Фотошопе. Одежда - с Вилдбериса / bolser.ru

Показать полностью 18
[моё] Контент нейросетей Искусственный интеллект Дизайн Нейронные сети Маркетинг Одежда Дизайнер Тренд Модели Актеры и актрисы Мода Wildberries Стиль Длиннопост Арты нейросетей Фотография
4
Посты не найдены
О нас
О Пикабу Контакты Реклама Сообщить об ошибке Сообщить о нарушении законодательства Отзывы и предложения Новости Пикабу Мобильное приложение RSS
Информация
Помощь Кодекс Пикабу Команда Пикабу Конфиденциальность Правила соцсети О рекомендациях О компании
Наши проекты
Блоги Работа Промокоды Игры Курсы
Партнёры
Промокоды Биг Гик Промокоды Lamoda Промокоды Мвидео Промокоды Яндекс Маркет Промокоды Пятерочка Промокоды Aroma Butik Промокоды Яндекс Путешествия Промокоды Яндекс Еда Постила Футбол сегодня
На информационном ресурсе Pikabu.ru применяются рекомендательные технологии