Cтроим дом, крыша (часть 1, каркас)
В этом году зима настала неожиданно, не в конце февраля, как обычно, а с самого начала декабря и с серьезных метелей и снегопадов. К тому же мы потратили более месяца на исправление косяков, которые выявил технадзор и были задержки с поставкой дерева, да и финансово хотелось разгрузиться, как итог крышу не успели построить до снегов. Классическая ситуация.
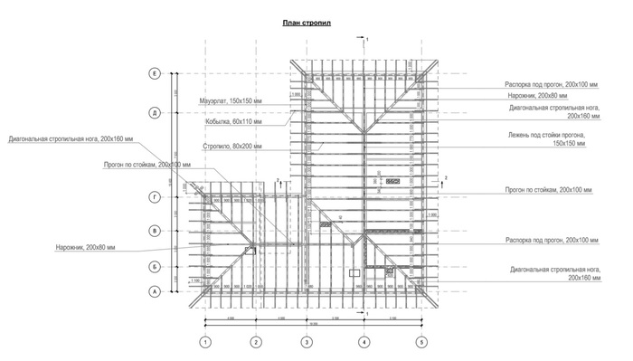
После скитаний, консервировать или строить - решил строить, в зиму. Вроде бы особо проблем с этим быть не должно. Перекрытия закончили вовремя, следующим этапом должен строиться каркас крыши (стропильная система). Ниже представлены чертежи крыши, не совсем финальные, но в целом представления о предстоящей работе дают.
Площадь крыши 488 м2. На такую крышу со всеми подрезами и сгибами уйдет около 534 м2 металочерепицы. Крыша получилась очень большая, сложная и как следствие - дорогая.
Каркас деревянный, стропила 80х200, с наклонном, который подходит под любые виды черепицы, но выбран был самый простой вариант - металочерепица. Читал сотни статей, советовался с огромным количеством людей, возможно металочерепица не самый долговечный и надежный материал, но он подходит по дизайну, довольно прост в установке и несильно нагружает каркас. В общем выбор был сделан в пользу металочерепицы с низко волной. В качестве изолятора была использована мембрана плотность 135 (третья серия).
Трубы были построены из керамического клинкерного кирпича черного цвета, об этом напишу чуть ниже.
Все дерево пропитывалось на лесопилке. По этому надеюсь постройка в зимний период сильно не скажется на результате. В планах, после того как все подсохнет, проверить все дерево и метал и по необходимости провести дополнительную обработку.
Вопросы дизайна
Классическая стройка начинаем пересекаться с вопросами красоты и дизайна, что пока что дается довольно сложно. К примеру потратили около двух недель на выбор черного клинкерного кирпича для труб, но такого черного, чтобы он сочетался с шоколадным цветом крыши. Если бы мне год назад сказали, что я с утра поеду через весь город смотреть на кирпичи, я бы никогда не поверил. Но как результат, черных цветов очень много, все они по разному черные, и с одной стороны жена, которой этот конкретно черный не нравится, с другой стороны дизайнер - который тоже изрядно часто бракует варианты, так как они не подходят по дизайну. В общем две недели выбирали нужный кирпич, на трубы ушло всего 600 шт.
Ниже фотографии этого кирпича. На выбор металочерепицы, ушло еще больше времени, короче не смотря на то что на рынке сейчас представлено почти все, со всех стран мира, и кажется что необходимые отделочные материалы купить очень просто - это не так. Очень часто нет именно того, что нужно и того что предусмотрено проектом, никто особо не возит материалы на которые маленький спрос. В общем если делать красиво, нужно быть готовым знать всех поставщиков в лицо, весь их ассортимент и быть готовым на индивидуальные заказы.
Ниже пара фотографий постройки стропильной системы
На стропильную систему ушло, около 34 м3 дерева, и почти 2 месяца работы. Дальше ждем приезд металочерепицы и накрываем.
Всем спасибо, еще раз хочу попросить, что если у кого есть замечания или советы, буду рад услышать и исправить проблемы, если они есть.
44 страны Европы и их национальные животные
Тотемные животные раньше характеризовали племена, империи, а сейчас страны. Люди издревле любили ассоциировать себя с животными: сильный, как медведь; быстрый, как заяц; верный, как волк.
Именно поэтому практически у каждой европейской страны есть по национальному животному-символу, а у многих стран даже несколько их. Перечислим их:
Небольшое дополнение: у некоторых животных довольно запутанные названия, поэтому вместо них были указаны просто «птица», «бабочка» и подобное. Только, чтобы вас не вводить в заблуждение .
Но не у каждой страны есть своё национальное животное. У Боснии и Герцеговины, Ватикана, Сан-Марино, Словакии, Украины и Швейцарии их нет.
Два микрогосударства и три довольно молодых страны, образовавшихся во время падения социализма в 90-х, составляют большую часть этого списка.
Из тех стран, что имеют, у почти половины (45 %) как минимум два национальных животных. Великобритания и Финляндия имеют даже пять!
Страны с большим количеством животных-символов концентрируются на севере Европы у северных морей континента.
Символом может быть обычное животное, а может быть мифическое или геральдическое.
Мифические животные — это никогда не существовавшие животные, либо животные, имеющие магические способности.
Судя по карте, большинство мифических животных концентрируется в центре Европы.
Геральдическое же животное то, которое активно используется в гербах семей, родов, кланов, государств. Карта мало отличается от предыдущей, основная концентрация снова в Центральной Европе:
Если проанализировать самые популярные животные, то лидерами в европейской символике будут лев и орёл. Прекрасный пример, когда человеческая одержимость котами доходит и до государственного уровня:
Можно выделить Бенилюкс, Великобританию и Норвегию. Все страны исторически связаны между собой, так что их выбор льва, как животного-символа, не удивляет. Удивляет только, что страны с не самым комфортным климатом для львов (дождливый Лондон и снежный Осло), всё-таки выбрали львов, а из южных европейцев львы приглянулись только славянам.
А вот орлы сконцентрированы в трёх местах:
Центральная Европа, Балканы и Россия. То есть орлы особенно приглянулись славянам и немецкоязычным странам.
Волки довольно популярны, но раскиданы по всей Европе:
А вот медведей чтят в России и Финляндии. Если продолжать тему соседей, которые почитают одинаковых животных, то у нас есть зубр и рысь:
Стоит отметить, что в Европе пять стран использует разных быков. Помимо беларуских и польских зубров в Андорре почитают коров, в Испании боевых быков, а в Молдове вымершего тура.
Помимо зубра Беларусь и Польшу связывают аисты:
Вместе с Литвой это трио отсылает нас ко временам Речи Посполитой. Экстравагантные петухи нравятся португальцам и французам, а крошечная божья коровка — выбор Латвии и Финляндии.
Немножко статистики:
Важное дополнение: под мифическими существами мы посчитали те создания, которые вообще не имеют аналогов у настоящих животных. То есть британский единорог попал в категорию лошадей, а венгерский турул был засчитан, как птица.
Единственное мифическое существо — валлийский дракон И-Драйг-Гох, который валлийцы изобразили на своём флаге.
И большая красивая картинка на память. Наслаждайтесь:
Кальмары по-Сычуаньски - рецепт
🍽 Вам понадобится: 🍽
1. Кальмары 300г.
2. Стручковая фасоль 100г.
3. Масло сливочное 30г.
4. Кинза 40г.
5. Лук 1шт.
6. Чеснок 1зубчик
7. Соевый соус
8. Оливковое масло
9. Перец чили
10. Лимонный сок
🥣 Приготовление:🥣
1. Кальмары очистить от плёнок
2. Нарезать произвольными кусочками и сделать небольшие надрезы
3. Мелко режем 1/3 перчика чили, чеснок тоже измельчаем
4. В разогретую сковороду добавляем сливочное масло, чеснок, мелко порезанный чили и кальмары, обжариваем примерно минуту
5. Добавляем стручковую фасоль и жарим ещё минут 5
6. Нарезаем кинзу и добавляем к кальмарам
7. Лук нарезать кольцами и обжарить в большом количестве масла или фритюре до золотистости и добавить к кальмарам
8. Заправить соевым соусом, лимонным соком и свежим порезанным чили
Приятного аппетита😉🦑
Прибой
Немного лета в ленту. Прибой на закате; Щёлкино, Крым. Летнего всем настроения.
Автор фотографии - Екатерина Cat
Техника - Nikon D3200 + Nikkor 18-105
Параметры съёмки - 24 mm f/3,8 1/500s ISO 1100
Обработка - Adobe Photoshop
Другие работы автора: fotekat.ru
Пирелли изменили технологию производства шин, чтобы они красивее смотрелись на болидах Формулы-1
Как вы уже могли заметить, новые слики блестят, как яйцы у кота как шары для боулинга.
Пирелли использовала хромированные пресс-формы, которые ранее уже пробовали в Формуле-2. Поэтому появился такой эффект. Это не оказывает влияния на свойства резины, просто итальянцы посчитали, что так колёса будут смотреться круче.
Ну, собственно, давайте глянем... Я лично не вижу разницы.
























