01 Декабря 2025
191
Строительство и ремонт
Серия Веселая строительная экспертиза

Почему трещат стены?

Еще один поучительный случай из практики обследования. Простейшее по конструктиву здание - кирпичные несущие стены, фундамент из блоков ФБС, пустотные плиты перекрытия и покрытия. Один этаж и техподполье. Казалось бы, стоять такому зданию 100 лет без проблем? Нифига, только не у меня в подборке.

Фото №1. Трещина по стене.

Фото №1. Трещина по стене.

Фото №2. Еще трещина.

Фото №2. Еще трещина.

Фото №3. Внутри здания не лучше.

Фото №3. Внутри здания не лучше.

Фото №4. Еще трещина.

Фото №4. Еще трещина.

Фото №5. И еще одна.

Фото №5. И еще одна.

Первая мысль - может эти трещины для устрашения посетителей, чтоб легче анализ кала было сдавать? Здание-то как раз действующая лаборатория. Но вроде в санпинах такой методики не описано, поэтому зайдем со строительно-технической стороны. Трещин много, они сквозные, персонал даже жалуется, что сильно дует зимой, приходится заклеивать. Летом, правда, сплошная польза от них - дополнительная вентиляция. Шутки шутками, но это все плохие факторы. И особенно плохой - трещины пересекают отдельные кирпичи. То есть, в слабость раствора и плохую гидроизоляцию кровли, влекущую протечки в кладку, поверить нельзя (судя по внешнему виду здания). Неужели силовые? И при этом еще и нестабилизированные - маячки рвутся. Но откуда взяться нагрузке в таком-то конструктиве? Оговорюсь - никакого тяжелого оборудования нет.

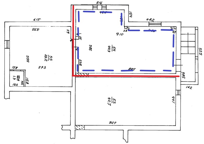
Начинаем анализировать расположение трещин. Их много, но самые большие кучкуются в зоне двух стен (отмечал не все):

Нумерация соответствует номерам фото в посте. Красными линиями - направления стен, дальше пригодится.

Нумерация соответствует номерам фото в посте. Красными линиями - направления стен, дальше пригодится.

Ага, а стены эти - несущие. Пора спуститься в техподполье. И когда я туда спускался, то вспомнил, что его высота по техпаспорту - 1,8 м. То есть пройти-то я пройду, но потолок будет в нескольких сантиметрах над макушкой. А фактически высота помещения сильно больше - в районе 2,2 м. Зацепка.

Красными линиями обозначены несущие стены для ориентации с предыдущей схемой.

Красными линиями обозначены несущие стены для ориентации с предыдущей схемой.

Смотрим на стены помещения (помещение обведено синим штрихпунктиром) - а там все откопано! Даже низ блоков ФБС местами над грунтом висит. А на эти фундаменты как раз и опираются наиболее дефектные стены 1-го этажа (которые красными линиями на схемах отмечены).

Зазор между блоком и грунтом.

Зазор между блоком и грунтом.

Еще зазор.

Еще зазор.

Как так получилось? Переносимся в конец 90-х. Разруха, нищета, а в лаборатории - свободное техподполье, которое можно сдавать коммерсам! Только вот неурядица - высота маленькая, надо углубить. И углубили. Уровень чистого пола стал в одном помещении (синий штрих-пунктир на схеме) чуть ниже подошвы фундамента, причем без всяких усилений. А как понимаете, под уровнем чистого пола еще сантиметров 10 было выкопано и залито стяжкой. Вроде бы мелочь, но структура грунта нарушена. Может и стояло бы здание так и дальше, да в 2004 в Калининградской области случилось землетрясение. Скорее всего оно и дало толчок к началу трещинообразования. В середине 10-х люди обеспокоились - трещины стали видны, ближе к 20-м маячки клеили. Почему-то не помогло. Я же на объекте был в 2022 году. И сорока лет здание нормально не отстояло - год постройки 1988...

Напоследок - пара забавных фото:

Почему-то меня это повеселило)

Почему-то меня это повеселило)

Показать полностью 11

Насыщение техникой

Я далек от обсуждаемой темы, поэтому конечно же выскажу свое мнение.
В период интенсивных боевых действий любая армия испытывает огромный дефицит техники на линии боевого соприкосновения. Да, техники всегда не хватает вне зависимости страны, нации, экономики. В РФ данный момент я считаю производство тяжёлой техники выведено на достаточный уровень но пора задуматься о легковой, расширить снабжение. То есть не только что то как джипы (как Нива или УАЗик) но и облегченной (типа как багги или квадроциклы). Так же помощь по сбыту нужна Автовазу . И поэтому я считаю, что есть решение. То есть Автоваз должен быть полностью мобилизован для производства фронтовой техники. Пусть наши солдаты получают новые машины прямо с завода по максимуму, расширяют для фронта ассортимент. Думаю и бюджетные средства можно еще отправить на открытие линий производства мото, разработку новых версий текущей техники. После нашей победы - все это достанется гражданскому рынку (в первую очередь опыт модернизации с учетом конкурентов)

Ну а мы, гражданские, как-то... ну... понять должны сложившуюся ситуацию, как то решим это ради Родины. Будем ездить например на не отечественных машинах, ввоз которых нужно упростить.

Это мое имхо, и я считаю что все цели и задачи нашей армией будут конечно же достигнуты.

УБОРКА

Глава 1

Город просыпался в сизой, неподвижной мгле. Не туман это был, а нечто иное – взвесь мельчайших частиц, которые система «Климат-1» распыляла по ночам для очистки атмосферы. Воздух имел вкус стерильности, словно в гигантском холодильнике, где только что провели дезинфекцию.

Леон Бартенев стоял у окна своей квартиры на 42-м этаже, пил синтезированный кофе и смотрел на просыпающийся внизу город. Строгие геометрические линии башен, широкие проспекты, по которым уже неслись бесшумные электрокары. Ничего лишнего. Ни одной кривой линии, ни одного случайного пятна. Идеальный организм.

На коммюнике-панели в стене замигал значок. Леон вздохнул, поставил чашку и принял вызов.

– Бартенев, – произнёс он.

– Задание на сегодня поступило, – без предисловий сообщил механический голос. – Улица Созидания, сектор 7-Г. Приступайте к исполнению в 08:00.

Экран погас. Леон медленно протер лицо, словно стирая с него остатки сна. Он был «Специалистом по Оптимизации Городского Пространства». В обиходе – «Уборщиком». Но убирал он не мусор. Он убирал всё, что система признавала бесполезным.

Он вышел из квартиры. В лифте, как всегда, никого. Его доставили прямо в подземный гараж, где его ждал служебный транспорт – чёрный, каплевидный автомобиль без окон. Он сел внутрь, и машина плавно тронулась, управляемая центральным сервером.

Леон закрыл глаза. Он вспомнил, как десять лет назад, ещё мальчишкой, смотрел, как такие же чёрные машины увозили библиотеку с улицы Поэзии. Тогда он плакал. Книги были его лучшими друзьями. Отец, высокопоставленный чиновник, строго сказал ему: «Бумажные книги – архаика. Они накапливают пыль, являются рассадником бактерий и несут субъективную, часто деструктивную информацию. Их КПД равен нулю. Не плачь. Город становится чище».

Теперь Леон сам был частью этой «чистоты».

Машина остановилась. Дверь бесшумно отъехала. Леон вышел на улицу Созидания. Сектор 7-Г был кварталом старых, так называемых «дореформенных» домов. Их ещё не снесли, но уже внесли в план оптимизации. Здесь пахло не стерильностью, а пылью, старой штукатуркой и тихой печалью.

Его задача сегодня – «Оптимизация» дома № 24. Причина: «Несоответствие современным стандартам эффективности проживания. Низкий коэффициент полезного действия на квадратный метр».

Леон поднял голову. Дом был старый, пятиэтажный, с затейливыми лепными карнизами и крошечными балкончиками. В одном из окон на третьем этаже стоял горшок с геранью. Алым, неэффективным пятном.


Глава 2

Дверь в подъезд была не заперта. Внутри пахло щами, воском и кошками. Леон почувствовал странный укол в сердце. Этот запах был… живым. В отличие от очищенного воздуха в его квартале.

Он поднялся на третий этаж. Квартира 14. Та самая, с геранью. В его планшете уже горела зелёная галочка напротив этой ячейки – «Заявка на оптимизацию одобрена. Объект: Иванова Эмилия Петровна. 78 лет. Коэффициент полезности: 11,3%. Критически низкий».

Леон нажал кнопку звонка. Из-за двери послышались медленные шаги. Дверь открылась. В проёме стояла худая, как птенец, старушка в аккуратном платье. Её глаза, невероятно живые и яркие, с любопытством рассматривали его.

– Я вас ждала, – сказала она, и в её голосе не было ни страха, ни злобы.

Леон, сбитый с толку этой встречей, молча протянул ей планшет с официальным уведомлением. Она покивала, даже не глядя на экран.

– Знаю, знаю. Проходи, садись. Чай будешь?

Она повернулась и заковыляла вглубь квартиры. Леон, ошеломлённый, последовал за ней.

Квартира была каким-то музеем прошлого. Кружевные салфетки на спинках стульев, выцветшие фотографии в рамках, массивный резной буфет с потёртой фарфоровой посудой. И книги. Повсюду книги. На полках, на столе, стопками на полу. Тот самый, запрещённый, «неэффективный» хлам.

– Садись, – указала она ему на стул. – Я Эмилия.

– Леон, – автоматически ответил он, садясь. – Бартенев. Служба оптимизации.

– Знаю, – она поставила перед ним стакан с дымящимся чаем. – Мёд положить?

Леон покачал головой. Он должен был зачитать ей протокол, провести опись имущества и вызвать транспорт. Но слова застряли в горле. Он смотрел на её руки – старческие, в коричневых пятнах, но удивительно изящные. Они лепили из воздуха что-то невидимое, пока она наливала чай.

– Вы… вы не боитесь? – не удержался он.

– Чего бояться? – она улыбнулась, и её лицо покрылось паутиной морщин. – Всё равно скоро. Да и пожила я уже. А ты попробуй мой пирог. Яблочный.

Она разрезала румяный пирог и положила ему кусок на тарелку. Запах корицы и печёных яблок ударил в нос, вызвав вдруг забытый с детства образ – бабушка на кухне в их старом, давно снесённом доме.

– Зачем? – прошептал он. – Зачем вы всё это храните? – он махнул рукой на полки с книгами.

– Это не «хранить». Это – жить, – она присела напротив. – Вот эта, – она тронула потрёпанный том на столе, – «Анна Каренина». Я её в шестнадцать лет читала, влюбилась во Вронского. Глупость, конечно. А вот это – стихи Ахматовой. Муж дарил, когда делал мне предложение. В каждой книжке – кусочек моей жизни. Выбрасывать книги – всё равно что вычеркивать себя из памяти.

Леон молча ел пирог. Он был невероятно вкусным. Настоящим. В городе давно не было настоящей еды, только синтетические пасты и батончики с максимальной питательной эффективностью.

– А что будет… с вами? – спросил он, не глядя на неё.

– Со мной? – она вздохнула. – Наверное, отправят в Центр Адаптации. Переучат на какую-нибудь полезную деятельность. А может… — она не договорила, но Леон понял. Слишком низкий КПД. Слишком старая. Её могли просто «утилизировать», как утилизировали старую мебель из её же квартиры.

Внезапно в его планшете раздался резкий сигнал. Десятиминутное предупреждение. Пора заканчивать.

Эмилия Петровна посмотрела на него своими живыми глазами.

– Ты хороший человек, Леон. Я вижу. Не бойся. Делай свою работу.

Она подошла к буфету и вынула маленькую, потёртую книжку в кожаном переплёте.

– На. Это тебе. Стихи. Почитай как-нибудь. Чтобы душа не засохла.

Леон, не думая, взял книжку и сунул её во внутренний карман униформы. Она была тёплой, как живая.

– Мне пора, – глухо сказал он.

– Иди, милый. И спасибо за компанию.

Он вышел из квартиры, не оглядываясь. Его руки сами собой вызвали команду на опись и вывоз. Через пятнадцать минут к дому подъехали грузовые дроны и бесшумные погрузчики. Леон стоял в стороне и смотрел, как из подъезда выносили старую мебель, книги, ту самую герань. Всё это складывали в контейнеры для переработки.

Последней из дома вышла Эмилия Петровна. Она была в простом сером комбинезоне, её вещи умещались в один небольшой чемодан. Она села в чёрную машину, похожую на его, и та бесшумно уехала.

Леон остался один на опустевшей улице. Он потрогал карман, где лежала книжка. В горле стоял ком.

Глава 3

Вечером Леон стоял в центре своей идеальной, функциональной квартиры, где каждая вещь имела своё назначение и максимальный КПД. Стекло, металл, пластик. Ничего лишнего.

Он вынул из кармана книжку: «Анна Ахматова. Стихотворения». Он открыл её на случайной странице и начал читать. Шёпотом.

«Сжала руки под тёмной вуалью…»

Он не понимал до конца смысла. Но слова, странные, неэффективные, лишённые утилитарной цели, падали в тишину его квартиры, как камни в гладкую поверхность воды. И рождали круги. Круги чего-то забытого, тёплого, болезненного и живого.

Он прочитал всё, от корки до корки. И потом начал сначала.

На следующее утро он получил новое задание. Улица Памяти, сектор 4-Д. «Оптимизация» ремесленной мастерской. Владелец – мужчина 68 лет. Низкий КПД.

Леон пришёл в мастерскую. Это была пещера Али-Бабы. Пахло деревом, лаком и металлом. Повсюду стояли неоконченные скрипки, висели старинные инструменты. Хозяин, седой бородач с грустными глазами, что-то зачищал наждачной бумагой.

Леон посмотрел на него. Потом на свои руки. Он вспомнил тёплую книжку в кармане. Вспомнил Эмилию Петровну.

Он подошёл к станку, на котором лежала почти готовая скрипка. Её деревянные бока сияли мягким золотым светом.

– Она почти готова, – сказал мастер. – Не хватает только души.

Леон протянул руку и дотронулся до скрипки. Дерево было тёплым.

– Я… я могу помочь? – тихо спросил Леон.

Мастер удивлённо посмотрел на него, потом кивнул.

Леон не пошел по протоколу. Он провёл весь день в мастерской, помогая. Он учился шлифовать дерево, натягивать струны. Он слушал истории о каждой скрипке. Вечером, уходя, он оставил в системе отметку: «Объект оптимизации требует дополнительного анализа. Рекомендую отложить».

Он шёл по вечернему городу и смотрел на идеальные башни, на стерильные улицы. Но теперь он видел за этим не порядок, а огромную, тотальную пустоту. Пустоту, которую он сам помогал создавать.

Он зашёл в свой квартал, где жили такие же, как он, «оптимизаторы». Везде горели ровные, безжизненные огни. Ни музыки, ни смеха, ни запаха пирогов. Только гул вентиляции.

Он подошёл к своему дому и увидел, что на ранее голом балконе на втором этаже стоит тот самый горшок с геранью. Эмилия Петровна… Может, она выжила. Может, она теперь здесь.

Леон поднял голову. Сизый смог медленно опускался на город, готовясь к ночной «уборке». Но теперь он знал, что даже в самом стерильном пространстве могут прорасти семена. Семена памяти, красоты и бессмысленной, неэффективной, но такой живой человеческой души.

Он достал книжку Ахматовой и прижал её к груди. Его личный осенний марафон только начинался. Марафон по спасению того, что ещё можно спасти. Даже если это будет всего один горшок с геранью. Одна старая скрипка. Одна потрёпанная книжка.

Он вошёл в подъезд. Дверь за ним бесшумно закрылась, но внутри него что-то щёлкнуло и распахнулось настежь.

Показать полностью

Обработка хореографии на видео с использованием искусственного интеллекта. Общие измышления. Моё мнение

Есть один любопытный момент, о котором редко говорят, — как именно мы «встраиваем» технологии в себя.
Недавно вспоминал исследование нейропсихолога Алессандро Фарне. Он доказал, что когда человек берёт в руку палку, мозг перестаёт видеть границу между рукой и инструментом.
Палка становится длинной рукой.
Тело расширяет себя, словно признаёт внешний объект частью собственной схемы.

Почему-то именно об этом я подумал, пересматривая одно своё старое видео — то, что год назад обработала нейросеть.
Тогда мне казалось, что это просто эффект.
Сегодня — что это след перехода. Момент, когда технология перестаёт быть игрушкой и становится чем-то вроде удлинённого жеста.

Мы, кажется, снова стоим в той точке истории, где инструмент важнее, чем кажется.
Где он не заменяет, а расширяет.
Где вопрос не в том, «умна ли нейросеть», а в том, что она делает с нашим способом видеть, двигаться, мыслить.

Про сам момент, про то первое «сращивание инструмента и жеста», я написал чуть подробнее у себя.
И туда же прикрепил то самое видео — пусть и шероховатое, но, как мне сейчас кажется, очень показательное.

Кому интересно, как всё это выглядит не в теории, а вживую — ссылка в профиле.
Только предупрежу: видео честное. Без глянца. Но в этом, возможно, и есть его ценность.

Показать полностью

Герман Греф выучил много новых слов

Сбер открыл вакансию Product Owner с очень сранными требованиями

Что это вообще все значит: ИИ-автоматы, Легопродукты и метасценарии, stickness, якорные сценария, инженерия решений. Какой-то неабор бессвязных слов.

Ваше мнение
Всего голосов:
Показать полностью 2 1

Мужская фотосессия с ИИ: 31 промт для создания мужских образов с помощью нейросети

Красивая мужская фотосессия по фото с помощью нейросети за 5 минут — самая настоящая реальность!

Красивая мужская фотосессия по фото с помощью нейросети за 5 минут — самая настоящая реальность!

Искусство обработки фотографий прошло долгий путь. Раньше опытные дизайнеры, потратив годы и годы на обучение и шлифовку навыков часами кропотливо работали в Photoshop, добиваясь идеальных кадров. А теперь ИИ модель обработки изображений Gemini Nano Banana от Google меняет правила игры.

Эта нейронка делает редактирование удивительно простым. Вы загружаете снимок, вводите текстовое описание — и наблюдаете за магией. Никаких специальных технических навыков не требуется. Делать фотографии профессионального качества ещё никогда не было так просто!


Как создавать фотографии из этой статьи

Мы будем работать с нейросетью Nano Banana от Google, она сейчас делает лучшие изображения среди всех доступных нейронок, качество изображения почти не отличается от настоящих снимков профессионального фотографа с зеркалкой.

Лайфхак: для более качественной генерации фотографий используйте Nano Banana PRO, она немного дороже, но качество изображений заметно лучше и нет водяных знаков.

В России доступ к Nano Banana ограничен, поэтому фотосессию мы будем делать через топовый агрегатор нейросетей Study AI, который даёт прямой доступ к Нано Банана в обход санкций и запретов.

Почему именно Study AI?

1️⃣Работает без VPN из любого региона России

2️⃣Оплата рублевой картой (никаких зарубежных карт не требуется)

3️⃣Простой русскоязычный интерфейс

4️⃣Техподдержка на русском языке

5️⃣Доступ к 40+ лучшим нейронкам

6️⃣ Скидки в честь Чёрной Пятницы на тарифы ПРО и УЛЬТИМА


31 готовый промт для мужских фотопортретов от Gemini Nano Banana

Знакомьтесь, Иигорь

Знакомьтесь, Иигорь

Я протестировал сотни вариантов, используя это фото как отправную точку. Ниже вы найдёте 31 промт для создания мужской фотосессии с помощью ИИ.

(Промт или промпт — это инструкция для нейросети в виде текста.)

1. Ночной город: деловой стиль

Преобразить это фото в портрет стильного мужчины в идеально скроенном черном костюме и белоснежной рубашке без галстука. Фон — размытые неоновые огни ночной улицы. Добавить кинематографичное освещение с мягким свечением на лице, создавая образ уверенности и современности.

2. Городской стритвир

Превратить снимок в портрет мужчины в модном уличном стиле: объемное худи, рваные джинсы и кроссовки. Расположить его небрежно прислонившимся к стене с граффити при естественном дневном свете, с малой глубиной резкости для эффектного, достойного кадра.

3. «Золотой час» в коже

Сделать портрет мужчины в приталенной черной кожаной куртке, простой белой футболке и темных джинсах. Поместить его в атмосферную городскую обстановку на крыше в «золотой час», когда теплое солнце создает кинематографичное свечение.

4. Расслабленный закат на пляже

Трансформировать фото в портрет расслабленного мужчины в льняной рубашке, слегка расстегнутой на груди, стоящего на пляже на закате. Добавить мягкие пастельные тона неба и легкий бриз, играющий в волосах, для мечтательной прибрежной атмосферы.

5. Роскошь на крыше

Деловое фото мужчины с помощью нейросети Нано Банана

Деловое фото мужчины с помощью нейросети Нано Банана

Превратить это в портрет мужчины в элегантном смокинге с бокалом шампанского, вальяжно сидящего в лаунж-зоне на роскошной крыше. На заднем плане сияют небоскребы. Добавить кинематографичный свет для создания образа высшего класса.

6. Атлетическая мощь

Преобразить фото в портрет спортивного мужчины в майке без рукавов, уверенно стоящего на уличной площадке с тренажерами на фоне. Добавить драматичное освещение, подчеркивающее рельеф тела, для создания мощного, атлетичного образа.

7. Винтажная кофейня

Превратить это в портрет мужчины в винтажной одежде — вельветовый пиджак, водолазка, круглые очки — сидящего в уютной кофейне с мягким теплым светом и размытыми огнями боке на фоне.

8. Минималистичный летний стиль

Трансформировать снимок в портрет мужчины в летнем кэжуал-стиле — белое поло, бежевые брюки чинос, солнцезащитные очки. Он стоит у стены пастельного цвета при ярком дневном свете, создавая современную минималистичную эстетику.

9. Драматизм дождливой ночи

Превратить это в портрет мужчины в темном бомбере, стоящего под светящимся уличным фонарем дождливой ночью. Отражения неоновых вывесок мерцают на мокром асфальте, создавая драматичное кинематографичное настроение.


Полезные посты по нейронкам:

👉 Фото в стиле "Очень странные дела"

👉 Фотосессия на Новый Год через нейросеть

👉 Модный ИИ тренд: ёлочные игрушки из фото

👉 Зимняя фотосессия с помощью нейросети

👉 Фотосессия в стиле "Голливуд" через ИИ

👉 Как сделать фото в любом стиле через нейросеть

👉 Трендовое видео: как сделать вязаный город

👉 Nano Banana: официальный сайт, как пользоваться, как генерировать фото

👉 Как примерить одежду через нейросеть

👉 Трендовое фото с персонажем в лифте

👉 Как сделать фигурку по фото через нейросеть

👉 Реставрация фотографий через нейросеть

👉 Большой набор промтов для фото в стиле Хэллоуин

👉 Как сделать фото с Криком через ИИ

👉 Нейросеть Veo 3 для генерации видео: официальный сайт на русском

👉 Sora 2: нейросеть для генерации профессионального видео

👉 Suno: нейросеть для создания песен онлайн


10. Современный профессионал

Сделать портрет стильного мужчины в приталенном пиджаке без галстука, непринужденно сидящего за современным офисным столом с ноутбуком и чашкой кофе. Мягкий естественный свет льется из больших окон, создавая чистую профессиональную атмосферу.

11. Атмосфера фестиваля

Превратить фото в портрет мужчины в яркой повседневной одежде — джинсовка, футболка с принтом, солнечные очки — на фоне толпы музыкального фестиваля с мечтательными огнями боке позади.

12. Ночная сцена с зонтом

Трансформировать фото в портрет мужчины в белой рубашке и темных джинсах, стоящего под зонтом на ночной улице под дождем. Капли дождя сверкают в свете витрин, создавая атмосферный, кинематографичный эффект.

13. Стиль жизни: кафе

Превратить это в портрет мужчины, сидящего за столиком стильного кафе в пиджаке и футболке, с чашкой кофе в руке. Теплый уютный свет падает на лицо — идеальный лайфстайл-кадр для соцсетей.

14. Прогулка по прибрежному городу

Преобразовать в портрет мужчины в расслабленном летнем образе — рубашка в полоску, закатанные рукава, брюки чинос, лоферы — стоящего на мощеной улочке красочного прибрежного городка при ярком дневном свете с мягкими тенями.

15. Королевский индийский шервани

Трансформировать фото в портрет мужчины в богато украшенном темно-бордовом шервани с золотой отделкой, стоящего на фоне дворца. Теплый солнечный свет подчеркивает детали наряда.

16. Повседневная курта

Превратить это в портрет мужчины в простой белой курте с закатанными рукавами, непринужденно прислонившегося к старинной стене на индийской улочке в лучах закатного солнца.

17. Портрет на фоне скайлайна

Преобразить портрет в эффектное фото: герой стоит на крыше с видом на раскинувшийся город в сумерках. Небо окрашено в оранжевые и пурпурные тона. Одеть его в стильную черную кожаную куртку, простую серую футболку и темные джинсы. Поза уверенная и расслабленная, он опирается на перила, задумчиво глядя на огни города.

18. Классика черно-белого

Фото мужчины в деловом стиле с помощью ИИ

Фото мужчины в деловом стиле с помощью ИИ

Превратить фото в классический контрастный черно-белый портрет. Поместить героя в библиотеку в винтажном стиле, где полки со старыми книгами создают богатый фактурный фон. Одеть его в строгий костюм-тройку угольного цвета и хрустящую белую рубашку. Освещение драматичное, с одним мягким источником света, создающим глубину. Поза сидячая, излучающая спокойную уверенность.

19. Магазин винила из 70-х

Придать фото теплый ретро-вид, напоминающий пленку 70-х. Место действия — винтажный магазин пластинок. Одеть героя в выцветшую футболку рок-группы, потертую джинсовку и классические очки-авиаторы. Освещение теплое и слегка зернистое. Поза расслабленная и крутая, он опирается на полку с пластинками.

20. Индустриальный лофт

Поместить героя в светлый, просторный лофт с большими окнами, кирпичной кладкой и растениями. Свет естественный и яркий. Одеть его в стиль смарт-кэжуал: хорошо сидящий пиджак поверх простой футболки и брюки. Поза открытая и уверенная, он опирается на грубый деревянный стол или смотрит прямо в камеру.

21. Будущее в стиле киберпанк

Переосмыслить образ в футуристическом стиле киберпанк. Фон — оживленная улица ночного города с гигантской голографической рекламой и неоном. Одежда дерзкая, вдохновленная технологиями, с элементами кожи и металла. Настроение крутое и футуристичное, поза уверенная, устремленная в будущее.

22. Победа на вершине

Трансформировать это в эпичный и мощный портрет на вершине заснеженной горы. Фон — захватывающая панорама пиков и облаков внизу. Экипировка — современная, яркая одежда для альпинизма. Свет чистый и резкий, подчеркивающий суровый пейзаж. Поза триумфальная, он стоит прямо против ветра с видом победителя.

23. Атмосфера джаз-клуба

Перенести портрет в душевную, интимную атмосферу полутемного джаз-клуба. Поместить героя на небольшую сцену в луче теплого прожектора. Фон темный и размытый, с намеком на кирпичную стену. Одеть его в стильный винтажный костюм или жилет поверх рубашки с закатанными рукавами. Он может держать саксофон или сидеть за пианино с выражением страсти к музыке на лице.

24. Байкер на Royal Enfield

Трансформировать в портрет мужчины в грубой кожаной куртке, очках и джинсах, едущего на мотоцикле Royal Enfield по пыльной дороге. Золотой закатный свет пробивается сквозь драматично поднимающуюся пыль.

25. Воин ринга

Превратить это в портрет мужчины в боксерских перчатках, стоящего на полутемном ринге. В воздухе висят пот и меловая пыль, создавая суровое, мужественное настроение, полное действия.

26. Ночь и люкс-авто

Сделать портрет мужчины, уверенно прислонившегося к роскошному спорткару ночью. Позади сияют небоскребы, а атмосферный свет подчеркивает его лицо и изгибы автомобиля.

27. Мастер барбекю

Превратить в портрет мужчины в удобной одежде для отдыха, жарящего стейки на гриле в клубах дыма. Снято в золотом вечернем свете для создания брутального лайфстайл-образа.

28. Серфер на пляже

Трансформировать в портрет мужчины с доской для серфинга, без рубашки, в шортах, уверенно стоящего на пляже на фоне разбивающихся волн океана на закате.

29. Элегантность сигарного лаунжа

Превратить в портрет мужчины в строгом костюме, сидящего в кожаном кресле сигарного клуба. Он держит зажженную сигару, дым клубится вокруг, создавая богатую и властную эстетику.

30. Ночь у костра

Трансформировать в портрет мужчины, сидящего у костра ночью в походной одежде с кружкой кофе. Теплый свет огня озаряет лицо, на заднем плане видна палатка.

31. Всадник на рассвете

Превратить это в портрет мужчины в повседневной рубашке и ботинках, скачущего на лошади по открытому полю на рассвете. Пыль и золотой свет создают мощную кинематографичную атмосферу.


FAQ: Часто задаваемые вопросы

В: Нужно ли мне уметь писать сложные промты самостоятельно?
О: Нет, прелесть этой модели в том, что она хорошо понимает естественный язык. Однако для гарантированного результата лучше использовать готовые шаблоны (как те 31, что приведены выше), так как они уже протестированы и «откалиброваны» под эту модель.

В: Работает ли это с групповыми снимками?
О: Обычная Нано Банана лучше всего справляется с одиночными портретами. Для лучших результатов с Nano Banana загружайте фото, где в кадре только один человек. А вот Nano Banana PRO умеет работать и с групповыми портретами тоже.

В: Могу ли я менять детали в предложенных промтах?
О: Да, вы можете адаптировать цвета одежды или время суток. Например, заменить «черный костюм» на «синий пиджак». Но старайтесь сохранять структуру предложения — она задает стиль и композицию кадра. А так - не бойтесь экспериментировать!


Секреты идеального результата: как выбрать исходное фото

Качество работы нейросети на 80% зависит от того, какой материал вы ей «скормите». Вот рекомендации по подбору исходника, чтобы Gemini Nano Banana выдала шедевр, а не галлюцинацию.

1. Техническое качество исходника

  • Разрешение: Избегайте слишком маленьких или пиксельных изображений. Чем больше деталей видит нейросеть на лице (текстура кожи, ресницы, волосы), тем реалистичнее будет финальный портрет.

  • Свет: Идеальный вариант — равномерное освещение без жестких теней, перекрывающих пол-лица. Если на исходнике лицо в глубокой тени, ИИ может исказить черты при попытке «перерисовать» их в другом освещении.

  • Четкость: Смазанные фото (motion blur) — главный враг. Если исходник не в фокусе, нейросеть не сможет корректно наложить новую текстуру кожи или одежды.

2. Ракурс и композиция

  • Соответствие промту: Выбирайте исходник, который анатомически подходит под задачу.

    • Для промта «Сидя в кафе»: загружайте фото, где человек сидит. ИИ сложно корректно перерисовать стоящего человека в сидящего без анатомических ошибок.

    • Для крупных планов: используйте портреты по плечи или по пояс.

  • Взгляд: Лучше всего работают фото с прямым взглядом в камеру или легким поворотом головы (3/4). Профильные снимки (вид сбоку) обрабатываются сложнее и часто теряют сходство с оригиналом.

  • Пространство: Оставляйте немного «воздуха» вокруг объекта на исходном фото. Если макушка обрезана краем кадра, ИИ может дорисовать её неестественно.

3. Одежда и фон

  • Контраст: Желательно, чтобы человек на исходном фото не сливался с фоном. Это помогает нейросети четко отделить силуэт от окружения.

  • Минимум лишнего: Избегайте фото, где лицо перекрыто руками, очками (если они не нужны в новом образе) или посторонними предметами. Если в промте нет очков, а на фото они есть — результат будет непредсказуемым.

Чек-лист перед генерацией:

  1. Лицо четко видно и хорошо освещено?

  2. Поза на фото соответствует желаемому результату (стоит/сидит)?

  3. В кадре нет посторонних людей?

  4. Вы скопировали промт без ошибок?

Следуя этим правилам, вы сэкономите время на бесконечных перегенерациях и сразу получите картинку уровня глянцевого журнала.


Показать полностью 24

Павел зовёт на кукан

Павел зовёт на кукан

Павел Дуров представил свой Кукан «Кокон» — анонимную блокчейн-сеть для нейросетей: пользователи сдают в аренду свои видеокарты, ИИ-задачи крутятся на распределённых мощностях без передачи данных в крупные облака, вознаграждение будут платить в TON.

Показать полностью 1
Мои подписки
Подписывайтесь на интересные вам теги, сообщества, авторов, волны постов — и читайте свои любимые темы в этой ленте.
Чтобы добавить подписку, нужно авторизоваться.

Отличная работа, все прочитано! Выберите