Горячее
Лучшее
Свежее
Подписки
Сообщества
Блоги
Эксперты
Войти
Забыли пароль?
или продолжите с
Создать аккаунт
Регистрируясь, я даю согласие на обработку данных и условия почтовых рассылок.
или
Восстановление пароля
Восстановление пароля
Получить код в Telegram
Войти с Яндекс ID Войти через VK ID
ПромокодыРаботаКурсыРекламаИгрыПополнение Steam
Пикабу Игры +1000 бесплатных онлайн игр Лото — это классическая настольная игра, которая ассоциируется с тёплыми воспоминаниями из детства. Теперь вы можете играть в неё онлайн: соревноваться с другими участниками, выбирать из разных игровых режимов, общаться в чате и подниматься в рейтинге!

Наше лото

Настольные, Симуляторы, Для мальчиков

Играть

Топ прошлой недели

  • Oskanov Oskanov 9 постов
  • Animalrescueed Animalrescueed 46 постов
  • AlexKud AlexKud 33 поста
Посмотреть весь топ

Лучшие посты недели

Рассылка Пикабу: отправляем самые рейтинговые материалы за 7 дней 🔥

Нажимая «Подписаться», я даю согласие на обработку данных и условия почтовых рассылок.

Спасибо, что подписались!
Пожалуйста, проверьте почту 😊

Помощь Кодекс Пикабу Команда Пикабу Моб. приложение
Правила соцсети О рекомендациях О компании
Промокоды Биг Гик Промокоды Lamoda Промокоды МВидео Промокоды Яндекс Маркет Промокоды Отелло Промокоды Aroma Butik Промокоды Яндекс Путешествия Постила Футбол сегодня
0 просмотренных постов скрыто
15
Kt13
10 месяцев назад
Строительство и ремонт

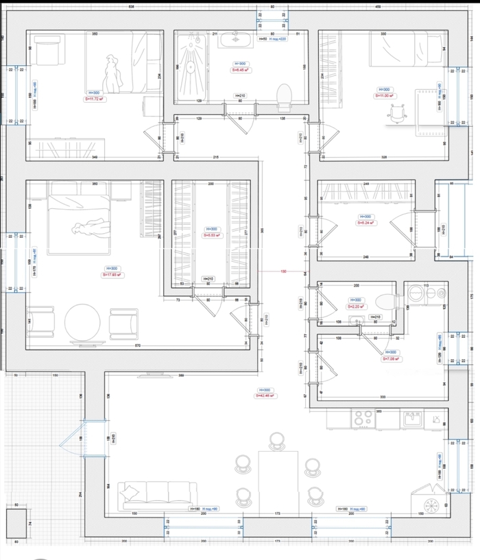
Планировка дома. Обсуждение/критика⁠⁠1

Планирую заказать проект дома, хотелось бы узнать мнение профи и не только о данной планировке: плюсы, минусы, что лишнее или чего нехватает.

Участок узкий, юг снизу, регион Смоленская обл.

Планировка дома для родителей, постоянно проживающих и приезжающей в гости семьи из 3х человек. Коммуникации городские, кроме канализации.

Показать полностью 2
[моё] Строительство Планировка Строительство дома Проектирование Длиннопост
87
6
iboprojecthome
iboprojecthome
10 месяцев назад
Серия Проекты деревянных домов, бань, срубы и МАФы

Одноэтажный дом до 100 кв. м. Проект из лафета⁠⁠

Дом из лафета, проект 84 кв. в один этаж

А теперь для интересующихся строительством деревянного дома, именно из лафета:

-есть русская рубка под лафет, стесанное бревно с двух сторон;

-а есть норвежская рубка лафета, там из соединение подобие канадской рубки и зауголки, выпуски бревна под углом

Так что дерзайте. Две разные по рубке в лафет, стоимости строительства. Одинаковые по названию

план одноэтажного дома из лафета

план одноэтажного дома из лафета

Чем можно описать данный проект?

Три спальни - три санузла)

Можно сделать мастер-спальню, доступ из комнаты в санузел.

Не забываем про размеры и желаемую площадь комнат, помещений. Это лафет 200х300 мм. Сруб 10х9.5 м. Кому надо больше, меньше - все повлияет на количество помещений и размеры строения для данной планировки)

проект из лафета

проект из лафета

страшный дом

страшный дом

Для расчета строительства проекта G-38:
-площадь по экспликации - 84 кв. м
-объем лафета 200х300 мм - 78 куб. м из 6 м
-пог. длина бревна - 1210 п.м
-пог. фундамента - 88 м
-балки - 100х200 мм
-стропила - 50х200 мм
-площадь кровли и периметр - 169 кв. м и - 104 пог. м
-угол кровли -22-26 гр.
-высота 1-го этажа в парной - 2.7 м
-высота строения - 6.2 м

одноэтажные проекты домов

одноэтажные проекты домов

деревянный дом из лафета

деревянный дом из лафета

Показать полностью 5
[моё] Деревянный дом Проектирование Строительство дома Видео Длиннопост
2
4
bulgakovvk
bulgakovvk
10 месяцев назад

О письме Минстроя с перечнем нарушений норм⁠⁠

Возможно будет интересно для проектировщиков и ГИПов, для тех, кто не в теме проектирования в строительстве, скорее всего, нет.

Сабж - письмо Минстроя РФ «О последствиях компенсирующих мероприятий, принимаемых при отступлении от требований нормативных документов», от 10.10.2024 № 59262-СМ/08. В нём, в табличной форме рассмотрены 78 требований норм и возможных компенсирующих мероприятий и их негативное влияние.

Пример пунктов:

О письме Минстроя с перечнем нарушений норм

Мы не могли пройти мимо такого шедевра и решили почитать и прокомментировать, естественно, сугубо в развлекательных целях. Естественно, наше мнение субъективное и неправильное.

Для понимания о чем речь - тайминг:

00:00:00 – О вступительной части письма

00:16:46 – п. 1. Доступность для инвалидов

00:21:27 – п. 3. О гостевых автостоянках

00:30:16 – п. 4. О сбросе ливнёвки в ёмкости

00:47:35 – О расстоянии от мусорок до жилых домов и площадок

00:55:19 – п. 13. О тамбурах (тут и пригодился Хазанов)

01:05:13 – О расчётах пожарного риска

01:07:06 – п. 18. О залах в больницах выше 2го этажа

01:10:20 – п. 20. Про инвалидов (о разности отметок тротуара и тамбура)

01:13:54 – п. 21. Аварийные выходы

01:17:17 – Наружный водосток и скатная кровля

01:26:44 – п. 30. Вытяжки из кухонь

01:32:20 – п. 34. Шумоизоляция

01:38:41 – Об увлажнении воздуха в ДОО и ДОУ

01:44:31 – п. 37. Об использовании расчётов рисков не по назначению

01:47:14 – п. 38. Снова об инвалидах

01:49:21 – О ёмкостях чистого стока на ливнёвке

01:56:34 – О заложении канализации выше глубины промерзания

02:05:37 – О заложении инженерных сетей под дорогами

02:11:07 – О входной площадке в здания

02:17:45 – п. 43 О рекультивации

02:20:14 – Череда непонятных пунктов

02:27:28 – п. 54 О втором источнике электроснабжения - ДГУ

Показать полностью 1 1
[моё] RUTUBE Минстрой Строительство Проектирование Нормативы Видео
0
16
stpsgr
stpsgr
10 месяцев назад
Так себе работа

Анекдот:⁠⁠

В воскресенье вызывали на работу весь отдел потому что на некоторых чертежах было написано не "Щебёночное покрытие", а "Ебёночное покрытие"

Дорога Проектирование Анекдот Истории из жизни Забавное Работа Текст
7
bulgakovvk
bulgakovvk
10 месяцев назад

Беседа со сварщиком⁠⁠

Добрый день! Решили разбавить наши посиделки приглашением гостей. Пообщались с товарищем сварщиком о об особенностях его трудовом пути, используемом оборудовании, организации работы и так далее. Получилось длинно и весело. Вэлкам!

В ролике присутствует немножечко ненормативной лексики. В описании ролика есть ссылки на другие платформы, в том числе подкасты, если кому не нравится рутуб.

Выкладываю тайм-код (тайм-коды есть в описании на Рутубе, тут они, наверное, не будут работать по нажатию), может будет понятнее о чем речь в ролике (речь в общем о профессии и работе сварщика с примерами из жизни):

00:00:00 – Вступление

00:02:53 – Газосварка и электродуговая сварка, где применяется, особенности применения

00:06:27 – Лайфхак с вёдрами

00:07:59 – О начале трудового пути сварщика

00:10:45 – О полуавтомате в сравнении с электродуговой сваркой

00:14:37 – Продолжение трудового пути, вторая работа

00:22:19 – Сколько нужно времени, чтобы научиться, некоторые аспекты обучения

00:37:00 – Продолжение трудового пути, как обманывают заказчики

00:45:57 – Как происходит рабочий процесс

01:00:07 – Как происходит работа с проектной документацией

01:08:14 – Оплата переделок. Что входит в объём работы звена

01:10:10 – Как происходит работа на кап. ремонтах

01:21:17 – Исполнительные схемы, участие проектировщиков

01:33:07 – В курсе ли сварщик строительной нормативки. Есть ли новые методики

01:37:07 – О разных технологиях сварки

01:44:01 – О кап. ремонтах

01:47:51 – О работе слесарем-сантехником по вызову

02:04:22 – Экипировка сварщика

02:13:09 – Что насчёт техники безопасности?

02:15:48 – Какой коллектив у сварщика? Ещё о кап. ремонтах

02:32:13 – Отношение к профсоюзам

02:40:23 – Что с отдыхом?

02:56:23 – Как ты видишь будущее?

03:05:48 – Заключение

Показать полностью 1
[моё] Строительство RUTUBE Сварщик Сварка Проектирование Видео
17
1551
GENGENI4
GENGENI4
10 месяцев назад
Серия А я вот запилил

Про то как я качели запилил+чертежи⁠⁠

Всем привет! Как и обещал, а слово я своё стараюсь держать, запилил пост про качели. Не буду говорить, что я не писатель вы это и так поймете, но всё-же постарался рассказать максимально доходчиво. Надеюсь читать вам будет не только полезно, но и интересно.

Немного предыстории.

В 2020 году мы планировали завести третьего ребенка и в связи с этим встал вопрос улучшения жилищных условий.  К тому-же мы с женой уже давно мечтали о своем доме, а программа сельской ипотеки могла помочь нам приблизиться к нашей мечте, другие ставки мы бы попросту не потянули. В итоге потратив некоторую сумму на первоначальный взнос и некоторое количество нервных клеток (сделка была непростой) в апреле 2021 года мы стали счастливыми обладателями загородного дома. Дом 2014 года постройки с ремонтом, что говориться заезжай и живи, а вот участок был совсем неухоженным, помимо парочки молодых вишень, навеса и большого количества травяного сухостоя на нем не было ровным счетом ничего. Но нас это не пугало, мы расценивали это как возможность сделать всё под себя. В первый сезон я уложил 80 квадратных метров тротуарной плитки под навесом, посеял небольшой газон за домом и сделал мангальную зону (постараюсь рассказать о ней в следующих постах). Стоит отметить, что все крупные проекты по участку я делаю в основном период  отпуска, тратя на них не только время, но и добрую часть отпускных. Да про летний отдых на море с появлением своего дома мы забыли, к сожалению, приходится делать выбор и он пока в пользу траты денег на благоустройство участка. Весной 22 года я озадачился вопросом благоустройства территории перед домом, на тот момент она выглядела приблизительно так

Более старых фоток не нашел, но участок здесь был неровный с травой, и не было клумб

Более старых фоток не нашел, но участок здесь был неровный с травой, и не было клумб

Было принято решение сделать палисадник и посеять газон, ну и конечно сделать качели, которые должны были стать объектом притяжения взгляда и создания ВАУ-эффекта. Про газон и палисадник опустим, единственное о чем можно упомянуть, что намучавшись с поливом первого газона, я твердо решил в этот раз делать систему автополива (конечно-же своими руками). И вот мы плавно подошли к основной части: к качелям, а правильнее качелям-перголе.

Дизайн.

С чем-чем, а с дизайном у меня не очень, я могу сделать своими руками практически всё что угодно, а вот придумать что-то с нуля мне довольно трудно, поэтому обычно я ищу идеи дизайна в интернете, чаще всего в пинтересте. Там я в качестве референса взял пару интересных вариантов. Так как с чертежами на пинтересте, да и вообще в интернете туган, мне пришлось проектировать их самому.

1/2

Референсы из интернета

Подбор материалов.

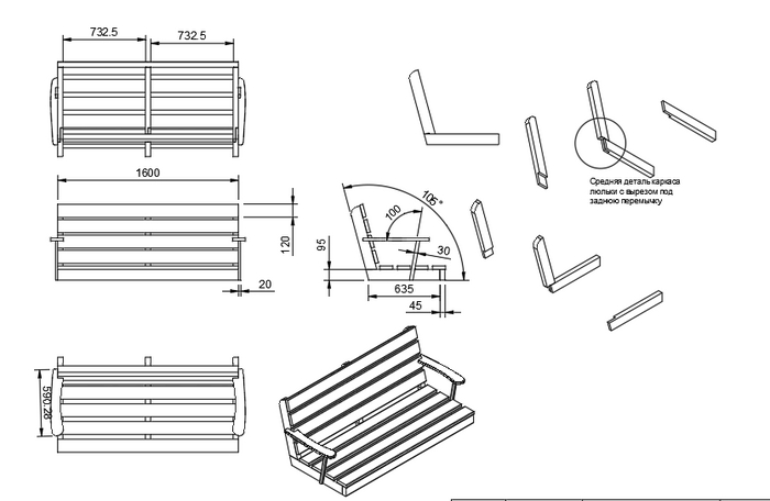
Перед проектированием необходимо было определиться с параметрами материала (сечение бруса, досок, реек) и желаемой вместимостью. Это очень важные вещи, без которых сделать правильный проект просто невозможно. Все деревянные элементы качелей сделаны из сухого строганного дерева хвойных пород, благо в нашем городе есть неплохая база, в которой есть большой выбор такого материала. В качестве основных стоек я использовал двухметровый клееный брус 100х100 мм, остальные детали делались из неклеёных досок и реек. По поводу вместимости решил, что сделаю люльку шириной 1600 мм для комфортного размещения трех стройных или двух упитанных взрослых.

Проектирование.

Тут и рассказывать особо нечего. Проектирование выполнял в программе Fusion, она мне нравится из-за интуитивно понятного интерфейса и широких возможностей. К сожалению, при изготовлении качелей я не снимал процесс на видео, сделал всего несколько фоток, поэтому функционал программы поможет мне смоделировать процесс сборки и рассказать о некоторых нюансах изготовления деталей с помощью фото и видео из программы. Ну что, проект готов, двигаемся дальше.

1/2

Рендер модели

Инструменты и расходные материалы.

Минимальный набор инструмента, который может понадобиться для изготовления качелей состоит из шуруповерта, лобзика, угольника, рулетки и карандаша. Но работа сильно облегчится, если к этому набору добавить торцовочную пилу, ручную дисковую пилу, ручной фрезер и шлифмашинку. Про мелочевку типа сверл и бит не пишу. Из расходных материалов понадобятся саморезы по дереву, глухари, клей ПВА столярный (желательно влагостойкость D3), белый акриловый герметик для наружных работ.

Изготовление и сборка (Attention: самая нудная часть).

Здесь начнется нудятина, постараюсь описать процесс коротко (увы, не получилось), думаю из анимации и так все понятно будет. Начинать изготовление можно с перголы или с люльки – это не важно, давайте начнем с люльки, т.к. с нее начинается анимация.

Для изготовления люльки потребуется сначала собрать каркас, основным элементом которого являются 3 г-образных детали, каждая из них в свою очередь состоит из двух деталей, в местах стыка которых сделана выборка на глубину ½ толщины самой детали .

Я соединял детали с помощью клея и саморезов. На выборке нужно остановиться подробнее, т.к. она присутствует практически во всех деталях качелей. Выборку можно делать фрезером с пазовой фрезой, выставленной на необходимую глубину, либо дисковой пилой, при таком варианте необходимо также выставить глубину погружения пилы на необходимую величину, после чего в том месте, где должен образоваться паз, делаем пропилы с небольшим расстоянием друг от друга (2-3 мм), получится что-то наподобие расчески и потом плоской отверткой или стамеской аккуратно выламываем зубья нашей «расчески», выборку (паз) после такой операции желательно обработать рашпилем или шлифовальной бумагой.

Фрезером выборка получается чище и соединение более надежное из-за более плотного примыкания деталей. Итак, выборку сделали, детали склеили, идем дальше: прикручиваем получившиеся детали к передней планке, затем заднюю, не забыв в средней детали сделать под нее выпил, это можно сделать лобзиком.

Каркас люльки готов, прикручиваем доски спинки и сиянья.

Подлокотники имеют криволинейную форму, контур рисовал карандашом от руки прямо на детали, хотя можно было распечатать чертеж в масштабе 1:1, после изготовления одного подлокотника можно использовать его как шаблон для второго – данный процесс изготовления актуален для всех криволинейных деталей.

Прикручиваем подлокотники и люлька готова. Забыл сказать, что ребра всех деталей люльки перед сборкой я скруглял радиусной фрезой и шлифовал детали шлифмашинкой (120 зерно).

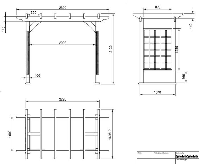
Переходим к перголе. Сначала делаем две опоры (подошвы) и четыре стойки, детали, в принципе, не сложные, единственное, в верхней части стоек необходимо сделать выборки с двух сторон под верхние перекладины (см. фото).

Обращаю ваше внимание, что выборки делаются на двух стойках с одной стороны, на двух других зеркально, т.е. стойки взаимозаменяемы только по диагонали. Также на передних стойках я сделал декоративные канавки, они делаются сферической фрезой, канавки нужно делать только на лицевой части передних стоек. Процесс фрезеровки канавок не сильно сложный, но требует твердости в руках, любое неловкое движение может привести к порче заготовки. На одной из стоек я сделал кривую фрезеровку, здесь взаимозаменяемость меня и спасла, теперь на одной из задних стоек у меня есть кривая фрезеровка, которую никто и никогда не увидит. Для фрезеровки канавок я использовал параллельный упор для фрезера. После того, как стойки готовы можно прикрутить их к подошвам, делал я это глухарями, по два на каждую стойку, под шляпки предварительно сделал выборку перьевым сверлом, чтобы они утопились в тело заготовки. Далее попарно соединяем стойки верхними и нижними перемычками, которые образуют рамку под решетку, замечу, что в проекте отсутствуют столярные соединения типа шип-паз. Все соединения, в которых торец одной детали соединяется с пластью другой скреплены саморезами и, конечно-же клеем (хотя торцы клеятся не очень хорошо). В данном случае я не хотел портить внешний вид столбов и поэтому закрепил перемычки саморезами изнутри на косую.

Далее изготавливаем верхние балки. С криволинейными законцовками поступаем также как и с подлокотниками, пазуем отверстия для соединения продольных и поперечных балок также как и детали каркаса люльки. Для достижения большей прочности соединения выборку нужно делать в продольных и поперечных балках ширина выборки соответствует толщине заготовки, в моем случае это 45 мм, а глубина 25 мм.

Заем устанавливаем продольные и поперечные балки, эту операцию рекомендую делать уже на месте установки качелей, т.к. после нее переносить качели будет сложновато. Здесь сделаю вставку про подготовку основания.

Фундамент.

В качестве фундамента я залил две тумбы размерами с основание качелей и высотой 300 мм, качели к основанию не крепил, стоят жестко, при желаниии можно закрепить дюбелями или заложить в фундамент шпильки. Между фундаментом и опорой качелей обязательно прокладываем гидроизоляционный материал (рубероид).

Продолжаем изготовление.

Все места соединения промазываю клеем, затем вкручиваю глухари в местах соединения балок со стойками, поперечные балки дополнительно креплю к продольным саморезами.

1/2

После устанавливаю укосины для придания конструкции большей устойчивости к боковым нагрузкам. Кстати, решетки также выполняют такую функцию помимо декоративной. Решетки я делал из рейки 20х30, пазовал по широкой стороне на глубину 10 мм, что позволило соединить детали в местах примыкания заподлицо. Соединял рейки только клеем, после того как клей высох сделал фрезеровку ребер внутри каждой ячейки конусной фасочной фрезой с подшипником. Затем установил решетки внутрь полученных ранее рамок и закрепил саморезами.  Пергола готова.

Хотя, нет, я забыл про одну важную вещь. Сначала я планировал закрепить люльку к крайним верхним поперечным балкам ( надеюсь ваш мозг еще не взорвался)), но, к сожалению при таком креплении цепи задевали за верхние перемычки стоек, этого косяка можно было-бы избежать, если бы я спроектировал крепление люльки и обнаружил ошибку на стадии проектирования, но я этого не сделал, пришлось решать вопрос добавлением двух продольных перемычек между крайними балками, хотя можно было немного опустить всю конструкцию решеток. Вот теперь пергола готова.

Покраска.

Очень важный этап, потому что сделав ошибку в подборе ЛКМ вы рискуете заниматься снятием облупившейся краски и нанесением новой ежегодно, внешний вид от каждой такой процедуры будет только ухудшаться. Я долго искал качественную краску и остановил свой выбор на фасадной краске Tikurilla vinha. Т.к. краска фасадная, она не особо стойкая к механическому воздействию, но в нашем случае механическому воздействию подвержена только люлька и этот вопрос решаем. Да, краска не из бюджетных, но она стоит своих денег, поверьте. Хоть краска и довольно укрывистая, расход довольно большой, я затратил 3 литровых банки, хотя, думаю, можно было обойтись и двумя, можно было разбавить, но я не стал рисковать. После нанесения первого слоя я замазал все щели герметиком и нанес второй слой краски, т.к. герметик белый, можно осуществлять данную операцию и в самом конце, честно говоря, не знаю как лучше.

После покраски вкручиваю шурупы кольца в люльку и перемычки на верхних балках, всего 6 шт. И подвешиваю качели на цепи с помощью карабинов

1/2

На этом основная часть изготовления подошла к концу ( ох, проще качели сделать нежели описать этапы их изготовления, надеюсь эта информация будет кому-то полезна)

Надеюсь, я ничего не упустил, но если появятся вопросы, задавайте – отвечу.

По желанию можно добавить декоративные фонари и подушки (они защитят люльку от механического воздействия и сделают качели более удобными). Фонари я использовал от компании INHOME, артикул, вроде, этот 4690612023502, фонарики у меня включаются автоматически, для этого я приобрел WI-Fi реле и запрограммировал на включение и выключение в определенное время, удобно. Подушки лучше использовать из уличной ткани «Оксфорд»

Результат работы. И немного фото процесса.

1/11

И теперь самое интересное.

Деньги и время

Точную смету я не вел, но общие затраты составили в районе 20000 рублей из которых деревяшки на 10-12 т.р, краска 4500, фонарики и реле 1500,  подушки 4000, ну и мелочь всякая. По времени: делал неспеша, в удовольствие, по несколько часов в день, если не ошибаюсь, недели 2 потратил.

Ответы на вопросы из предыдущего поста про качели.

Под предыдущим постом было много вопросов, на самые популярные постарался ответить в основной части, на некоторые отвечу здесь: качели прочные, не развалились и не планируют. Не гниют, краска не трескается. Амплитуда качания из-за забора небольшая, но нам она и не нужна. Крыши нет и скорее всего не будет, но можно сделать из поликарбоната или стекла, мне кажется смысла большого от нее всё равно не будет, а внешний вид испортится. Эксплуатируем качели не часто. Красиво, но не практично-практично).

Заключение.

В завершение хочу поблагодарить всех, кто плюсанул предыдущий пост про качели, не думал, что пара фотографий получат такой отклик, не скрою, мне приятно. Отдельное спасибо ВСЕМ комментаторам, именно вы замотивировали меня к написанию данного поста. Подписчикам отправляю лучики добра 🫶. Заранее спасибо всем, кто плюсанет и оставит комментарий.

До встречи в следующих постах. Как и обещал прикрепляю чертежи, надеюсь они кому-нибудь пригодятся

1/7
Показать полностью 39 2
[моё] Своими руками Посты на Пикабу Пикабу Столярка Изделия из дерева Работа с деревом Качели Дача Инструкция Мастерская Мастер Проектирование Видео Без звука Длиннопост
128
DELETED
10 месяцев назад

Гениальное проектирование⁠⁠

Гениальное проектирование
Показать полностью 1
[моё] Юмор Дорога Парковка Авто Бардак Дураки Проектирование
3
Промо Забустить свой пост
specials
specials

Время прогревать аудиторию!⁠⁠

Сентябрь — это не только начало учебного года, но и время активной подготовки к горячему сезону распродаж. Самое время подключить подписку Пикабу+:

  • рассказывайте о своих товарах и услугах

  • добавляйте ссылки

  • создавайте витрину товаров прямо в профиле

  • подключайте дополнительное продвижение постов

Пора готовить сани!

ПОДКЛЮЧИТЬ ПИКАБУ+

Подписки Аудитория Продвижение Бизнес Текст
43
El.Sancho
El.Sancho
10 месяцев назад
Лига электриков

Электрика в частном доме⁠⁠

Добрый день товарищи. В свободное от основной работы время занимаюсь проектами по электрике и решил выложить что-то типа гайда для заказчиков и в тоже время для тех, кто сам хочет поднатореть в нелегком деле электромонтажа частного дома. Если бы мы жили в Америке, электрики ничего бы, в большинстве случаев, не спросили - у них всё по «кодам» (National electrical code). На то, как ты в будущем поставишь кровать, телевизор и тумбочку «заокеанцам» по барабану, главное, чтобы работу принял инспектор и не лишил тебя лицензии. У нас проще и никакой проверяющий не придёт до наступления чп. Короче можно разгуляться…, но есть и свои подводные камни в этом.

Самое первое, что надо сделать, это спланировать весь участок полностью держа в руках бумажку «Санитарные нормы расположения строений». В качестве примера нашел такую:

Подумайте о будущих постройках на участке, ведущих к ним дорожках, местах под машину для себя и для гостей, посмотрите, что поставили соседи, теплица, баня, купель, беседка, дом на дереве, бассейн, винный погребок, бункер, озерцо для карпов, баскетбольная площадка, зимний сад, пятиметровая вышка чтобы чилить как спасатель малибу… Хочется конечно всё, но есть реалии, и слишком далеко уходить в мечты тоже не стоит. Если уж точно давать самому себе «честное благородное слово», то можно и заложить гильзу под проводку на момент появления денюжек.

Второе: продумать инженерку для каждого вида сооружения исходя из вводных данных участка – наличие водоотведения, водоснабжения, электричества, источника получения тепла.

Ладно, не буду уходить далеко и возьму первоначальные данные для самого дома так, как если бы я строил дом:

  • Проект дома имеется. Одноэтажный, с террасой, 150м2. Внутри: 2 спальни, кухня-гостиная, гардеробная, котельная, 2 санузла. Дом кирпичный, на ленте.

  • Технические условия энергоснабжающей организации выданы на 15кВт 380В. Вводной шкаф учета на столбе, на границе участка, воздушный ввод. Вся разводка по участку предполагается под землей.

  • На участке будут постройки требующие питания: баня, гараж/навес на 2 машины на въезде, бытовое помещение рядом с гаражом, домофон на калитке, откатные ворота, управляемые брелком, септик, скважина.

  • Проекта слаботочки нет. Примерно знаю что будет: роутер в коридоре посередине дома, 2 рабочих компьютерных места, 3 смарт-телевизора, плэйстэйшн, ресивер или активные колонки с эйрплэй 2 в одной из комнат, хаб (возможно 2шт разных производителей) для заделки под умный дом, 4-6 камер по территории, вводным кабелем будет оптика или UTP 6ой категории со столба дома. Nas хранилища нет, общей сети на компы не надо, связь по hdmi с ближайшим оборудованием будет через заложенный в стене кабельный канал.

  • Проекта отопления нет. Котел газовый, управление удаленное через ZONT по протоколу opentherm или ВКЛ/ВЫКЛ через термостат с сухим контактом пока не решено, пара циркуляционных насосов на систему и отдельный шкаф на котельную. Никаких электрозадвижек на коллекторе отопления нет, максимум появятся умные терморегуляторы на самих батареях на зигби. Датчики протечки в котельной, санузлах, кухне, э/м клапан на ввод воды.

  • Проекта вентиляции нет. Вытяжки в санузлах с отсрочкой по выключению, на кухне вытяжка над плитой. Приток воздуха через бризеры типа Тион, расположенные в хозяйской спальне, спальне для гостей, зале. Кондиционеры в зале и хозяйской спальне.

  • Теплые электрические полы в санузлах, в тамбуре, на улице перед входом включая ступеньки. Электрические полотенцесушители в санузлах.

  • Молниезащиты нет. Кровля не металлическая.

  • Обогрева водостоков нет, но на всякий случай розеточки у желобов надо оставить.

  • Архитектурное освещение на доме выполнено на уличных бра. К нему же подвязано освещение территории через астрономическое реле с выключением в 23,00.

  • Есть возможность подключить бензиновый генератор на время отключения электроэнергии. Система без АВР, всё в ручном режиме.

  • Мастер клавиша на отключаемые группы на дом у главного выхода из дома.

  • Спутниковые тарелки соседей смотрят на запад, эфирные туда же. Сигнал GSM ловит хорошо.

  • Качество энергии не хромает, участок расположен не на конце линии. Скачков и просадки ЭЭ нет.

  • В доме из электропотребителей кроме названных: бытовые розетки, посудомойка, стиралка, холодильник, морозильник, сушильный шкаф, робот-пылесос, аквариум, шторы с фазным управлением.

  • Освещение в комнатах. В каждой комнате минимум 2 группы освещения (даже в туалете), одна для основной подсветки, вторая для ночных походов. Управление голосовое через Алису с дублированием через выключатели без фиксации.

  • Дизайн проекта нет, но план по мебели имеется.

Вроде ничего не забыл.

Если рисовать блоками план электроснабжения участка будет выглядеть примерно так:

1/2

Теперь пойдем в дом. Глядя одним глазом на расстановку по мебели и на список оборудования, начинаем раскидывать розетки добавляя иногда и за самой мебелью. На случай «а вдруг что-то захочется переставить?» Короче тут всегда действует принцип «лучше перебдить чем недобдить». Розетки по наружным стенам тоже не забываем, по тому же принципу. Розетки за кухонным гарнитуром для СВЧ, духовки, холодильника и т.п. ставим только после согласования размеров кухни и планировки. Поглядываем глазом на этот рисунок при расстановке:

Следующим этапом расставляем светильники, опять же с учетом мебели. И там, где появится шкаф, до потолка, не надо предусматривать светильник. И вообще, чтобы было проще, шкаф лучше считать за стену. Светильники, как и писал ранее, лучше разбить на группы. Берем для примера спальню: первая группа общий потолочный свет, выполненный точечными светильниками по периметру потолка, или люстра посередине, вторая – прикроватные бра, по 1 с каждой стороны, третья группа - подсветка шторы в нише, четвертая – подсветка изголовья кровати, пятая - торшер у кресла для чтения.  Каждая нужна для чего-то. Становится много выключателей

1/2

Но можно от них избавиться, заранее предусмотрев сценарии использования и поставив сценарные выключатели с использованием «умного дома»

или же распаять самому сразу все пять групп по запланированному использованию. Скажем: 1гр.- оставить отдельно, 2гр-оставить отдельно, 3гр и 4гр – объединить, 5гр – включение по ножному переключателю. Или, как вариант, всё настроить через управление голосом через голосового ассистента и не ставить ни одного физического выключателя, а если они понадобятся «понаклеить» беспроводных.

Светильники. В идеале надо прямо выбрать конкретные светильники, которые вы хотите. Т.к. у каждого светильника свой способ монтажа, своё место подключения. Особенно это актуально у подвесных светильников. У одних подвод кабеля должен быть сбоку, у других посередине, а если светильник длиной 1000мм, то на выводе кабеля с потолка ты уже можешь ошибиться на 500мм. Закладные под светильник могут не подойти, напряжение питания светильника окажется 48В вместо стандартных 220В и будет выносной блок питания, который надо куда-то прятать и т.п. Вообще в теме света очень много всего, но не будем углубляться.

Дальше смотрим на сети связи. Выбираем место под роутер, тянем от него провода по рабочим местам и электроборудованию требующего интернет. Если стены толстые закладываем на всякий случай места для точек доступа для хорошего сигнала в важных комнатах.

Раньше было приложение на телефоне по которому можно было посмотреть потери сигнала в разных комнатах предварительно нарисовав в нем план квартиры, но название забыл т.к. все равно «перебдиваю» ставя резервные «тарелки».

ТВ сигнал конечно мало сейчас развит. В теории может получится и комнатной антенной поймать 20 бесплатных цифровых каналов рядом с телевизором, но на всякий случай можно за штору, на высоте 2,2м примерно, рядом с розеткой для моторчика штор, на каждую сторону вывести ТВ розетку, сплиттер в шкафчике, и от него уже развести по теликам. Плюсом прокинуть кабель от шкафчика на крышу, лишним не будет, если ни у кого из соседей не подсмотреть.

Основное вроде всё рассмотрел. Получилось сумбурно, слишком много всего хотел написать. Пишу только так как сам делаю. Если что-то можно улучшить прошу подсказать.

Показать полностью 10
[моё] Электрика Частный дом Проектирование Все сам Длиннопост
44
Посты не найдены
О нас
О Пикабу Контакты Реклама Сообщить об ошибке Сообщить о нарушении законодательства Отзывы и предложения Новости Пикабу Мобильное приложение RSS
Информация
Помощь Кодекс Пикабу Команда Пикабу Конфиденциальность Правила соцсети О рекомендациях О компании
Наши проекты
Блоги Работа Промокоды Игры Курсы
Партнёры
Промокоды Биг Гик Промокоды Lamoda Промокоды Мвидео Промокоды Яндекс Маркет Промокоды Отелло Промокоды Aroma Butik Промокоды Яндекс Путешествия Постила Футбол сегодня
На информационном ресурсе Pikabu.ru применяются рекомендательные технологии