0 просмотренных постов скрыто
519
Ответ на пост «Лабораторию реактивного движения NASA закрыли из-за лесных пожаров в США»1
Спутник заснял из космоса охваченный огнём Лос-Анджелес
9
87
Пролёт Northrop B-2 Spirit на малой высоте
Пролет тяжёлого малозаметного стратегического бомбардировщика Northrop B-2 Spirit на малой высоте в окрестностях Пасадены (штат Калифорния). 3 января 2017 года.
Показать полностью
743
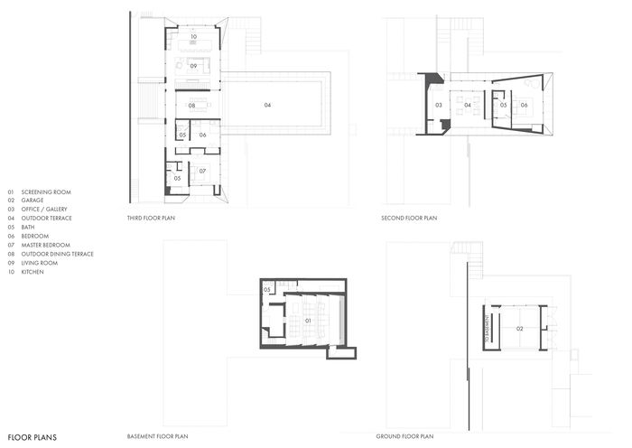
Чем-то мне этот домик нравится
Дом был создан для одной семьи в Пасадене (Калифорния) архитекторами компании «Montalba Architects».
Общая площадь составялет 4200 кв. футов (≈390 кв. м).
По-моему, компания заслуженно получила награду в номинациях «Aрхитектурный дизайн» и «Архитектура жилых домов».
Для спецов:
Показать полностью
13
5
2




































