Примыкающая крыша - это ненужные понты. Делать правильно - дорого. А дёшево - опасно
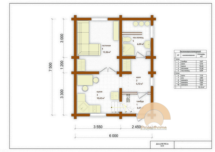
Камрад @projecthome, который является (или считает себя) проектировщиком, сделал такой Проект дома из бруса 6х7.5 м и никак не хочет ответить, зачем он нагородил примыкающих крыш.
Давайте развёрнуто отвечу, почему я и как руководитель домостроительной
компании, и как специалист по строительно-технической экспертизе, и как
плотник, считаю все бюджетные проекты с примыкающими кровлями - ошибкой. Для ЛЛ - потому, что это ненужные понты, которые разрушат ваш дом.
В посте дом 7,5х6 метров, да ещё из бруса - это явно решение из бюджетного строительства.
Это недорогой летний домик для временного проживания. И тут вполне можно было бы обойтись простой и надёжной двускаткой. Но с ней проект будет смотреться простовато, потому мы налепим несколько крыш на разных уровнях и обеспечим сбор осадков в брус.
Примыкание само по себе собирает мусор, заносимый ветром, а уж в реализации из проекта для этого сделан специальный карман - кровля врезана в венцы брусового дома и образует уютный закуток. Там могут сделать гнездо горихвостки или мухоловки, что безусловно плюс. Но скорее всего, туда набьётся песка и пыли, после чего обильно смочится водой и порастёт мхом. В итоге начнётся гнилостный процесс и инфильтрация воды в стену.
Даже без этого кармана, выполненное по технологии примыкание всё равно несёт опасность разрушения стены. Согласно СП 17.13330.2017 "Кровли", всё достаточно просто:
В месте примыкания используем:
3.1.7 дополнительный водоизоляционный ковер (рулонный или мастичный): Слои рулонных кровельных материалов или мастик, в т.ч. армированных стекломатериалами или прокладками из полимерных волокон, выполняемые в местах примыканий основного водоизоляционного ковра к вертикальным поверхностям выступающих над ковром конструктивных элементов с нахлестом этих слоев на основной водоизоляционный ковер.
который должен выдерживать температуру 100 С и который мы заводим на вертикальную поверхность стены не менее, чем на 150 мм, не забывая, что сверху:
6.4.1.3 Для примыканий кровли из волнистых листов к стене, парапету и дымовой трубе следует применять угловые детали, которые закрепляют шурупами, пропускаемыми через гребни волн рядовых листов; при этом по скату их устанавливают с нахлестом не менее 150 мм, а поперек ската - не менее чем на одну волну.
при том, если крыша не из металлочерепицы или гофролиста, то
7.2 [...] Края кровли из металлических листов на примыканиях к выступающим над ней конструкциям (например, стенам, парапетам и т.п.) следует поднимать на высоту не менее 150 мм и защищать от попадания атмосферных осадков в подкровельное пространство с помощью металлической планки с последующей герметизацией.
Но при таком монтаже на верхней части отлива образуется ступенька, которая всё равно собирает мусор и воду, и в конечном счёте может привести к разрушению конструкции стены.
Если говорить о правильном выполнении примыкания кровли к деревянной стене, то его желательно выполнять так - сначала в стене делается ровная штроба по всей длине примыкания. Желательно, чтобы эта штроба имела наклон 30-45° в сторону кровли. Затем, место примыкания гидроизолируется рулонными материалами, желательно на основе битума, или битумными мастиками, на высоту не менее 150 мм. После сверху в штробу устанавливается отлив, и в идеале штроба заделывается герметиком поверх.
Нашёл картинку правильно выполненного примыкания кровли к стене рубленного дома.
Естественно, бюджетный проект будут строить бюджетные плотники и они не будут морочиться со всем этим штроблением и даже гидроизоляцией алюмобитумными лентами. Они просто налепят сверху отлив и в один дождливый день ветер загонит воду под него. И крыша потечёт. А потом заказчики проектировщика будут платить мне деньги, чтобы я приехал и рассказал, как это заделать и чем обработать то, что уже сгнило.
Безусловно, примыкающая крыша может быть насущной необходимостью. Например, когда нужно сделать пристрой к стене, а уровень свеса основной крыши находится на значительной высоте и врезаться в него нерационально. Но делая примыкание нужно очень тщательно выполнять гидроизоляцию. Особенно в случае деревянных стен.
Если же говорить про обсуждаемый проект в целом - он весьма посредственный. Автор не знает о грязных и чистых зонах в доме. Идти в санузел нужно через весь дом. Для этого хозяин, пришедший с огорода, должен разуться. Либо нести грязь до туалета на радость жене.
Санузлы и кухня разнесены по трём углам дома, чтобы доставить радость сантехникам. Автор решил пустить стояк по стене тамбура, канализацию второго этажа придётся вести в перекрытии, но лаги перекрытия расположены поперёк прокладки труб. Собирать коммуникации водоснабжения и канализации придётся под перекрытием, для этого придётся утеплять цоколь и сами трубы. И всё равно останется риск промерзания. А подумай проектировщик, расположи санузлы один над одним и кухню через стену от санузла первого этажа, все коммуникации можно было бы провести по одной стене дома.
Лестница с забежными ступенями (высотой 18 см) вместо площадки - отдельная песня с матерными словами, которую не раз исполнят домовладельцы, таская по ней мебель и кувыркаясь в темноте.
Короче, не надо так.
Проект дома из бруса 6х7.5 м
Любителям и ценителям деревянного домостроения
Самая большая для меня, да и для большинства деталь в деревянных домах - минималка в планировочных решениях 6х6 м
Меньше слов - больше деталей на печатание ответов)
Показатели для сметного расчета строительства G-31:
-общая площадь по экспликации - 75 кв. м
-объем бруса 195х145 мм мм - 57 куб. м из 6 м
-пог. длина заготовок бруса - 2150 м
-пог. фундамента - 44 м
-балки - 100 х 200 мм
-стропила - 50 х 200 мм
-площадь кровли и периметр - 88 кв. м и - 111 пог. м
-угол кровли - 12-24 гр.
-высота 1-го этажа - 2.7 м
-высота 2-го этажа - от 1.60 м
-высота строения - 6.9 м
Сравниваем стоимость стен каркасника и бруса
Споры на Пикабу иногда бывают полезны, потому что в них рождается истина. Правда, не до всех она доходит. Недавно, помимо доводов "деды жили" и "всегда так строим", в пользу тёплых зимних домов из бруса с толщиной стены 200 и менее миллиметров, появился ещё один довод - строить из бруса дёшево. Обычно я не вступаю в споры с откровенно неадекватными людьми, но тут уж промолчать не мог. Давайте просто отвечу цифрами.
Возьмём для примера стену 6х2,5 метра (получится площадь 15 м2) и выполним её из бруса и в каркасной технологии. Все цены на деревяхи, кроме доски камерной сушки (нет нужной толщины) я беру на одном сайте, это среднерыночные цены, актуальные на момент написания поста.
В расчётах энергоэффективности будем исходить из норм теплопроводности для Подмосковья, согласно которым, коэффициент теплопроводности ограждающей конструкции должен быть от 3.2 (м²•˚С)/Вт и выше.
Почему считаем только стены? Остальное в конструкции сравниваемых домов может быть одинаковое. Фундаменты, перекрытия, крыши, окна-двери, сравнивать нет смысла.
Брус.
Для того, чтобы всё не перекорёжило, необходимо брать брус хотя бы транспортной влажности, уж не говорю про камерную сушку, 150х200х6000, ну и понятно, что он потребуется строганый (иначе придётся дополнительно шлифовать, чтобы не занозиться о стены, а это тоже деньги).
3 800 рублей за штуку. На стену 6х2,5 метра потребуется 17 брусьев. Усадку считать не будем. Так же не считаем нагели и межвенцовый утеплитель, а также всякие примочки типа узлов "Сила" и стягивающих шпилек.
Итого, чисто за брус - 64 600 рублей, пусть это будет стоимостью нашей стены.
Давайте посмотрим, что получилось.
Брус 200 мм. Сопротивление теплопередаче: 1.27 (м²•˚С)/Вт (при норме 3.2)
А нахрена мне двухсотый брус камерной сушки? Это что, сделает дом отвечающим СП? Или его не нужно будет конопатить? Я возьму брус 150х150 с местной пилорамы по 15 тыс за куб. 2,25 куба на 15 = 33 750 руб за брус. Плюс тысячи полторы на межвенцовку. Это - ВСЁ!
- А я пойду, топор найду!
- Топор найдёшь? И что же? Ты размахнёшься по сосне, а врежешь по ноге!
Брус 150 мм. Сопротивление теплопередаче: 0.99 (м²•˚С)/Вт (в три раза ниже нормы)
Так можно дойти и до бруска 50х50. Беда в том, что сопротивление теплопередаче будет падать прямо пропорционально толщине бруса.
Каркас
Тут будет немного посложнее. Сначала нужно понять конструкцию нашей стены. Давайте возьмём для примера стену без окон, т.к. в брусе мы не учитывали окна и обсаду. Выглядеть она будет как правая стена на рисунке ниже.
Несмотря на то, что мы тягаемся со щеледомом и могли бы уделать его простой каркасной стеной, с утеплением между лагами, мы сделаем качественную стену с использованием МДВП Белтермо в качестве гидроветрозащиты и перекрёстным утеплением 200 мм толщиной.
Каркас стены
Доска камерной сушки 150х50х6000 стоит 1 110 рублей за штутку.
На стену 6х2,5 метров нужно 10 досок (4 на нижнюю и верхнюю обвязки, 5 на 7 стоек и угловые доски, 1 на две укосины). Это 11 110 рублей за каркас.
Пароизоляция
Возьмём Технониколь 95 рублей за м2 * 15 = 1 425 рублей
Утепление
У нас будет перекрёстное, а значит, нам понадобится несколько слоёв. Между лагами мы положим слой 100 мм + 50 мм со смещением, затем поперёк стоек (вертикально стоящих досок 150х50) нашьём обрешётку из бруска 50х50х6000 и положим ещё один слой 50 мм, чтобы отсечь утечку тепла через стойки.
Нам потребуется Роквул Скандик 100 мм - 15 м2 по 335 рублей за м2 = 5 025 рублей
И такой же, но 50 мм - 30 м2 по 173 рубля за м2 = 5 190 рублей
Брусок сухой строганый для обрешётки запишем тоже в элементы утепления,
50х50х3000 по цене 190 рублей за штуку, нам нужно 12 штук = 2 280 рублей
Итого 12 495 рублей
Гидроветрозащита
В качестве гидроветрозащиты, а заодно шумоизоляции и дополнительного утепления будем использовать шпунтованные МДВП Белтермо 32 мм толщиной, стоимостью 770 рублей за м2.
Наши 15 квадратных метров мы зашьём за 11 550 рублей.
Эту недешёвую опцию можно заменить на OSB-3 Калевала (получится примерно 180 рублей за м2 или 2 700 рублей на всю стену), либо вообще на гидроветрозащитную мембрану (тогда меньше тысячи рублей уйдёт на всю стену), но мы её оставим.
Отделка
Имитация бруса внутри и снаружи, по площади 30 м2, 510 рублей за м2 = 15 300 рублей.
Ещё понадобится контррейка 20х40х3000 для организации вентзазора между Белтермо и фасадной имитацией 12 штук по 125 рублей = 1500 рублей.
Итого, каркасная стена в состоянии "полный фарш" для Подмосковья - 62 080 рублей
Можно ли удешевить? Безусловно!
Я, например, живу в каркасном доме без перекрёстного утепления, с толщиной стен 150 мм уже 8 лет. И сильно от этого не страдаю. Но, выбранный мной стеновой пирог позволит не волноваться о расходах на отопление и не переживать о кондиционере в летние месяцы.
А в самом дешёвом варианте смета будет выглядеть так:
Доска камерной сушки 150х50х6000 стоит 1 110 рублей за штутку.
На стену 6х2,5 метров нужно 10 досок. Это 11 110 за каркас.
Утеплителя Роквул Скандик уйдёт 30 м2 (15 - 100 мм и 15 - 50 мм) - это 7 650 рублей.
Ветрозащита Технониколь 13 рублей за м2 = 195 рублей
Пароизоляция от них же 95 рублей за м2 = 1425 рублей.
Отделка - имитация бруса внутри и снаружи, по площади 30 м2, 510 рублей за м2 = 15 300 рублей.
Контр-рейка для вентзазора 7 штук по 125 рублей (20х40х3000) = 875 рублей.
Итого, дешёвый каркас - 36 555 рублей за стену.
При этом, в отличие от брусовой стены, она по-прежнему отвечает нормам теплосопротивления. То есть, речь идёт о теплоэффективной стене дома для круглогодичного проживания.
Давайте посмотрим, что получилось.
Сопротивление теплопередаче: 5.35 (м²•˚С)/Вт (при норме 3.2)
Ну, до кучи рассмотрим дешёвый вариант каркасной стены, про который я упомянул чуть выше.
Сопротивление теплопередаче: 3.78 (м²•˚С)/Вт (при норме 3.2)
Да, в посте много допущений, например - не учитываются теплопотери через щели в брусовой стене и через стойки в стене каркасной. К тому же, я не проектировщик и могу ошибаться в некоторых нюансах. Но общее представление об экономике и теплосопротивлении (способности стен удерживать тепло внутри дома и не пропускать холод и жару внутрь) конструкций составить можно.
Из бруса мы получим дорогую и не соответствующую строительным нормам стену, которая будет нуждаться в ежегодном обслуживании (конопатке) и отапливать улицу, что в конце-концов приведёт хозяина к необходимости строить каркас вокруг бруса - то есть, обшивать дом утеплителем и делать фальш-фасад. Это дополнительные расходы.
По каркасной технологии, хоть в дешёвом варианте, хоть в дорогом, мы получаем необслуживаемую (ок, покрасить раз в 5 лет придётся, если на фасаде дерево) и устойчивую к теплопотерям стену. И в любом случае, дешевле брусовой. Особенно, если сразу дотягивать её до норм утеплителем.
Вот и вся математика на уровне 2*2=4
Качественный дом из бруса или бревна - это элитная недвижимость. Иметь хороший деревянный дом - дорогое удовольствие, иметь плохой - дорогое неудовольствие.
Проект небольшой баньки 4 х 4 м
Баня из профилированного бруса в "теплый угол"
Профилированный брус 145х145 мм
в проекте - пиломатериалы 6 м для закупки и строительства
дополнительно читаем материалы - строительство срубы (бань) в теплый угол
Нет, не до гвоздя, но с разбрусовкой)
Ответ на пост «Остро»1
Вытачивания стамески из дамаска)























