23 Апреля 2021
19

Если вас раздражают кучи сообщений по 2 слова в чатах, то знайте... Бывает хуже!

Ещё хуже это вот так:

6:00 Слушай можешь помочь с одной фигнёй

6:01 Там короче когда агрегат запускаем начинает щёлкать херня какая-то и он гаснет

6:02 Мы пробовали менять источник питания

6:03 Но почему-то ничего не меняется

6:04 Серёга сказал тебе написать просто

6:05 Ты говорят такие вопросы решал уже

6:06 Но почему-то у нас не получается

6:07 Там ещё красная лампочка после выключения мигает

6:08 Ой стоп ты же с ночной

6:09 Бляяя это ты в пять только домой приехал

6:10 Ой извини

6:11 Напишу Петровичу


СУУУУУУКААААААААА

Показать полностью
38

ЖЕЛЕЗОБЕТОННЫЕ СВАИ: ОПЫТ И РАСЧЕТЫ. Делаем ФУНДАМЕНТ под каркасный дом

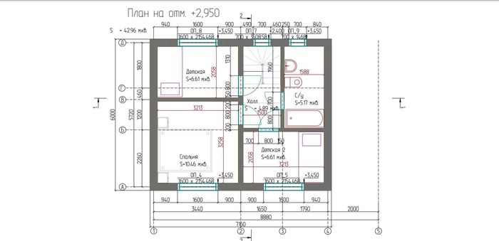
Мы начали новое строительство! На этот раз это двухэтажный каркасный дом с террасой и вторым мансардным этажом. Общей площадью 86 м2. Т.е. это 9 на 6 метров

Вот такая планировочка будет

Исходя из геологии здесь глинистый грунт, а на глубине 2,7 метра начинается пещаник

Это территория СНТ и дороги здесь очень узкие

Т.е. большая строительная техника не подъедет.

Участок здесь с большим уклоном. Поэтому при ленточном фундаменте пришлось бы выбирать много земли. А раскидывать ее негде, потому что на участке есть старый дачный домик.

В последующем этот грунт пришлось бы куда-то утилизировать, а поскольку суда проблематично подъехать крупной строительной технике, все это мероприятие будет нецелесообразным ни в экономическом плане, ни по количеству трудозатрат. К тому же хозяйка настоятельно просила сохранить многолетние пионы и кустарники. ну как против такого попрешь)

Кстати, все расчет фундамента можно и в видео посмотреть

Одной из основных характеристик качественного фундамента – это правильный расчёт опорной части фундамента, то есть фундамент должен равномерно и полноценно передавать нагрузки из постройки на грунт. Если опорная часть рассчитана некорректно, то вес дома будет превышать сопротивление грунта и, соответственно, дом своим весом будет продавливать грунт под собой. При этом усадка здания будет проходить неравномерно, и вследствие этого будут появляться трещины на фундаменте, что может повлечь за собой трещины на стенах дома.

Грунты на участке глинистые и будут очень пучинится в морозное время года. Т.е. замерший грунт выталкивает фундамент наверх. Чтобы избежать последствий от этого давления, сваи забиваем ниже уровня промерзания грунтов. Для Иркутской области этот уровень составляет 1,6 метра. Длина забивания сваи – расчетная величина, сваи нужно забивать до плотных грунтов. Конкретно на этом фундаменте сваи забиты на глубину 2,5 метра. Прямо в каменистый грунт.

Для данного фундамента нам потребуется 20 свай. Это по углам дома, под пересечения внутренних перегородок, также у нас нет нет расстояний между сваями, превышающее 3 метра. Тяжелых печей и каминов в доме не планируется, эту нагрузку на сваи мы не учитываем. Также сваи рассчитаны для террасы.

Показать полностью 7 1
Мои подписки
Подписывайтесь на интересные вам теги, сообщества, авторов, волны постов — и читайте свои любимые темы в этой ленте.
Чтобы добавить подписку, нужно авторизоваться.

Отличная работа, все прочитано! Выберите