Дизайн-проект квартиры с мраморной плиткой в ЖК «Регенбоген» в Санкт-Петербурге
Дизайн-проект квартиры в ЖК «Регенбоген» в Санкт-Петербурге разработан для молодой заказчицы, которая хотела получить интерьер с четкой планировкой, нейтральной палитрой и акцентом на качество материалов. Площадь квартиры — 115 м², стиль — современная классика с минималистичными элементами и мягкими цветовыми переходами. В конце статьи покажем, как это пространство стало цельным, светлым и детально проработанным без избыточного декора.
Мы в Artum создаём интерьеры, где каждая деталь подчинена жизни человека — от сценариев освещения до планировки. Посмотрите портфолио: там видно, как индивидуальные запросы превращаются в логичные, законченные решения.
Содержание:
💫 Перепланировка квартиры в ЖК «Регенбоген»
💫 Интерьер прихожей
💫 Дизайн-проект кухни-гостиной
💫 Дизайн интерьера мастер-спальни
💫 Интерьер душевой в мастер-зоне
💫 Дизайн интерьера гостевой комнаты
💫 Дизайн ванной комнаты
💫 Особенности дизайна квартиры в ЖК «Регенбоген»
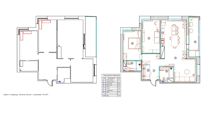
Перепланировка квартиры в ЖК «Регенбоген»
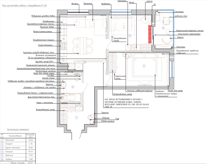
Планировка была частично переработана, чтобы сделать пространство более функциональным и визуально лёгким. Кухню объединили с гостиной, а проём на лоджию расширили, установив там барную зону с видом на двор. Благодаря этому решению пространство стало светлее и воздушнее.
В квартире предусмотрено два санузла: один — приватный при спальне с душем, второй — гостевой с ванной и встроенной техникой. Входная зона дополнена гардеробной, а в каждой комнате реализованы встроенные системы хранения.
Интерьер прихожей
Прихожая выполнена в светлой гамме с акцентом на фактуры и точечное освещение. Зеркало в полный рост, встроенные шкафы и мягкая подсветка формируют ощущение чистоты и упорядоченности.




Визуализация прихожей.
В отделке использованы краска, декоративная штукатурка и молдинги в одном тоне — без контрастов, но с глубиной. Пространство выглядит собранным, а все функциональные элементы встроены в архитектуру стен.
Дизайн-проект кухни-гостиной
Кухня решена в сочетании белого, бежевого и оттенков мрамора. Рабочая зона облицована мраморной плиткой, которая стала ключевым декоративным элементом и визуальным акцентом проекта.




Визуализация кухни-гостиной.
Обеденный стол и остров спроектированы для комфортного размещения всей семьи и гостей. Гостиная визуально отделена мягкой мебельной группой, биокамином и декоративными панелями с подсветкой. Линии чистые, материалы — матовые, текстуры — тактильные и спокойные.
Дизайн интерьера мастер-спальни
Мастер-спальня выполнена в пастельной цветовой гамме, где главную роль играют свет, текстиль и геометрия. Изголовье кровати выделено вертикальными панелями с подсветкой, по бокам расположены подвесные тумбы.



Визуализация спальни.
У окна размещена консоль, которая используется как рабочая зона или туалетный столик. Встроенный шкаф со скрытыми ручками выполнен в цвет стен, создавая монолитный объём. Прямой выход в душевую делает зону автономной и удобной.
Интерьер душевой в мастер-зоне
Душевая оформлена в мраморной плитке — она задаёт характер всему интерьеру. Зона отделена перегородкой, внутри размещено сиденье и ниши для хранения.




Визуализация душевой.
Верхний душ, встроенная подсветка и скрытый трап делают интерьер визуально лёгким и современным. Все технические элементы аккуратно интегрированы, чтобы не нарушать архитектуру помещения.
Дизайн интерьера гостевой комнаты
Гостевая комната совмещает функции спальни и кабинета. Здесь размещён раскладной диван, встроенные шкафы и рабочий стол у окна.




Визуализация гостевой комнаты.
Цветовая палитра перекликается с остальными помещениями — светлые тона, дерево, мягкие ткани. Продуманное освещение и спокойный дизайн делают комнату универсальной и функциональной.
Дизайн ванной комнаты
Во втором санузле разместили стиральную и сушильную машины, встроенные в шкаф-колонну. Основной материал — мраморный керамогранит, который визуально объединяет все поверхности и создаёт эффект монолитности.




Визуализация ванной комнаты.
Тумба под раковину с выдвижными ящиками, зеркало с подсветкой и комбинированная ванна с душем образуют логичную композицию. Интерьер выдержан в спокойных тонах и подчёркивает общий стиль квартиры.
Особенности дизайна квартиры в ЖК «Регенбоген»
Ремонт квартиры в ЖК «Регенбоген» в Санкт-Петербурге стал примером аккуратного баланса между эстетикой и функциональностью. Пространство объединено едиными материалами, светлыми поверхностями и чёткой логикой зонирования. Мраморная плитка стала доминантой интерьера, задающей характер всему проекту.


Изюминкой квартиры стала зона кухни, где мраморная отделка плавно перетекает в обеденное пространство — решение, которое объединило эстетику и практичность в одной плоскости.
👉 Получите бесплатную консультацию дизайнера и узнайте стоимость вашего проекта.







































































